Property
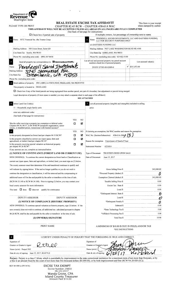
Account |
| Property ID: | 521689 | Abbreviated Legal Description: | REPLACES 039 0390 32 - IN GL 3: BG S/4 CR SEC 15 N88*E174.7' N32*E341'TPB N35*W139'M/L TO SLY CR TEAGER TR V27/P231 N44*E112 S51*E132.6'M/L TO NLY CR COOKSON TR V27/P247 S43*W 150'M/L TPB |
| Geographic ID: | R22915-039-3010 | Agent Code: | |
| Type: | Real | | |
| Tax Area: | 710 - APPRAISER-S Whid Schl Dist, outside Langley, improved & 1 acre or less | Land Use Code | 11 |
| Open Space: | N | DFL | N |
| Historic Property: | N | Remodel Property: | N |
| Multi-Family Redevelopment: | N | | |
| Township: | 29 | Section: | 15 |
| Range: | R2 |
Location |
| Address: | | Mapsco: | |
| Neighborhood: | Cycle 3 | Map ID: | 330 |
| Neighborhood CD: | 3 |
Owner |
| Name: | MUELLER, WALTER J | Owner ID: | 267325 |
| Mailing Address: | 5981 MUTINY BAY RD FREELAND, WA 98249 | % Ownership: | 100.0000000000% |
| | | Exemptions: | SNR/DSBL |
Taxes and Assessment Details
Values
| (+) Improvement Homesite Value: | + | $114,950 | |
| (+) Improvement Non-Homesite Value: | + | $0 | |
| (+) Land Homesite Value: | + | $340,000 | |
| (+) Land Non-Homesite Value: | + | $0 | |
| (+) Curr Use (HS): | + | $0 | $0 |
| (+) Curr Use (NHS): | + | $0 | $0 |
| | | -------------------------- | |
| (=) Market Value: | = | $454,950 | |
| (–) Productivity Loss: | – | $0 | |
| | | -------------------------- | |
| (=) Subtotal: | = | $454,950 | |
| (+) Senior Appraised Value: | + | $138,704 | |
| (+) Non-Senior Appraised Value: | + | $0 | |
| | | -------------------------- | |
| (=) Total Appraised Value: | = | $138,704 | |
| (–) Senior Exemption Loss: | – | $83,222 | |
| (–) Exemption Loss: | – | $0 | |
| | | -------------------------- | |
| (=) Taxable Value: | = | $55,482 | |
Taxing Jurisdiction
| Owner: | MUELLER, WALTER J | | |
| % Ownership: | 100.0000000000% | | |
| Total Value: | $454,950 | | |
| Tax Area: | 710 - APPRAISER-S Whid Schl Dist, outside Langley, improved & 1 acre or less |
| CF | Conservation Futures | 0.0316035091 | $454,950 | $55,482 | $1.75 | | |
| FIRE3 | Fire & Rescue Dist #3 S Whidbey GEN | 1.2004855531 | $454,950 | $55,482 | $66.61 | | |
| HOBOND | Hospital BOND | 0.0000000000 | $454,950 | $0 | $0.00 | | |
| HOGEN | Hospital GEN | 0.3902502903 | $454,950 | $55,482 | $21.65 | | |
| CE | County Current Expense | 0.3708482477 | $454,950 | $55,482 | $20.58 | | |
| CR | County Roads | 0.4584763726 | $454,950 | $55,482 | $25.44 | | |
| ISLANDEMS | Hospital GEN (EMS) | 0.5000000000 | $454,950 | $55,482 | $27.74 | | |
| LIB | Library Sno-Isle GEN | 0.3153421757 | $454,950 | $55,482 | $17.50 | | |
| PORTWHID | Port of S Whidbey GEN | 0.1094540357 | $454,950 | $55,482 | $6.07 | | |
| SCH206BOND | School 206 BOND | 0.3161759235 | $454,950 | $55,482 | $17.54 | | |
| SCH206MO | School 206 Enrichment | 0.0000000000 | $454,950 | $0 | $0.00 | | |
| ST | State School | 1.3035497053 | $454,950 | $55,482 | $72.32 | | |
| ST2 | State School Part 2 | 0.0000000000 | $454,950 | $0 | $0.00 | | |
| SWHIDPRBD | P & R S Whidbey BOND | 0.0000000000 | $454,950 | $0 | $0.00 | | |
| SWHIDPRBD2 | P & R S Whidbey BOND2 | 0.0000000000 | $454,950 | $0 | $0.00 | | |
| SWHIDPRMT | P & R S Whidbey GEN | 0.2053334452 | $454,950 | $55,482 | $11.39 | | |
| | Total Tax Rate: | 5.2015192582 | | | | | |
| | | | | Taxes w/Current Exemptions: | $288.59 | | |
| | | | | Taxes w/o Exemptions: | $3,045.18 | | |
Improvement / Building
| Improvement #1: | RESIDENTIAL | State Code: | Y | 842.0 sqft | Value: | $114,950 |
| Bathrooms: | 1 | Bedrooms: | 2 | | Ceiling: | ACOUSTIC FURRED | Exterior Wall/Cover: | SHINGLE | | Floor Covering: | CARPET/VINYL 80-20 | Floor Structure: | WOOD W/SUBFLOOR | | Foundation: | CONCRETE | Heating: | BASEBOARD ELECTRIC | | Interior Finish: | DRYWALL PAINT | Plumbing Fixture Cnt: | 5 | | Roof Slope: | 12" IN 12" | Roof Structure/Cover: | CJ ASPHALT |
|
| | Type | Description | Class CD | Sub Class CD | Year Built | Area |
| | BAS | BASE/MAIN FLOOR | 3 | 0 | 1903 | 842.0 |
| | BGR | BASEMENT GARAGE | 3 | 0 | 1903 | 240.0 |
| | OP1 | OPEN PORCH SLAB | 3 | 0 | 1903 | 56.0 |
| | OWR | OPEN WOOD PORCH W/STEPS/ROOF | 3 | 0 | 1903 | 444.0 |
Sketch
Property Image
Land
| 1 | 15 | SQ (12001-21780) | 0.4100 | 17859.60 | 0.00 | 0.00 | 1.00 | $340,000 | $0 |
Roll Value History
| 2026 | N/A | N/A | N/A | N/A | N/A |
| 2025 | $114,950 | $340,000 | $0 | $454,950 | $55,482 |
| 2024 | $119,631 | $320,000 | $0 | $439,631 | $55,482 |
| 2023 | $121,965 | $300,000 | $0 | $421,965 | $55,482 |
| 2022 | $112,555 | $280,000 | $0 | $392,555 | $55,482 |
| 2021 | $99,713 | $190,000 | $0 | $289,713 | $55,482 |
| 2020 | $97,809 | $180,000 | $0 | $277,809 | $55,482 |
| 2019 | $58,855 | $190,000 | $0 | $248,855 | $55,482 |
| 2018 | $59,117 | $160,000 | $0 | $219,117 | $55,482 |
| 2017 | $59,640 | $110,000 | $0 | $169,640 | $55,482 |
| 2016 | $60,686 | $100,000 | $0 | $160,686 | $55,482 |
| 2015 | $61,732 | $100,000 | $0 | $161,732 | $55,482 |
| 2014 | $62,778 | $100,000 | $0 | $162,778 | $88,704 |
| 2013 | $38,704 | $100,000 | $0 | $138,704 | $138,704 |
| 2012 | $37,310 | $106,250 | $0 | $143,560 | $143,560 |
| 2011 | $37,310 | $125,000 | $0 | $162,310 | $162,310 |
| 2010 | $45,534 | $125,000 | $0 | $170,534 | $170,534 |
| 2009 | $48,270 | $150,000 | $0 | $198,270 | $198,270 |
| 2008 | $49,884 | $154,500 | $0 | $204,384 | $204,384 |
| 2007 | $48,429 | $154,500 | $0 | $202,929 | $202,929 |
Deed and Sales History
| 1 | 09/23/2014 | TOD | Transfer On Death Deed | MUELLER, WALTER J | MUELLER, WALTER J | | | | 84988 | |
| 2 | 01/28/2005 | QCD | Quit Claim Deed | SEABROOK, LEANNA M | MUELLER, WALTER J | | | $0.00 | 50363 | 4124346 |
| 3 | 01/21/2000 | QCD | Quit Claim Deed | GILBERT, ZEITA M | SEABROOK, LEANNA M | | | $0.00 | 313 | 20001676 |
| 4 | 06/01/1988 | WD | Warranty Deed | GILBERT, ZEITA M | GILBERT, ZEITA M | | | $16,000.00 | 81927 | 88007101 |
| 5 | 05/01/1984 | WD | Warranty Deed | BROWN, WARREN T | GILBERT, ZEITA M | | | $0.00 | 42301 | 84001616 |
| 6 | 01/01/1900 | OTHER | Other - Misc. Documents | Unknown | BROWN, WARREN T | | | $0.00 | 0 | 0 |
| 7 | 01/01/1900 | OTHER | Other - Misc. Documents | GILBERT, ZEITA M | GILBERT, ZEITA M | | | $0.00 | 0 | 0 |
Payout Agreement
| No payout information available.. |