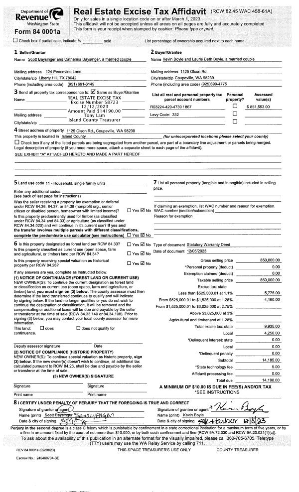
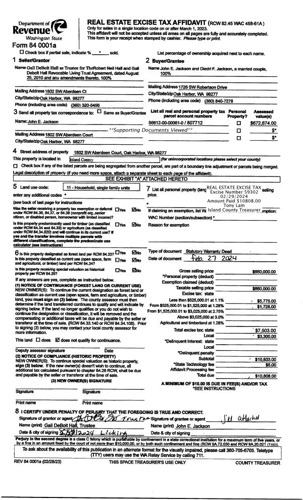
Property
Account |
| Property ID: | 521938 | Abbreviated Legal Description: | REPLACES 080 1650 11 - IN GL7: BG NWCR TS DAVIS DC E1900.01' TPB N361.50' W241' S361.50' E241' TPB EX RD |
| Geographic ID: | R13233-101-1650 | Agent Code: | |
| Type: | Real | | |
| Tax Area: | 312 - APPRAISER-Cpvl Schl Dist, outside Cpvl, improved, greater than 1 acre | Land Use Code | 11 |
| Open Space: | N | DFL | N |
| Historic Property: | N | Remodel Property: | N |
| Multi-Family Redevelopment: | N | | |
| Township: | 32 | Section: | 33 |
| Range: | R1 |
Location |
| Address: | 1476 BLACK RD COUPEVILLE, WA 98239 | Mapsco: | |
| Neighborhood: | Cycle 2 | Map ID: | 172 |
| Neighborhood CD: | 2 |
Owner |
| Name: | DOHN TTEE, WILLIAM T | Owner ID: | 310834 |
| Mailing Address: | GALE ANN KORDOWSKI TTEE PO BOX 146 COUPEVILLE, WA 98239 | % Ownership: | 100.0000000000% |
| | | Exemptions: | |
Taxes and Assessment Details
Values
| (+) Improvement Homesite Value: | + | $0 | |
| (+) Improvement Non-Homesite Value: | + | $168,523 | |
| (+) Land Homesite Value: | + | $0 | |
| (+) Land Non-Homesite Value: | + | $290,000 | |
| (+) Curr Use (HS): | + | $0 | $0 |
| (+) Curr Use (NHS): | + | $0 | $0 |
| | | -------------------------- | |
| (=) Market Value: | = | $458,523 | |
| (–) Productivity Loss: | – | $0 | |
| | | -------------------------- | |
| (=) Subtotal: | = | $458,523 | |
| (+) Senior Appraised Value: | + | $0 | |
| (+) Non-Senior Appraised Value: | + | $458,523 | |
| | | -------------------------- | |
| (=) Total Appraised Value: | = | $458,523 | |
| (–) Senior Exemption Loss: | – | $0 | |
| (–) Exemption Loss: | – | $0 | |
| | | -------------------------- | |
| (=) Taxable Value: | = | $458,523 | |
Taxing Jurisdiction
| Owner: | DOHN TTEE, WILLIAM T | | |
| % Ownership: | 100.0000000000% | | |
| Total Value: | $458,523 | | |
| Tax Area: | 312 - APPRAISER-Cpvl Schl Dist, outside Cpvl, improved, greater than 1 acre |
| CF | Conservation Futures | 0.0316035091 | $458,523 | $458,523 | $14.49 | | |
| CEM2 | Cemetery #2 | 0.0095056933 | $458,523 | $458,523 | $4.36 | | |
| FIRE5 | Fire & Rescue Dist #5 C Whidbey GEN | 1.2008080668 | $458,523 | $458,523 | $550.60 | | |
| FIRE5BOND | Fire & Rescue Dist #5 C Whidbey BOND | 0.1400090713 | $458,523 | $458,523 | $64.20 | | |
| HOBOND | Hospital BOND | 0.1910887512 | $458,523 | $458,523 | $87.62 | | |
| HOGEN | Hospital GEN | 0.3902502903 | $458,523 | $458,523 | $178.94 | | |
| CE | County Current Expense | 0.3708482477 | $458,523 | $458,523 | $170.04 | | |
| CR | County Roads | 0.4584763726 | $458,523 | $458,523 | $210.22 | | |
| ISLANDEMS | Hospital GEN (EMS) | 0.5000000000 | $458,523 | $458,523 | $229.26 | | |
| LIB | Library Sno-Isle GEN | 0.3153421757 | $458,523 | $458,523 | $144.59 | | |
| LIBCAP | Library Sno-Isle BOND (Cap Fac Imp Area) | 0.0543427938 | $458,523 | $458,523 | $24.92 | | |
| POCOUP | Port of Coupeville GEN | 0.1093371703 | $458,523 | $458,523 | $50.13 | | |
| POCOUPIDD | Port of Coupeville IDD | 0.3409740022 | $458,523 | $458,523 | $156.34 | | |
| COUPSDTECH | School 204 CP (TECH) | 0.7545480007 | $458,523 | $458,523 | $345.98 | | |
| SCH204MO | School 204 Enrichment | 0.6716186034 | $458,523 | $458,523 | $307.95 | | |
| ST | State School | 1.3035497053 | $458,523 | $458,523 | $597.71 | | |
| ST2 | State School Part 2 | 0.8169543533 | $458,523 | $458,523 | $374.59 | | |
| | Total Tax Rate: | 7.6592568070 | | | | | |
| | | | | Taxes w/Current Exemptions: | $3,511.94 | | |
| | | | | Taxes w/o Exemptions: | $3,511.94 | | |
Improvement / Building
| Improvement #1: | RESIDENTIAL | State Code: | Y | 1248.0 sqft | Value: | $168,523 |
| Bathrooms: | 1 | Bedrooms: | 3 | | Ceiling: | DRY WALL SPRAYED | Exterior Wall/Cover: | WOOD SIDING | | Floor Covering: | CARPET/VINYL 60-40 | Floor Structure: | WOOD W/SUBFLOOR | | Foundation: | CONCRETE | Heating: | WALL HEAT ELECTRIC | | Interior Finish: | DRYWALL PAINT | Plumbing Fixture Cnt: | 6 | | Roof Slope: | 3" IN 12" | Roof Structure/Cover: | CJ ASPHALT |
|
| | Type | Description | Class CD | Sub Class CD | Year Built | Area |
| | BAS | BASE/MAIN FLOOR | 3 | 0 | 1972 | 1248.0 |
| | OP3 | OPEN PORCH W/ROOF | 3 | 0 | 1972 | 56.0 |
| | oBAR | BARN | 2 | 0 | 1984 | 576.0 |
| | oCAR | CARPORT | 2 | 0 | 1984 | 180.0 |
Sketch
| No sketches available for this property. |
Property Image
Land
| 1 | 91 | UNDEVELOPED LAND-METES AND BOUNDS | 1.0000 | 43560.00 | 0.00 | 0.00 | 1.00 | $20,000 | $0 |
| 2 | HS | HOMESITE | 1.0000 | 43560.00 | 0.00 | 0.00 | 1.00 | $270,000 | $0 |
Roll Value History
| 2026 | N/A | N/A | N/A | N/A | N/A |
| 2025 | $168,523 | $290,000 | $0 | $458,523 | $458,523 |
| 2024 | $196,436 | $280,000 | $0 | $476,436 | $476,436 |
| 2023 | $199,154 | $290,000 | $0 | $489,154 | $489,154 |
| 2022 | $182,791 | $280,000 | $0 | $462,791 | $462,791 |
| 2021 | $161,094 | $180,000 | $0 | $341,094 | $341,094 |
| 2020 | $157,397 | $170,000 | $0 | $327,397 | $327,397 |
| 2019 | $113,368 | $210,000 | $0 | $323,368 | $323,368 |
| 2018 | $77,795 | $190,000 | $0 | $267,795 | $267,795 |
| 2017 | $78,444 | $170,000 | $0 | $248,444 | $248,444 |
| 2016 | $79,742 | $150,000 | $0 | $229,742 | $229,742 |
| 2015 | $81,039 | $120,000 | $0 | $201,039 | $201,039 |
| 2014 | $82,335 | $120,000 | $0 | $202,335 | $202,335 |
| 2013 | $83,632 | $120,000 | $0 | $203,632 | $203,632 |
| 2012 | $82,335 | $106,250 | $0 | $188,585 | $188,585 |
| 2011 | $83,632 | $125,000 | $0 | $208,632 | $208,632 |
| 2010 | $89,566 | $125,000 | $0 | $214,566 | $214,566 |
| 2009 | $93,837 | $150,000 | $0 | $243,837 | $243,837 |
| 2008 | $94,183 | $134,000 | $0 | $228,183 | $228,183 |
| 2007 | $95,821 | $134,000 | $0 | $229,821 | $229,821 |
Deed and Sales History
| 1 | 12/01/2023 | WD | Warranty Deed | FRYDAY-BOWYER, LUCY A | DOHN TTEE, WILLIAM T | | | $0.00 | 58677 | 4567297 |
| 2 | 12/01/2023 | WD | Warranty Deed | FRYDAY-BOWYER, LUCY A | DOHN TTEE, WILLIAM T | | | $475,000.00 | 58670 | 4567269 |
| 3 | 02/04/2013 | PRD | Personal Representatives Deed | FRYDAY, HARRIETT | FRYDAY-BOWYER, LUCY A | | | $0.00 | 10360 | 4333110 |
| 4 | 06/12/2002 | PRD | Personal Representatives Deed | HENRY, JEANNETTE | FRYDAY, HARRIETT | | | $0.00 | 22453 | 4023955 |
| 5 | 01/01/1997 | OTHER | Other - Misc. Documents | HENRY, JEANNETTE & | HENRY, JEANNETTE | | | $0.00 | 67221 | 96017575 |
| 6 | 12/01/1988 | QCD | Quit Claim Deed | HENRY, JEANNETTE | HENRY, JEANNETTE & | | | $0.00 | 84200 | 88015709 |
| 7 | 06/01/1972 | TRUSTEED | Trustee's Deed | SMITH, GEORGE E | HENRY, JEANNETTE | | | $0.00 | 44736 | 0 |
| 8 | 01/01/1900 | OTHER | Other - Misc. Documents | Unknown | SMITH, GEORGE E | | | $0.00 | 0 | 0 |
Payout Agreement
| No payout information available.. |