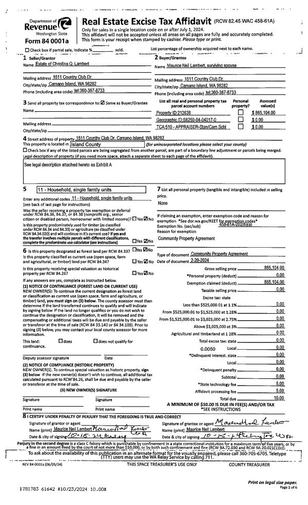
Property
Account |
| Property ID: | 522134 | Abbreviated Legal Description: | COLUMBIA BCH LOT 17 INCL ADJ TIDES TGW EZ AF#94007634 |
| Geographic ID: | S6400-00-00017-0 | Agent Code: | |
| Type: | Real | | |
| Tax Area: | 720 - APPRAISER-S Whid Schl Dist, Special District, improved & less than 1 acre | Land Use Code | 11 |
| Open Space: | N | DFL | N |
| Historic Property: | N | Remodel Property: | N |
| Multi-Family Redevelopment: | N | | |
| Township: | | Section: | |
| Range: | |
Location |
| Address: | 6699 COLUMBIA BEACH DR CLINTON, WA 98236 | Mapsco: | |
| Neighborhood: | Cycle 4 | Map ID: | 1001 |
| Neighborhood CD: | 4 |
Owner |
| Name: | ZOOK DEJARDIN FAMILY, LLC | Owner ID: | 314299 |
| Mailing Address: | 3057 NE 94TH ST SEATTLE, WA 98115 | % Ownership: | 100.0000000000% |
| | | Exemptions: | |
Taxes and Assessment Details
Values
| (+) Improvement Homesite Value: | + | $0 | |
| (+) Improvement Non-Homesite Value: | + | $288,743 | |
| (+) Land Homesite Value: | + | $0 | |
| (+) Land Non-Homesite Value: | + | $850,500 | |
| (+) Curr Use (HS): | + | $0 | $0 |
| (+) Curr Use (NHS): | + | $0 | $0 |
| | | -------------------------- | |
| (=) Market Value: | = | $1,139,243 | |
| (–) Productivity Loss: | – | $0 | |
| | | -------------------------- | |
| (=) Subtotal: | = | $1,139,243 | |
| (+) Senior Appraised Value: | + | $0 | |
| (+) Non-Senior Appraised Value: | + | $1,139,243 | |
| | | -------------------------- | |
| (=) Total Appraised Value: | = | $1,139,243 | |
| (–) Senior Exemption Loss: | – | $0 | |
| (–) Exemption Loss: | – | $0 | |
| | | -------------------------- | |
| (=) Taxable Value: | = | $1,139,243 | |
Taxing Jurisdiction
| Owner: | ZOOK DEJARDIN FAMILY, LLC | | |
| % Ownership: | 100.0000000000% | | |
| Total Value: | $1,139,243 | | |
| Tax Area: | 720 - APPRAISER-S Whid Schl Dist, Special District, improved & less than 1 acre |
| CF | Conservation Futures | 0.0316035091 | $1,139,243 | $1,139,243 | $36.00 | | |
| FIRE3 | Fire & Rescue Dist #3 S Whidbey GEN | 1.2004855531 | $1,139,243 | $1,139,243 | $1,367.64 | | |
| HOBOND | Hospital BOND | 0.1910887512 | $1,139,243 | $1,139,243 | $217.70 | | |
| HOGEN | Hospital GEN | 0.3902502903 | $1,139,243 | $1,139,243 | $444.59 | | |
| CE | County Current Expense | 0.3708482477 | $1,139,243 | $1,139,243 | $422.49 | | |
| CR | County Roads | 0.4584763726 | $1,139,243 | $1,139,243 | $522.32 | | |
| ISLANDEMS | Hospital GEN (EMS) | 0.5000000000 | $1,139,243 | $1,139,243 | $569.62 | | |
| LIB | Library Sno-Isle GEN | 0.3153421757 | $1,139,243 | $1,139,243 | $359.25 | | |
| PORTWHID | Port of S Whidbey GEN | 0.1094540357 | $1,139,243 | $1,139,243 | $124.69 | | |
| SCH206BOND | School 206 BOND | 0.3161759235 | $1,139,243 | $1,139,243 | $360.20 | | |
| SCH206MO | School 206 Enrichment | 0.4547169547 | $1,139,243 | $1,139,243 | $518.03 | | |
| ST | State School | 1.3035497053 | $1,139,243 | $1,139,243 | $1,485.06 | | |
| ST2 | State School Part 2 | 0.8169543533 | $1,139,243 | $1,139,243 | $930.71 | | |
| SWHIDPRBD | P & R S Whidbey BOND | 0.0152817568 | $1,139,243 | $1,139,243 | $17.41 | | |
| SWHIDPRBD2 | P & R S Whidbey BOND2 | 0.0138911264 | $1,139,243 | $1,139,243 | $15.83 | | |
| SWHIDPRMT | P & R S Whidbey GEN | 0.2053334452 | $1,139,243 | $1,139,243 | $233.92 | | |
| | Total Tax Rate: | 6.6934522006 | | | | | |
| | | | | Taxes w/Current Exemptions: | $7,625.46 | | |
| | | | | Taxes w/o Exemptions: | $7,625.46 | | |
Improvement / Building
| Improvement #1: | RESIDENTIAL | State Code: | Y | 1660.0 sqft | Value: | $288,743 |
| Bathrooms: | 2 | Bedrooms: | 2 | | Ceiling: | DRYWALL PAINTED | Exterior Wall/Cover: | WOOD SIDING | | Floor Covering: | HARDWOOD/CARP 60-40 | Floor Structure: | WOOD W/SUBFLOOR | | Foundation: | CONCRETE | Heating: | BASEBOARD ELECTRIC | | Interior Finish: | DRYWALL PAINT | Plumbing Fixture Cnt: | 11 | | Roof Slope: | 4" IN 12" | Roof Structure/Cover: | CJ ASPHALT |
|
| | Type | Description | Class CD | Sub Class CD | Year Built | Area |
| | BAS | BASE/MAIN FLOOR | 3 | 0 | 1968 | 1660.0 |
| | OCP | OPEN CARPORT | 3 | 0 | 1968 | 480.0 |
| | UTY | STORAGE/UTILITY | 3 | 0 | 1968 | 72.0 |
| | OWP | OPEN WOOD PORCH W/STEPS | 3 | 0 | 1968 | 112.0 |
Sketch
Property Image
Land
| 1 | LB | LOW BANK | 0.0000 | 0.00 | 50.00 | 0.00 | 1.00 | $850,000 | $0 |
| 2 | 55 | TIDES | 0.0000 | 0.00 | 50.00 | 0.00 | 1.00 | $500 | $0 |
Roll Value History
| 2026 | N/A | N/A | N/A | N/A | N/A |
| 2025 | $288,743 | $850,500 | $0 | $1,139,243 | $1,139,243 |
| 2024 | $276,818 | $800,500 | $0 | $1,077,318 | $1,077,318 |
| 2023 | $280,355 | $800,500 | $0 | $1,080,855 | $1,080,855 |
| 2022 | $257,063 | $750,500 | $0 | $1,007,563 | $1,007,563 |
| 2021 | $226,327 | $675,500 | $0 | $901,827 | $901,827 |
| 2020 | $210,016 | $600,500 | $0 | $810,516 | $810,516 |
| 2019 | $153,222 | $550,500 | $0 | $703,722 | $703,722 |
| 2018 | $153,705 | $450,500 | $0 | $604,205 | $604,205 |
| 2017 | $154,671 | $400,500 | $0 | $555,171 | $555,171 |
| 2016 | $156,605 | $400,500 | $0 | $557,105 | $557,105 |
| 2015 | $158,537 | $400,500 | $0 | $559,037 | $559,037 |
| 2014 | $140,500 | $400,500 | $0 | $541,000 | $541,000 |
| 2013 | $142,424 | $400,500 | $0 | $542,924 | $542,924 |
| 2012 | $144,350 | $440,110 | $0 | $584,460 | $584,460 |
| 2011 | $164,809 | $517,688 | $0 | $682,497 | $682,497 |
| 2010 | $172,251 | $517,688 | $0 | $689,939 | $689,939 |
| 2009 | $179,655 | $644,997 | $0 | $824,652 | $824,652 |
| 2008 | $161,293 | $644,997 | $0 | $806,290 | $806,290 |
| 2007 | $163,595 | $644,647 | $0 | $808,242 | $808,242 |
Deed and Sales History
| 1 | 10/21/2024 | WD | Warranty Deed | MOSEBAR, DAVID EARL | ZOOK DEJARDIN FAMILY, LLC | | | $1,361,000.00 | 61630 | 4578495 |
| 2 | 02/13/2012 | WD | Warranty Deed | WELLS FARGO BANK NA AKA WACHOVIA MORTGAGE | MOSEBAR, DAVID EARL | | | $465,293.00 | 7547 | 4314666 |
| 3 | 12/02/2011 | TRUSTEED | Trustee's Deed | LALONE, JAMES S | WELLS FARGO BANK NA AKA WACHOVIA MORTGAGE | | | $0.00 | 6373 | 4306320 |
| 4 | 09/01/1993 | WD | Warranty Deed | BRANDVOLD, DAVID A | LALONE, JAMES S | | | $290,000.00 | 33592 | 93018677 |
| 5 | 03/01/1990 | WD | Warranty Deed | BURNSIDE, WILLIAM G | BRANDVOLD, DAVID A | | | $220,000.00 | 1535 | 90004932 |
| 6 | 11/01/1981 | EXECUTORD | Executor Deed | ELLINGSEN, E A | BURNSIDE, WILLIAM G | | | $165,000.00 | 13619 | 390481 |
| 7 | 10/01/1980 | TRUSTEED | Trustee's Deed | ELLINGSEN, E A | ELLINGSEN, E A | | | $155,000.00 | 3446 | 375100 |
| 8 | 01/01/1900 | REC | Real Estate Contract | Unknown | ELLINGSEN, E A | | | $0.00 | 58730 | 123100 |
Payout Agreement
| No payout information available.. |