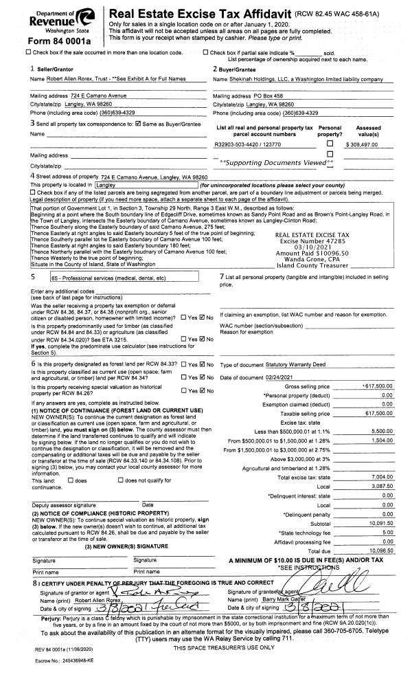
Property
Account |
| Property ID: | 522544 | Abbreviated Legal Description: | S/2 NE SW SE LY SELY OF COLES RD FR 100-3580 |
| Geographic ID: | R32904-075-4200 | Agent Code: | |
| Type: | Real | | |
| Tax Area: | 710 - APPRAISER-S Whid Schl Dist, outside Langley, improved & 1 acre or less | Land Use Code | 11 |
| Open Space: | N | DFL | N |
| Historic Property: | N | Remodel Property: | N |
| Multi-Family Redevelopment: | N | | |
| Township: | 29 | Section: | 04 |
| Range: | R3 |
Location |
| Address: | 5145 COLES RD LANGLEY, WA 98260 | Mapsco: | |
| Neighborhood: | Cycle 4 | Map ID: | 729 |
| Neighborhood CD: | 4 |
Owner |
| Name: | HUNTER, GARY J | Owner ID: | 262943 |
| Mailing Address: | 5145 COLES RD LANGLEY, WA 98260 | % Ownership: | 100.0000000000% |
| | | Exemptions: | |
Taxes and Assessment Details
Values
| (+) Improvement Homesite Value: | + | $0 | |
| (+) Improvement Non-Homesite Value: | + | $245,347 | |
| (+) Land Homesite Value: | + | $0 | |
| (+) Land Non-Homesite Value: | + | $250,000 | |
| (+) Curr Use (HS): | + | $0 | $0 |
| (+) Curr Use (NHS): | + | $0 | $0 |
| | | -------------------------- | |
| (=) Market Value: | = | $495,347 | |
| (–) Productivity Loss: | – | $0 | |
| | | -------------------------- | |
| (=) Subtotal: | = | $495,347 | |
| (+) Senior Appraised Value: | + | $0 | |
| (+) Non-Senior Appraised Value: | + | $495,347 | |
| | | -------------------------- | |
| (=) Total Appraised Value: | = | $495,347 | |
| (–) Senior Exemption Loss: | – | $0 | |
| (–) Exemption Loss: | – | $0 | |
| | | -------------------------- | |
| (=) Taxable Value: | = | $495,347 | |
Taxing Jurisdiction
| Owner: | HUNTER, GARY J | | |
| % Ownership: | 100.0000000000% | | |
| Total Value: | $495,347 | | |
| Tax Area: | 710 - APPRAISER-S Whid Schl Dist, outside Langley, improved & 1 acre or less |
| CF | Conservation Futures | 0.0316035091 | $495,347 | $495,347 | $15.65 | | |
| FIRE3 | Fire & Rescue Dist #3 S Whidbey GEN | 1.2004855531 | $495,347 | $495,347 | $594.66 | | |
| HOBOND | Hospital BOND | 0.1910887512 | $495,347 | $495,347 | $94.66 | | |
| HOGEN | Hospital GEN | 0.3902502903 | $495,347 | $495,347 | $193.31 | | |
| CE | County Current Expense | 0.3708482477 | $495,347 | $495,347 | $183.70 | | |
| CR | County Roads | 0.4584763726 | $495,347 | $495,347 | $227.10 | | |
| ISLANDEMS | Hospital GEN (EMS) | 0.5000000000 | $495,347 | $495,347 | $247.67 | | |
| LIB | Library Sno-Isle GEN | 0.3153421757 | $495,347 | $495,347 | $156.20 | | |
| PORTWHID | Port of S Whidbey GEN | 0.1094540357 | $495,347 | $495,347 | $54.22 | | |
| SCH206BOND | School 206 BOND | 0.3161759235 | $495,347 | $495,347 | $156.62 | | |
| SCH206MO | School 206 Enrichment | 0.4547169547 | $495,347 | $495,347 | $225.24 | | |
| ST | State School | 1.3035497053 | $495,347 | $495,347 | $645.71 | | |
| ST2 | State School Part 2 | 0.8169543533 | $495,347 | $495,347 | $404.68 | | |
| SWHIDPRBD | P & R S Whidbey BOND | 0.0152817568 | $495,347 | $495,347 | $7.57 | | |
| SWHIDPRBD2 | P & R S Whidbey BOND2 | 0.0138911264 | $495,347 | $495,347 | $6.88 | | |
| SWHIDPRMT | P & R S Whidbey GEN | 0.2053334452 | $495,347 | $495,347 | $101.71 | | |
| | Total Tax Rate: | 6.6934522006 | | | | | |
| | | | | Taxes w/Current Exemptions: | $3,315.58 | | |
| | | | | Taxes w/o Exemptions: | $3,315.58 | | |
Improvement / Building
| Improvement #1: | RESIDENTIAL | State Code: | Y | 1393.6 sqft | Value: | $245,347 |
| Bathrooms: | 1.5 | Bedrooms: | 1 | | Ceiling: | TONGUE & GROOVE | Exterior Wall/Cover: | SHINGLE | | Floor Covering: | CERAMIC TILE/CPT 40-60 | Floor Structure: | WOOD W/SUBFLOOR | | Foundation: | CONCRETE | Heating: | WALL HEAT ELECTRIC | | Interior Finish: | DRYWALL PAINT | Plumbing Fixture Cnt: | 8 | | Roof Slope: | 6" IN 12" | Roof Structure/Cover: | CJ ASPHALT |
|
| | Type | Description | Class CD | Sub Class CD | Year Built | Area |
| | BAS | BASE/MAIN FLOOR | 3 | 0 | 1983 | 856.7 |
| | OWC | OPEN WOOD PORCH W/STEPS/ROOF/C | 3 | 0 | 1983 | 16.1 |
| | UPS | UPPER STORY | 3 | 0 | 1983 | 392.9 |
| | OCP | OPEN CARPORT | 3 | 0 | 1983 | 224.0 |
| | OWP | OPEN WOOD PORCH W/STEPS | 3 | 0 | 1983 | 196.6 |
| | LOF | LOFT | 3 | 0 | 1983 | 144.0 |
Sketch
Property Image
Land
| 1 | 15 | SQ (12001-21780) | 0.0000 | 0.00 | 0.00 | 0.00 | 1.00 | $250,000 | $0 |
Roll Value History
| 2026 | N/A | N/A | N/A | N/A | N/A |
| 2025 | $245,347 | $250,000 | $0 | $495,347 | $495,347 |
| 2024 | $248,405 | $230,000 | $0 | $478,405 | $478,405 |
| 2023 | $251,460 | $230,000 | $0 | $481,460 | $481,460 |
| 2022 | $230,467 | $210,000 | $0 | $440,467 | $440,467 |
| 2021 | $202,819 | $120,000 | $0 | $322,819 | $322,819 |
| 2020 | $188,415 | $120,000 | $0 | $308,415 | $308,415 |
| 2019 | $137,224 | $170,000 | $0 | $307,224 | $307,224 |
| 2018 | $137,639 | $130,000 | $0 | $267,639 | $267,639 |
| 2017 | $138,427 | $110,000 | $0 | $248,427 | $248,427 |
| 2016 | $140,097 | $90,000 | $0 | $230,097 | $230,097 |
| 2015 | $141,764 | $95,000 | $0 | $236,764 | $236,764 |
| 2014 | $144,744 | $75,000 | $0 | $219,744 | $219,744 |
| 2013 | $146,658 | $75,000 | $0 | $221,658 | $221,658 |
| 2012 | $148,573 | $97,750 | $0 | $246,323 | $246,323 |
| 2011 | $150,487 | $115,000 | $0 | $265,487 | $265,487 |
| 2010 | $157,970 | $115,000 | $0 | $272,970 | $272,970 |
| 2009 | $164,758 | $100,000 | $0 | $264,758 | $264,758 |
| 2008 | $133,713 | $71,705 | $0 | $205,418 | $205,418 |
| 2007 | $133,731 | $71,705 | $0 | $205,436 | $205,436 |
Deed and Sales History
| 1 | 06/26/2013 | ESTSEPPROP | Establish Separate Property | HUNTER, GARY J | HUNTER, GARY J | | | $0.00 | 11837 | 4342909 |
| 2 | 06/25/2013 | SPLTDWARDE | Special Limited Warranty Deed | ROONEY, BURDETT M | HUNTER, GARY J | | | $275,000.00 | 11835 | 4342913 |
| 3 | 03/05/2008 | WD | Warranty Deed | ANDERSEN, DAVID M | ROONEY, BURDETT M | | | $319,000.00 | 80573 | 4223690 |
| 4 | 06/24/2003 | WD | Warranty Deed | BOYD-GAYNOR, JAMIE ALLYN | ANDERSEN, DAVID M | | | $199,000.00 | 32737 | 4064450 |
| 5 | 05/19/1998 | QCD | Quit Claim Deed | BOYD-GAYNOR, JAMIE A | BOYD-GAYNOR, JAMIE ALLYN | | | $0.00 | 81971 | 98010365 |
| 6 | 05/01/1996 | WD | Warranty Deed | WARNER, JOHN E | BOYD-GAYNOR, JAMIE A | | | $121,500.00 | 61920 | 96009585 |
| 7 | 02/01/1983 | QCD | Quit Claim Deed | WATERMAN, MARGARET E | SMITH, DEBRA J | | | $0.00 | 30553 | 406649 |
| 8 | 02/01/1983 | WD | Warranty Deed | SMITH, DEBRA J | WARNER, JOHN E | | | $55,500.00 | 30508 | 406522 |
| 9 | 11/01/1982 | QCD | Quit Claim Deed | SEA-1ST, NATL B | WATERMAN, MARGARET E | | | $2,000.00 | 22899 | 0 |
| 10 | 02/01/1982 | QCD | Quit Claim Deed | WATERMAN, BERNARD | SEA-1ST, NATL B | | | $0.00 | 20515 | 393724 |
| 11 | 08/01/1979 | EXECUTORD | Executor Deed | Unknown | WATERMAN, BERNARD | | | $22,000.00 | 94286 | 357990 |
Payout Agreement
| No payout information available.. |