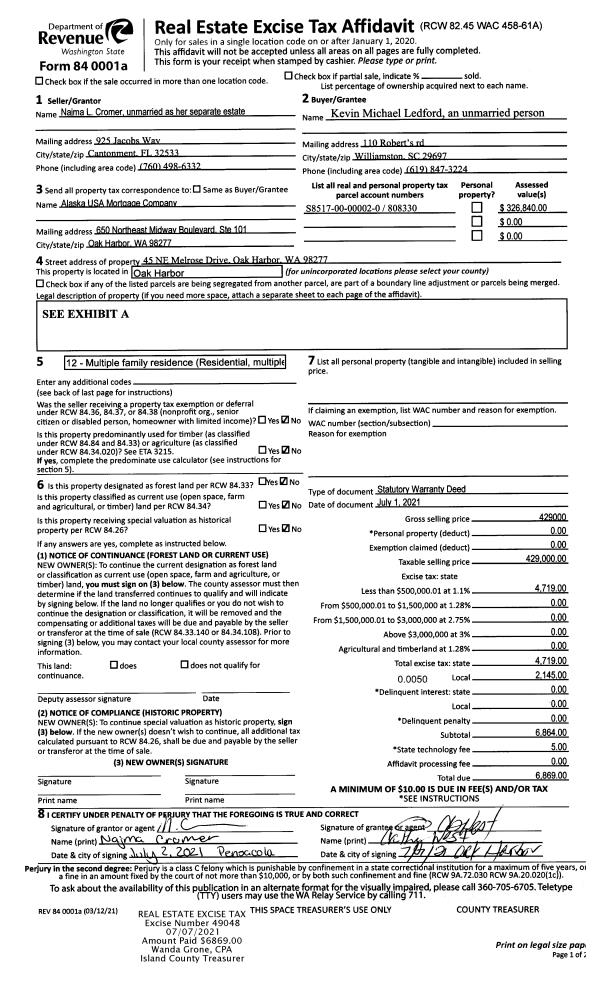
Property
Account |
| Property ID: | 524230 | Abbreviated Legal Description: | IN NW SW: BG NWCR OF NW SW N88*E675' S162.55' S88*W675 N162.55' TPB EX RD SUB EZ FR 2560730 SP 79-136 TR A |
| Geographic ID: | R32920-258-0400 | Agent Code: | |
| Type: | Real | | |
| Tax Area: | 712 - APPRAISER-S Whid Schl Dist, outside Langley, improved, greater than 1 acre | Land Use Code | 11 |
| Open Space: | N | DFL | N |
| Historic Property: | N | Remodel Property: | N |
| Multi-Family Redevelopment: | N | | |
| Township: | 29 | Section: | 20 |
| Range: | R3 |
Location |
| Address: | 6205 BAYVIEW RD CLINTON, WA 98236 | Mapsco: | |
| Neighborhood: | Cycle 4 | Map ID: | 791 |
| Neighborhood CD: | 4 |
Owner |
| Name: | REED, DENNIS P | Owner ID: | 262837 |
| Mailing Address: | JONNI L REED 6205 BAYVIEW RD CLINTON, WA 98236 | % Ownership: | 100.0000000000% |
| | | Exemptions: | |
Taxes and Assessment Details
Values
| (+) Improvement Homesite Value: | + | $0 | |
| (+) Improvement Non-Homesite Value: | + | $320,412 | |
| (+) Land Homesite Value: | + | $0 | |
| (+) Land Non-Homesite Value: | + | $380,000 | |
| (+) Curr Use (HS): | + | $0 | $0 |
| (+) Curr Use (NHS): | + | $0 | $0 |
| | | -------------------------- | |
| (=) Market Value: | = | $700,412 | |
| (–) Productivity Loss: | – | $0 | |
| | | -------------------------- | |
| (=) Subtotal: | = | $700,412 | |
| (+) Senior Appraised Value: | + | $0 | |
| (+) Non-Senior Appraised Value: | + | $700,412 | |
| | | -------------------------- | |
| (=) Total Appraised Value: | = | $700,412 | |
| (–) Senior Exemption Loss: | – | $0 | |
| (–) Exemption Loss: | – | $0 | |
| | | -------------------------- | |
| (=) Taxable Value: | = | $700,412 | |
Taxing Jurisdiction
| Owner: | REED, DENNIS P | | |
| % Ownership: | 100.0000000000% | | |
| Total Value: | $700,412 | | |
| Tax Area: | 712 - APPRAISER-S Whid Schl Dist, outside Langley, improved, greater than 1 acre |
| CF | Conservation Futures | 0.0316035091 | $700,412 | $700,412 | $22.14 | | |
| FIRE3 | Fire & Rescue Dist #3 S Whidbey GEN | 1.2004855531 | $700,412 | $700,412 | $840.83 | | |
| HOBOND | Hospital BOND | 0.1910887512 | $700,412 | $700,412 | $133.84 | | |
| HOGEN | Hospital GEN | 0.3902502903 | $700,412 | $700,412 | $273.34 | | |
| CE | County Current Expense | 0.3708482477 | $700,412 | $700,412 | $259.75 | | |
| CR | County Roads | 0.4584763726 | $700,412 | $700,412 | $321.12 | | |
| ISLANDEMS | Hospital GEN (EMS) | 0.5000000000 | $700,412 | $700,412 | $350.21 | | |
| LIB | Library Sno-Isle GEN | 0.3153421757 | $700,412 | $700,412 | $220.87 | | |
| PORTWHID | Port of S Whidbey GEN | 0.1094540357 | $700,412 | $700,412 | $76.66 | | |
| SCH206BOND | School 206 BOND | 0.3161759235 | $700,412 | $700,412 | $221.45 | | |
| SCH206MO | School 206 Enrichment | 0.4547169547 | $700,412 | $700,412 | $318.49 | | |
| ST | State School | 1.3035497053 | $700,412 | $700,412 | $913.02 | | |
| ST2 | State School Part 2 | 0.8169543533 | $700,412 | $700,412 | $572.20 | | |
| SWHIDPRBD | P & R S Whidbey BOND | 0.0152817568 | $700,412 | $700,412 | $10.70 | | |
| SWHIDPRBD2 | P & R S Whidbey BOND2 | 0.0138911264 | $700,412 | $700,412 | $9.73 | | |
| SWHIDPRMT | P & R S Whidbey GEN | 0.2053334452 | $700,412 | $700,412 | $143.82 | | |
| | Total Tax Rate: | 6.6934522006 | | | | | |
| | | | | Taxes w/Current Exemptions: | $4,688.17 | | |
| | | | | Taxes w/o Exemptions: | $4,688.17 | | |
Improvement / Building
| Improvement #1: | RESIDENTIAL | State Code: | Y | 2548.0 sqft | Value: | $320,412 |
| Bathrooms: | 1.75 | Bedrooms: | 4 | | Ceiling: | PLASTER PAINTED | Exterior Wall/Cover: | WOOD SIDING | | Floor Covering: | VINYL TILE/HARWD 20-80 | Floor Structure: | WOOD W/SUBFLOOR | | Foundation: | CONCRETE BLOCKS | Heating: | FHA OIL | | Interior Finish: | PLASTER | Plumbing Fixture Cnt: | 11 | | Roof Slope: | 8" IN 12" | Roof Structure/Cover: | CJ ASPHALT |
|
| | Type | Description | Class CD | Sub Class CD | Year Built | Area |
| | BAS | BASE/MAIN FLOOR | 4 | 0 | 1925 | 1312.0 |
| | UB6 | BASEMENT UNFINISHED 6" | 4 | 0 | 1925 | 572.0 |
| | OWP | OPEN WOOD PORCH W/STEPS | 4 | 0 | 1925 | 176.0 |
| | ENP | ENCLOSED PORCH | 4 | 0 | 1925 | 72.0 |
| | ENP | ENCLOSED PORCH | 4 | 0 | 1925 | 49.0 |
| | UPH | HALF STORY | 4 | 0 | 1925 | 664.0 |
| | DWN | DOWNSTAIRS LIVING AREA | 4 | 0 | 1925 | 572.0 |
| | CPD | OPEN CARPORT DIRT FLOOR | 4 | 0 | 1925 | 384.0 |
| | oOBD | Out Buildings | 4 | 0 | 1925 | 864.0 |
Sketch
Property Image
Land
| 1 | 18 | AC (02.01-03.00) | 0.0000 | 0.00 | 0.00 | 0.00 | 1.00 | $380,000 | $0 |
Roll Value History
| 2026 | N/A | N/A | N/A | N/A | N/A |
| 2025 | $320,412 | $380,000 | $0 | $700,412 | $700,412 |
| 2024 | $326,214 | $360,000 | $0 | $686,214 | $686,214 |
| 2023 | $332,012 | $330,000 | $0 | $662,012 | $662,012 |
| 2022 | $305,893 | $280,000 | $0 | $585,893 | $585,893 |
| 2021 | $270,565 | $260,000 | $0 | $530,565 | $530,565 |
| 2020 | $221,336 | $230,000 | $0 | $451,336 | $451,336 |
| 2019 | $174,733 | $260,000 | $0 | $434,733 | $434,733 |
| 2018 | $175,446 | $230,000 | $0 | $405,446 | $405,446 |
| 2017 | $176,873 | $180,000 | $0 | $356,873 | $356,873 |
| 2016 | $179,727 | $165,000 | $0 | $344,727 | $344,727 |
| 2015 | $182,579 | $145,000 | $0 | $327,579 | $327,579 |
| 2014 | $113,259 | $140,250 | $0 | $253,509 | $253,509 |
| 2013 | $116,034 | $140,250 | $0 | $256,284 | $256,284 |
| 2012 | $118,808 | $140,250 | $0 | $259,058 | $259,058 |
| 2011 | $121,584 | $165,000 | $0 | $286,584 | $286,584 |
| 2010 | $143,552 | $165,000 | $0 | $308,552 | $308,552 |
| 2009 | $147,872 | $200,000 | $0 | $347,872 | $347,872 |
| 2008 | $150,768 | $230,000 | $0 | $380,768 | $380,768 |
| 2007 | $153,646 | $173,040 | $0 | $326,686 | $326,686 |
Deed and Sales History
| 1 | 06/05/2013 | CCOMPROP | Create Community Property | REED, JONNI L | REED, DENNIS P | | | $0.00 | 11600 | 4341689 |
| 2 | 12/30/2002 | ESTSEPPROP | Establish Separate Property | REED, DENNIS P | REED, JONNI L | | | $0.00 | 30053 | 4043213 |
| 3 | 01/01/1988 | QCD | Quit Claim Deed | REED, DENNIS P | REED, DENNIS P | | | $0.00 | 80203 | 88000981 |
| 4 | 05/01/1985 | WD | Warranty Deed | FURMAN, PAUL E | REED, DENNIS P | | | $85,000.00 | 51349 | 85005489 |
| 5 | 01/01/1900 | OTHER | Other - Misc. Documents | Unknown | FURMAN, PAUL E | | | $0.00 | 0 | 0 |
Payout Agreement
| No payout information available.. |