Property
Account |
| Property ID: | 524338 | Abbreviated Legal Description: | E1306.7'OF FOLL DESC LY N OF EWING RD NE NE EX E917' FR 5201770 SP 79-295 LOT B |
| Geographic ID: | R32929-520-1400 | Agent Code: | |
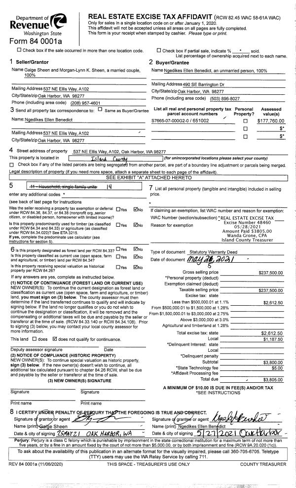
| Type: | Real | | |
| Tax Area: | 712 - APPRAISER-S Whid Schl Dist, outside Langley, improved, greater than 1 acre | Land Use Code | 11 |
| Open Space: | N | DFL | N |
| Historic Property: | N | Remodel Property: | N |
| Multi-Family Redevelopment: | N | | |
| Township: | 29 | Section: | 29 |
| Range: | R3 |
Location |
| Address: | 2901 EWING RD CLINTON, WA 98236 | Mapsco: | |
| Neighborhood: | Cycle 4 | Map ID: | 830 |
| Neighborhood CD: | 4 |
Owner |
| Name: | FLYING W PROPERTIES LLC | Owner ID: | 260636 |
| Mailing Address: | BOX 100 CLINTON, WA 98236 | % Ownership: | 100.0000000000% |
| | | Exemptions: | |
Taxes and Assessment Details
Values
| (+) Improvement Homesite Value: | + | $0 | |
| (+) Improvement Non-Homesite Value: | + | $2,000 | |
| (+) Land Homesite Value: | + | $0 | |
| (+) Land Non-Homesite Value: | + | $160,000 | |
| (+) Curr Use (HS): | + | $0 | $0 |
| (+) Curr Use (NHS): | + | $0 | $0 |
| | | -------------------------- | |
| (=) Market Value: | = | $162,000 | |
| (–) Productivity Loss: | – | $0 | |
| | | -------------------------- | |
| (=) Subtotal: | = | $162,000 | |
| (+) Senior Appraised Value: | + | $0 | |
| (+) Non-Senior Appraised Value: | + | $162,000 | |
| | | -------------------------- | |
| (=) Total Appraised Value: | = | $162,000 | |
| (–) Senior Exemption Loss: | – | $0 | |
| (–) Exemption Loss: | – | $0 | |
| | | -------------------------- | |
| (=) Taxable Value: | = | $162,000 | |
Taxing Jurisdiction
| Owner: | FLYING W PROPERTIES LLC | | |
| % Ownership: | 100.0000000000% | | |
| Total Value: | $162,000 | | |
| Tax Area: | 712 - APPRAISER-S Whid Schl Dist, outside Langley, improved, greater than 1 acre |
| CF | Conservation Futures | 0.0316035091 | $162,000 | $162,000 | $5.12 | | |
| FIRE3 | Fire & Rescue Dist #3 S Whidbey GEN | 1.2004855531 | $162,000 | $162,000 | $194.48 | | |
| HOBOND | Hospital BOND | 0.1910887512 | $162,000 | $162,000 | $30.96 | | |
| HOGEN | Hospital GEN | 0.3902502903 | $162,000 | $162,000 | $63.22 | | |
| CE | County Current Expense | 0.3708482477 | $162,000 | $162,000 | $60.08 | | |
| CR | County Roads | 0.4584763726 | $162,000 | $162,000 | $74.27 | | |
| ISLANDEMS | Hospital GEN (EMS) | 0.5000000000 | $162,000 | $162,000 | $81.00 | | |
| LIB | Library Sno-Isle GEN | 0.3153421757 | $162,000 | $162,000 | $51.09 | | |
| PORTWHID | Port of S Whidbey GEN | 0.1094540357 | $162,000 | $162,000 | $17.73 | | |
| SCH206BOND | School 206 BOND | 0.3161759235 | $162,000 | $162,000 | $51.22 | | |
| SCH206MO | School 206 Enrichment | 0.4547169547 | $162,000 | $162,000 | $73.66 | | |
| ST | State School | 1.3035497053 | $162,000 | $162,000 | $211.18 | | |
| ST2 | State School Part 2 | 0.8169543533 | $162,000 | $162,000 | $132.35 | | |
| SWHIDPRBD | P & R S Whidbey BOND | 0.0152817568 | $162,000 | $162,000 | $2.48 | | |
| SWHIDPRBD2 | P & R S Whidbey BOND2 | 0.0138911264 | $162,000 | $162,000 | $2.25 | | |
| SWHIDPRMT | P & R S Whidbey GEN | 0.2053334452 | $162,000 | $162,000 | $33.26 | | |
| | Total Tax Rate: | 6.6934522006 | | | | | |
| | | | | Taxes w/Current Exemptions: | $1,084.35 | | |
| | | | | Taxes w/o Exemptions: | $1,084.35 | | |
Improvement / Building
| Improvement #1: | RESIDENTIAL | State Code: | Y | 0.0 sqft | Value: | $2,000 |
Sketch
| No sketches available for this property. |
Property Image
Land
| 1 | 18 | AC (02.01-03.00) | 0.0000 | 0.00 | 0.00 | 0.00 | 1.00 | $160,000 | $0 |
Roll Value History
| 2026 | N/A | N/A | N/A | N/A | N/A |
| 2025 | $2,000 | $160,000 | $0 | $162,000 | $162,000 |
| 2024 | $2,000 | $150,000 | $0 | $152,000 | $152,000 |
| 2023 | $2,000 | $150,000 | $0 | $152,000 | $152,000 |
| 2022 | $2,000 | $150,000 | $0 | $152,000 | $152,000 |
| 2021 | $2,000 | $110,000 | $0 | $112,000 | $112,000 |
| 2020 | $2,000 | $110,000 | $0 | $112,000 | $112,000 |
| 2019 | $2,000 | $110,000 | $0 | $112,000 | $112,000 |
| 2018 | $2,000 | $100,000 | $0 | $102,000 | $102,000 |
| 2017 | $2,000 | $100,000 | $0 | $102,000 | $102,000 |
| 2016 | $2,000 | $135,000 | $0 | $137,000 | $137,000 |
| 2015 | $2,000 | $135,000 | $0 | $137,000 | $137,000 |
| 2014 | $10,840 | $110,500 | $0 | $121,340 | $121,340 |
| 2013 | $10,840 | $89,250 | $0 | $100,090 | $100,090 |
| 2012 | $10,840 | $89,250 | $0 | $100,090 | $100,090 |
| 2011 | $10,840 | $105,000 | $0 | $115,840 | $115,840 |
| 2010 | $10,840 | $105,000 | $0 | $115,840 | $115,840 |
| 2009 | $10,985 | $125,000 | $0 | $135,985 | $135,985 |
| 2008 | $11,135 | $77,500 | $0 | $88,635 | $88,635 |
| 2007 | $11,281 | $73,078 | $0 | $84,359 | $84,359 |
Deed and Sales History
| 1 | 12/31/2012 | QCD | Quit Claim Deed | WINDECKER, ROBERT A | FLYING W PROPERTIES LLC | | | $0.00 | 9994 | 4330371 |
| 2 | 05/01/1984 | OTHER | Other - Misc. Documents | WINDECKER, ROBERT A | WINDECKER, ROBERT A | | | $0.00 | 60599 | 0 |
| 3 | 08/01/1978 | OTHER | Other - Misc. Documents | Unknown | WINDECKER, ROBERT A | | | $27,000.00 | 84048 | 338486 |
Payout Agreement
| No payout information available.. |