Property
Account |
| Property ID: | 524409 | Abbreviated Legal Description: | LOT F SP80/49-32913-354-0270 V1 SP P41 AF#374245 |
| Geographic ID: | R32913-343-0320 | Agent Code: | |
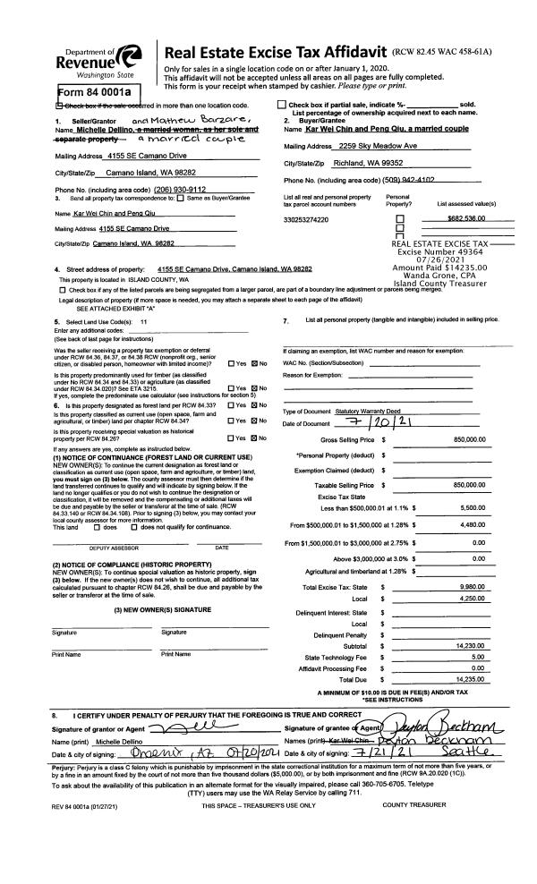
| Type: | Real | | |
| Tax Area: | 712 - APPRAISER-S Whid Schl Dist, outside Langley, improved, greater than 1 acre | Land Use Code | 11 |
| Open Space: | N | DFL | N |
| Historic Property: | N | Remodel Property: | N |
| Multi-Family Redevelopment: | N | | |
| Township: | 29 | Section: | 13 |
| Range: | R3 |
Location |
| Address: | 5730 SUMMERHILL DR LANGLEY, WA 98260 | Mapsco: | |
| Neighborhood: | Cycle 4 | Map ID: | 765 |
| Neighborhood CD: | 4 |
Owner |
| Name: | HALLGREN, TRISHA M | Owner ID: | 130750 |
| Mailing Address: | PO BOX 74 CLINTON, WA 98236 | % Ownership: | 100.0000000000% |
| | | Exemptions: | SNR/DSBL |
Taxes and Assessment Details
Values
| (+) Improvement Homesite Value: | + | $374,085 | |
| (+) Improvement Non-Homesite Value: | + | $105,450 | |
| (+) Land Homesite Value: | + | $0 | |
| (+) Land Non-Homesite Value: | + | $380,000 | |
| (+) Curr Use (HS): | + | $0 | $0 |
| (+) Curr Use (NHS): | + | $0 | $0 |
| | | -------------------------- | |
| (=) Market Value: | = | $859,535 | |
| (–) Productivity Loss: | – | $0 | |
| | | -------------------------- | |
| (=) Subtotal: | = | $859,535 | |
| (+) Senior Appraised Value: | + | $374,085 | |
| (+) Non-Senior Appraised Value: | + | $485,450 | |
| | | -------------------------- | |
| (=) Total Appraised Value: | = | $859,535 | |
| (–) Senior Exemption Loss: | – | $70,000 | |
| (–) Exemption Loss: | – | $0 | |
| | | -------------------------- | |
| (=) Taxable Value: | = | $789,535 | |
Taxing Jurisdiction
| Owner: | HALLGREN, TRISHA M | | |
| % Ownership: | 100.0000000000% | | |
| Total Value: | $859,535 | | |
| Tax Area: | 712 - APPRAISER-S Whid Schl Dist, outside Langley, improved, greater than 1 acre |
| CF | Conservation Futures | 0.0316035091 | $859,535 | $789,535 | $24.95 | | |
| FIRE3 | Fire & Rescue Dist #3 S Whidbey GEN | 1.2004855531 | $859,535 | $789,535 | $947.83 | | |
| HOBOND | Hospital BOND | 0.0000000000 | $859,535 | $485,450 | $92.76 | | |
| HOGEN | Hospital GEN | 0.3902502903 | $859,535 | $789,535 | $308.12 | | |
| CE | County Current Expense | 0.3708482477 | $859,535 | $789,535 | $292.80 | | |
| CR | County Roads | 0.4584763726 | $859,535 | $789,535 | $361.98 | | |
| ISLANDEMS | Hospital GEN (EMS) | 0.5000000000 | $859,535 | $789,535 | $394.77 | | |
| LIB | Library Sno-Isle GEN | 0.3153421757 | $859,535 | $789,535 | $248.97 | | |
| PORTWHID | Port of S Whidbey GEN | 0.1094540357 | $859,535 | $789,535 | $86.42 | | |
| SCH206BOND | School 206 BOND | 0.3161759235 | $859,535 | $789,535 | $249.63 | | |
| SCH206MO | School 206 Enrichment | 0.0000000000 | $859,535 | $485,450 | $220.74 | | |
| ST | State School | 1.3035497053 | $859,535 | $789,535 | $1,029.20 | | |
| ST2 | State School Part 2 | 0.0000000000 | $859,535 | $485,450 | $396.59 | | |
| SWHIDPRBD | P & R S Whidbey BOND | 0.0000000000 | $859,535 | $485,450 | $7.42 | | |
| SWHIDPRBD2 | P & R S Whidbey BOND2 | 0.0000000000 | $859,535 | $485,450 | $6.74 | | |
| SWHIDPRMT | P & R S Whidbey GEN | 0.2053334452 | $859,535 | $789,535 | $162.12 | | |
| | Total Tax Rate: | 5.2015192582 | | | | | |
| | | | | Taxes w/Current Exemptions: | $4,831.04 | | |
| | | | | Taxes w/o Exemptions: | $5,753.27 | | |
Improvement / Building
| Improvement #1: | RESIDENTIAL | State Code: | Y | 2465.0 sqft | Value: | $479,535 |
| Bathrooms: | 3 | Bedrooms: | 3 | | Ceiling: | TONGUE & GROOVE | Exterior Wall/Cover: | LOG TO 10" | | Floor Covering: | HARDWOOD/CARP 20-80 | Floor Structure: | WOOD W/SUBFLOOR | | Foundation: | CONCRETE | Heating: | BASEBOARD ELECTRIC | | Interior Finish: | DRYWALL PAINT | Plumbing Fixture Cnt: | 12 | | Roof Slope: | 5" IN 12" | Roof Structure/Cover: | BEAM ALUMINUM HEAVY |
|
| | Type | Description | Class CD | Sub Class CD | Year Built | Area |
| | BAS | BASE/MAIN FLOOR | 4 | 0 | 1979 | 2465.0 |
| | OWP | OPEN WOOD PORCH W/STEPS | 4 | 0 | 1979 | 72.0 |
| | OWR | OPEN WOOD PORCH W/STEPS/ROOF | 4 | 0 | 1979 | 252.0 |
| | OWP | OPEN WOOD PORCH W/STEPS | 4 | 0 | 1979 | 72.0 |
| | OWR | OPEN WOOD PORCH W/STEPS/ROOF | 4 | 0 | 1979 | 320.0 |
| | DGR | DETACHED GARAGE | 4 | 0 | 1979 | 400.0 |
| | oOBD | Out Buildings | 4 | 0 | 1979 | 0.0 |
Sketch
Property Image
Land
| 1 | 18 | AC (02.01-03.00) | 0.0000 | 0.00 | 0.00 | 0.00 | 1.00 | $380,000 | $0 |
Roll Value History
| 2026 | N/A | N/A | N/A | N/A | N/A |
| 2025 | $479,535 | $380,000 | $0 | $859,535 | $789,535 |
| 2024 | $522,030 | $360,000 | $0 | $882,030 | $812,030 |
| 2023 | $528,319 | $330,000 | $0 | $858,319 | $858,319 |
| 2022 | $486,933 | $280,000 | $0 | $766,933 | $766,933 |
| 2021 | $432,280 | $260,000 | $0 | $692,280 | $692,280 |
| 2020 | $409,436 | $230,000 | $0 | $639,436 | $639,436 |
| 2019 | $315,105 | $260,000 | $0 | $575,105 | $575,105 |
| 2018 | $315,981 | $230,000 | $0 | $545,981 | $545,981 |
| 2017 | $317,735 | $200,000 | $0 | $517,735 | $517,735 |
| 2016 | $321,244 | $150,000 | $0 | $471,244 | $471,244 |
| 2015 | $324,753 | $150,000 | $0 | $474,753 | $474,753 |
| 2014 | $311,877 | $150,000 | $0 | $461,877 | $461,877 |
| 2013 | $320,780 | $125,000 | $0 | $445,780 | $445,780 |
| 2012 | $324,439 | $139,500 | $0 | $463,939 | $463,939 |
| 2011 | $328,098 | $155,000 | $0 | $483,098 | $483,098 |
| 2010 | $347,516 | $155,000 | $0 | $502,516 | $502,516 |
| 2009 | $360,884 | $175,000 | $0 | $535,884 | $535,884 |
| 2008 | $361,806 | $290,000 | $0 | $651,806 | $651,806 |
| 2007 | $363,130 | $290,000 | $0 | $653,130 | $653,130 |
Deed and Sales History
| 1 | 02/12/2009 | DECREE | Divorce Decree/Legal Separation | REITHAAR, TRISHA M | HALLGREN, TRISHA M | | | $0.00 | 90302 | 4244577 |
| 2 | 03/01/1997 | WD | Warranty Deed | SURFAS, FRANK N | REITHAAR, TRISHA M | | | $227,500.00 | 70779 | 97003491 |
| 3 | 03/01/1993 | QCD | Quit Claim Deed | SURFAS, FRANKLIN N | SURFAS, FRANK N | | | $0.00 | 30776 | 93003988 |
| 4 | 08/01/1989 | WD | Warranty Deed | BARNHART, DOUGLAS L | SURFAS, FRANKLIN N | | | $185,000.00 | 93476 | 89011632 |
| 5 | 08/01/1989 | WD | Warranty Deed | SURFAS, FRANKLIN N | SURFAS, FRANKLIN N | | | $0.00 | 94341 | 89014187 |
| 6 | 05/01/1986 | WD | Warranty Deed | GILBERTSON, ALAN T | BARNHART, DOUGLAS L | | | $140,000.00 | 61290 | 86006101 |
| 7 | 01/01/1900 | OTHER | Other - Misc. Documents | Unknown | GILBERTSON, ALAN T | | | $0.00 | 0 | 0 |
Payout Agreement
| No payout information available.. |