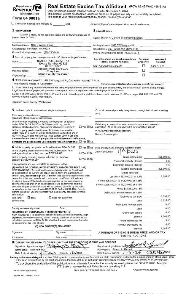
Property
Account |
| Property ID: | 524677 | Abbreviated Legal Description: | MOBILE ON PARCEL IN NE SE: BG NECR NE SE N88*W1321.54' S1*W135' TPB S1*W1081.81' N17*E712.73' N25*W446.38' TPB SUB EZ SUB EZ A#60479 AF#408597 FR 205-4040 TR B SP 79-221 |
| Geographic ID: | R23334-215-4070 | Agent Code: | |
| Type: | Real | | |
| Tax Area: | 112 - APPRAISER-OH Schl Dist, outside OH, improved, greater than 1 acre | Land Use Code | 11 |
| Open Space: | N | DFL | N |
| Historic Property: | N | Remodel Property: | N |
| Multi-Family Redevelopment: | N | | |
| Township: | 33 | Section: | 34 |
| Range: | R2 |
Location |
| Address: | 2549 LAKE FOREST DR OAK HARBOR, WA 98277 | Mapsco: | |
| Neighborhood: | Cycle 6 | Map ID: | 656 |
| Neighborhood CD: | 6 |
Owner |
| Name: | BAIRD, VICTORIA B | Owner ID: | 158854 |
| Mailing Address: | 2549 LAKE FOREST DR OAK HARBOR, WA 98277-8676 | % Ownership: | 100.0000000000% |
| | | Exemptions: | |
Taxes and Assessment Details
Values
| (+) Improvement Homesite Value: | + | $0 | |
| (+) Improvement Non-Homesite Value: | + | $4,000 | |
| (+) Land Homesite Value: | + | $0 | |
| (+) Land Non-Homesite Value: | + | $120,000 | |
| (+) Curr Use (HS): | + | $0 | $0 |
| (+) Curr Use (NHS): | + | $0 | $0 |
| | | -------------------------- | |
| (=) Market Value: | = | $124,000 | |
| (–) Productivity Loss: | – | $0 | |
| | | -------------------------- | |
| (=) Subtotal: | = | $124,000 | |
| (+) Senior Appraised Value: | + | $0 | |
| (+) Non-Senior Appraised Value: | + | $124,000 | |
| | | -------------------------- | |
| (=) Total Appraised Value: | = | $124,000 | |
| (–) Senior Exemption Loss: | – | $0 | |
| (–) Exemption Loss: | – | $0 | |
| | | -------------------------- | |
| (=) Taxable Value: | = | $124,000 | |
Taxing Jurisdiction
| Owner: | BAIRD, VICTORIA B | | |
| % Ownership: | 100.0000000000% | | |
| Total Value: | $124,000 | | |
| Tax Area: | 112 - APPRAISER-OH Schl Dist, outside OH, improved, greater than 1 acre |
| CF | Conservation Futures | 0.0316035091 | $124,000 | $124,000 | $3.92 | | |
| CEM1 | Cemetery #1 | 0.0040320932 | $124,000 | $124,000 | $0.50 | | |
| FIRE2 | Fire & Rescue Dist #2 N Whidbey GEN | 0.5475949600 | $124,000 | $124,000 | $67.90 | | |
| HOBOND | Hospital BOND | 0.1910887512 | $124,000 | $124,000 | $23.70 | | |
| HOGEN | Hospital GEN | 0.3902502903 | $124,000 | $124,000 | $48.39 | | |
| CE | County Current Expense | 0.3708482477 | $124,000 | $124,000 | $45.99 | | |
| CR | County Roads | 0.4584763726 | $124,000 | $124,000 | $56.85 | | |
| ISLANDEMS | Hospital GEN (EMS) | 0.5000000000 | $124,000 | $124,000 | $62.00 | | |
| LIB | Library Sno-Isle GEN | 0.3153421757 | $124,000 | $124,000 | $39.10 | | |
| NWHIDPRMT | P & R N Whidbey GEN | 0.2004466701 | $124,000 | $124,000 | $24.86 | | |
| SCH201MO | School 201 Enrichment | 1.8559231640 | $124,000 | $124,000 | $230.13 | | |
| ST | State School | 1.3035497053 | $124,000 | $124,000 | $161.64 | | |
| ST2 | State School Part 2 | 0.8169543533 | $124,000 | $124,000 | $101.30 | | |
| | Total Tax Rate: | 6.9861102925 | | | | | |
| | | | | Taxes w/Current Exemptions: | $866.28 | | |
| | | | | Taxes w/o Exemptions: | $866.28 | | |
Improvement / Building
| Improvement #1: | RESIDENTIAL | State Code: | Y | 0.0 sqft | Value: | $4,000 |
Sketch
Property Image
Land
| 1 | 18 | AC (02.01-03.00) | 2.5100 | 109335.60 | 0.00 | 0.00 | 1.00 | $120,000 | $0 |
Roll Value History
| 2026 | N/A | N/A | N/A | N/A | N/A |
| 2025 | $4,000 | $120,000 | $0 | $124,000 | $124,000 |
| 2024 | $4,000 | $110,000 | $0 | $114,000 | $114,000 |
| 2023 | $44,751 | $220,000 | $0 | $264,751 | $264,751 |
| 2022 | $27,125 | $210,000 | $0 | $237,125 | $237,125 |
| 2021 | $25,015 | $160,000 | $0 | $185,015 | $185,015 |
| 2020 | $26,369 | $140,000 | $0 | $166,369 | $166,369 |
| 2019 | $21,864 | $200,000 | $0 | $221,864 | $221,864 |
| 2018 | $22,957 | $170,000 | $0 | $192,957 | $192,957 |
| 2017 | $24,050 | $150,000 | $0 | $174,050 | $174,050 |
| 2016 | $22,957 | $120,000 | $0 | $142,957 | $142,957 |
| 2015 | $24,050 | $100,000 | $0 | $124,050 | $124,050 |
| 2014 | $25,144 | $100,000 | $0 | $125,144 | $125,144 |
| 2013 | $26,237 | $90,000 | $0 | $116,237 | $116,237 |
| 2012 | $27,877 | $108,000 | $0 | $135,877 | $135,877 |
| 2011 | $28,970 | $120,000 | $0 | $148,970 | $148,970 |
| 2010 | $35,834 | $120,000 | $0 | $155,834 | $155,834 |
| 2009 | $38,135 | $145,000 | $0 | $183,135 | $183,135 |
| 2008 | $39,747 | $145,000 | $0 | $184,747 | $184,747 |
| 2007 | $41,373 | $145,000 | $0 | $186,373 | $186,373 |
Deed and Sales History
| 1 | 10/01/1995 | OTHER | Other - Misc. Documents | BAIRD, VICTORIA B | BAIRD, VICTORIA B | | | $26,000.00 | 53833 | 0 |
| 2 | 10/01/1995 | WD | Warranty Deed | FREEDMAN, GARY / | BAIRD, VICTORIA B | | | $89,000.00 | 53832 | 95017547 |
| 3 | 09/01/1994 | OTHER | Other - Misc. Documents | FREEDMAN, GARY & | FREEDMAN, GARY / | | | $24,608.00 | 43606 | 0 |
| 4 | 08/01/1994 | WD | Warranty Deed | DALTON, DAVID L | FREEDMAN, GARY & | | | $83,892.00 | 43605 | 94019024 |
| 5 | 01/01/1993 | OTHER | Other - Misc. Documents | DALTON, DAVID L | DALTON, DAVID L | | | $55,245.00 | 30149 | 0 |
| 6 | 12/01/1992 | WD | Warranty Deed | MUNGUIA, FRANK A | DALTON, DAVID L | | | $24,755.00 | 25140 | 92025295 |
| 7 | 08/01/1983 | WD | Warranty Deed | MUNGUIA, FRANK A | MUNGUIA, FRANK A | | | $0.00 | 32470 | 414372 |
| 8 | 03/01/1983 | WD | Warranty Deed | MASSEY, WILLIAM L | MUNGUIA, FRANK A | | | $17,000.00 | 30684 | 407249 |
| 9 | 01/01/1900 | OTHER | Other - Misc. Documents | Unknown | MASSEY, WILLIAM L | | | $0.00 | 0 | 0 |
Payout Agreement
| No payout information available.. |