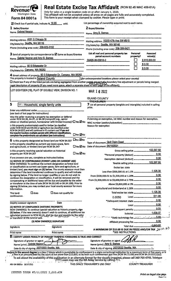
Property
Account |
| Property ID: | 524757 | Abbreviated Legal Description: | S123.29' OF N2675.29' OF SEC 24 LY ELY OF E CAMANO DR SUB TGW EZ FR 2701810 SP 79/241 TR 1-A |
| Geographic ID: | R33024-271-1830 | Agent Code: | |
| Type: | Real | | |
| Tax Area: | 542 - APPRAISER-Stan/Cam Schl Dist, Special Dist, improved, greater than 1 acre | Land Use Code | 11 |
| Open Space: | N | DFL | N |
| Historic Property: | N | Remodel Property: | N |
| Multi-Family Redevelopment: | N | | |
| Township: | 30 | Section: | 24 |
| Range: | R3 |
Location |
| Address: | 3781 BRAZEAL PL CAMANO ISLAND, WA 98282 | Mapsco: | |
| Neighborhood: | 58RecamNB-East Cam | Map ID: | 887 |
| Neighborhood CD: | 58RecamNB |
Owner |
| Name: | BRAZEAL CO TRUSTEE, MICHAEL LYNN | Owner ID: | 277199 |
| Mailing Address: | CATHIE LOUISE BRAZEAL CO TRUSTEE 3781 BRAZEAL PL CAMANO ISLAND, WA 98282 | % Ownership: | 100.0000000000% |
| | | Exemptions: | |
Taxes and Assessment Details
Values
| (+) Improvement Homesite Value: | + | $0 | |
| (+) Improvement Non-Homesite Value: | + | $427,760 | |
| (+) Land Homesite Value: | + | $0 | |
| (+) Land Non-Homesite Value: | + | $425,000 | |
| (+) Curr Use (HS): | + | $0 | $0 |
| (+) Curr Use (NHS): | + | $0 | $0 |
| | | -------------------------- | |
| (=) Market Value: | = | $852,760 | |
| (–) Productivity Loss: | – | $0 | |
| | | -------------------------- | |
| (=) Subtotal: | = | $852,760 | |
| (+) Senior Appraised Value: | + | $0 | |
| (+) Non-Senior Appraised Value: | + | $852,760 | |
| | | -------------------------- | |
| (=) Total Appraised Value: | = | $852,760 | |
| (–) Senior Exemption Loss: | – | $0 | |
| (–) Exemption Loss: | – | $0 | |
| | | -------------------------- | |
| (=) Taxable Value: | = | $852,760 | |
Taxing Jurisdiction
| Owner: | BRAZEAL CO TRUSTEE, MICHAEL LYNN | | |
| % Ownership: | 100.0000000000% | | |
| Total Value: | $852,760 | | |
| Tax Area: | 542 - APPRAISER-Stan/Cam Schl Dist, Special Dist, improved, greater than 1 acre |
| CF | Conservation Futures | 0.0316035091 | $852,760 | $852,760 | $26.95 | | |
| EMS1 | Fire & Rescue Dist #1 Camano GEN (EMS) | 0.3677864386 | $852,760 | $852,760 | $313.63 | | |
| FIRE1 | Fire & Rescue Dist #1 Camano GEN | 1.2502910536 | $852,760 | $852,760 | $1,066.20 | | |
| FIRE1BOND | Fire & Rescue Dist #1 Camano BOND | 0.1570001679 | $852,760 | $852,760 | $133.88 | | |
| CE | County Current Expense | 0.3708482477 | $852,760 | $852,760 | $316.24 | | |
| CR | County Roads | 0.4584763726 | $852,760 | $852,760 | $390.97 | | |
| LCIB | Library Sno-Isle BOND (Camano Island) | 0.0396325772 | $852,760 | $852,760 | $33.80 | | |
| LIB | Library Sno-Isle GEN | 0.3153421757 | $852,760 | $852,760 | $268.91 | | |
| SCH205_401 | School 205-401 Enrichment | 1.2698420524 | $852,760 | $852,760 | $1,082.87 | | |
| SCH205BOND | School 205-401 BOND | 0.9396497583 | $852,760 | $852,760 | $801.30 | | |
| ST | State School | 1.3035497053 | $852,760 | $852,760 | $1,111.62 | | |
| ST2 | State School Part 2 | 0.8169543533 | $852,760 | $852,760 | $696.67 | | |
| | Total Tax Rate: | 7.3209764117 | | | | | |
| | | | | Taxes w/Current Exemptions: | $6,243.04 | | |
| | | | | Taxes w/o Exemptions: | $6,243.04 | | |
Improvement / Building
| Improvement #1: | RESIDENTIAL | State Code: | Y | 1891.1 sqft | Value: | $427,760 |
| Bathrooms: | 2 | Bedrooms: | 3 | | Ceiling: | DRYWALL PAINTED | Cooling: | HEAT PUMP/CONV/V | | Exterior Wall/Cover: | CEMENT FIBER | Floor Covering: | VINYL TILE | | Floor Structure: | WOOD W/SUBFLOOR | Foundation: | CONCRETE | | Interior Finish: | DRYWALL PAINT | Plumbing Fixture Cnt: | 12 | | Roof Slope: | 10" IN 12" | Roof Structure/Cover: | BEAM ASPHALT |
|
| | Type | Description | Class CD | Sub Class CD | Year Built | Area |
| | BAS | BASE/MAIN FLOOR | 3 | 0 | 2020 | 1891.1 |
| | AGR | ATTACHED GARAGE | 3 | 0 | 2020 | 848.5 |
| | OP1 | OPEN PORCH SLAB | 3 | 0 | 2020 | 309.7 |
| | OP4 | OPEN PORCH W/CEILING-ROOF | 3 | 0 | 2020 | 98.6 |
| | UTY | STORAGE/UTILITY | 3 | 0 | 2020 | 200.0 |
Sketch
Property Image
Land
| 1 | HB | HIGH BLUFF | 2.6100 | 113691.60 | 128.00 | 0.00 | 1.00 | $425,000 | $0 |
Roll Value History
| 2026 | N/A | N/A | N/A | N/A | N/A |
| 2025 | $427,760 | $425,000 | $0 | $852,760 | $852,760 |
| 2024 | $431,181 | $400,000 | $0 | $831,181 | $831,181 |
| 2023 | $434,603 | $400,000 | $0 | $834,603 | $834,603 |
| 2022 | $397,667 | $350,000 | $0 | $747,667 | $747,667 |
| 2021 | $316,381 | $250,000 | $0 | $566,381 | $566,381 |
| 2020 | $310,869 | $225,000 | $0 | $535,869 | $535,869 |
| 2019 | $0 | $150,000 | $0 | $150,000 | $150,000 |
| 2018 | $0 | $150,000 | $0 | $150,000 | $150,000 |
| 2017 | $0 | $70,000 | $0 | $70,000 | $70,000 |
| 2016 | $0 | $30,000 | $0 | $30,000 | $30,000 |
| 2015 | $0 | $30,000 | $0 | $30,000 | $30,000 |
| 2014 | $0 | $30,000 | $0 | $30,000 | $30,000 |
| 2013 | $0 | $79,797 | $0 | $79,797 | $79,797 |
| 2012 | $0 | $79,797 | $0 | $79,797 | $79,797 |
| 2011 | $0 | $99,746 | $0 | $99,746 | $99,746 |
| 2010 | $0 | $142,495 | $0 | $142,495 | $142,495 |
| 2009 | $0 | $169,487 | $0 | $169,487 | $169,487 |
| 2008 | $0 | $169,460 | $0 | $169,460 | $169,460 |
| 2007 | $0 | $169,460 | $0 | $169,460 | $169,460 |
Deed and Sales History
| 1 | 10/06/2016 | WD | Warranty Deed | KIM, RONALD Y | BRAZEAL CO TRUSTEE, MICHAEL LYNN | | | $212,000.00 | 26543 | 4409357 |
|   | |
| 2 | 12/31/2011 | ESTSEPPROP | Establish Separate Property | KIM, RONALD Y | KIM, RONALD Y | | | $0.00 | 26544 | 4409358 |
| 3 | 06/16/2015 | PRD | Personal Representatives Deed | KIM, KIEUN | KIM, RONALD Y | | | $0.00 | 21451 | 4386451 |
| 4 | 12/31/2011 | DECREE | Divorce Decree/Legal Separation | KIM, SUN SOOK | KIM, KIEUN | | | $0.00 | 9080 | 4324497 |
| 5 | 07/18/2003 | WD | Warranty Deed | KIM, SUN SOOK | KIM, SUN SOOK | | | $0.00 | 33288 | 4125145 |
| 6 | 07/18/2003 | ESTSEPPROP | Establish Separate Property | KIM, SUN SOOK | KIM, SUN SOOK | | | $0.00 | 33289 | 4068871 |
| 7 | 07/18/2003 | WD | Warranty Deed | TANSELLI, CRAIG A | KIM, SUN SOOK | | | $60,570.00 | 33288 | 4068870 |
| 8 | 05/05/1998 | QCD | Quit Claim Deed | TANSELLI, CRAIG A | TANSELLI, CRAIG A | | | $0.00 | 81661 | 98008904 |
| 9 | 08/01/1978 | OTHER | Other - Misc. Documents | Unknown | TANSELLI, PHILLIP P | | | $0.00 | 91663 | 350742 |
| 10 | 01/01/1900 | OTHER | Other - Misc. Documents | TANSELLI, PHILLIP P | TANSELLI, CRAIG A | | | $0.00 | 81661 | 98008904 |
Payout Agreement
| No payout information available.. |