Property
Account |
| Property ID: | 525024 | Abbreviated Legal Description: | 27 - IN GL1: BG SWCR NW NW S89*E330' N765.55' TO NLN RD N34*E211.58' N55*W180' TPB S55*E180' TO RD N34*E 175' N55*W180' SWLY ALG SHRLN TPB EX SWLY 60' INCL ADJ TIDES TGW EZ DESC AF#413874 FR 504-0430 |
| Geographic ID: | R13218-502-0490 | Agent Code: | |
| Type: | Real | | |
| Tax Area: | 110 - APPRAISER-OH Schl Dist, outside OH, improved & 1 acre or less | Land Use Code | 11 |
| Open Space: | N | DFL | N |
| Historic Property: | N | Remodel Property: | N |
| Multi-Family Redevelopment: | N | | |
| Township: | 32 | Section: | 18 |
| Range: | R1 |
Location |
| Address: | 1585 WEST BEACH RD OAK HARBOR, WA 98277 | Mapsco: | |
| Neighborhood: | Cycle 1 | Map ID: | 139 |
| Neighborhood CD: | 1 |
Owner |
| Name: | DHANDAPANI, SURESH | Owner ID: | 288261 |
| Mailing Address: | AMELA MESAK 1585 WEST BEACH RD OAK HARBOR, WA 98277 | % Ownership: | 100.0000000000% |
| | | Exemptions: | |
Taxes and Assessment Details
Values
| (+) Improvement Homesite Value: | + | $0 | |
| (+) Improvement Non-Homesite Value: | + | $505,203 | |
| (+) Land Homesite Value: | + | $0 | |
| (+) Land Non-Homesite Value: | + | $526,750 | |
| (+) Curr Use (HS): | + | $0 | $0 |
| (+) Curr Use (NHS): | + | $0 | $0 |
| | | -------------------------- | |
| (=) Market Value: | = | $1,031,953 | |
| (–) Productivity Loss: | – | $0 | |
| | | -------------------------- | |
| (=) Subtotal: | = | $1,031,953 | |
| (+) Senior Appraised Value: | + | $0 | |
| (+) Non-Senior Appraised Value: | + | $1,031,953 | |
| | | -------------------------- | |
| (=) Total Appraised Value: | = | $1,031,953 | |
| (–) Senior Exemption Loss: | – | $0 | |
| (–) Exemption Loss: | – | $0 | |
| | | -------------------------- | |
| (=) Taxable Value: | = | $1,031,953 | |
Taxing Jurisdiction
| Owner: | DHANDAPANI, SURESH | | |
| % Ownership: | 100.0000000000% | | |
| Total Value: | $1,031,953 | | |
| Tax Area: | 110 - APPRAISER-OH Schl Dist, outside OH, improved & 1 acre or less |
| CF | Conservation Futures | 0.0316035091 | $1,031,953 | $1,031,953 | $32.61 | | |
| CEM1 | Cemetery #1 | 0.0040320932 | $1,031,953 | $1,031,953 | $4.16 | | |
| FIRE2 | Fire & Rescue Dist #2 N Whidbey GEN | 0.5475949600 | $1,031,953 | $1,031,953 | $565.09 | | |
| HOBOND | Hospital BOND | 0.1910887512 | $1,031,953 | $1,031,953 | $197.19 | | |
| HOGEN | Hospital GEN | 0.3902502903 | $1,031,953 | $1,031,953 | $402.72 | | |
| CE | County Current Expense | 0.3708482477 | $1,031,953 | $1,031,953 | $382.70 | | |
| CR | County Roads | 0.4584763726 | $1,031,953 | $1,031,953 | $473.13 | | |
| ISLANDEMS | Hospital GEN (EMS) | 0.5000000000 | $1,031,953 | $1,031,953 | $515.98 | | |
| LIB | Library Sno-Isle GEN | 0.3153421757 | $1,031,953 | $1,031,953 | $325.42 | | |
| NWHIDPRMT | P & R N Whidbey GEN | 0.2004466701 | $1,031,953 | $1,031,953 | $206.85 | | |
| SCH201MO | School 201 Enrichment | 1.8559231640 | $1,031,953 | $1,031,953 | $1,915.23 | | |
| ST | State School | 1.3035497053 | $1,031,953 | $1,031,953 | $1,345.20 | | |
| ST2 | State School Part 2 | 0.8169543533 | $1,031,953 | $1,031,953 | $843.06 | | |
| | Total Tax Rate: | 6.9861102925 | | | | | |
| | | | | Taxes w/Current Exemptions: | $7,209.34 | | |
| | | | | Taxes w/o Exemptions: | $7,209.34 | | |
Improvement / Building
| Improvement #1: | RESIDENTIAL | State Code: | Y | 1991.2 sqft | Value: | $505,203 |
| Bathrooms: | 2 | Bedrooms: | 2 | | Ceiling: | DRYWALL PAINTED | Cooling: | HEAT PUMP/CONV/V | | Exterior Wall/Cover: | WOOD SIDING | Floor Covering: | VINYL 100% | | Floor Structure: | WOOD W/SUBFLOOR | Foundation: | CONCRETE | | Interior Finish: | DRYWALL PAINT | Plumbing Fixture Cnt: | 9 | | Roof Slope: | 6" IN 12" | Roof Structure/Cover: | CJ ALUMINIUM HEAVY |
|
| | Type | Description | Class CD | Sub Class CD | Year Built | Area |
| | BAS | BASE/MAIN FLOOR | 4 | 0 | 1981 | 1991.2 |
| | OP1 | OPEN PORCH SLAB | 4 | 0 | 1981 | 234.0 |
| | OP4 | OPEN PORCH W/CEILING-ROOF | 4 | 0 | 1981 | 110.0 |
| | DGR | DETACHED GARAGE | 4 | 0 | 1981 | 585.6 |
| | OWP | OPEN WOOD PORCH W/STEPS | 4 | 0 | 1981 | 308.0 |
| | OWP | OPEN WOOD PORCH W/STEPS | 4 | 0 | 1981 | 97.5 |
Sketch
Property Image
Land
| 1 | MB | MEDIUM BANK | 0.4700 | 20473.20 | 115.00 | 0.00 | 1.00 | $525,000 | $0 |
| 2 | 55 | TIDES | 0.0000 | 0.00 | 175.00 | 0.00 | 1.00 | $1,750 | $0 |
Roll Value History
| 2026 | N/A | N/A | N/A | N/A | N/A |
| 2025 | $505,203 | $526,750 | $0 | $1,031,953 | $1,031,953 |
| 2024 | $509,449 | $491,750 | $0 | $1,001,199 | $1,001,199 |
| 2023 | $509,449 | $491,750 | $0 | $1,001,199 | $1,001,199 |
| 2022 | $465,404 | $451,750 | $0 | $917,154 | $917,154 |
| 2021 | $407,814 | $351,750 | $0 | $759,564 | $759,564 |
| 2020 | $385,637 | $351,750 | $0 | $737,387 | $737,387 |
| 2019 | $293,418 | $401,750 | $0 | $695,168 | $695,168 |
| 2018 | $242,807 | $351,750 | $0 | $594,557 | $594,557 |
| 2017 | $214,972 | $351,750 | $0 | $566,722 | $566,722 |
| 2016 | $217,661 | $351,750 | $0 | $569,411 | $569,411 |
| 2015 | $220,346 | $351,750 | $0 | $572,096 | $572,096 |
| 2014 | $223,035 | $351,750 | $0 | $574,785 | $574,785 |
| 2013 | $190,274 | $250,079 | $0 | $440,353 | $440,353 |
| 2012 | $193,009 | $250,079 | $0 | $443,088 | $443,088 |
| 2011 | $195,936 | $250,079 | $0 | $446,015 | $446,015 |
| 2010 | $210,778 | $250,079 | $0 | $460,857 | $460,857 |
| 2009 | $219,875 | $353,722 | $0 | $573,597 | $573,597 |
| 2008 | $222,651 | $353,722 | $0 | $576,373 | $576,373 |
| 2007 | $222,666 | $352,497 | $0 | $575,163 | $575,163 |
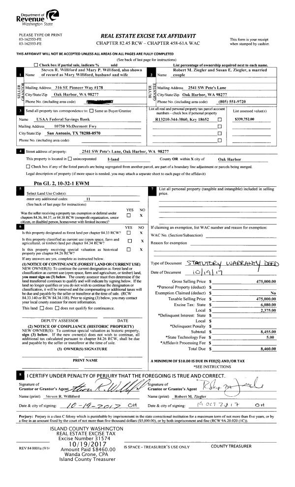
Deed and Sales History
| 1 | 12/11/2018 | WD | Warranty Deed | LANDRY, KARMIN K | DHANDAPANI, SURESH | | | $940,000.00 | 37018 | 4456699 |
| 2 | 10/06/2017 | QCD | Quit Claim Deed | LANDRY, IAN M | LANDRY, KARMIN K | | | $0.00 | 31582 | 4432445 |
| 3 | 07/09/2013 | WD | Warranty Deed | ROSSE, CORNELIUS | LANDRY, IAN M | | | $625,000.00 | 11949 | 4343664 |
| 4 | 06/01/1988 | WD | Warranty Deed | WILLIAMS, JANICE W | ROSSE, CORNELIUS | | | $188,000.00 | 82075 | 88007669 |
| 5 | 08/01/1983 | CD | DNU - Correction Deed | WILLIAMS, JANICE W | WILLIAMS, JANICE W | | | $0.00 | 60191 | 413874 |
| 6 | 12/01/1980 | CD | DNU - Correction Deed | WILLIAMS, RICHARD H | WILLIAMS, JANICE W | | | $0.00 | 10028 | 377998 |
| 7 | 12/01/1980 | EXECUTORD | Executor Deed | PRINCE, ROBERT W | WILLIAMS, RICHARD H | | | $50,000.00 | 10027 | 377997 |
Payout Agreement
| No payout information available.. |