Property
Account |
| Property ID: | 525131 | Abbreviated Legal Description: | BG NWCR T S DAVIS DLC S1*W 48.18' N88*W1133' N1*E113 .34' N46*W82' N1*E60.66' TPB N1*E205.36' N55*E140' S7*E207.06' N85*W80' S37*W 106.98' TPB TGW & SUBJ TO EZ FR 130-4050 (LOT 3 SP 78-153 AF#376966) |
| Geographic ID: | R13232-114-4030 | Agent Code: | |
| Type: | Real | | |
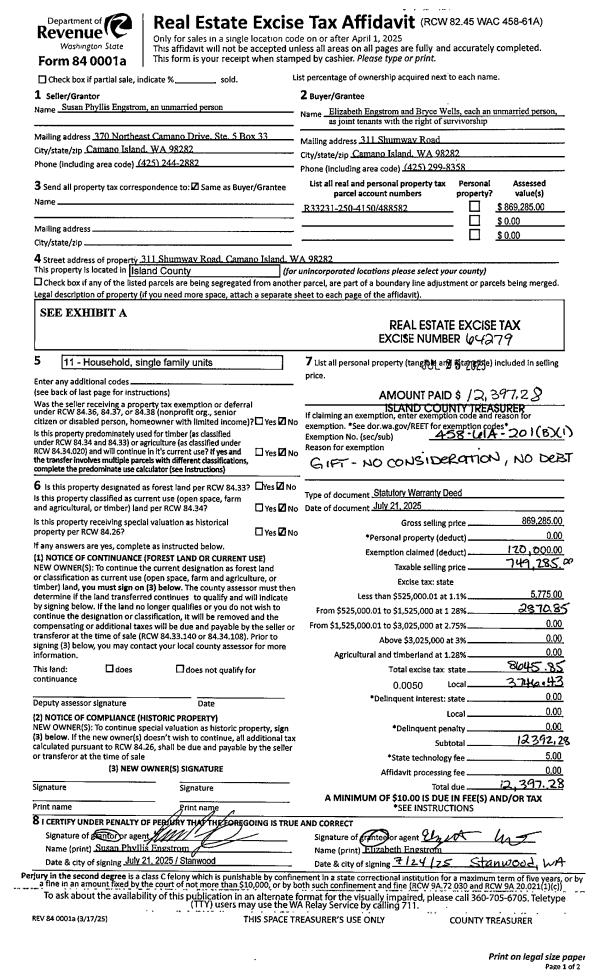
| Tax Area: | 310 - APPRAISER-Cpvl Schl Dist, outside Cpvl, improved & 1 acre or less | Land Use Code | 11 |
| Open Space: | N | DFL | N |
| Historic Property: | N | Remodel Property: | N |
| Multi-Family Redevelopment: | N | | |
| Township: | 32 | Section: | 32 |
| Range: | R1 |
Location |
| Address: | 88 MADRONA HEIGHTS RD COUPEVILLE, WA 98239 | Mapsco: | |
| Neighborhood: | Cycle 2 | Map ID: | 171 |
| Neighborhood CD: | 2 |
Owner |
| Name: | VANDERWENDE, LUCRETIA H (50%) | Owner ID: | 292747 |
| Mailing Address: | EVERETT J VANDERWENDE, JR (50%) 3145 E LAKE SAMMAMISH SHORE LN SE SAMMAMISH, WA 98075 | % Ownership: | 100.0000000000% |
| | | Exemptions: | |
Taxes and Assessment Details
Values
| (+) Improvement Homesite Value: | + | $0 | |
| (+) Improvement Non-Homesite Value: | + | $262,433 | |
| (+) Land Homesite Value: | + | $0 | |
| (+) Land Non-Homesite Value: | + | $261,000 | |
| (+) Curr Use (HS): | + | $0 | $0 |
| (+) Curr Use (NHS): | + | $0 | $0 |
| | | -------------------------- | |
| (=) Market Value: | = | $523,433 | |
| (–) Productivity Loss: | – | $0 | |
| | | -------------------------- | |
| (=) Subtotal: | = | $523,433 | |
| (+) Senior Appraised Value: | + | $0 | |
| (+) Non-Senior Appraised Value: | + | $523,433 | |
| | | -------------------------- | |
| (=) Total Appraised Value: | = | $523,433 | |
| (–) Senior Exemption Loss: | – | $0 | |
| (–) Exemption Loss: | – | $0 | |
| | | -------------------------- | |
| (=) Taxable Value: | = | $523,433 | |
Taxing Jurisdiction
| Owner: | VANDERWENDE, LUCRETIA H (50%) | | |
| % Ownership: | 100.0000000000% | | |
| Total Value: | $523,433 | | |
| Tax Area: | 310 - APPRAISER-Cpvl Schl Dist, outside Cpvl, improved & 1 acre or less |
| CF | Conservation Futures | 0.0316035091 | $523,433 | $523,433 | $16.54 | | |
| CEM2 | Cemetery #2 | 0.0095056933 | $523,433 | $523,433 | $4.98 | | |
| FIRE5 | Fire & Rescue Dist #5 C Whidbey GEN | 1.2008080668 | $523,433 | $523,433 | $628.54 | | |
| FIRE5BOND | Fire & Rescue Dist #5 C Whidbey BOND | 0.1400090713 | $523,433 | $523,433 | $73.29 | | |
| HOBOND | Hospital BOND | 0.1910887512 | $523,433 | $523,433 | $100.02 | | |
| HOGEN | Hospital GEN | 0.3902502903 | $523,433 | $523,433 | $204.27 | | |
| CE | County Current Expense | 0.3708482477 | $523,433 | $523,433 | $194.11 | | |
| CR | County Roads | 0.4584763726 | $523,433 | $523,433 | $239.98 | | |
| ISLANDEMS | Hospital GEN (EMS) | 0.5000000000 | $523,433 | $523,433 | $261.72 | | |
| LIB | Library Sno-Isle GEN | 0.3153421757 | $523,433 | $523,433 | $165.06 | | |
| LIBCAP | Library Sno-Isle BOND (Cap Fac Imp Area) | 0.0543427938 | $523,433 | $523,433 | $28.44 | | |
| POCOUP | Port of Coupeville GEN | 0.1093371703 | $523,433 | $523,433 | $57.23 | | |
| POCOUPIDD | Port of Coupeville IDD | 0.3409740022 | $523,433 | $523,433 | $178.48 | | |
| COUPSDTECH | School 204 CP (TECH) | 0.7545480007 | $523,433 | $523,433 | $394.96 | | |
| SCH204MO | School 204 Enrichment | 0.6716186034 | $523,433 | $523,433 | $351.55 | | |
| ST | State School | 1.3035497053 | $523,433 | $523,433 | $682.32 | | |
| ST2 | State School Part 2 | 0.8169543533 | $523,433 | $523,433 | $427.62 | | |
| | Total Tax Rate: | 7.6592568070 | | | | | |
| | | | | Taxes w/Current Exemptions: | $4,009.11 | | |
| | | | | Taxes w/o Exemptions: | $4,009.11 | | |
Improvement / Building
| Improvement #1: | RESIDENTIAL | State Code: | Y | 1649.0 sqft | Value: | $262,433 |
| Bathrooms: | 2 | Bedrooms: | 3 | | Ceiling: | DRYWALL PAINTED | Exterior Wall/Cover: | PLY/HARDBOARD T-111 | | Floor Covering: | CARPET/VINYL 80-20 | Floor Structure: | WOOD W/SUBFLOOR | | Foundation: | CONCRETE | Heating: | WALL HEAT ELECTRIC | | Interior Finish: | DRYWALL PAINT | Plumbing Fixture Cnt: | 9 | | Roof Slope: | 5" IN 12" | Roof Structure/Cover: | CJ ASPHALT |
|
| | Type | Description | Class CD | Sub Class CD | Year Built | Area |
| | BAS | BASE/MAIN FLOOR | 3 | 0 | 1995 | 625.0 |
| | BIG | BUILT IN GARAGE | 3 | 0 | 1995 | 640.5 |
| | OWP | OPEN WOOD PORCH W/STEPS | 3 | 0 | 1995 | 699.1 |
| | OWP | OPEN WOOD PORCH W/STEPS | 3 | 0 | 1995 | 133.7 |
| | DWN | DOWNSTAIRS LIVING AREA | 3 | 0 | 1995 | 625.0 |
| | UPS | UPPER STORY | 3 | 0 | 1995 | 399.0 |
Sketch
Property Image
Land
| 1 | HS | HOMESITE | 0.5500 | 23958.00 | 0.00 | 0.00 | 1.00 | $261,000 | $0 |
Roll Value History
| 2026 | N/A | N/A | N/A | N/A | N/A |
| 2025 | $262,433 | $261,000 | $0 | $523,433 | $523,433 |
| 2024 | $252,208 | $250,000 | $0 | $502,208 | $502,208 |
| 2023 | $255,560 | $240,000 | $0 | $495,560 | $495,560 |
| 2022 | $234,454 | $220,000 | $0 | $454,454 | $454,454 |
| 2021 | $206,513 | $180,000 | $0 | $386,513 | $386,513 |
| 2020 | $201,405 | $140,000 | $0 | $341,405 | $341,405 |
| 2019 | $147,655 | $220,000 | $0 | $367,655 | $367,655 |
| 2018 | $137,971 | $200,000 | $0 | $337,971 | $337,971 |
| 2017 | $138,838 | $130,000 | $0 | $268,838 | $268,838 |
| 2016 | $140,596 | $125,000 | $0 | $265,596 | $265,596 |
| 2015 | $142,352 | $125,000 | $0 | $267,352 | $267,352 |
| 2014 | $144,111 | $140,250 | $0 | $284,361 | $284,361 |
| 2013 | $145,867 | $140,250 | $0 | $286,117 | $286,117 |
| 2012 | $150,777 | $140,250 | $0 | $291,027 | $291,027 |
| 2011 | $152,615 | $165,000 | $0 | $317,615 | $317,615 |
| 2010 | $160,892 | $165,000 | $0 | $325,892 | $325,892 |
| 2009 | $167,932 | $175,000 | $0 | $342,932 | $342,932 |
| 2008 | $170,095 | $201,250 | $0 | $371,345 | $371,345 |
| 2007 | $172,258 | $195,000 | $0 | $367,258 | $367,258 |
Deed and Sales History
| 1 | 11/22/2019 | PRD | Personal Representatives Deed | VANDERWENDE, EVERETT J | VANDERWENDE, LUCRETIA H (50%) | | | $0.00 | 41307 | 4476675 |
| 2 | 02/10/2011 | PRD | Personal Representatives Deed | VANDERWENDE, EVERETT J | VANDERWENDE, EVERETT J | | | $0.00 | 3617 | 4290641 |
| 3 | 06/01/1994 | WD | Warranty Deed | OCEANVIEW, PROPERTIES I | VANDERWENDE, EVERETT J | | | $35,900.00 | 42706 | 94014845 |
| 4 | 01/01/1990 | WD | Warranty Deed | CHANDLER, DESMOND V | OCEANVIEW, PROPERTIES I | | | $25,000.00 | 485 | 90001772 |
| 5 | 03/01/1988 | QCD | Quit Claim Deed | EDWARDS, JOHN | CHANDLER, DESMOND V | | | $11,100.00 | 84055 | 88015205 |
| 6 | 05/01/1986 | WD | Warranty Deed | GRAY, PHYLLIS M | EDWARDS, JOHN | | | $15,000.00 | 61394 | 86006506 |
| 7 | 08/01/1985 | DECREE | Divorce Decree/Legal Separation | GRAY, CARLTON E | GRAY, PHYLLIS M | | | $0.00 | 52614 | 85010353 |
| 8 | 12/01/1978 | CD | DNU - Correction Deed | Unknown | GRAY, CARLTON E | | | $60,000.00 | 86291 | 345312 |
Payout Agreement
| No payout information available.. |