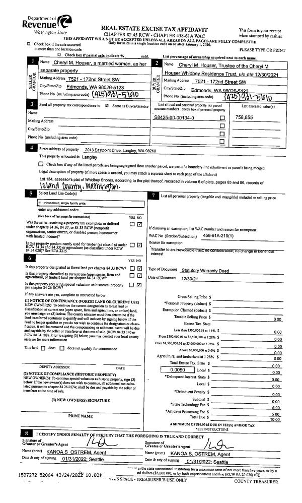
Property
Account |
| Property ID: | 525239 | Abbreviated Legal Description: | IN GL1: PT N200' OF S1066' OF GL1 DESC: BG N/4 CR SEC 5 S256.28' TO NLN OF S1066' OF GL1 N89*W1303.12' S70' TPB S60' N89*W120' N11' N89*W70' S11' N89*W170' M/L TO GL LN NWLY ALG GL LN TO INTER W/LN N89*W FR TPB S89*E400' M/L TPB INCL ADJ TIDES FR |
| Geographic ID: | R33005-500-0390 | Agent Code: | |
| Type: | Real | | |
| Tax Area: | 549 - APPRAISER-Stan/Cam Schl Dist, Special Dist, vacant & 50 acres or less | Land Use Code | 91 |
| Open Space: | N | DFL | N |
| Historic Property: | N | Remodel Property: | N |
| Multi-Family Redevelopment: | N | | |
| Township: | 30 | Section: | 05 |
| Range: | R3 |
Location |
| Address: | | Mapsco: | |
| Neighborhood: | Cycle 5 | Map ID: | 856 |
| Neighborhood CD: | 5 |
Owner |
| Name: | REPENSEK, JANEY L | Owner ID: | 297403 |
| Mailing Address: | WARREN EDWARD WEISSMAN 510 PANORAMIC DR CAMANO ISLAND, WA 98282 | % Ownership: | 100.0000000000% |
| | | Exemptions: | |
Taxes and Assessment Details
Values
| (+) Improvement Homesite Value: | + | $0 | |
| (+) Improvement Non-Homesite Value: | + | $0 | |
| (+) Land Homesite Value: | + | $0 | |
| (+) Land Non-Homesite Value: | + | $300,000 | |
| (+) Curr Use (HS): | + | $0 | $0 |
| (+) Curr Use (NHS): | + | $0 | $0 |
| | | -------------------------- | |
| (=) Market Value: | = | $300,000 | |
| (–) Productivity Loss: | – | $0 | |
| | | -------------------------- | |
| (=) Subtotal: | = | $300,000 | |
| (+) Senior Appraised Value: | + | $0 | |
| (+) Non-Senior Appraised Value: | + | $300,000 | |
| | | -------------------------- | |
| (=) Total Appraised Value: | = | $300,000 | |
| (–) Senior Exemption Loss: | – | $0 | |
| (–) Exemption Loss: | – | $0 | |
| | | -------------------------- | |
| (=) Taxable Value: | = | $300,000 | |
Taxing Jurisdiction
| Owner: | REPENSEK, JANEY L | | |
| % Ownership: | 100.0000000000% | | |
| Total Value: | $300,000 | | |
| Tax Area: | 549 - APPRAISER-Stan/Cam Schl Dist, Special Dist, vacant & 50 acres or less |
| CF | Conservation Futures | 0.0316035091 | $300,000 | $300,000 | $9.48 | | |
| EMS1 | Fire & Rescue Dist #1 Camano GEN (EMS) | 0.3677864386 | $300,000 | $300,000 | $110.34 | | |
| CE | County Current Expense | 0.3708482477 | $300,000 | $300,000 | $111.25 | | |
| CR | County Roads | 0.4584763726 | $300,000 | $300,000 | $137.54 | | |
| LCIB | Library Sno-Isle BOND (Camano Island) | 0.0396325772 | $300,000 | $300,000 | $11.89 | | |
| LIB | Library Sno-Isle GEN | 0.3153421757 | $300,000 | $300,000 | $94.60 | | |
| SCH205_401 | School 205-401 Enrichment | 1.2698420524 | $300,000 | $300,000 | $380.95 | | |
| SCH205BOND | School 205-401 BOND | 0.9396497583 | $300,000 | $300,000 | $281.89 | | |
| ST | State School | 1.3035497053 | $300,000 | $300,000 | $391.06 | | |
| ST2 | State School Part 2 | 0.8169543533 | $300,000 | $300,000 | $245.09 | | |
| | Total Tax Rate: | 5.9136851902 | | | | | |
| | | | | Taxes w/Current Exemptions: | $1,774.09 | | |
| | | | | Taxes w/o Exemptions: | $1,774.09 | | |
Improvement / Building
Sketch
| No sketches available for this property. |
Property Image
Land
| 1 | HB | HIGH BLUFF | 0.5200 | 22651.20 | 60.00 | 0.00 | 1.00 | $300,000 | $0 |
Roll Value History
| 2026 | N/A | N/A | N/A | N/A | N/A |
| 2025 | $0 | $300,000 | $0 | $300,000 | $300,000 |
| 2024 | $0 | $300,000 | $0 | $300,000 | $300,000 |
| 2023 | $0 | $300,000 | $0 | $300,000 | $300,000 |
| 2022 | $0 | $300,000 | $0 | $300,000 | $300,000 |
| 2021 | $0 | $175,000 | $0 | $175,000 | $175,000 |
| 2020 | $0 | $175,000 | $0 | $175,000 | $175,000 |
| 2019 | $0 | $175,000 | $0 | $175,000 | $175,000 |
| 2018 | $0 | $20,000 | $0 | $20,000 | $20,000 |
| 2017 | $0 | $20,000 | $0 | $20,000 | $20,000 |
| 2016 | $0 | $20,000 | $0 | $20,000 | $20,000 |
| 2015 | $0 | $20,000 | $0 | $20,000 | $20,000 |
| 2014 | $0 | $20,000 | $0 | $20,000 | $20,000 |
| 2013 | $0 | $21,756 | $0 | $21,756 | $21,756 |
| 2012 | $0 | $21,756 | $0 | $21,756 | $21,756 |
| 2011 | $0 | $27,195 | $0 | $27,195 | $27,195 |
| 2010 | $0 | $27,195 | $0 | $27,195 | $27,195 |
| 2009 | $0 | $41,712 | $0 | $41,712 | $41,712 |
| 2008 | $0 | $40,381 | $0 | $40,381 | $40,381 |
| 2007 | $0 | $40,905 | $0 | $40,905 | $40,905 |
Deed and Sales History
| 1 | 12/10/2020 | WD | Warranty Deed | STEPHENS, BOBBY G. | REPENSEK, JANEY L | | | $1,250,000.00 | 46097 | 4505003 |
|   | |
| 2 | 12/13/2016 | WD | Warranty Deed | PLATT, DAVID S | STEPHENS, BOBBY G. | | | $640,000.00 | 27392 | 4413549 |
|   | |
| 3 | 07/01/1995 | QCD | Quit Claim Deed | PLATT, DAVID S | PLATT, DAVID S | | | $0.00 | 52414 | 95011165 |
| 4 | 06/01/1990 | WD | Warranty Deed | HINTHORNE, MIKE S | PLATT, DAVID S | | | $89,000.00 | 3581 | 90011593 |
| 5 | 10/01/1985 | OTHER | Other - Misc. Documents | HINTHORNE, MIKE S | HINTHORNE, MIKE S | | | $0.00 | 61347 | 85006484 |
| 6 | 06/01/1985 | OTHER | Other - Misc. Documents | HINTHORNE, MIKE S | HINTHORNE, MIKE S | | | $0.00 | 61215 | 0 |
| 7 | 07/01/1982 | EXECUTORD | Executor Deed | WESLEY, PAUL J | HINTHORNE, MIKE S | | | $45,000.00 | 21804 | 398904 |
| 8 | 10/01/1978 | OTHER | Other - Misc. Documents | , | WESLEY, PAUL J | | | $28,800.00 | 85339 | 342178 |
| 9 | 01/01/1900 | OTHER | Other - Misc. Documents | Unknown | , | | | $0.00 | 59640 | 0 |
Payout Agreement
| No payout information available.. |