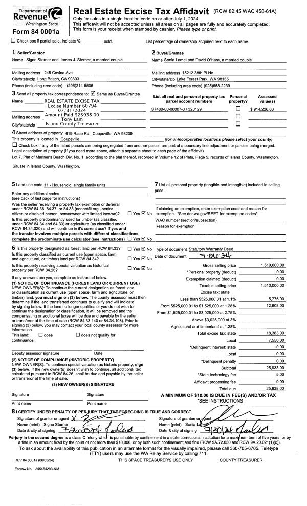
Property
Account |
| Property ID: | 525541 | Abbreviated Legal Description: | LOT B-3 SP 80/44-13333-463-0990 V1 SP P71 AF#379585 |
| Geographic ID: | R13333-432-1140 | Agent Code: | |
| Type: | Real | | |
| Tax Area: | 112 - APPRAISER-OH Schl Dist, outside OH, improved, greater than 1 acre | Land Use Code | 11 |
| Open Space: | N | DFL | N |
| Historic Property: | N | Remodel Property: | N |
| Multi-Family Redevelopment: | N | | |
| Township: | 33 | Section: | 33 |
| Range: | R1 |
Location |
| Address: | 2756 DAVID LN OAK HARBOR, WA 98277 | Mapsco: | |
| Neighborhood: | Cycle 1 | Map ID: | 250 |
| Neighborhood CD: | 1 |
Owner |
| Name: | SAVAGE, ROBERT L | Owner ID: | 263012 |
| Mailing Address: | JUDITH A SAVAGE 2756 DAVID LN OAK HARBOR, WA 98277 | % Ownership: | 100.0000000000% |
| | | Exemptions: | |
Taxes and Assessment Details
Values
| (+) Improvement Homesite Value: | + | $0 | |
| (+) Improvement Non-Homesite Value: | + | $572,744 | |
| (+) Land Homesite Value: | + | $0 | |
| (+) Land Non-Homesite Value: | + | $320,000 | |
| (+) Curr Use (HS): | + | $0 | $0 |
| (+) Curr Use (NHS): | + | $0 | $0 |
| | | -------------------------- | |
| (=) Market Value: | = | $892,744 | |
| (–) Productivity Loss: | – | $0 | |
| | | -------------------------- | |
| (=) Subtotal: | = | $892,744 | |
| (+) Senior Appraised Value: | + | $0 | |
| (+) Non-Senior Appraised Value: | + | $892,744 | |
| | | -------------------------- | |
| (=) Total Appraised Value: | = | $892,744 | |
| (–) Senior Exemption Loss: | – | $0 | |
| (–) Exemption Loss: | – | $0 | |
| | | -------------------------- | |
| (=) Taxable Value: | = | $892,744 | |
Taxing Jurisdiction
| Owner: | SAVAGE, ROBERT L | | |
| % Ownership: | 100.0000000000% | | |
| Total Value: | $892,744 | | |
| Tax Area: | 112 - APPRAISER-OH Schl Dist, outside OH, improved, greater than 1 acre |
| CF | Conservation Futures | 0.0316035091 | $892,744 | $892,744 | $28.21 | | |
| CEM1 | Cemetery #1 | 0.0040320932 | $892,744 | $892,744 | $3.60 | | |
| FIRE2 | Fire & Rescue Dist #2 N Whidbey GEN | 0.5475949600 | $892,744 | $892,744 | $488.86 | | |
| HOBOND | Hospital BOND | 0.1910887512 | $892,744 | $892,744 | $170.59 | | |
| HOGEN | Hospital GEN | 0.3902502903 | $892,744 | $892,744 | $348.39 | | |
| CE | County Current Expense | 0.3708482477 | $892,744 | $892,744 | $331.07 | | |
| CR | County Roads | 0.4584763726 | $892,744 | $892,744 | $409.30 | | |
| ISLANDEMS | Hospital GEN (EMS) | 0.5000000000 | $892,744 | $892,744 | $446.37 | | |
| LIB | Library Sno-Isle GEN | 0.3153421757 | $892,744 | $892,744 | $281.52 | | |
| NWHIDPRMT | P & R N Whidbey GEN | 0.2004466701 | $892,744 | $892,744 | $178.95 | | |
| SCH201MO | School 201 Enrichment | 1.8559231640 | $892,744 | $892,744 | $1,656.86 | | |
| ST | State School | 1.3035497053 | $892,744 | $892,744 | $1,163.74 | | |
| ST2 | State School Part 2 | 0.8169543533 | $892,744 | $892,744 | $729.33 | | |
| | Total Tax Rate: | 6.9861102925 | | | | | |
| | | | | Taxes w/Current Exemptions: | $6,236.79 | | |
| | | | | Taxes w/o Exemptions: | $6,236.79 | | |
Improvement / Building
| Improvement #1: | RESIDENTIAL | State Code: | Y | 2944.7 sqft | Value: | $572,744 |
| Bathrooms: | 3 | Bedrooms: | 3 | | Ceiling: | DRYWALL PAINTED | Exterior Wall/Cover: | CEMENT FIBER | | Floor Covering: | HARDWOOD/CARP 20-80 | Floor Structure: | WOOD W/SUBFLOOR | | Foundation: | CONCRETE | Heating: | FHA GAS | | Interior Finish: | DRYWALL PAINT | Plumbing Fixture Cnt: | 13 | | Roof Slope: | 8" IN 12" | Roof Structure/Cover: | CJ ASPHALT |
|
| | Type | Description | Class CD | Sub Class CD | Year Built | Area |
| | BAS | BASE/MAIN FLOOR | 4 | 0 | 2002 | 2027.9 |
| | OP3 | OPEN PORCH W/ROOF | 4 | 0 | 2002 | 36.4 |
| | AGR | ATTACHED GARAGE | 4 | 0 | 2002 | 601.3 |
| | OWP | OPEN WOOD PORCH W/STEPS | 4 | 0 | 2002 | 502.9 |
| | DWN | DOWNSTAIRS LIVING AREA | 4 | 0 | 2002 | 916.8 |
| | CPD | OPEN CARPORT DIRT FLOOR | 4 | 0 | 2002 | 360.1 |
| | OP3 | OPEN PORCH W/ROOF | 4 | 0 | 2002 | 65.0 |
| | UTY | STORAGE/UTILITY | 4 | 0 | 2002 | 1080.0 |
Sketch
Property Image
Land
| 1 | 32 | AC (03.01-09.99) | 5.0000 | 0.00 | 0.00 | 0.00 | 1.00 | $320,000 | $0 |
Roll Value History
| 2026 | N/A | N/A | N/A | N/A | N/A |
| 2025 | $572,744 | $320,000 | $0 | $892,744 | $892,744 |
| 2024 | $579,623 | $300,000 | $0 | $879,623 | $879,623 |
| 2023 | $572,744 | $300,000 | $0 | $872,744 | $872,744 |
| 2022 | $524,848 | $260,000 | $0 | $784,848 | $784,848 |
| 2021 | $461,784 | $220,000 | $0 | $681,784 | $681,784 |
| 2020 | $450,559 | $175,000 | $0 | $625,559 | $625,559 |
| 2019 | $353,097 | $230,000 | $0 | $583,097 | $583,097 |
| 2018 | $354,110 | $190,000 | $0 | $544,110 | $544,110 |
| 2017 | $350,873 | $170,000 | $0 | $520,873 | $520,873 |
| 2016 | $354,779 | $165,000 | $0 | $519,779 | $519,779 |
| 2015 | $358,688 | $150,000 | $0 | $508,688 | $508,688 |
| 2014 | $362,595 | $150,000 | $0 | $512,595 | $512,595 |
| 2013 | $366,501 | $150,000 | $0 | $516,501 | $516,501 |
| 2012 | $370,407 | $166,500 | $0 | $536,907 | $536,907 |
| 2011 | $468,909 | $185,000 | $0 | $653,909 | $653,909 |
| 2010 | $467,046 | $185,000 | $0 | $652,046 | $652,046 |
| 2009 | $486,159 | $250,000 | $0 | $736,159 | $736,159 |
| 2008 | $496,946 | $187,500 | $0 | $684,446 | $684,446 |
| 2007 | $507,466 | $187,500 | $0 | $694,966 | $694,966 |
Deed and Sales History
| 1 | 07/08/2013 | TRUSTEED | Trustee's Deed | SAVAGE, TRUSTEE, JUDITH A | SAVAGE, ROBERT L | | | $0.00 | 11927 | 4343477 |
| 2 | 06/27/2001 | WD | Warranty Deed | ANDERSON, CRAIG A | SAVAGE, TRUSTEE, JUDITH A | | | $127,750.00 | 12661 | 20037386 |
| 3 | 12/01/1995 | WD | Warranty Deed | EPPES, MARVIN E | ANDERSON, CRAIG A | | | $98,500.00 | 60119 | 96000497 |
| 4 | 04/01/1992 | QCD | Quit Claim Deed | EPPES, MARVIN E | EPPES, MARVIN E | | | $0.00 | 21579 | 92007547 |
| 5 | 04/01/1992 | QCD | Quit Claim Deed | EPPES, MARVIN E | EPPES, MARVIN E | | | $0.00 | 21578 | 92007546 |
| 6 | 03/01/1992 | WD | Warranty Deed | EPPES, M E | EPPES, MARVIN E | | | $14,256.00 | 21577 | 92007545 |
| 7 | 01/01/1900 | OTHER | Other - Misc. Documents | Unknown | EPPES, M E | | | $0.00 | 0 | 0 |
Payout Agreement
| No payout information available.. |