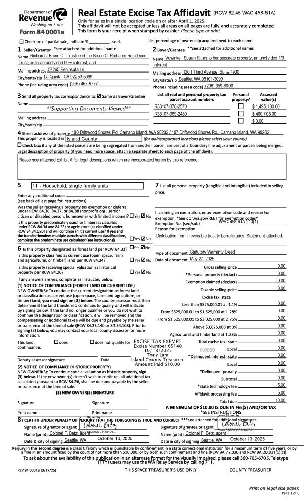
Property
Account |
| Property ID: | 526185 | Abbreviated Legal Description: | ALDERBROOK CONDO #1 APT C-1 50% INT IN BLDG 3.571% INT IN LAND |
| Geographic ID: | S6023-00-0000C-1 | Agent Code: | |
| Type: | Real | | |
| Tax Area: | 100 - APPRAISER-OH Schl Dist, in OH | Land Use Code | 14 |
| Open Space: | N | DFL | N |
| Historic Property: | N | Remodel Property: | N |
| Multi-Family Redevelopment: | N | | |
| Township: | | Section: | |
| Range: | |
Location |
| Address: | 1232 NW LANYARD LOOP APT 1 OAK HARBOR, WA 98277 | Mapsco: | |
| Neighborhood: | 3B*OH-alderbrooke | Map ID: | 252 |
| Neighborhood CD: | 3B*OHaldbr |
Owner |
| Name: | COCHRAN, RANDOLPH L | Owner ID: | 104781 |
| Mailing Address: | 1232 NW LANYARD LOOP #1 OAK HARBOR, WA 98277-4486 | % Ownership: | 100.0000000000% |
| | | Exemptions: | |
Taxes and Assessment Details
Values
| (+) Improvement Homesite Value: | + | $0 | |
| (+) Improvement Non-Homesite Value: | + | $200,133 | |
| (+) Land Homesite Value: | + | $0 | |
| (+) Land Non-Homesite Value: | + | $160,000 | |
| (+) Curr Use (HS): | + | $0 | $0 |
| (+) Curr Use (NHS): | + | $0 | $0 |
| | | -------------------------- | |
| (=) Market Value: | = | $360,133 | |
| (–) Productivity Loss: | – | $0 | |
| | | -------------------------- | |
| (=) Subtotal: | = | $360,133 | |
| (+) Senior Appraised Value: | + | $0 | |
| (+) Non-Senior Appraised Value: | + | $360,133 | |
| | | -------------------------- | |
| (=) Total Appraised Value: | = | $360,133 | |
| (–) Senior Exemption Loss: | – | $0 | |
| (–) Exemption Loss: | – | $0 | |
| | | -------------------------- | |
| (=) Taxable Value: | = | $360,133 | |
Taxing Jurisdiction
| Owner: | COCHRAN, RANDOLPH L | | |
| % Ownership: | 100.0000000000% | | |
| Total Value: | $360,133 | | |
| Tax Area: | 100 - APPRAISER-OH Schl Dist, in OH |
| CF | Conservation Futures | 0.0316035091 | $360,133 | $360,133 | $11.38 | | |
| CEM1 | Cemetery #1 | 0.0040320932 | $360,133 | $360,133 | $1.45 | | |
| COH | City of Oak Harbor | 2.3001546061 | $360,133 | $360,133 | $828.36 | | |
| OAKBOND | City of Oak Harbor BOND | 0.1926904192 | $360,133 | $360,133 | $69.39 | | |
| HOBOND | Hospital BOND | 0.1910887512 | $360,133 | $360,133 | $68.82 | | |
| HOGEN | Hospital GEN | 0.3902502903 | $360,133 | $360,133 | $140.54 | | |
| CE | County Current Expense | 0.3708482477 | $360,133 | $360,133 | $133.55 | | |
| ISLANDEMS | Hospital GEN (EMS) | 0.5000000000 | $360,133 | $360,133 | $180.07 | | |
| LIB | Library Sno-Isle GEN | 0.3153421757 | $360,133 | $360,133 | $113.57 | | |
| NWHIDPRMT | P & R N Whidbey GEN | 0.2004466701 | $360,133 | $360,133 | $72.19 | | |
| SCH201MO | School 201 Enrichment | 1.8559231640 | $360,133 | $360,133 | $668.38 | | |
| ST | State School | 1.3035497053 | $360,133 | $360,133 | $469.45 | | |
| ST2 | State School Part 2 | 0.8169543533 | $360,133 | $360,133 | $294.21 | | |
| | Total Tax Rate: | 8.4728839852 | | | | | |
| | | | | Taxes w/Current Exemptions: | $3,051.36 | | |
| | | | | Taxes w/o Exemptions: | $3,051.36 | | |
Improvement / Building
| Improvement #1: | RESIDENTIAL | State Code: | F1 | 1386.0 sqft | Value: | $200,133 |
| Bathrooms: | 1.5 | Bedrooms: | 3 | | Ceiling: | DRY WALL SPRAYED | Exterior Wall/Cover: | WOOD SIDING | | Floor Covering: | CARPET/VINYL 80-20 | Floor Structure: | WOOD W/SUBFLOOR | | Foundation: | CONCRETE | Heating: | BASEBOARD ELECTRIC | | Interior Finish: | DRYWALL PAINT | Plumbing Fixture Cnt: | 9 | | Roof Slope: | 4" IN 12" | Roof Structure/Cover: | CJ ASPHALT |
|
| | Type | Description | Class CD | Sub Class CD | Year Built | Area |
| | BAS | BASE/MAIN FLOOR | 3 | 0 | 1983 | 626.0 |
| | OP4 | OPEN PORCH W/CEILING-ROOF | 3 | 0 | 1983 | 28.0 |
| | BIG | BUILT IN GARAGE | 3 | 0 | 1983 | 312.0 |
| | UPS | UPPER STORY | 3 | 0 | 1983 | 760.0 |
| | OWP | OPEN WOOD PORCH W/STEPS | 3 | 0 | 1983 | 100.0 |
| | COMA | Common Area Improvement | 3 | 0 | 1983 | 100.0 |
Sketch
Property Image
Land
| 1 | 61 | MULTIPLE RESIDENCES | 0.2367 | 10310.65 | 0.00 | 0.00 | 1.00 | $160,000 | $0 |
Roll Value History
| 2026 | N/A | N/A | N/A | N/A | N/A |
| 2025 | $200,133 | $160,000 | $0 | $360,133 | $360,133 |
| 2024 | $207,073 | $150,000 | $0 | $357,073 | $357,073 |
| 2023 | $184,760 | $140,000 | $0 | $324,760 | $324,760 |
| 2022 | $199,346 | $130,000 | $0 | $329,346 | $329,346 |
| 2021 | $175,750 | $90,000 | $0 | $265,750 | $265,750 |
| 2020 | $171,024 | $90,000 | $0 | $261,024 | $261,024 |
| 2019 | $131,988 | $110,000 | $0 | $241,988 | $241,988 |
| 2018 | $132,463 | $65,000 | $0 | $197,463 | $197,463 |
| 2017 | $133,418 | $9,000 | $0 | $142,418 | $142,418 |
| 2016 | $135,323 | $9,000 | $0 | $144,323 | $144,323 |
| 2015 | $109,782 | $9,000 | $0 | $118,782 | $118,782 |
| 2014 | $111,309 | $9,000 | $0 | $120,309 | $120,309 |
| 2013 | $112,832 | $55,524 | $0 | $168,356 | $168,356 |
| 2012 | $115,881 | $55,524 | $0 | $171,405 | $171,405 |
| 2011 | $115,881 | $55,524 | $0 | $171,405 | $171,405 |
| 2010 | $121,606 | $31,728 | $0 | $153,334 | $153,334 |
| 2009 | $126,789 | $59,807 | $0 | $186,596 | $186,596 |
| 2008 | $128,314 | $66,153 | $0 | $194,467 | $194,467 |
| 2007 | $136,886 | $66,153 | $0 | $203,039 | $203,039 |
Deed and Sales History
| 1 | 03/01/1990 | WD | Warranty Deed | BERNIER, OSCAR L | COCHRAN, RANDOLPH L | | | $66,900.00 | 1361 | 90004403 |
| 2 | 10/01/1980 | REC | Real Estate Contract | Unknown | BERNIER, OSCAR L | | | $62,900.00 | 3693 | 375914 |
Payout Agreement
| No payout information available.. |