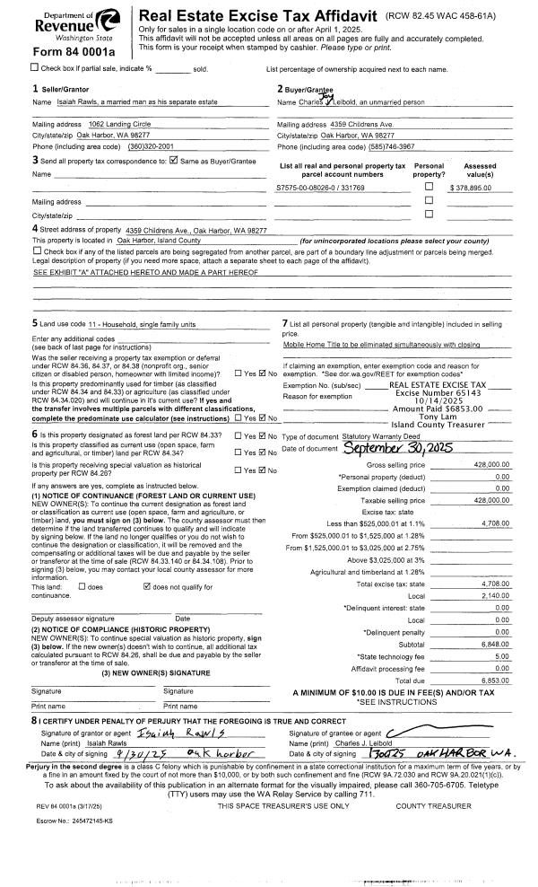
Property
Account |
| Property ID: | 526210 | Abbreviated Legal Description: | ALDERBROOK CONDO #1 APT D-2 50% INT IN BLDG 3.571% INT IN LAND |
| Geographic ID: | S6023-00-0000D-2 | Agent Code: | |
| Type: | Real | | |
| Tax Area: | 100 - APPRAISER-OH Schl Dist, in OH | Land Use Code | 14 |
| Open Space: | N | DFL | N |
| Historic Property: | N | Remodel Property: | N |
| Multi-Family Redevelopment: | N | | |
| Township: | | Section: | |
| Range: | |
Location |
| Address: | 1234 NW LANYARD LOOP APT 2 OAK HARBOR, WA 98277 | Mapsco: | |
| Neighborhood: | 3B*OH-alderbrooke | Map ID: | 252 |
| Neighborhood CD: | 3B*OHaldbr |
Owner |
| Name: | WEST, TRAVIS | Owner ID: | 309726 |
| Mailing Address: | NAYELI NIETO 1234 NORTHWEST LANYARD LOOP #2 OAK HARBOR, WA 98277 | % Ownership: | 100.0000000000% |
| | | Exemptions: | |
Taxes and Assessment Details
Values
| (+) Improvement Homesite Value: | + | $0 | |
| (+) Improvement Non-Homesite Value: | + | $207,239 | |
| (+) Land Homesite Value: | + | $0 | |
| (+) Land Non-Homesite Value: | + | $160,000 | |
| (+) Curr Use (HS): | + | $0 | $0 |
| (+) Curr Use (NHS): | + | $0 | $0 |
| | | -------------------------- | |
| (=) Market Value: | = | $367,239 | |
| (–) Productivity Loss: | – | $0 | |
| | | -------------------------- | |
| (=) Subtotal: | = | $367,239 | |
| (+) Senior Appraised Value: | + | $0 | |
| (+) Non-Senior Appraised Value: | + | $367,239 | |
| | | -------------------------- | |
| (=) Total Appraised Value: | = | $367,239 | |
| (–) Senior Exemption Loss: | – | $0 | |
| (–) Exemption Loss: | – | $0 | |
| | | -------------------------- | |
| (=) Taxable Value: | = | $367,239 | |
Taxing Jurisdiction
| Owner: | WEST, TRAVIS | | |
| % Ownership: | 100.0000000000% | | |
| Total Value: | $367,239 | | |
| Tax Area: | 100 - APPRAISER-OH Schl Dist, in OH |
| CF | Conservation Futures | 0.0316035091 | $367,239 | $367,239 | $11.61 | | |
| CEM1 | Cemetery #1 | 0.0040320932 | $367,239 | $367,239 | $1.48 | | |
| COH | City of Oak Harbor | 2.3001546061 | $367,239 | $367,239 | $844.71 | | |
| OAKBOND | City of Oak Harbor BOND | 0.1926904192 | $367,239 | $367,239 | $70.76 | | |
| HOBOND | Hospital BOND | 0.1910887512 | $367,239 | $367,239 | $70.18 | | |
| HOGEN | Hospital GEN | 0.3902502903 | $367,239 | $367,239 | $143.32 | | |
| CE | County Current Expense | 0.3708482477 | $367,239 | $367,239 | $136.19 | | |
| ISLANDEMS | Hospital GEN (EMS) | 0.5000000000 | $367,239 | $367,239 | $183.62 | | |
| LIB | Library Sno-Isle GEN | 0.3153421757 | $367,239 | $367,239 | $115.81 | | |
| NWHIDPRMT | P & R N Whidbey GEN | 0.2004466701 | $367,239 | $367,239 | $73.61 | | |
| SCH201MO | School 201 Enrichment | 1.8559231640 | $367,239 | $367,239 | $681.57 | | |
| ST | State School | 1.3035497053 | $367,239 | $367,239 | $478.71 | | |
| ST2 | State School Part 2 | 0.8169543533 | $367,239 | $367,239 | $300.02 | | |
| | Total Tax Rate: | 8.4728839852 | | | | | |
| | | | | Taxes w/Current Exemptions: | $3,111.59 | | |
| | | | | Taxes w/o Exemptions: | $3,111.59 | | |
Improvement / Building
| Improvement #1: | RESIDENTIAL | State Code: | F1 | 1386.0 sqft | Value: | $207,239 |
| Bathrooms: | 2.5 | Bedrooms: | 3 | | Ceiling: | DRY WALL SPRAYED | Exterior Wall/Cover: | WOOD SIDING | | Floor Covering: | CARPET/VINYL 80-20 | Floor Structure: | WOOD W/SUBFLOOR | | Foundation: | CONCRETE | Heating: | BASEBOARD ELECTRIC | | Interior Finish: | DRYWALL PAINT | Plumbing Fixture Cnt: | 11 | | Roof Slope: | 4" IN 12" | Roof Structure/Cover: | CJ ASPHALT |
|
| | Type | Description | Class CD | Sub Class CD | Year Built | Area |
| | BAS | BASE/MAIN FLOOR | 3 | 0 | 1983 | 626.0 |
| | OP4 | OPEN PORCH W/CEILING-ROOF | 3 | 0 | 1983 | 28.0 |
| | BIG | BUILT IN GARAGE | 3 | 0 | 1983 | 312.0 |
| | UPS | UPPER STORY | 3 | 0 | 1983 | 760.0 |
| | OWP | OPEN WOOD PORCH W/STEPS | 3 | 0 | 1983 | 100.0 |
| | COMA | Common Area Improvement | 3 | 0 | 1983 | 0.0 |
Sketch
Property Image
Land
| 1 | 61 | MULTIPLE RESIDENCES | 0.2429 | 10580.72 | 0.00 | 0.00 | 1.00 | $160,000 | $0 |
Roll Value History
| 2026 | N/A | N/A | N/A | N/A | N/A |
| 2025 | $207,239 | $160,000 | $0 | $367,239 | $367,239 |
| 2024 | $214,290 | $150,000 | $0 | $364,290 | $364,290 |
| 2023 | $217,161 | $140,000 | $0 | $357,161 | $357,161 |
| 2022 | $199,346 | $130,000 | $0 | $329,346 | $329,346 |
| 2021 | $175,750 | $90,000 | $0 | $265,750 | $265,750 |
| 2020 | $171,024 | $90,000 | $0 | $261,024 | $261,024 |
| 2019 | $129,061 | $110,000 | $0 | $239,061 | $239,061 |
| 2018 | $129,529 | $65,000 | $0 | $194,529 | $194,529 |
| 2017 | $130,461 | $9,000 | $0 | $139,461 | $139,461 |
| 2016 | $132,325 | $9,000 | $0 | $141,325 | $141,325 |
| 2015 | $107,349 | $9,000 | $0 | $116,349 | $116,349 |
| 2014 | $108,841 | $9,000 | $0 | $117,841 | $117,841 |
| 2013 | $110,332 | $55,524 | $0 | $165,856 | $165,856 |
| 2012 | $113,313 | $55,524 | $0 | $168,837 | $168,837 |
| 2011 | $113,313 | $55,524 | $0 | $168,837 | $168,837 |
| 2010 | $119,455 | $31,728 | $0 | $151,183 | $151,183 |
| 2009 | $124,772 | $59,807 | $0 | $184,579 | $184,579 |
| 2008 | $126,506 | $66,153 | $0 | $192,659 | $192,659 |
| 2007 | $132,876 | $66,153 | $0 | $199,029 | $199,029 |
Deed and Sales History
| 1 | 08/16/2023 | WD | Warranty Deed | BEACH, ZACKARY | WEST, TRAVIS | | | $378,000.00 | 57675 | 4563696 |
| 2 | 08/03/2018 | WD | Warranty Deed | HOWER, JOSHUA M | BEACH, ZACKARY | | | $249,500.00 | 35495 | 4450032 |
| 3 | 09/18/2013 | WD | Warranty Deed | POTEETE, SAMANTHA JEAN | HOWER, JOSHUA M | | | $119,000.00 | 12958 | 4348862 |
| 4 | 12/20/2005 | DECREE | Divorce Decree/Legal Separation | BAHE, CHRISTOPHER/SAMANTHA | POTEETE, SAMANTHA JEAN | | | $0.00 | 70767 | 0 |
| 5 | 12/17/1996 | ESTSEPPROP | Establish Separate Property | POTEETE, SAMANTHA JEAN | POTEETE, SAMANTHA JEAN | | | $0.00 | 60380 | 4160951 |
| 6 | 06/01/1994 | WD | Warranty Deed | JOLLY, ALTA V | BAHE, CHRISTOPHER/SAMANTHA | | | $90,000.00 | 42398 | 94013442 |
| 7 | 09/01/1982 | WD | Warranty Deed | BESTWAY, CONSTRUCTION C | JOLLY, ALTA V | | | $63,900.00 | 22390 | 401342 |
| 8 | 01/01/1900 | OTHER | Other - Misc. Documents | Unknown | BESTWAY, CONSTRUCTION C | | | $0.00 | 0 | 0 |
Payout Agreement
| No payout information available.. |