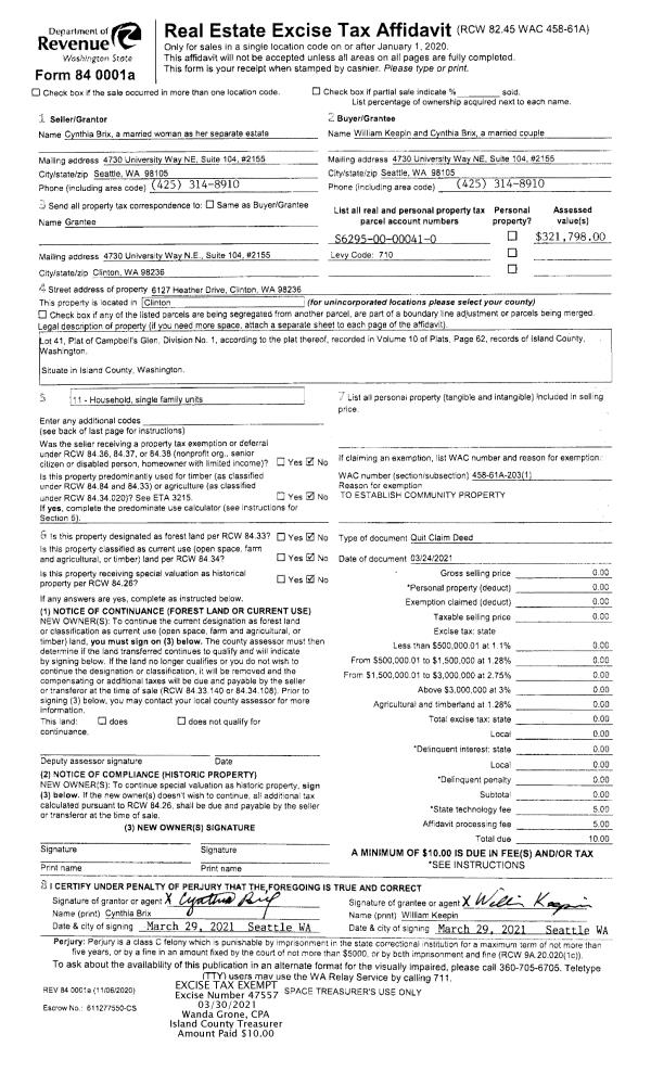
Property
Account |
| Property ID: | 526283 | Abbreviated Legal Description: | ISLANDER CONDO APT 6 7.4113% INT |
| Geographic ID: | S7231-00-00006-0 | Agent Code: | |
| Type: | Real | | |
| Tax Area: | 100 - APPRAISER-OH Schl Dist, in OH | Land Use Code | 14 |
| Open Space: | N | DFL | N |
| Historic Property: | N | Remodel Property: | N |
| Multi-Family Redevelopment: | N | | |
| Township: | | Section: | |
| Range: | |
Location |
| Address: | 645 NW ATALANTA WAY BLDG 645, UNIT 102 OAK HARBOR, WA 98277 | Mapsco: | |
| Neighborhood: | 4B*OH-islander | Map ID: | 253 |
| Neighborhood CD: | 4B*OHisldr |
Owner |
| Name: | WAGONER, KYLE | Owner ID: | 280055 |
| Mailing Address: | 645 NW ATALANTA WAY #102 OAK HARBOR, WA 98277 | % Ownership: | 100.0000000000% |
| | | Exemptions: | |
Taxes and Assessment Details
Values
| (+) Improvement Homesite Value: | + | $0 | |
| (+) Improvement Non-Homesite Value: | + | $153,013 | |
| (+) Land Homesite Value: | + | $0 | |
| (+) Land Non-Homesite Value: | + | $100,000 | |
| (+) Curr Use (HS): | + | $0 | $0 |
| (+) Curr Use (NHS): | + | $0 | $0 |
| | | -------------------------- | |
| (=) Market Value: | = | $253,013 | |
| (–) Productivity Loss: | – | $0 | |
| | | -------------------------- | |
| (=) Subtotal: | = | $253,013 | |
| (+) Senior Appraised Value: | + | $0 | |
| (+) Non-Senior Appraised Value: | + | $253,013 | |
| | | -------------------------- | |
| (=) Total Appraised Value: | = | $253,013 | |
| (–) Senior Exemption Loss: | – | $0 | |
| (–) Exemption Loss: | – | $0 | |
| | | -------------------------- | |
| (=) Taxable Value: | = | $253,013 | |
Taxing Jurisdiction
| Owner: | WAGONER, KYLE | | |
| % Ownership: | 100.0000000000% | | |
| Total Value: | $253,013 | | |
| Tax Area: | 100 - APPRAISER-OH Schl Dist, in OH |
| CF | Conservation Futures | 0.0316035091 | $253,013 | $253,013 | $8.00 | | |
| CEM1 | Cemetery #1 | 0.0040320932 | $253,013 | $253,013 | $1.02 | | |
| COH | City of Oak Harbor | 2.3001546061 | $253,013 | $253,013 | $581.97 | | |
| OAKBOND | City of Oak Harbor BOND | 0.1926904192 | $253,013 | $253,013 | $48.75 | | |
| HOBOND | Hospital BOND | 0.1910887512 | $253,013 | $253,013 | $48.35 | | |
| HOGEN | Hospital GEN | 0.3902502903 | $253,013 | $253,013 | $98.74 | | |
| CE | County Current Expense | 0.3708482477 | $253,013 | $253,013 | $93.83 | | |
| ISLANDEMS | Hospital GEN (EMS) | 0.5000000000 | $253,013 | $253,013 | $126.51 | | |
| LIB | Library Sno-Isle GEN | 0.3153421757 | $253,013 | $253,013 | $79.79 | | |
| NWHIDPRMT | P & R N Whidbey GEN | 0.2004466701 | $253,013 | $253,013 | $50.72 | | |
| SCH201MO | School 201 Enrichment | 1.8559231640 | $253,013 | $253,013 | $469.57 | | |
| ST | State School | 1.3035497053 | $253,013 | $253,013 | $329.82 | | |
| ST2 | State School Part 2 | 0.8169543533 | $253,013 | $253,013 | $206.70 | | |
| | Total Tax Rate: | 8.4728839852 | | | | | |
| | | | | Taxes w/Current Exemptions: | $2,143.77 | | |
| | | | | Taxes w/o Exemptions: | $2,143.77 | | |
Improvement / Building
| Improvement #1: | RESIDENTIAL | State Code: | A1 | 966.0 sqft | Value: | $153,013 |
| Bathrooms: | 1 | Bedrooms: | 2 | | Ceiling: | DRY WALL SPRAYED | Exterior Wall/Cover: | PLY/HARDBOARD T-111 | | Floor Covering: | CARPET/VINYL 80-20 | Floor Structure: | WOOD W/SUBFLOOR | | Foundation: | SLAB/CONCRETE | Heating: | BASEBOARD ELECTRIC | | Interior Finish: | DRYWALL PAINT | Plumbing Fixture Cnt: | 6 | | Roof Slope: | 4" IN 12" | Roof Structure/Cover: | CJ ASPHALT |
|
| | Type | Description | Class CD | Sub Class CD | Year Built | Area |
| | BAS | BASE/MAIN FLOOR | 3 | 0 | 1980 | 966.0 |
| | OWP | OPEN WOOD PORCH W/STEPS | 3 | 0 | 1980 | 160.0 |
| | ENP | ENCLOSED PORCH | 3 | 0 | 1980 | 56.0 |
| | DGR | DETACHED GARAGE | 3 | 0 | 1980 | 242.0 |
| | COMA | Common Area Improvement | 3 | 0 | 1980 | 0.0 |
Sketch
Property Image
Land
| 1 | 61 | MULTIPLE RESIDENCES | 0.0000 | 4121.00 | 0.00 | 0.00 | 1.00 | $100,000 | $0 |
Roll Value History
| 2026 | N/A | N/A | N/A | N/A | N/A |
| 2025 | $153,013 | $100,000 | $0 | $253,013 | $253,013 |
| 2024 | $158,481 | $100,000 | $0 | $258,481 | $258,481 |
| 2023 | $160,550 | $100,000 | $0 | $260,550 | $260,550 |
| 2022 | $147,325 | $75,000 | $0 | $222,325 | $222,325 |
| 2021 | $129,836 | $35,000 | $0 | $164,836 | $164,836 |
| 2020 | $101,575 | $40,000 | $0 | $141,575 | $141,575 |
| 2019 | $72,140 | $70,000 | $0 | $142,140 | $142,140 |
| 2018 | $72,411 | $65,000 | $0 | $137,411 | $137,411 |
| 2017 | $72,952 | $32,226 | $0 | $105,178 | $105,178 |
| 2016 | $74,034 | $32,226 | $0 | $106,260 | $106,260 |
| 2015 | $75,117 | $32,226 | $0 | $107,343 | $107,343 |
| 2014 | $75,360 | $32,226 | $0 | $107,586 | $107,586 |
| 2013 | $76,371 | $32,226 | $0 | $108,597 | $108,597 |
| 2012 | $78,395 | $32,226 | $0 | $110,621 | $110,621 |
| 2011 | $78,395 | $32,226 | $0 | $110,621 | $110,621 |
| 2010 | $84,619 | $10,921 | $0 | $95,540 | $95,540 |
| 2009 | $87,060 | $57,694 | $0 | $144,754 | $144,754 |
| 2008 | $82,443 | $70,057 | $0 | $152,500 | $152,500 |
| 2007 | $83,441 | $70,057 | $0 | $153,498 | $153,498 |
Deed and Sales History
| 1 | 04/19/2019 | WD | Warranty Deed | ELMGREEN, ARTHUR C / GINNEY S | WAGONER, KYLE | | | $149,900.00 | 38043 | 4461280 |
| 2 | 02/01/1996 | QCD | Quit Claim Deed | ELMGREEN, ARTHUR C | ELMGREEN, ARTHUR C | | | $0.00 | 62370 | 96011752 |
| 3 | 12/01/1992 | PACD | Purchaser's Assignment | LEDERER, BERT & | ELMGREEN, ARTHUR C | | | $0.00 | 24877 | 92024054 |
| 4 | 10/01/1992 | REC | Real Estate Contract | ADMIN, VETERANS A | LEDERER, BERT & | | | $48,500.00 | 24265 | 92020819 |
| 5 | 09/01/1986 | TRUSTEED | Trustee's Deed | LUDOLPH, BILLY G | SEARS, MORTGAGE C | | | $0.00 | 62764 | 86012506 |
| 6 | 09/01/1986 | WD | Warranty Deed | SEARS, MORTGAGE C | ADMIN, VETERANS A | | | $0.00 | 62765 | 86012507 |
| 7 | 06/01/1984 | WD | Warranty Deed | SOTOMAYOR, CHARLES A | LUDOLPH, BILLY G | | | $51,000.00 | 41786 | 426194 |
| 8 | 10/01/1981 | REC | Real Estate Contract | DANARD, CUSTOM H | SOTOMAYOR, CHARLES A | | | $52,500.00 | 13340 | 389419 |
| 9 | 01/01/1900 | OTHER | Other - Misc. Documents | Unknown | DANARD, CUSTOM H | | | $0.00 | 0 | 0 |
Payout Agreement
| No payout information available.. |