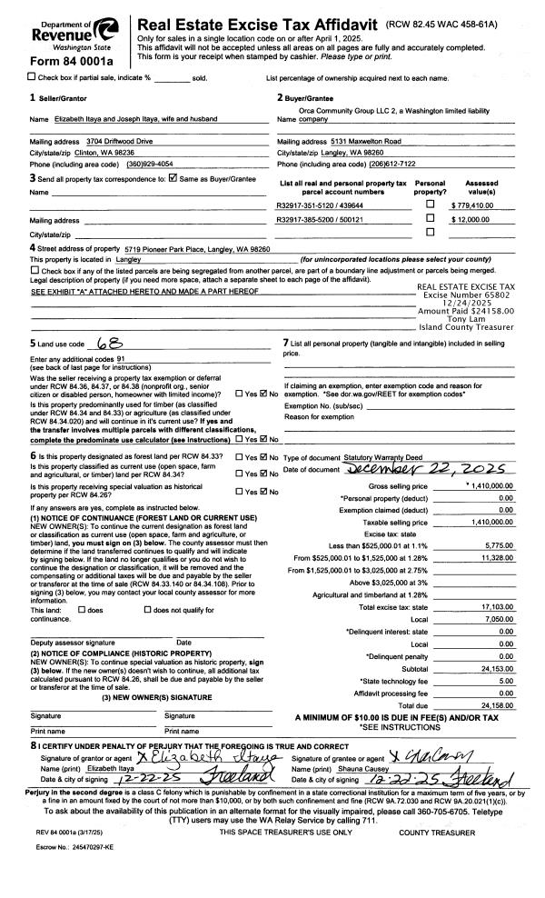
Property
Account |
| Property ID: | 526407 | Abbreviated Legal Description: | MAPLE WOOD CONDO APT 202 7.24% INT |
| Geographic ID: | S7478-00-00202-0 | Agent Code: | |
| Type: | Real | | |
| Tax Area: | 100 - APPRAISER-OH Schl Dist, in OH | Land Use Code | 14 |
| Open Space: | N | DFL | N |
| Historic Property: | N | Remodel Property: | N |
| Multi-Family Redevelopment: | N | | |
| Township: | | Section: | |
| Range: | |
Location |
| Address: | 1201 SW HARRIER CIR APT 202 OAK HARBOR, WA 98277 | Mapsco: | |
| Neighborhood: | 3B*OH-maplewood | Map ID: | 93 |
| Neighborhood CD: | 3B*OHmplwd |
Owner |
| Name: | MARCUM, DANE PATRICK | Owner ID: | 317342 |
| Mailing Address: | ALEXIA IHUTCHINS 1201 SW HARRIER CIT APT 202 OAK HARBOR, WA 98277 | % Ownership: | 100.0000000000% |
| | | Exemptions: | |
Taxes and Assessment Details
Values
| (+) Improvement Homesite Value: | + | $0 | |
| (+) Improvement Non-Homesite Value: | + | $113,148 | |
| (+) Land Homesite Value: | + | $0 | |
| (+) Land Non-Homesite Value: | + | $70,000 | |
| (+) Curr Use (HS): | + | $0 | $0 |
| (+) Curr Use (NHS): | + | $0 | $0 |
| | | -------------------------- | |
| (=) Market Value: | = | $183,148 | |
| (–) Productivity Loss: | – | $0 | |
| | | -------------------------- | |
| (=) Subtotal: | = | $183,148 | |
| (+) Senior Appraised Value: | + | $0 | |
| (+) Non-Senior Appraised Value: | + | $183,148 | |
| | | -------------------------- | |
| (=) Total Appraised Value: | = | $183,148 | |
| (–) Senior Exemption Loss: | – | $0 | |
| (–) Exemption Loss: | – | $0 | |
| | | -------------------------- | |
| (=) Taxable Value: | = | $183,148 | |
Taxing Jurisdiction
| Owner: | MARCUM, DANE PATRICK | | |
| % Ownership: | 100.0000000000% | | |
| Total Value: | $183,148 | | |
| Tax Area: | 100 - APPRAISER-OH Schl Dist, in OH |
| CF | Conservation Futures | 0.0316035091 | $183,148 | $183,148 | $5.79 | | |
| CEM1 | Cemetery #1 | 0.0040320932 | $183,148 | $183,148 | $0.74 | | |
| COH | City of Oak Harbor | 2.3001546061 | $183,148 | $183,148 | $421.27 | | |
| OAKBOND | City of Oak Harbor BOND | 0.1926904192 | $183,148 | $183,148 | $35.29 | | |
| HOBOND | Hospital BOND | 0.1910887512 | $183,148 | $183,148 | $35.00 | | |
| HOGEN | Hospital GEN | 0.3902502903 | $183,148 | $183,148 | $71.47 | | |
| CE | County Current Expense | 0.3708482477 | $183,148 | $183,148 | $67.92 | | |
| ISLANDEMS | Hospital GEN (EMS) | 0.5000000000 | $183,148 | $183,148 | $91.57 | | |
| LIB | Library Sno-Isle GEN | 0.3153421757 | $183,148 | $183,148 | $57.75 | | |
| NWHIDPRMT | P & R N Whidbey GEN | 0.2004466701 | $183,148 | $183,148 | $36.71 | | |
| SCH201MO | School 201 Enrichment | 1.8559231640 | $183,148 | $183,148 | $339.91 | | |
| ST | State School | 1.3035497053 | $183,148 | $183,148 | $238.74 | | |
| ST2 | State School Part 2 | 0.8169543533 | $183,148 | $183,148 | $149.62 | | |
| | Total Tax Rate: | 8.4728839852 | | | | | |
| | | | | Taxes w/Current Exemptions: | $1,551.78 | | |
| | | | | Taxes w/o Exemptions: | $1,551.78 | | |
Improvement / Building
| Improvement #1: | RESIDENTIAL | State Code: | A1 | 785.0 sqft | Value: | $113,148 |
| Bathrooms: | 1 | Bedrooms: | 2 | | Ceiling: | DRY WALL SPRAYED | Exterior Wall/Cover: | WOOD SIDING | | Floor Covering: | CARPET/VINYL 80-20 | Floor Structure: | WOOD W/SUBFLOOR | | Foundation: | CONCRETE | Heating: | BASEBOARD ELECTRIC | | Interior Finish: | DRYWALL PAINT | Plumbing Fixture Cnt: | 6 | | Roof Slope: | 4" IN 12" | Roof Structure/Cover: | CJ ASPHALT |
|
| | Type | Description | Class CD | Sub Class CD | Year Built | Area |
| | BAS | BASE/MAIN FLOOR | 3 | 0 | 1980 | 785.0 |
| | UTY | STORAGE/UTILITY | 3 | 0 | 1980 | 18.0 |
| | OWP | OPEN WOOD PORCH W/STEPS | 3 | 0 | 1980 | 84.0 |
| | COMA | Common Area Improvement | 3 | 0 | 1980 | 0.0 |
Sketch
Property Image
Land
| 1 | 61 | MULTIPLE RESIDENCES | 0.0000 | 2407.00 | 0.00 | 0.00 | 1.00 | $70,000 | $0 |
Roll Value History
| 2026 | N/A | N/A | N/A | N/A | N/A |
| 2025 | $113,148 | $70,000 | $0 | $183,148 | $183,148 |
| 2024 | $117,184 | $70,000 | $0 | $187,184 | $187,184 |
| 2023 | $118,938 | $70,000 | $0 | $188,938 | $188,938 |
| 2022 | $109,387 | $70,000 | $0 | $179,387 | $179,387 |
| 2021 | $96,636 | $50,000 | $0 | $146,636 | $146,636 |
| 2020 | $94,215 | $30,000 | $0 | $124,215 | $124,215 |
| 2019 | $51,172 | $65,000 | $0 | $116,172 | $116,172 |
| 2018 | $51,365 | $65,000 | $0 | $116,365 | $116,365 |
| 2017 | $51,747 | $18,800 | $0 | $70,547 | $70,547 |
| 2016 | $52,510 | $18,800 | $0 | $71,310 | $71,310 |
| 2015 | $53,274 | $18,800 | $0 | $72,074 | $72,074 |
| 2014 | $54,037 | $18,800 | $0 | $72,837 | $72,837 |
| 2013 | $55,532 | $18,823 | $0 | $74,355 | $74,355 |
| 2012 | $57,080 | $18,823 | $0 | $75,903 | $75,903 |
| 2011 | $57,080 | $18,823 | $0 | $75,903 | $75,903 |
| 2010 | $60,640 | $41,063 | $0 | $101,703 | $101,703 |
| 2009 | $63,343 | $57,768 | $0 | $121,111 | $121,111 |
| 2008 | $63,454 | $23,348 | $0 | $86,802 | $86,802 |
| 2007 | $63,053 | $23,348 | $0 | $86,401 | $86,401 |
Deed and Sales History
| 1 | 07/08/2025 | WD | Warranty Deed | POWELL, BRIAN L | MARCUM, DANE PATRICK | | | $222,000.00 | 64112 | 4588067 |
| 2 | 01/05/2005 | WD | Warranty Deed | MC CLIMANS, JOHN L | POWELL, BRIAN L | | | $84,500.00 | 50103 | 4122810 |
| 3 | 12/02/2003 | WD | Warranty Deed | GERBER, ERIC M | MC CLIMANS, JOHN L | | | $56,000.00 | 35816 | 4087517 |
| 4 | 05/01/1995 | WD | Warranty Deed | DIEM, ROBERT C | GERBER, ERIC M | | | $51,950.00 | 51548 | 95007278 |
| 5 | 07/01/1993 | WD | Warranty Deed | DIEM, CHARLES R | DIEM, ROBERT C | | | $41,000.00 | 32786 | 93014397 |
| 6 | 05/01/1988 | WD | Warranty Deed | MASSEY, WILLIAM L | DIEM, CHARLES R | | | $39,950.00 | 81433 | 88005358 |
| 7 | 05/01/1988 | WD | Warranty Deed | DIEM, CHARLES R | DIEM, CHARLES R | | | $0.00 | 81910 | 88007044 |
| 8 | 06/01/1985 | QCD | Quit Claim Deed | BREEDLOVE, ELGIN & | MASSEY, WILLIAM L | | | $0.00 | 51794 | 85007007 |
| 9 | 11/01/1981 | REC | Real Estate Contract | MASSEY, W L | BREEDLOVE, ELGIN & | | | $38,500.00 | 13387 | 389639 |
| 10 | 09/01/1980 | WD | Warranty Deed | Unknown | MASSEY, W L | | | $5,090.00 | 3236 | 374303 |
Payout Agreement
| No payout information available.. |