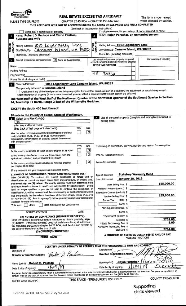
Property
Account |
| Property ID: | 526443 | Abbreviated Legal Description: | MAPLE WOOD CONDO APT 206 6.48% INT |
| Geographic ID: | S7478-00-00206-0 | Agent Code: | |
| Type: | Real | | |
| Tax Area: | 100 - APPRAISER-OH Schl Dist, in OH | Land Use Code | 14 |
| Open Space: | N | DFL | N |
| Historic Property: | N | Remodel Property: | N |
| Multi-Family Redevelopment: | N | | |
| Township: | | Section: | |
| Range: | |
Location |
| Address: | 1201 SW HARRIER CIR APT 206 OAK HARBOR, WA 98277 | Mapsco: | |
| Neighborhood: | 3B*OH-maplewood | Map ID: | 93 |
| Neighborhood CD: | 3B*OHmplwd |
Owner |
| Name: | DOIRON TTEE, DIANE B | Owner ID: | 288554 |
| Mailing Address: | 333 OLD MILL RD #258 SANTA BARBARA, CA 93110 | % Ownership: | 100.0000000000% |
| | | Exemptions: | |
Taxes and Assessment Details
Values
| (+) Improvement Homesite Value: | + | $0 | |
| (+) Improvement Non-Homesite Value: | + | $107,370 | |
| (+) Land Homesite Value: | + | $0 | |
| (+) Land Non-Homesite Value: | + | $70,000 | |
| (+) Curr Use (HS): | + | $0 | $0 |
| (+) Curr Use (NHS): | + | $0 | $0 |
| | | -------------------------- | |
| (=) Market Value: | = | $177,370 | |
| (–) Productivity Loss: | – | $0 | |
| | | -------------------------- | |
| (=) Subtotal: | = | $177,370 | |
| (+) Senior Appraised Value: | + | $0 | |
| (+) Non-Senior Appraised Value: | + | $177,370 | |
| | | -------------------------- | |
| (=) Total Appraised Value: | = | $177,370 | |
| (–) Senior Exemption Loss: | – | $0 | |
| (–) Exemption Loss: | – | $0 | |
| | | -------------------------- | |
| (=) Taxable Value: | = | $177,370 | |
Taxing Jurisdiction
| Owner: | DOIRON TTEE, DIANE B | | |
| % Ownership: | 100.0000000000% | | |
| Total Value: | $177,370 | | |
| Tax Area: | 100 - APPRAISER-OH Schl Dist, in OH |
| CF | Conservation Futures | 0.0316035091 | $177,370 | $177,370 | $5.61 | | |
| CEM1 | Cemetery #1 | 0.0040320932 | $177,370 | $177,370 | $0.72 | | |
| COH | City of Oak Harbor | 2.3001546061 | $177,370 | $177,370 | $407.98 | | |
| OAKBOND | City of Oak Harbor BOND | 0.1926904192 | $177,370 | $177,370 | $34.18 | | |
| HOBOND | Hospital BOND | 0.1910887512 | $177,370 | $177,370 | $33.89 | | |
| HOGEN | Hospital GEN | 0.3902502903 | $177,370 | $177,370 | $69.22 | | |
| CE | County Current Expense | 0.3708482477 | $177,370 | $177,370 | $65.78 | | |
| ISLANDEMS | Hospital GEN (EMS) | 0.5000000000 | $177,370 | $177,370 | $88.69 | | |
| LIB | Library Sno-Isle GEN | 0.3153421757 | $177,370 | $177,370 | $55.93 | | |
| NWHIDPRMT | P & R N Whidbey GEN | 0.2004466701 | $177,370 | $177,370 | $35.55 | | |
| SCH201MO | School 201 Enrichment | 1.8559231640 | $177,370 | $177,370 | $329.19 | | |
| ST | State School | 1.3035497053 | $177,370 | $177,370 | $231.21 | | |
| ST2 | State School Part 2 | 0.8169543533 | $177,370 | $177,370 | $144.90 | | |
| | Total Tax Rate: | 8.4728839852 | | | | | |
| | | | | Taxes w/Current Exemptions: | $1,502.85 | | |
| | | | | Taxes w/o Exemptions: | $1,502.85 | | |
Improvement / Building
| Improvement #1: | RESIDENTIAL | State Code: | A1 | 730.5 sqft | Value: | $107,370 |
| Bathrooms: | 1 | Bedrooms: | 1 | | Ceiling: | DRY WALL SPRAYED | Exterior Wall/Cover: | WOOD SIDING | | Floor Covering: | CARPET/VINYL 80-20 | Floor Structure: | WOOD W/SUBFLOOR | | Foundation: | CONCRETE | Heating: | BASEBOARD ELECTRIC | | Interior Finish: | DRYWALL PAINT | Plumbing Fixture Cnt: | 6 | | Roof Slope: | 4" IN 12" | Roof Structure/Cover: | CJ ASPHALT |
|
| | Type | Description | Class CD | Sub Class CD | Year Built | Area |
| | BAS | BASE/MAIN FLOOR | 3 | 0 | 1980 | 730.5 |
| | UTY | STORAGE/UTILITY | 3 | 0 | 1980 | 18.0 |
| | OWP | OPEN WOOD PORCH W/STEPS | 3 | 0 | 1980 | 90.0 |
| | COMA | Common Area Improvement | 3 | 0 | 1980 | 0.0 |
Sketch
Property Image
Land
| 1 | 61 | MULTIPLE RESIDENCES | 0.0000 | 2157.00 | 0.00 | 0.00 | 1.00 | $70,000 | $0 |
Roll Value History
| 2026 | N/A | N/A | N/A | N/A | N/A |
| 2025 | $107,370 | $70,000 | $0 | $177,370 | $177,370 |
| 2024 | $111,200 | $70,000 | $0 | $181,200 | $181,200 |
| 2023 | $112,873 | $70,000 | $0 | $182,873 | $182,873 |
| 2022 | $103,758 | $70,000 | $0 | $173,758 | $173,758 |
| 2021 | $91,586 | $50,000 | $0 | $141,586 | $141,586 |
| 2020 | $89,226 | $30,000 | $0 | $119,226 | $119,226 |
| 2019 | $47,792 | $65,000 | $0 | $112,792 | $112,792 |
| 2018 | $47,974 | $65,000 | $0 | $112,974 | $112,974 |
| 2017 | $48,311 | $18,800 | $0 | $67,111 | $67,111 |
| 2016 | $49,037 | $18,800 | $0 | $67,837 | $67,837 |
| 2015 | $49,765 | $18,800 | $0 | $68,565 | $68,565 |
| 2014 | $50,491 | $18,800 | $0 | $69,291 | $69,291 |
| 2013 | $52,009 | $16,868 | $0 | $68,877 | $68,877 |
| 2012 | $53,486 | $16,868 | $0 | $70,354 | $70,354 |
| 2011 | $53,486 | $16,868 | $0 | $70,354 | $70,354 |
| 2010 | $56,465 | $36,798 | $0 | $93,263 | $93,263 |
| 2009 | $58,921 | $51,768 | $0 | $110,689 | $110,689 |
| 2008 | $58,921 | $20,923 | $0 | $79,844 | $79,844 |
| 2007 | $59,663 | $20,923 | $0 | $80,586 | $80,586 |
Deed and Sales History
| 1 | 01/18/2019 | WD | Warranty Deed | DIAMOND PLACE PROPERTIES, LLC | DOIRON TTEE, DIANE B | | | $110,000.00 | 37362 | 4458183 |
| 2 | 02/18/2016 | CHGOFIDENT | DNU - Change In Identity | DIAMOND, JOHN L | DIAMOND PLACE PROPERTIES, LLC | | | $0.00 | 23290 | 4394729 |
| 3 | 09/25/2015 | WD | Warranty Deed | PATTERSON, JERRY C / MARILYN | DIAMOND, JOHN L | | | $67,300.00 | 21594 | 4387020 |
| 4 | 09/02/1998 | QCD | Quit Claim Deed | PATTERSON, JERRY C | PATTERSON, JERRY C/MARILYN | | | $0.00 | 83595 | 98018854 |
| 5 | 03/01/1997 | WD | Warranty Deed | FENNELL, WILLIAM H | PATTERSON, JERRY C | | | $42,000.00 | 70922 | 97004227 |
| 6 | 07/01/1990 | WD | Warranty Deed | LANGLOIS, LYNN L | FENNELL, WILLIAM H | | | $34,000.00 | 4614 | 90015286 |
| 7 | 04/01/1983 | WD | Warranty Deed | MASSEY, W L | LANGLOIS, LYNN L | | | $28,950.00 | 30864 | 407972 |
| 8 | 09/01/1980 | WD | Warranty Deed | Unknown | MASSEY, W L | | | $5,090.00 | 3236 | 374303 |
Payout Agreement
| No payout information available.. |