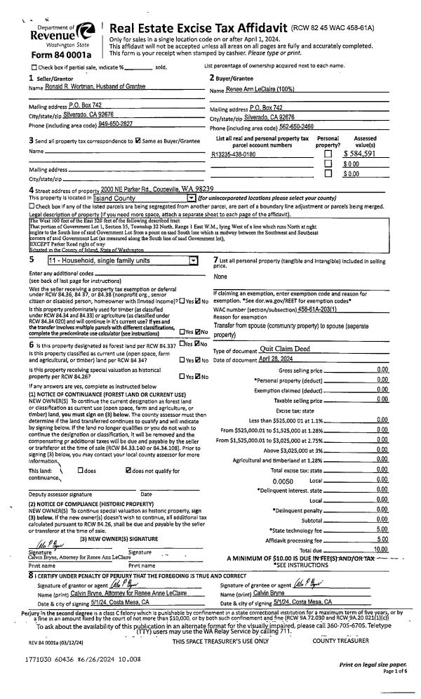
Property
Account |
| Property ID: | 526577 | Abbreviated Legal Description: | DOWNING #1 LOT 9 |
| Geographic ID: | S6498-00-00009-0 | Agent Code: | |
| Type: | Real | | |
| Tax Area: | 100 - APPRAISER-OH Schl Dist, in OH | Land Use Code | 11 |
| Open Space: | N | DFL | N |
| Historic Property: | N | Remodel Property: | N |
| Multi-Family Redevelopment: | N | | |
| Township: | | Section: | |
| Range: | |
Location |
| Address: | 1175 NW KITSAP TERRACE OAK HARBOR, WA 98277 | Mapsco: | |
| Neighborhood: | Cycle 1 | Map ID: | 252 |
| Neighborhood CD: | 1 |
Owner |
| Name: | BEZOLD, LARRY L / LORETTA D | Owner ID: | 105761 |
| Mailing Address: | 1175 NW KITSAP TER OAK HARBOR, WA 98277-4485 | % Ownership: | 100.0000000000% |
| | | Exemptions: | |
Taxes and Assessment Details
Values
| (+) Improvement Homesite Value: | + | $0 | |
| (+) Improvement Non-Homesite Value: | + | $368,562 | |
| (+) Land Homesite Value: | + | $0 | |
| (+) Land Non-Homesite Value: | + | $200,000 | |
| (+) Curr Use (HS): | + | $0 | $0 |
| (+) Curr Use (NHS): | + | $0 | $0 |
| | | -------------------------- | |
| (=) Market Value: | = | $568,562 | |
| (–) Productivity Loss: | – | $0 | |
| | | -------------------------- | |
| (=) Subtotal: | = | $568,562 | |
| (+) Senior Appraised Value: | + | $0 | |
| (+) Non-Senior Appraised Value: | + | $568,562 | |
| | | -------------------------- | |
| (=) Total Appraised Value: | = | $568,562 | |
| (–) Senior Exemption Loss: | – | $0 | |
| (–) Exemption Loss: | – | $0 | |
| | | -------------------------- | |
| (=) Taxable Value: | = | $568,562 | |
Taxing Jurisdiction
| Owner: | BEZOLD, LARRY L / LORETTA D | | |
| % Ownership: | 100.0000000000% | | |
| Total Value: | $568,562 | | |
| Tax Area: | 100 - APPRAISER-OH Schl Dist, in OH |
| CF | Conservation Futures | 0.0316035091 | $568,562 | $568,562 | $17.97 | | |
| CEM1 | Cemetery #1 | 0.0040320932 | $568,562 | $568,562 | $2.29 | | |
| COH | City of Oak Harbor | 2.3001546061 | $568,562 | $568,562 | $1,307.78 | | |
| OAKBOND | City of Oak Harbor BOND | 0.1926904192 | $568,562 | $568,562 | $109.56 | | |
| HOBOND | Hospital BOND | 0.1910887512 | $568,562 | $568,562 | $108.65 | | |
| HOGEN | Hospital GEN | 0.3902502903 | $568,562 | $568,562 | $221.88 | | |
| CE | County Current Expense | 0.3708482477 | $568,562 | $568,562 | $210.85 | | |
| ISLANDEMS | Hospital GEN (EMS) | 0.5000000000 | $568,562 | $568,562 | $284.28 | | |
| LIB | Library Sno-Isle GEN | 0.3153421757 | $568,562 | $568,562 | $179.29 | | |
| NWHIDPRMT | P & R N Whidbey GEN | 0.2004466701 | $568,562 | $568,562 | $113.97 | | |
| SCH201MO | School 201 Enrichment | 1.8559231640 | $568,562 | $568,562 | $1,055.21 | | |
| ST | State School | 1.3035497053 | $568,562 | $568,562 | $741.15 | | |
| ST2 | State School Part 2 | 0.8169543533 | $568,562 | $568,562 | $464.49 | | |
| | Total Tax Rate: | 8.4728839852 | | | | | |
| | | | | Taxes w/Current Exemptions: | $4,817.37 | | |
| | | | | Taxes w/o Exemptions: | $4,817.37 | | |
Improvement / Building
| Improvement #1: | RESIDENTIAL | State Code: | Y | 2701.6 sqft | Value: | $368,562 |
| Bathrooms: | 3 | Bedrooms: | 0 | | Ceiling: | DRYWALL PAINTED | Exterior Wall/Cover: | WOOD SIDING | | Floor Covering: | HARDWOOD/CARP 60-40 | Floor Structure: | WOOD W/SUBFLOOR | | Foundation: | CONCRETE | Heating: | FHA GAS | | Interior Finish: | DRYWALL PAINT | Plumbing Fixture Cnt: | 12 | | Roof Slope: | 6" IN 12" | Roof Structure/Cover: | CJ ASPHALT |
|
| | Type | Description | Class CD | Sub Class CD | Year Built | Area |
| | BAS | BASE/MAIN FLOOR | 3 | 0 | 1987 | 1435.8 |
| | AGR | ATTACHED GARAGE | 3 | 0 | 1987 | 520.0 |
| | UPS | UPPER STORY | 3 | 0 | 1987 | 1265.8 |
| | OWP | OPEN WOOD PORCH W/STEPS | 3 | 0 | 1987 | 538.0 |
| | OWC | OPEN WOOD PORCH W/STEPS/ROOF/C | 3 | 0 | 1987 | 70.0 |
Sketch
Property Image
Land
| 1 | 14 | SQ (08001-12000) | 0.0000 | 0.00 | 0.00 | 0.00 | 1.00 | $200,000 | $0 |
Roll Value History
| 2026 | N/A | N/A | N/A | N/A | N/A |
| 2025 | $368,562 | $200,000 | $0 | $568,562 | $568,562 |
| 2024 | $373,526 | $190,000 | $0 | $563,526 | $563,526 |
| 2023 | $363,598 | $190,000 | $0 | $553,598 | $553,598 |
| 2022 | $333,728 | $180,000 | $0 | $513,728 | $513,728 |
| 2021 | $294,100 | $120,000 | $0 | $414,100 | $414,100 |
| 2020 | $287,561 | $100,000 | $0 | $387,561 | $387,561 |
| 2019 | $226,886 | $150,000 | $0 | $376,886 | $376,886 |
| 2018 | $227,620 | $130,000 | $0 | $357,620 | $357,620 |
| 2017 | $229,478 | $110,000 | $0 | $339,478 | $339,478 |
| 2016 | $232,580 | $90,000 | $0 | $322,580 | $322,580 |
| 2015 | $235,681 | $70,000 | $0 | $305,681 | $305,681 |
| 2014 | $238,782 | $55,000 | $0 | $293,782 | $293,782 |
| 2013 | $241,884 | $55,000 | $0 | $296,884 | $296,884 |
| 2012 | $244,983 | $65,000 | $0 | $309,983 | $309,983 |
| 2011 | $244,564 | $65,000 | $0 | $309,564 | $309,564 |
| 2010 | $257,197 | $65,000 | $0 | $322,197 | $322,197 |
| 2009 | $268,140 | $87,150 | $0 | $355,290 | $355,290 |
| 2008 | $271,378 | $105,000 | $0 | $376,378 | $376,378 |
| 2007 | $274,591 | $105,000 | $0 | $379,591 | $379,591 |
Deed and Sales History
| 1 | 11/01/1997 | WD | Warranty Deed | JONES, DELELLIS | BEZOLD, LARRY L | | | $220,000.00 | 74066 | 97019515 |
| 2 | 12/01/1996 | PRD | Personal Representatives Deed | JONES, WILLIAM J | JONES, DELELLIS | | | $0.00 | 70102 | 97000372 |
| 3 | 02/01/1994 | WD | Warranty Deed | MILLER, VICKIE I | JONES, WILLIAM J | | | $227,500.00 | 40740 | 94004638 |
| 4 | 10/01/1982 | EZ | Easement | SIEGWARTH, CHARLES E | MILLER, VICKIE I | | | $18,800.00 | 22483 | 401740 |
| 5 | 05/01/1982 | CD | DNU - Correction Deed | SIEGWARTH, CHARLES E | SIEGWARTH, CHARLES E | | | $1.00 | 21243 | 396709 |
| 6 | 02/01/1982 | EXECUTORD | Executor Deed | CHURCHILL, GEORGE B | SIEGWARTH, CHARLES E | | | $17,500.00 | 20231 | 392645 |
| 7 | 10/01/1981 | CD | DNU - Correction Deed | CHURCHILL, GEORGE B | CHURCHILL, GEORGE B | | | $0.00 | 13847 | 391400 |
| 8 | 01/01/1900 | OTHER | Other - Misc. Documents | Unknown | CHURCHILL, GEORGE B | | | $0.00 | 0 | 0 |
Payout Agreement
| No payout information available.. |