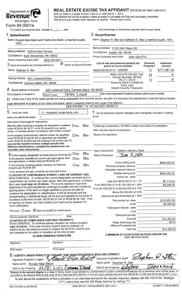
Property
Account |
| Property ID: | 526737 | Abbreviated Legal Description: | CAMANO COUNTRY CLUB #24 LOT 13 |
| Geographic ID: | S6250-24-00013-0 | Agent Code: | |
| Type: | Real | | |
| Tax Area: | 510 - APPRAISER-Stan/Cam Schl Dist, improved & 1 acre or less | Land Use Code | 11 |
| Open Space: | N | DFL | N |
| Historic Property: | N | Remodel Property: | N |
| Multi-Family Redevelopment: | N | | |
| Township: | | Section: | |
| Range: | |
Location |
| Address: | 1225 TERRACE PLACE CAMANO ISLAND, WA 98282 | Mapsco: | |
| Neighborhood: | Cycle 5 | Map ID: | 507 |
| Neighborhood CD: | 5 |
Owner |
| Name: | NEFF, NICOLE | Owner ID: | 310875 |
| Mailing Address: | 1225 TERRACE PL CAMANO ISLAND, WA 98282 | % Ownership: | 100.0000000000% |
| | | Exemptions: | |
Taxes and Assessment Details
Values
| (+) Improvement Homesite Value: | + | $0 | |
| (+) Improvement Non-Homesite Value: | + | $289,991 | |
| (+) Land Homesite Value: | + | $0 | |
| (+) Land Non-Homesite Value: | + | $250,000 | |
| (+) Curr Use (HS): | + | $0 | $0 |
| (+) Curr Use (NHS): | + | $0 | $0 |
| | | -------------------------- | |
| (=) Market Value: | = | $539,991 | |
| (–) Productivity Loss: | – | $0 | |
| | | -------------------------- | |
| (=) Subtotal: | = | $539,991 | |
| (+) Senior Appraised Value: | + | $0 | |
| (+) Non-Senior Appraised Value: | + | $539,991 | |
| | | -------------------------- | |
| (=) Total Appraised Value: | = | $539,991 | |
| (–) Senior Exemption Loss: | – | $0 | |
| (–) Exemption Loss: | – | $0 | |
| | | -------------------------- | |
| (=) Taxable Value: | = | $539,991 | |
Taxing Jurisdiction
| Owner: | NEFF, NICOLE | | |
| % Ownership: | 100.0000000000% | | |
| Total Value: | $539,991 | | |
| Tax Area: | 510 - APPRAISER-Stan/Cam Schl Dist, improved & 1 acre or less |
| CF | Conservation Futures | 0.0316035091 | $539,991 | $539,991 | $17.07 | | |
| EMS1 | Fire & Rescue Dist #1 Camano GEN (EMS) | 0.3677864386 | $539,991 | $539,991 | $198.60 | | |
| FIRE1 | Fire & Rescue Dist #1 Camano GEN | 1.2502910536 | $539,991 | $539,991 | $675.15 | | |
| FIRE1BOND | Fire & Rescue Dist #1 Camano BOND | 0.1570001679 | $539,991 | $539,991 | $84.78 | | |
| CE | County Current Expense | 0.3708482477 | $539,991 | $539,991 | $200.25 | | |
| CR | County Roads | 0.4584763726 | $539,991 | $539,991 | $247.57 | | |
| LCIB | Library Sno-Isle BOND (Camano Island) | 0.0396325772 | $539,991 | $539,991 | $21.40 | | |
| LIB | Library Sno-Isle GEN | 0.3153421757 | $539,991 | $539,991 | $170.28 | | |
| SCH205_401 | School 205-401 Enrichment | 1.2698420524 | $539,991 | $539,991 | $685.70 | | |
| SCH205BOND | School 205-401 BOND | 0.9396497583 | $539,991 | $539,991 | $507.40 | | |
| ST | State School | 1.3035497053 | $539,991 | $539,991 | $703.91 | | |
| ST2 | State School Part 2 | 0.8169543533 | $539,991 | $539,991 | $441.15 | | |
| | Total Tax Rate: | 7.3209764117 | | | | | |
| | | | | Taxes w/Current Exemptions: | $3,953.26 | | |
| | | | | Taxes w/o Exemptions: | $3,953.26 | | |
Improvement / Building
| Improvement #1: | RESIDENTIAL | State Code: | Y | 1753.0 sqft | Value: | $289,991 |
| Bathrooms: | 2 | Bedrooms: | 2 | | Ceiling: | DRYWALL PAINTED | Exterior Wall/Cover: | PLY/HARDBOARD T-111 | | Floor Covering: | SOFTWOOD/VINYL 80-20 | Floor Structure: | WOOD W/SUBFLOOR | | Foundation: | CONCRETE | Heating: | WALL HEAT ELECTRIC | | Interior Finish: | DRYWALL PAINT | Plumbing Fixture Cnt: | 9 | | Roof Slope: | 6" IN 12" | Roof Structure/Cover: | CJ ASPHALT |
|
| | Type | Description | Class CD | Sub Class CD | Year Built | Area |
| | BAS | BASE/MAIN FLOOR | 3 | 0 | 1994 | 1518.0 |
| | AGR | ATTACHED GARAGE | 3 | 0 | 1994 | 440.0 |
| | UPS | UPPER STORY | 3 | 0 | 1994 | 235.0 |
| | ATU | ATTIC UNFINISHED | 3 | 0 | 1994 | 280.0 |
| | OWP | OPEN WOOD PORCH W/STEPS | 3 | 0 | 1994 | 210.0 |
| | OWC | OPEN WOOD PORCH W/STEPS/ROOF/C | 3 | 0 | 1994 | 216.0 |
Sketch
Property Image
Land
| 1 | 15 | SQ (12001-21780) | 0.0000 | 0.00 | 0.00 | 0.00 | 1.00 | $250,000 | $0 |
Roll Value History
| 2026 | N/A | N/A | N/A | N/A | N/A |
| 2025 | $289,991 | $250,000 | $0 | $539,991 | $539,991 |
| 2024 | $293,561 | $250,000 | $0 | $543,561 | $543,561 |
| 2023 | $297,130 | $210,000 | $0 | $507,130 | $507,130 |
| 2022 | $272,276 | $200,000 | $0 | $472,276 | $472,276 |
| 2021 | $217,095 | $140,000 | $0 | $357,095 | $357,095 |
| 2020 | $211,929 | $120,000 | $0 | $331,929 | $331,929 |
| 2019 | $157,214 | $170,000 | $0 | $327,214 | $327,214 |
| 2018 | $157,710 | $140,000 | $0 | $297,710 | $297,710 |
| 2017 | $158,701 | $90,000 | $0 | $248,701 | $248,701 |
| 2016 | $160,686 | $65,000 | $0 | $225,686 | $225,686 |
| 2015 | $155,977 | $50,000 | $0 | $205,977 | $205,977 |
| 2014 | $157,922 | $50,000 | $0 | $207,922 | $207,922 |
| 2013 | $159,866 | $50,000 | $0 | $209,866 | $209,866 |
| 2012 | $161,811 | $56,000 | $0 | $217,811 | $217,811 |
| 2011 | $163,756 | $70,000 | $0 | $233,756 | $233,756 |
| 2010 | $171,330 | $70,000 | $0 | $241,330 | $241,330 |
| 2009 | $176,605 | $90,000 | $0 | $266,605 | $266,605 |
| 2008 | $178,917 | $125,000 | $0 | $303,917 | $303,917 |
| 2007 | $181,230 | $100,000 | $0 | $281,230 | $281,230 |
Deed and Sales History
| 1 | 06/30/2023 | QCD | Quit Claim Deed | NEFF, MICHAEL | NEFF, NICOLE | | | $0.00 | 58741 | 4567571 |
| 2 | 03/26/2021 | QCD | Quit Claim Deed | NEFF, MICHAEL | NEFF, MICHAEL | | | $0.00 | 47544 | 4514970 |
| 3 | 10/21/2011 | ESTSEPPROP | Establish Separate Property | NEFF, MICHAEL | NEFF, MICHAEL | | | $0.00 | 6006 | 4303898 |
| 4 | 09/08/2011 | WD | Warranty Deed | SECRETARY OF HOUSING & URBAN DEVELOPMENT | NEFF, MICHAEL | | | $154,000.00 | 6005 | 4303897 |
| 5 | 04/07/2011 | WD | Warranty Deed | CHASE HOME FINANCE LLC | SECRETARY OF HOUSING & URBAN DEVELOPMENT | | | $312,487.00 | 4412 | 4295109 |
| 6 | 04/05/2011 | TRUSTEED | Trustee's Deed | KEATON, JAMES M | CHASE HOME FINANCE LLC | | | $346,102.00 | 4085 | 4293454 |
| 7 | 02/24/2006 | WD | Warranty Deed | DIAZ, NATHAN I | KEATON, JAMES M | | | $307,000.00 | 60838 | 4163382 |
| 8 | 02/20/2002 | WD | Warranty Deed | PRUDENTIAL RESIDENTIAL SERVICE | DIAZ, NATHAN I | | | $193,000.00 | 20713 | 4012442 |
| 9 | 02/07/2002 | WD | Warranty Deed | JACOBS, ANY LYNN | PRUDENTIAL RESIDENTIAL SERVICE | | | $193,000.00 | 20712 | 4012441 |
| 10 | 05/19/1999 | WD | Warranty Deed | PELLETIER, KAREN S | JACOBS, ANY LYNN | | | $169,000.00 | 91965 | 99012491 |
| 11 | 10/01/1994 | QCD | Quit Claim Deed | GARRISON, KAREN S | PELLETIER, KAREN S | | | $0.00 | 44090 | 94021149 |
| 12 | 03/01/1990 | WD | Warranty Deed | GARRISON, CO | GARRISON, KAREN S | | | $8,000.00 | 1231 | 90003952 |
| 13 | 01/01/1900 | OTHER | Other - Misc. Documents | Unknown | GARRISON, CO | | | $0.00 | 0 | 0 |
Payout Agreement
| No payout information available.. |