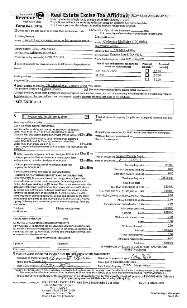
Property
Account |
| Property ID: | 526782 | Abbreviated Legal Description: | NORTHVIEW #1 LOT 4 TGW PT OF LOT 5 DESC BG MST SLY CR COM TO LOTS 4 & 5 N30*E25' S10*W27.08'TP CUR NWLY ALG SD CUR 9.50' TPB |
| Geographic ID: | S7577-00-00004-0 | Agent Code: | |
| Type: | Real | | |
| Tax Area: | 700 - APPRAISER-S Whid Schl Dist, in town of Langley | Land Use Code | 11 |
| Open Space: | N | DFL | N |
| Historic Property: | N | Remodel Property: | N |
| Multi-Family Redevelopment: | N | | |
| Township: | | Section: | |
| Range: | |
Location |
| Address: | 725 SUZANNE CT LANGLEY, WA 98260 | Mapsco: | |
| Neighborhood: | City of Langley | Map ID: | 727 |
| Neighborhood CD: | 04-L |
Owner |
| Name: | JOHNSON II, PHILIP ALAN | Owner ID: | 296284 |
| Mailing Address: | 1295 MARSHALL DR SE SALEM, OR 97302 | % Ownership: | 100.0000000000% |
| | | Exemptions: | |
Taxes and Assessment Details
Values
| (+) Improvement Homesite Value: | + | $0 | |
| (+) Improvement Non-Homesite Value: | + | $316,033 | |
| (+) Land Homesite Value: | + | $0 | |
| (+) Land Non-Homesite Value: | + | $400,000 | |
| (+) Curr Use (HS): | + | $0 | $0 |
| (+) Curr Use (NHS): | + | $0 | $0 |
| | | -------------------------- | |
| (=) Market Value: | = | $716,033 | |
| (–) Productivity Loss: | – | $0 | |
| | | -------------------------- | |
| (=) Subtotal: | = | $716,033 | |
| (+) Senior Appraised Value: | + | $0 | |
| (+) Non-Senior Appraised Value: | + | $716,033 | |
| | | -------------------------- | |
| (=) Total Appraised Value: | = | $716,033 | |
| (–) Senior Exemption Loss: | – | $0 | |
| (–) Exemption Loss: | – | $0 | |
| | | -------------------------- | |
| (=) Taxable Value: | = | $716,033 | |
Taxing Jurisdiction
| Owner: | JOHNSON II, PHILIP ALAN | | |
| % Ownership: | 100.0000000000% | | |
| Total Value: | $716,033 | | |
| Tax Area: | 700 - APPRAISER-S Whid Schl Dist, in town of Langley |
| CF | Conservation Futures | 0.0316035091 | $716,033 | $716,033 | $22.63 | | |
| LANG | City of Langley | 1.0093520762 | $716,033 | $716,033 | $722.73 | | |
| LANGBOND | City of Langley BOND | 1.0326110892 | $716,033 | $716,033 | $739.38 | | |
| FIRE3 | Fire & Rescue Dist #3 S Whidbey GEN | 1.2004855531 | $716,033 | $716,033 | $859.59 | | |
| HOBOND | Hospital BOND | 0.1910887512 | $716,033 | $716,033 | $136.83 | | |
| HOGEN | Hospital GEN | 0.3902502903 | $716,033 | $716,033 | $279.43 | | |
| CE | County Current Expense | 0.3708482477 | $716,033 | $716,033 | $265.54 | | |
| ISLANDEMS | Hospital GEN (EMS) | 0.5000000000 | $716,033 | $716,033 | $358.02 | | |
| LIB | Library Sno-Isle GEN | 0.3153421757 | $716,033 | $716,033 | $225.80 | | |
| PORTWHID | Port of S Whidbey GEN | 0.1094540357 | $716,033 | $716,033 | $78.37 | | |
| SCH206BOND | School 206 BOND | 0.3161759235 | $716,033 | $716,033 | $226.39 | | |
| SCH206MO | School 206 Enrichment | 0.4547169547 | $716,033 | $716,033 | $325.59 | | |
| ST | State School | 1.3035497053 | $716,033 | $716,033 | $933.38 | | |
| ST2 | State School Part 2 | 0.8169543533 | $716,033 | $716,033 | $584.97 | | |
| SWHIDPRBD | P & R S Whidbey BOND | 0.0152817568 | $716,033 | $716,033 | $10.94 | | |
| SWHIDPRBD2 | P & R S Whidbey BOND2 | 0.0138911264 | $716,033 | $716,033 | $9.95 | | |
| SWHIDPRMT | P & R S Whidbey GEN | 0.2053334452 | $716,033 | $716,033 | $147.03 | | |
| | Total Tax Rate: | 8.2769389934 | | | | | |
| | | | | Taxes w/Current Exemptions: | $5,926.57 | | |
| | | | | Taxes w/o Exemptions: | $5,926.57 | | |
Improvement / Building
| Improvement #1: | RESIDENTIAL | State Code: | Y | 2048.0 sqft | Value: | $316,033 |
| Bathrooms: | 2 | Bedrooms: | 3 | | Ceiling: | DRYWALL PAINTED | Exterior Wall/Cover: | PLY/HARDBOARD T-111 | | Floor Covering: | VINYL/HARDWOOD 60-40 | Floor Structure: | WOOD W/SUBFLOOR | | Foundation: | CONCRETE | Heating: | FHA ELECTRIC | | Interior Finish: | DRYWALL PAINT | Plumbing Fixture Cnt: | 9 | | Roof Slope: | 6" IN 12" | Roof Structure/Cover: | CJ CONCRETE TILE |
|
| | Type | Description | Class CD | Sub Class CD | Year Built | Area |
| | BAS | BASE/MAIN FLOOR | 3 | 0 | 1983 | 2048.0 |
| | OP4 | OPEN PORCH W/CEILING-ROOF | 3 | 0 | 1983 | 52.0 |
| | AGR | ATTACHED GARAGE | 3 | 0 | 1983 | 588.0 |
| | CPD | OPEN CARPORT DIRT FLOOR | 3 | 0 | 1983 | 176.0 |
| | UTY | STORAGE/UTILITY | 3 | 0 | 1983 | 192.0 |
Sketch
Property Image
Land
| 1 | 14 | SQ (08001-12000) | 0.0000 | 0.00 | 0.00 | 0.00 | 1.00 | $400,000 | $0 |
Roll Value History
| 2026 | N/A | N/A | N/A | N/A | N/A |
| 2025 | $316,033 | $400,000 | $0 | $716,033 | $716,033 |
| 2024 | $320,233 | $400,000 | $0 | $720,233 | $720,233 |
| 2023 | $324,433 | $380,000 | $0 | $704,433 | $704,433 |
| 2022 | $297,581 | $300,000 | $0 | $597,581 | $597,581 |
| 2021 | $262,073 | $260,000 | $0 | $522,073 | $522,073 |
| 2020 | $239,133 | $260,000 | $0 | $499,133 | $499,133 |
| 2019 | $185,454 | $250,000 | $0 | $435,454 | $435,454 |
| 2018 | $186,048 | $250,000 | $0 | $436,048 | $436,048 |
| 2017 | $187,241 | $230,000 | $0 | $417,241 | $417,241 |
| 2016 | $189,623 | $185,000 | $0 | $374,623 | $374,623 |
| 2015 | $192,004 | $160,000 | $0 | $352,004 | $352,004 |
| 2014 | $182,860 | $161,000 | $0 | $343,860 | $343,860 |
| 2013 | $185,349 | $140,000 | $0 | $325,349 | $325,349 |
| 2012 | $187,840 | $161,000 | $0 | $348,840 | $348,840 |
| 2011 | $190,329 | $175,000 | $0 | $365,329 | $365,329 |
| 2010 | $199,310 | $183,000 | $0 | $382,310 | $382,310 |
| 2009 | $207,828 | $200,000 | $0 | $407,828 | $407,828 |
| 2008 | $194,431 | $160,000 | $0 | $354,431 | $354,431 |
| 2007 | $194,431 | $160,000 | $0 | $354,431 | $354,431 |
Deed and Sales History
| 1 | 07/05/2025 | QCD | Quit Claim Deed | JOHNSON II, PHILIP ALAN | JOHNSON II TTEE, PHILIP A | | | $0.00 | 64391 | 4589255 |
| 2 | 09/08/2020 | PRD | Personal Representatives Deed | JOHNSON, CAROLYN H | JOHNSON II, PHILIP ALAN | | | $0.00 | 44947 | 4497882 |
| 3 | 06/09/2009 | WD | Warranty Deed | LONG, MARCIA S | JOHNSON, CAROLYN H | | | $425,000.00 | 91305 | 4253612 |
| 4 | 02/14/2002 | WD | Warranty Deed | LONG, MARCIA S | SHININGER, DAVID | | | $220,000.00 | 20651 | 4011998 |
| 5 | 12/29/1998 | ESTSEPPROP | Establish Separate Property | LONG, MARCIA S | LONG, MARCIA S | | | $0.00 | 90187 | 99001148 |
| 6 | 12/04/1998 | WD | Warranty Deed | WIHLBORG, JAMES H | LONG, MARCIA S | | | $170,000.00 | 84879 | 98026898 |
| 7 | 10/01/1990 | OTHER | Other - Misc. Documents | WIHLBORG, JAMES H | WIHLBORG, JAMES H | | | $0.00 | 63893 | 90019413 |
| 8 | 08/01/1989 | WD | Warranty Deed | KINSER, VELMA A | WIHLBORG, JAMES H | | | $115,750.00 | 93763 | 89012551 |
| 9 | 03/01/1988 | PRD | Personal Representatives Deed | KINSER, WAYNE | KINSER, VELMA A | | | $0.00 | 80908 | 88003552 |
| 10 | 05/01/1983 | WD | Warranty Deed | K, & W | KINSER, WAYNE | | | $18,000.00 | 31241 | 409392 |
| 11 | 02/01/1980 | TRUSTEED | Trustee's Deed | Unknown | K, & W | | | $4,097.00 | 842 | 366263 |
Payout Agreement
| No payout information available.. |