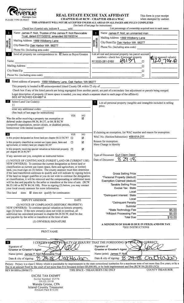
Property
Account |
| Property ID: | 527077 | Abbreviated Legal Description: | NORTHVIEW #1 LOT 35 |
| Geographic ID: | S7577-00-00035-0 | Agent Code: | |
| Type: | Real | | |
| Tax Area: | 700 - APPRAISER-S Whid Schl Dist, in town of Langley | Land Use Code | 99 |
| Open Space: | N | DFL | N |
| Historic Property: | N | Remodel Property: | N |
| Multi-Family Redevelopment: | N | | |
| Township: | | Section: | |
| Range: | |
Location |
| Address: | | Mapsco: | |
| Neighborhood: | City of Langley | Map ID: | 727 |
| Neighborhood CD: | 04-L |
Owner |
| Name: | BASSETT, ETHAN J | Owner ID: | 316980 |
| Mailing Address: | 2170 MILLMAN RD LANGLEY, WA 98260 | % Ownership: | 100.0000000000% |
| | | Exemptions: | |
Taxes and Assessment Details
Values
| (+) Improvement Homesite Value: | + | $0 | |
| (+) Improvement Non-Homesite Value: | + | $0 | |
| (+) Land Homesite Value: | + | $0 | |
| (+) Land Non-Homesite Value: | + | $220,000 | |
| (+) Curr Use (HS): | + | $0 | $0 |
| (+) Curr Use (NHS): | + | $0 | $0 |
| | | -------------------------- | |
| (=) Market Value: | = | $220,000 | |
| (–) Productivity Loss: | – | $0 | |
| | | -------------------------- | |
| (=) Subtotal: | = | $220,000 | |
| (+) Senior Appraised Value: | + | $0 | |
| (+) Non-Senior Appraised Value: | + | $220,000 | |
| | | -------------------------- | |
| (=) Total Appraised Value: | = | $220,000 | |
| (–) Senior Exemption Loss: | – | $0 | |
| (–) Exemption Loss: | – | $0 | |
| | | -------------------------- | |
| (=) Taxable Value: | = | $220,000 | |
Taxing Jurisdiction
| Owner: | BASSETT, ETHAN J | | |
| % Ownership: | 100.0000000000% | | |
| Total Value: | $220,000 | | |
| Tax Area: | 700 - APPRAISER-S Whid Schl Dist, in town of Langley |
| CF | Conservation Futures | 0.0316035091 | $220,000 | $220,000 | $6.95 | | |
| LANG | City of Langley | 1.0093520762 | $220,000 | $220,000 | $222.06 | | |
| LANGBOND | City of Langley BOND | 1.0326110892 | $220,000 | $220,000 | $227.17 | | |
| FIRE3 | Fire & Rescue Dist #3 S Whidbey GEN | 1.2004855531 | $220,000 | $220,000 | $264.11 | | |
| HOBOND | Hospital BOND | 0.1910887512 | $220,000 | $220,000 | $42.04 | | |
| HOGEN | Hospital GEN | 0.3902502903 | $220,000 | $220,000 | $85.86 | | |
| CE | County Current Expense | 0.3708482477 | $220,000 | $220,000 | $81.59 | | |
| ISLANDEMS | Hospital GEN (EMS) | 0.5000000000 | $220,000 | $220,000 | $110.00 | | |
| LIB | Library Sno-Isle GEN | 0.3153421757 | $220,000 | $220,000 | $69.38 | | |
| PORTWHID | Port of S Whidbey GEN | 0.1094540357 | $220,000 | $220,000 | $24.08 | | |
| SCH206BOND | School 206 BOND | 0.3161759235 | $220,000 | $220,000 | $69.56 | | |
| SCH206MO | School 206 Enrichment | 0.4547169547 | $220,000 | $220,000 | $100.04 | | |
| ST | State School | 1.3035497053 | $220,000 | $220,000 | $286.78 | | |
| ST2 | State School Part 2 | 0.8169543533 | $220,000 | $220,000 | $179.73 | | |
| SWHIDPRBD | P & R S Whidbey BOND | 0.0152817568 | $220,000 | $220,000 | $3.36 | | |
| SWHIDPRBD2 | P & R S Whidbey BOND2 | 0.0138911264 | $220,000 | $220,000 | $3.06 | | |
| SWHIDPRMT | P & R S Whidbey GEN | 0.2053334452 | $220,000 | $220,000 | $45.17 | | |
| | Total Tax Rate: | 8.2769389934 | | | | | |
| | | | | Taxes w/Current Exemptions: | $1,820.94 | | |
| | | | | Taxes w/o Exemptions: | $1,820.94 | | |
Improvement / Building
Sketch
| No sketches available for this property. |
Property Image
Land
| 1 | 14 | SQ (08001-12000) | 0.0000 | 0.00 | 0.00 | 0.00 | 1.00 | $220,000 | $0 |
Roll Value History
| 2026 | N/A | N/A | N/A | N/A | N/A |
| 2025 | $0 | $220,000 | $0 | $220,000 | $220,000 |
| 2024 | $0 | $220,000 | $0 | $220,000 | $220,000 |
| 2023 | $0 | $220,000 | $0 | $220,000 | $220,000 |
| 2022 | $0 | $200,000 | $0 | $200,000 | $200,000 |
| 2021 | $0 | $170,000 | $0 | $170,000 | $170,000 |
| 2020 | $0 | $170,000 | $0 | $170,000 | $170,000 |
| 2019 | $0 | $90,000 | $0 | $90,000 | $90,000 |
| 2018 | $0 | $90,000 | $0 | $90,000 | $90,000 |
| 2017 | $0 | $90,000 | $0 | $90,000 | $90,000 |
| 2016 | $0 | $90,000 | $0 | $90,000 | $90,000 |
| 2015 | $0 | $90,000 | $0 | $90,000 | $90,000 |
| 2014 | $0 | $90,000 | $0 | $90,000 | $90,000 |
| 2013 | $0 | $90,000 | $0 | $90,000 | $90,000 |
| 2012 | $0 | $90,000 | $0 | $90,000 | $90,000 |
| 2011 | $0 | $90,000 | $0 | $90,000 | $90,000 |
| 2010 | $0 | $90,000 | $0 | $90,000 | $90,000 |
| 2009 | $0 | $100,000 | $0 | $100,000 | $100,000 |
| 2008 | $0 | $102,000 | $0 | $102,000 | $102,000 |
| 2007 | $0 | $102,000 | $0 | $102,000 | $102,000 |
Deed and Sales History
| 1 | 06/12/2025 | TRUSTEED | Trustee's Deed | BASSETT TTEE, ETHAN J | BASSETT, ETHAN J | | | $0.00 | 63885 | 4587256 |
| 2 | 08/20/2019 | QCD | Quit Claim Deed | JONES, LILLIAN G | BASSETT TTEE, EDWARD O | | | $0.00 | 40200 | 4471083 |
| 3 | 07/25/2018 | WD | Warranty Deed | ADAMS, GAIL | JONES, LILLIAN G | | | $150,000.00 | 35259 | 4449112 |
| 4 | 02/20/2008 | PRD | Personal Representatives Deed | ADAMS, JOHN E | ADAMS, GAIL | | | $0.00 | 80421 | 4222400 |
| 5 | 11/01/1989 | WD | Warranty Deed | TUCKER, THOMAS M | ADAMS, JOHN E | | | $29,500.00 | 95508 | 89017659 |
| 6 | 07/01/1984 | WD | Warranty Deed | K, & W | TUCKER, THOMAS M | | | $22,000.00 | 42091 | 84000824 |
| 7 | 02/01/1980 | TRUSTEED | Trustee's Deed | Unknown | K, & W | | | $4,097.00 | 842 | 366263 |
Payout Agreement
| No payout information available.. |