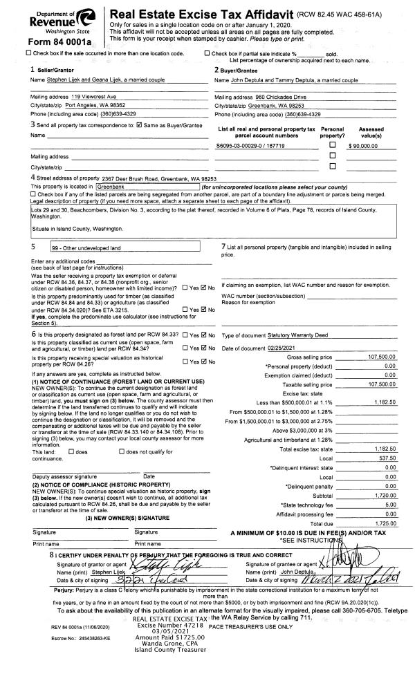
Property
Account |
| Property ID: | 527086 | Abbreviated Legal Description: | NORTHVIEW #1 LOT 36 |
| Geographic ID: | S7577-00-00036-0 | Agent Code: | |
| Type: | Real | | |
| Tax Area: | 700 - APPRAISER-S Whid Schl Dist, in town of Langley | Land Use Code | 11 |
| Open Space: | N | DFL | N |
| Historic Property: | N | Remodel Property: | N |
| Multi-Family Redevelopment: | N | | |
| Township: | | Section: | |
| Range: | |
Location |
| Address: | 710 GLEASON LN LANGLEY, WA 98260 | Mapsco: | |
| Neighborhood: | City of Langley | Map ID: | 727 |
| Neighborhood CD: | 04-L |
Owner |
| Name: | ZACKRISSON, JAN | Owner ID: | 256727 |
| Mailing Address: | NADINE ZACKRISSON 710 GLEASON LN LANGLEY, WA 98260 | % Ownership: | 100.0000000000% |
| | | Exemptions: | |
Taxes and Assessment Details
Values
| (+) Improvement Homesite Value: | + | $0 | |
| (+) Improvement Non-Homesite Value: | + | $306,925 | |
| (+) Land Homesite Value: | + | $0 | |
| (+) Land Non-Homesite Value: | + | $400,000 | |
| (+) Curr Use (HS): | + | $0 | $0 |
| (+) Curr Use (NHS): | + | $0 | $0 |
| | | -------------------------- | |
| (=) Market Value: | = | $706,925 | |
| (–) Productivity Loss: | – | $0 | |
| | | -------------------------- | |
| (=) Subtotal: | = | $706,925 | |
| (+) Senior Appraised Value: | + | $0 | |
| (+) Non-Senior Appraised Value: | + | $706,925 | |
| | | -------------------------- | |
| (=) Total Appraised Value: | = | $706,925 | |
| (–) Senior Exemption Loss: | – | $0 | |
| (–) Exemption Loss: | – | $0 | |
| | | -------------------------- | |
| (=) Taxable Value: | = | $706,925 | |
Taxing Jurisdiction
| Owner: | ZACKRISSON, JAN | | |
| % Ownership: | 100.0000000000% | | |
| Total Value: | $706,925 | | |
| Tax Area: | 700 - APPRAISER-S Whid Schl Dist, in town of Langley |
| CF | Conservation Futures | 0.0316035091 | $706,925 | $706,925 | $22.34 | | |
| LANG | City of Langley | 1.0093520762 | $706,925 | $706,925 | $713.54 | | |
| LANGBOND | City of Langley BOND | 1.0326110892 | $706,925 | $706,925 | $729.98 | | |
| FIRE3 | Fire & Rescue Dist #3 S Whidbey GEN | 1.2004855531 | $706,925 | $706,925 | $848.65 | | |
| HOBOND | Hospital BOND | 0.1910887512 | $706,925 | $706,925 | $135.09 | | |
| HOGEN | Hospital GEN | 0.3902502903 | $706,925 | $706,925 | $275.88 | | |
| CE | County Current Expense | 0.3708482477 | $706,925 | $706,925 | $262.16 | | |
| ISLANDEMS | Hospital GEN (EMS) | 0.5000000000 | $706,925 | $706,925 | $353.46 | | |
| LIB | Library Sno-Isle GEN | 0.3153421757 | $706,925 | $706,925 | $222.92 | | |
| PORTWHID | Port of S Whidbey GEN | 0.1094540357 | $706,925 | $706,925 | $77.38 | | |
| SCH206BOND | School 206 BOND | 0.3161759235 | $706,925 | $706,925 | $223.51 | | |
| SCH206MO | School 206 Enrichment | 0.4547169547 | $706,925 | $706,925 | $321.45 | | |
| ST | State School | 1.3035497053 | $706,925 | $706,925 | $921.51 | | |
| ST2 | State School Part 2 | 0.8169543533 | $706,925 | $706,925 | $577.53 | | |
| SWHIDPRBD | P & R S Whidbey BOND | 0.0152817568 | $706,925 | $706,925 | $10.80 | | |
| SWHIDPRBD2 | P & R S Whidbey BOND2 | 0.0138911264 | $706,925 | $706,925 | $9.82 | | |
| SWHIDPRMT | P & R S Whidbey GEN | 0.2053334452 | $706,925 | $706,925 | $145.16 | | |
| | Total Tax Rate: | 8.2769389934 | | | | | |
| | | | | Taxes w/Current Exemptions: | $5,851.18 | | |
| | | | | Taxes w/o Exemptions: | $5,851.18 | | |
Improvement / Building
| Improvement #1: | RESIDENTIAL | State Code: | Y | 1811.1 sqft | Value: | $306,925 |
| Bathrooms: | 2.5 | Bedrooms: | 3 | | Ceiling: | DRYWALL PAINTED | Cooling: | HEAT PUMP/CONV/V | | Exterior Wall/Cover: | WOOD SIDING | Floor Covering: | CARPET/VINYL 60-40 | | Floor Structure: | WOOD W/SUBFLOOR | Foundation: | CONCRETE | | Interior Finish: | DRYWALL PAINT | Plumbing Fixture Cnt: | 11 | | Roof Slope: | 6" IN 12" | Roof Structure/Cover: | CJ ASPHALT |
|
| | Type | Description | Class CD | Sub Class CD | Year Built | Area |
| | BAS | BASE/MAIN FLOOR | 3 | 0 | 1987 | 983.1 |
| | AGR | ATTACHED GARAGE | 3 | 0 | 1987 | 576.0 |
| | UPS | UPPER STORY | 3 | 0 | 1987 | 828.0 |
| | OWP | OPEN WOOD PORCH W/STEPS | 3 | 0 | 1987 | 160.0 |
| | OWR | OPEN WOOD PORCH W/STEPS/ROOF | 3 | 0 | 1987 | 192.0 |
| | UTY | STORAGE/UTILITY | 3 | 0 | 1987 | 288.0 |
Sketch
Property Image
Land
| 1 | 14 | SQ (08001-12000) | 0.0000 | 0.00 | 0.00 | 0.00 | 1.00 | $400,000 | $0 |
Roll Value History
| 2026 | N/A | N/A | N/A | N/A | N/A |
| 2025 | $306,925 | $400,000 | $0 | $706,925 | $706,925 |
| 2024 | $311,004 | $400,000 | $0 | $711,004 | $711,004 |
| 2023 | $315,082 | $380,000 | $0 | $695,082 | $695,082 |
| 2022 | $289,002 | $300,000 | $0 | $589,002 | $589,002 |
| 2021 | $254,529 | $260,000 | $0 | $514,529 | $514,529 |
| 2020 | $213,641 | $260,000 | $0 | $473,641 | $473,641 |
| 2019 | $158,423 | $250,000 | $0 | $408,423 | $408,423 |
| 2018 | $158,965 | $250,000 | $0 | $408,965 | $408,965 |
| 2017 | $159,989 | $230,000 | $0 | $389,989 | $389,989 |
| 2016 | $162,151 | $185,000 | $0 | $347,151 | $347,151 |
| 2015 | $164,312 | $160,000 | $0 | $324,312 | $324,312 |
| 2014 | $161,764 | $161,000 | $0 | $322,764 | $322,764 |
| 2013 | $164,010 | $168,360 | $0 | $332,370 | $332,370 |
| 2012 | $162,007 | $168,360 | $0 | $330,367 | $330,367 |
| 2011 | $164,177 | $183,000 | $0 | $347,177 | $347,177 |
| 2010 | $174,022 | $183,000 | $0 | $357,022 | $357,022 |
| 2009 | $181,628 | $200,000 | $0 | $381,628 | $381,628 |
| 2008 | $181,626 | $160,000 | $0 | $341,626 | $341,626 |
| 2007 | $183,872 | $160,000 | $0 | $343,872 | $343,872 |
Deed and Sales History
| 1 | 01/26/2012 | WD | Warranty Deed | LOCKE TRUSTEE, MARGARET ALICE | ZACKRISSON, JAN | | | $265,000.00 | 6741 | 4308858 |
| 2 | 09/20/2007 | QCD | Quit Claim Deed | LOCKE TRUSTEE, MARGARET ALICE | LOCKE TRUSTEE, MARGARET ALICE | | | $0.00 | 6740 | 4308857 |
| 3 | 09/20/2007 | QCD | Quit Claim Deed | LOCKE, MARGARET | LOCKE TRUSTEE, MARGARET ALICE | | | $0.00 | 73654 | 4215668 |
| 4 | 04/03/2003 | WD | Warranty Deed | BARLEAN, KELLY J | LOCKE, MARGARET | | | $220,000.00 | 31437 | 4054243 |
| 5 | 05/11/1998 | QCD | Quit Claim Deed | BARLEAN, KELLY J | BARLEAN, KELLY J | | | $85,000.00 | 82722 | 98014013 |
| 6 | 08/01/1994 | WD | Warranty Deed | GALLAGHER, DAVID R | BARLEAN, KELLY J | | | $172,500.00 | 43189 | 94017184 |
| 7 | 05/01/1993 | WD | Warranty Deed | WALTERS, TERRY L | GALLAGHER, DAVID R | | | $165,000.00 | 32003 | 93010395 |
| 8 | 07/01/1987 | WD | Warranty Deed | ESPY, RICHARD R | WALTERS, TERRY L | | | $94,500.00 | 72387 | 87010941 |
| 9 | 06/01/1983 | WD | Warranty Deed | K, & W | ESPY, RICHARD R | | | $19,000.00 | 32087 | 412682 |
| 10 | 02/01/1980 | TRUSTEED | Trustee's Deed | Unknown | K, & W | | | $4,097.00 | 842 | 366263 |
Payout Agreement
| No payout information available.. |