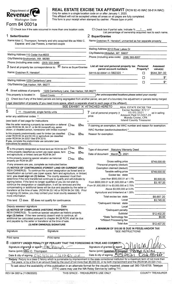
Property
Account |
| Property ID: | 527095 | Abbreviated Legal Description: | NORTHVIEW #1 LOT 37 |
| Geographic ID: | S7577-00-00037-0 | Agent Code: | |
| Type: | Real | | |
| Tax Area: | 700 - APPRAISER-S Whid Schl Dist, in town of Langley | Land Use Code | 11 |
| Open Space: | N | DFL | N |
| Historic Property: | N | Remodel Property: | N |
| Multi-Family Redevelopment: | N | | |
| Township: | | Section: | |
| Range: | |
Location |
| Address: | 712 GLEASON LN LANGLEY, WA 98260 | Mapsco: | |
| Neighborhood: | City of Langley | Map ID: | 727 |
| Neighborhood CD: | 04-L |
Owner |
| Name: | WHEELER, NATHAN | Owner ID: | 296115 |
| Mailing Address: | SARAH WHEELER 712 GLEASON LN LANGLEY, WA 98260 | % Ownership: | 100.0000000000% |
| | | Exemptions: | |
Taxes and Assessment Details
Values
| (+) Improvement Homesite Value: | + | $0 | |
| (+) Improvement Non-Homesite Value: | + | $238,094 | |
| (+) Land Homesite Value: | + | $0 | |
| (+) Land Non-Homesite Value: | + | $400,000 | |
| (+) Curr Use (HS): | + | $0 | $0 |
| (+) Curr Use (NHS): | + | $0 | $0 |
| | | -------------------------- | |
| (=) Market Value: | = | $638,094 | |
| (–) Productivity Loss: | – | $0 | |
| | | -------------------------- | |
| (=) Subtotal: | = | $638,094 | |
| (+) Senior Appraised Value: | + | $0 | |
| (+) Non-Senior Appraised Value: | + | $638,094 | |
| | | -------------------------- | |
| (=) Total Appraised Value: | = | $638,094 | |
| (–) Senior Exemption Loss: | – | $0 | |
| (–) Exemption Loss: | – | $0 | |
| | | -------------------------- | |
| (=) Taxable Value: | = | $638,094 | |
Taxing Jurisdiction
| Owner: | WHEELER, NATHAN | | |
| % Ownership: | 100.0000000000% | | |
| Total Value: | $638,094 | | |
| Tax Area: | 700 - APPRAISER-S Whid Schl Dist, in town of Langley |
| CF | Conservation Futures | 0.0316035091 | $638,094 | $638,094 | $20.17 | | |
| LANG | City of Langley | 1.0093520762 | $638,094 | $638,094 | $644.06 | | |
| LANGBOND | City of Langley BOND | 1.0326110892 | $638,094 | $638,094 | $658.90 | | |
| FIRE3 | Fire & Rescue Dist #3 S Whidbey GEN | 1.2004855531 | $638,094 | $638,094 | $766.02 | | |
| HOBOND | Hospital BOND | 0.1910887512 | $638,094 | $638,094 | $121.93 | | |
| HOGEN | Hospital GEN | 0.3902502903 | $638,094 | $638,094 | $249.02 | | |
| CE | County Current Expense | 0.3708482477 | $638,094 | $638,094 | $236.64 | | |
| ISLANDEMS | Hospital GEN (EMS) | 0.5000000000 | $638,094 | $638,094 | $319.05 | | |
| LIB | Library Sno-Isle GEN | 0.3153421757 | $638,094 | $638,094 | $201.22 | | |
| PORTWHID | Port of S Whidbey GEN | 0.1094540357 | $638,094 | $638,094 | $69.84 | | |
| SCH206BOND | School 206 BOND | 0.3161759235 | $638,094 | $638,094 | $201.75 | | |
| SCH206MO | School 206 Enrichment | 0.4547169547 | $638,094 | $638,094 | $290.15 | | |
| ST | State School | 1.3035497053 | $638,094 | $638,094 | $831.79 | | |
| ST2 | State School Part 2 | 0.8169543533 | $638,094 | $638,094 | $521.29 | | |
| SWHIDPRBD | P & R S Whidbey BOND | 0.0152817568 | $638,094 | $638,094 | $9.75 | | |
| SWHIDPRBD2 | P & R S Whidbey BOND2 | 0.0138911264 | $638,094 | $638,094 | $8.86 | | |
| SWHIDPRMT | P & R S Whidbey GEN | 0.2053334452 | $638,094 | $638,094 | $131.02 | | |
| | Total Tax Rate: | 8.2769389934 | | | | | |
| | | | | Taxes w/Current Exemptions: | $5,281.46 | | |
| | | | | Taxes w/o Exemptions: | $5,281.46 | | |
Improvement / Building
| Improvement #1: | RESIDENTIAL | State Code: | Y | 1413.2 sqft | Value: | $238,094 |
| Bathrooms: | 1.75 | Bedrooms: | 3 | | Ceiling: | DRYWALL PAINTED | Cooling: | HEAT PUMP/CONV/V | | Exterior Wall/Cover: | WOOD SIDING | Floor Covering: | HARDWOOD/CARP 20-80 | | Floor Structure: | WOOD W/SUBFLOOR | Foundation: | CONCRETE | | Interior Finish: | DRYWALL PAINT | Plumbing Fixture Cnt: | 9 | | Roof Slope: | 5" IN 12" | Roof Structure/Cover: | CJ ASPHALT |
|
| | Type | Description | Class CD | Sub Class CD | Year Built | Area |
| | BAS | BASE/MAIN FLOOR | 3 | 0 | 1982 | 1413.2 |
| | AGR | ATTACHED GARAGE | 3 | 0 | 1982 | 540.0 |
| | OWC | OPEN WOOD PORCH W/STEPS/ROOF/C | 3 | 0 | 1982 | 120.0 |
Sketch
Property Image
Land
| 1 | 14 | SQ (08001-12000) | 0.0000 | 0.00 | 0.00 | 0.00 | 1.00 | $400,000 | $0 |
Roll Value History
| 2026 | N/A | N/A | N/A | N/A | N/A |
| 2025 | $238,094 | $400,000 | $0 | $638,094 | $638,094 |
| 2024 | $241,435 | $400,000 | $0 | $641,435 | $641,435 |
| 2023 | $244,778 | $380,000 | $0 | $624,778 | $624,778 |
| 2022 | $224,669 | $300,000 | $0 | $524,669 | $524,669 |
| 2021 | $194,644 | $260,000 | $0 | $454,644 | $454,644 |
| 2020 | $189,834 | $260,000 | $0 | $449,834 | $449,834 |
| 2019 | $137,476 | $250,000 | $0 | $387,476 | $387,476 |
| 2018 | $137,920 | $250,000 | $0 | $387,920 | $387,920 |
| 2017 | $138,811 | $230,000 | $0 | $368,811 | $368,811 |
| 2016 | $140,590 | $185,000 | $0 | $325,590 | $325,590 |
| 2015 | $142,370 | $160,000 | $0 | $302,370 | $302,370 |
| 2014 | $157,468 | $161,000 | $0 | $318,468 | $318,468 |
| 2013 | $159,619 | $140,000 | $0 | $299,619 | $299,619 |
| 2012 | $161,770 | $161,000 | $0 | $322,770 | $322,770 |
| 2011 | $163,920 | $175,000 | $0 | $338,920 | $338,920 |
| 2010 | $169,005 | $183,000 | $0 | $352,005 | $352,005 |
| 2009 | $176,314 | $200,000 | $0 | $376,314 | $376,314 |
| 2008 | $175,345 | $160,000 | $0 | $335,345 | $335,345 |
| 2007 | $177,597 | $160,000 | $0 | $337,597 | $337,597 |
Deed and Sales History
| 1 | 09/08/2020 | WD | Warranty Deed | IRELAND, JASON M | WHEELER, NATHAN | | | $475,000.00 | 44775 | 4496749 |
| 2 | 11/21/2005 | WD | Warranty Deed | DEFOUW, ROBERT G | IRELAND, JASON M | | | $305,000.00 | 55951 | 4122437 |
| 3 | 03/01/1989 | WD | Warranty Deed | MCPHERSON, MARJORIE R | DEFOUW, ROBERT G | | | $95,500.00 | 91071 | 89003734 |
| 4 | 01/01/1988 | WD | Warranty Deed | BRODIE, ROBERT F | MCPHERSON, MARJORIE R | | | $85,000.00 | 80170 | 88000800 |
| 5 | 04/01/1983 | WD | Warranty Deed | SIGHTS, UNLIMITED I | BRODIE, ROBERT F | | | $68,000.00 | 30931 | 408243 |
| 6 | 10/01/1981 | EXECUTORD | Executor Deed | K, & W | SIGHTS, UNLIMITED I | | | $19,000.00 | 13375 | 389583 |
| 7 | 02/01/1980 | TRUSTEED | Trustee's Deed | Unknown | K, & W | | | $4,097.00 | 842 | 366263 |
Payout Agreement
| No payout information available.. |