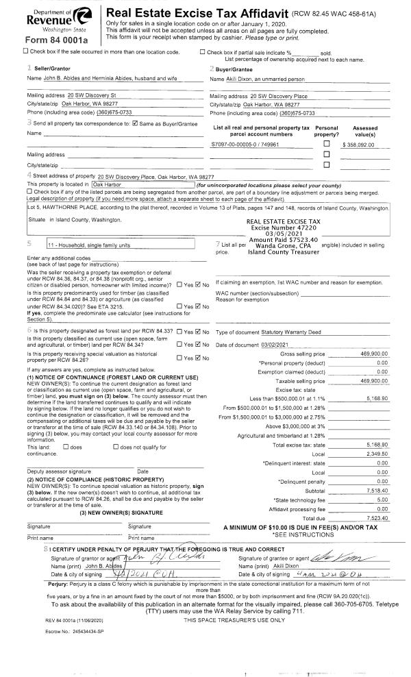
Property
Account |
| Property ID: | 527111 | Abbreviated Legal Description: | NORTHVIEW #1 LOT 39 |
| Geographic ID: | S7577-00-00039-0 | Agent Code: | |
| Type: | Real | | |
| Tax Area: | 700 - APPRAISER-S Whid Schl Dist, in town of Langley | Land Use Code | 11 |
| Open Space: | N | DFL | N |
| Historic Property: | N | Remodel Property: | N |
| Multi-Family Redevelopment: | N | | |
| Township: | | Section: | |
| Range: | |
Location |
| Address: | 739 GLEASON LN LANGLEY, WA 98260 | Mapsco: | |
| Neighborhood: | City of Langley | Map ID: | 727 |
| Neighborhood CD: | 04-L |
Owner |
| Name: | ANDRESS TTEE, STEVEN | Owner ID: | 288676 |
| Mailing Address: | 739 GLEASON LN LANGLEY, WA 98260 | % Ownership: | 100.0000000000% |
| | | Exemptions: | |
Taxes and Assessment Details
Values
| (+) Improvement Homesite Value: | + | $0 | |
| (+) Improvement Non-Homesite Value: | + | $208,224 | |
| (+) Land Homesite Value: | + | $0 | |
| (+) Land Non-Homesite Value: | + | $400,000 | |
| (+) Curr Use (HS): | + | $0 | $0 |
| (+) Curr Use (NHS): | + | $0 | $0 |
| | | -------------------------- | |
| (=) Market Value: | = | $608,224 | |
| (–) Productivity Loss: | – | $0 | |
| | | -------------------------- | |
| (=) Subtotal: | = | $608,224 | |
| (+) Senior Appraised Value: | + | $0 | |
| (+) Non-Senior Appraised Value: | + | $608,224 | |
| | | -------------------------- | |
| (=) Total Appraised Value: | = | $608,224 | |
| (–) Senior Exemption Loss: | – | $0 | |
| (–) Exemption Loss: | – | $0 | |
| | | -------------------------- | |
| (=) Taxable Value: | = | $608,224 | |
Taxing Jurisdiction
| Owner: | ANDRESS TTEE, STEVEN | | |
| % Ownership: | 100.0000000000% | | |
| Total Value: | $608,224 | | |
| Tax Area: | 700 - APPRAISER-S Whid Schl Dist, in town of Langley |
| CF | Conservation Futures | 0.0316035091 | $608,224 | $608,224 | $19.22 | | |
| LANG | City of Langley | 1.0093520762 | $608,224 | $608,224 | $613.91 | | |
| LANGBOND | City of Langley BOND | 1.0326110892 | $608,224 | $608,224 | $628.06 | | |
| FIRE3 | Fire & Rescue Dist #3 S Whidbey GEN | 1.2004855531 | $608,224 | $608,224 | $730.16 | | |
| HOBOND | Hospital BOND | 0.1910887512 | $608,224 | $608,224 | $116.22 | | |
| HOGEN | Hospital GEN | 0.3902502903 | $608,224 | $608,224 | $237.36 | | |
| CE | County Current Expense | 0.3708482477 | $608,224 | $608,224 | $225.56 | | |
| ISLANDEMS | Hospital GEN (EMS) | 0.5000000000 | $608,224 | $608,224 | $304.11 | | |
| LIB | Library Sno-Isle GEN | 0.3153421757 | $608,224 | $608,224 | $191.80 | | |
| PORTWHID | Port of S Whidbey GEN | 0.1094540357 | $608,224 | $608,224 | $66.57 | | |
| SCH206BOND | School 206 BOND | 0.3161759235 | $608,224 | $608,224 | $192.31 | | |
| SCH206MO | School 206 Enrichment | 0.4547169547 | $608,224 | $608,224 | $276.57 | | |
| ST | State School | 1.3035497053 | $608,224 | $608,224 | $792.85 | | |
| ST2 | State School Part 2 | 0.8169543533 | $608,224 | $608,224 | $496.89 | | |
| SWHIDPRBD | P & R S Whidbey BOND | 0.0152817568 | $608,224 | $608,224 | $9.29 | | |
| SWHIDPRBD2 | P & R S Whidbey BOND2 | 0.0138911264 | $608,224 | $608,224 | $8.45 | | |
| SWHIDPRMT | P & R S Whidbey GEN | 0.2053334452 | $608,224 | $608,224 | $124.89 | | |
| | Total Tax Rate: | 8.2769389934 | | | | | |
| | | | | Taxes w/Current Exemptions: | $5,034.22 | | |
| | | | | Taxes w/o Exemptions: | $5,034.22 | | |
Improvement / Building
| Improvement #1: | RESIDENTIAL | State Code: | Y | 1148.0 sqft | Value: | $208,224 |
| Bathrooms: | 2 | Bedrooms: | 2 | | Ceiling: | DRYWALL PAINTED | Exterior Wall/Cover: | WOOD SIDING | | Floor Covering: | CARPET/VINYL 80-20 | Floor Structure: | WOOD W/SUBFLOOR | | Foundation: | CONCRETE | Heating: | WALL HEAT ELECTRIC | | Interior Finish: | DRYWALL PAINT | Plumbing Fixture Cnt: | 9 | | Roof Slope: | 5" IN 12" | Roof Structure/Cover: | CJ ASPHALT |
|
| | Type | Description | Class CD | Sub Class CD | Year Built | Area |
| | BAS | BASE/MAIN FLOOR | 3 | 0 | 1990 | 1148.0 |
| | OP1 | OPEN PORCH SLAB | 3 | 0 | 1990 | 108.0 |
| | OP1 | OPEN PORCH SLAB | 3 | 0 | 1990 | 64.0 |
| | AGR | ATTACHED GARAGE | 3 | 0 | 1990 | 460.0 |
| | OWP | OPEN WOOD PORCH W/STEPS | 3 | 0 | 1990 | 88.0 |
| | OWR | OPEN WOOD PORCH W/STEPS/ROOF | 3 | 0 | 1990 | 36.0 |
Sketch
Property Image
Land
| 1 | 14 | SQ (08001-12000) | 0.0000 | 0.00 | 0.00 | 0.00 | 1.00 | $400,000 | $0 |
Roll Value History
| 2026 | N/A | N/A | N/A | N/A | N/A |
| 2025 | $208,224 | $400,000 | $0 | $608,224 | $608,224 |
| 2024 | $210,990 | $400,000 | $0 | $610,990 | $610,990 |
| 2023 | $213,758 | $380,000 | $0 | $593,758 | $593,758 |
| 2022 | $196,073 | $300,000 | $0 | $496,073 | $496,073 |
| 2021 | $172,675 | $260,000 | $0 | $432,675 | $432,675 |
| 2020 | $167,938 | $260,000 | $0 | $427,938 | $427,938 |
| 2019 | $118,751 | $250,000 | $0 | $368,751 | $368,751 |
| 2018 | $115,752 | $250,000 | $0 | $365,752 | $365,752 |
| 2017 | $116,461 | $230,000 | $0 | $346,461 | $68,374 |
| 2016 | $117,882 | $185,000 | $0 | $302,882 | $68,374 |
| 2015 | $119,302 | $160,000 | $0 | $279,302 | $68,374 |
| 2014 | $119,545 | $161,000 | $0 | $280,545 | $111,108 |
| 2013 | $121,021 | $168,360 | $0 | $289,381 | $111,108 |
| 2012 | $122,497 | $168,360 | $0 | $290,857 | $111,108 |
| 2011 | $123,973 | $183,000 | $0 | $306,973 | $111,108 |
| 2010 | $131,748 | $183,000 | $0 | $314,748 | $111,108 |
| 2009 | $137,219 | $200,000 | $0 | $337,219 | $111,108 |
| 2008 | $137,414 | $161,312 | $0 | $298,725 | $116,379 |
| 2007 | $132,098 | $160,000 | $0 | $292,098 | $111,108 |
Deed and Sales History
| 1 | 01/21/2019 | QCD | Quit Claim Deed | ANDRESS, STEVEN CRAIG | ANDRESS TTEE, STEVEN | | | $0.00 | 37490 | 4458711 |
| 2 | 07/19/2018 | BARGSLD | Bargain And Sale Deed | HOWMAN, CAROL E | ANDRESS, STEVEN CRAIG | | | $401,000.00 | 35095 | 4448441 |
| 3 | 06/01/1997 | WD | Warranty Deed | PARENT, WILLIAM E | HOWMAN, CAROL E | | | $134,000.00 | 71852 | 97008486 |
| 4 | 12/01/1989 | WD | Warranty Deed | WARE, G P | PARENT, WILLIAM E | | | $110,000.00 | 64 | 90000196 |
| 5 | 08/01/1989 | QCD | Quit Claim Deed | K, & W | WARE, G P | | | $0.00 | 93315 | 89011150 |
| 6 | 02/01/1980 | TRUSTEED | Trustee's Deed | Unknown | K, & W | | | $4,097.00 | 842 | 366263 |
Payout Agreement
| No payout information available.. |