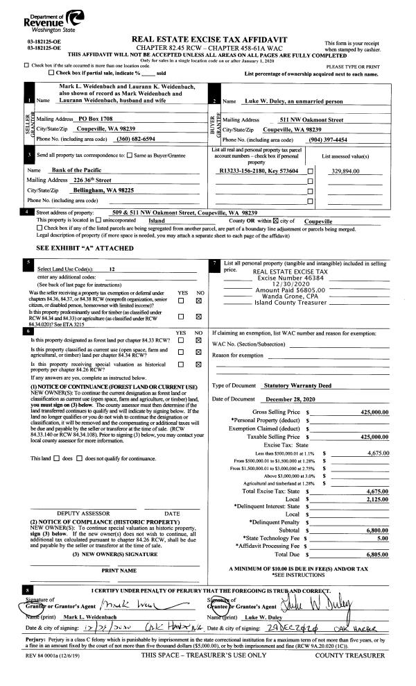
Property
Account |
| Property ID: | 527139 | Abbreviated Legal Description: | NORTHVIEW #1 LOT 41 EX PT LOT 41 DESC: BG NWCR LOT 43 N7*W3' S87*E39.06' TO ELN LOT 41 S9*E3' TO SECR LOT 41 N87*W39.06' TPB |
| Geographic ID: | S7577-00-00041-0 | Agent Code: | |
| Type: | Real | | |
| Tax Area: | 700 - APPRAISER-S Whid Schl Dist, in town of Langley | Land Use Code | 11 |
| Open Space: | N | DFL | N |
| Historic Property: | N | Remodel Property: | N |
| Multi-Family Redevelopment: | N | | |
| Township: | | Section: | |
| Range: | |
Location |
| Address: | 777 GLEASON LN LANGLEY, WA 98260 | Mapsco: | |
| Neighborhood: | City of Langley | Map ID: | 727 |
| Neighborhood CD: | 04-L |
Owner |
| Name: | FOSDICK, ALEXANDER J | Owner ID: | 295959 |
| Mailing Address: | JENNIFER SOUSA 777 GLEASON LN LANGLEY, WA 98260 | % Ownership: | 100.0000000000% |
| | | Exemptions: | |
Taxes and Assessment Details
Values
| (+) Improvement Homesite Value: | + | $0 | |
| (+) Improvement Non-Homesite Value: | + | $313,977 | |
| (+) Land Homesite Value: | + | $0 | |
| (+) Land Non-Homesite Value: | + | $400,000 | |
| (+) Curr Use (HS): | + | $0 | $0 |
| (+) Curr Use (NHS): | + | $0 | $0 |
| | | -------------------------- | |
| (=) Market Value: | = | $713,977 | |
| (–) Productivity Loss: | – | $0 | |
| | | -------------------------- | |
| (=) Subtotal: | = | $713,977 | |
| (+) Senior Appraised Value: | + | $0 | |
| (+) Non-Senior Appraised Value: | + | $713,977 | |
| | | -------------------------- | |
| (=) Total Appraised Value: | = | $713,977 | |
| (–) Senior Exemption Loss: | – | $0 | |
| (–) Exemption Loss: | – | $0 | |
| | | -------------------------- | |
| (=) Taxable Value: | = | $713,977 | |
Taxing Jurisdiction
| Owner: | FOSDICK, ALEXANDER J | | |
| % Ownership: | 100.0000000000% | | |
| Total Value: | $713,977 | | |
| Tax Area: | 700 - APPRAISER-S Whid Schl Dist, in town of Langley |
| CF | Conservation Futures | 0.0316035091 | $713,977 | $713,977 | $22.56 | | |
| LANG | City of Langley | 1.0093520762 | $713,977 | $713,977 | $720.65 | | |
| LANGBOND | City of Langley BOND | 1.0326110892 | $713,977 | $713,977 | $737.26 | | |
| FIRE3 | Fire & Rescue Dist #3 S Whidbey GEN | 1.2004855531 | $713,977 | $713,977 | $857.12 | | |
| HOBOND | Hospital BOND | 0.1910887512 | $713,977 | $713,977 | $136.43 | | |
| HOGEN | Hospital GEN | 0.3902502903 | $713,977 | $713,977 | $278.63 | | |
| CE | County Current Expense | 0.3708482477 | $713,977 | $713,977 | $264.78 | | |
| ISLANDEMS | Hospital GEN (EMS) | 0.5000000000 | $713,977 | $713,977 | $356.99 | | |
| LIB | Library Sno-Isle GEN | 0.3153421757 | $713,977 | $713,977 | $225.15 | | |
| PORTWHID | Port of S Whidbey GEN | 0.1094540357 | $713,977 | $713,977 | $78.15 | | |
| SCH206BOND | School 206 BOND | 0.3161759235 | $713,977 | $713,977 | $225.74 | | |
| SCH206MO | School 206 Enrichment | 0.4547169547 | $713,977 | $713,977 | $324.66 | | |
| ST | State School | 1.3035497053 | $713,977 | $713,977 | $930.70 | | |
| ST2 | State School Part 2 | 0.8169543533 | $713,977 | $713,977 | $583.29 | | |
| SWHIDPRBD | P & R S Whidbey BOND | 0.0152817568 | $713,977 | $713,977 | $10.91 | | |
| SWHIDPRBD2 | P & R S Whidbey BOND2 | 0.0138911264 | $713,977 | $713,977 | $9.92 | | |
| SWHIDPRMT | P & R S Whidbey GEN | 0.2053334452 | $713,977 | $713,977 | $146.60 | | |
| | Total Tax Rate: | 8.2769389934 | | | | | |
| | | | | Taxes w/Current Exemptions: | $5,909.54 | | |
| | | | | Taxes w/o Exemptions: | $5,909.54 | | |
Improvement / Building
| Improvement #1: | RESIDENTIAL | State Code: | Y | 1494.0 sqft | Value: | $313,977 |
| Bathrooms: | 2 | Bedrooms: | 3 | | Ceiling: | DRYWALL PAINTED | Exterior Wall/Cover: | WOOD SIDING | | Floor Covering: | HARDWOOD/CARP 60-40 | Floor Structure: | WOOD W/SUBFLOOR | | Foundation: | CONCRETE | Heating: | FHA GAS | | Interior Finish: | DRYWALL PAINT | Plumbing Fixture Cnt: | 9 | | Roof Slope: | 8" IN 12" | Roof Structure/Cover: | CJ ASPHALT |
|
| | Type | Description | Class CD | Sub Class CD | Year Built | Area |
| | BAS | BASE/MAIN FLOOR | 4 | 0 | 1998 | 1494.0 |
| | OP1 | OPEN PORCH SLAB | 4 | 0 | 1998 | 36.0 |
| | AGR | ATTACHED GARAGE | 4 | 0 | 1998 | 484.0 |
| | OWP | OPEN WOOD PORCH W/STEPS | 4 | 0 | 1998 | 178.1 |
| | OWC | OPEN WOOD PORCH W/STEPS/ROOF/C | 4 | 0 | 1998 | 144.0 |
Sketch
Property Image
Land
| 1 | 14 | SQ (08001-12000) | 0.0000 | 0.00 | 0.00 | 0.00 | 1.00 | $400,000 | $0 |
Roll Value History
| 2026 | N/A | N/A | N/A | N/A | N/A |
| 2025 | $313,977 | $400,000 | $0 | $713,977 | $713,977 |
| 2024 | $318,042 | $400,000 | $0 | $718,042 | $718,042 |
| 2023 | $322,106 | $380,000 | $0 | $702,106 | $702,106 |
| 2022 | $295,347 | $300,000 | $0 | $595,347 | $595,347 |
| 2021 | $260,029 | $260,000 | $0 | $520,029 | $520,029 |
| 2020 | $241,466 | $260,000 | $0 | $501,466 | $501,466 |
| 2019 | $176,328 | $250,000 | $0 | $426,328 | $426,328 |
| 2018 | $176,859 | $250,000 | $0 | $426,859 | $426,859 |
| 2017 | $177,915 | $230,000 | $0 | $407,915 | $407,915 |
| 2016 | $180,033 | $185,000 | $0 | $365,033 | $365,033 |
| 2015 | $182,151 | $160,000 | $0 | $342,151 | $342,151 |
| 2014 | $175,905 | $161,000 | $0 | $336,905 | $336,905 |
| 2013 | $178,025 | $140,000 | $0 | $318,025 | $318,025 |
| 2012 | $180,145 | $161,000 | $0 | $341,145 | $341,145 |
| 2011 | $182,264 | $175,000 | $0 | $357,264 | $357,264 |
| 2010 | $191,267 | $183,000 | $0 | $374,267 | $374,267 |
| 2009 | $199,495 | $200,000 | $0 | $399,495 | $399,495 |
| 2008 | $202,773 | $160,000 | $0 | $362,773 | $362,773 |
| 2007 | $205,210 | $160,000 | $0 | $365,210 | $365,210 |
Deed and Sales History
| 1 | 08/20/2020 | WD | Warranty Deed | OLSON, MADELINE H | FOSDICK, ALEXANDER J | | | $515,000.00 | 44589 | 4495660 |
| 2 | 11/17/2014 | WD | Warranty Deed | MCCULLOUGH, GARY R | OLSON, MADELINE H | | | $360,000.00 | 17670 | 4368973 |
| 3 | 07/07/1998 | WD | Warranty Deed | JONES, TREVOR | MCCULLOUGH, GARY R | | | $177,700.00 | 83231 | 98016845 |
| 4 | 01/03/2000 | BLA | DNU - Boundary Line Adjustment | JONES, TREVOR R | JONES, TREVOR | | | $0.00 | 68534 | 98008548 |
| 5 | 09/01/1997 | WD | Warranty Deed | WINNENBERG, JOSEPH P/SALLY | JONES, TREVOR R | | | $45,000.00 | 73284 | 97015482 |
| 6 | 11/01/1992 | WD | Warranty Deed | BORDEN, HOWARD C | WINNENBERG, JOSEPH P | | | $40,500.00 | 24505 | 92022010 |
| 7 | 11/01/1992 | WD | Warranty Deed | BORDEN, HOWARD C | WINNENBERG, JOSEPH P/SALLY | | | $40,500.00 | 24505 | 92022010 |
| 8 | 12/01/1984 | WD | Warranty Deed | K & W NORTHWEST EQUIPMENT, | BORDEN, HOWARD C | | | $19,500.00 | 43651 | 84006945 |
| 9 | 02/01/1980 | WD | Warranty Deed | MCCULLOGH, GARY R | K & W NORTHWEST EQUIPMENT, | | | $4,097.00 | 842 | 366263 |
Payout Agreement
| No payout information available.. |