Property
Account |
| Property ID: | 527415 | Abbreviated Legal Description: | FIRESIDE #1 LOT 15 |
| Geographic ID: | S6632-00-00015-0 | Agent Code: | |
| Type: | Real | | |
| Tax Area: | 110 - APPRAISER-OH Schl Dist, outside OH, improved & 1 acre or less | Land Use Code | 11 |
| Open Space: | N | DFL | N |
| Historic Property: | N | Remodel Property: | N |
| Multi-Family Redevelopment: | N | | |
| Township: | | Section: | |
| Range: | |
Location |
| Address: | 2127 FIRESIDE LN OAK HARBOR, WA 98277 | Mapsco: | |
| Neighborhood: | Cycle 1 | Map ID: | 90 |
| Neighborhood CD: | 1 |
Owner |
| Name: | NAGEL JTWROS, CHRISTOPHER W | Owner ID: | 300808 |
| Mailing Address: | CHRISTA MARIE NAGEL JTWROS 2127 FIRESIDE LN OAK HARBOR, WA 98277 | % Ownership: | 100.0000000000% |
| | | Exemptions: | |
Taxes and Assessment Details
Values
| (+) Improvement Homesite Value: | + | $0 | |
| (+) Improvement Non-Homesite Value: | + | $342,394 | |
| (+) Land Homesite Value: | + | $0 | |
| (+) Land Non-Homesite Value: | + | $200,000 | |
| (+) Curr Use (HS): | + | $0 | $0 |
| (+) Curr Use (NHS): | + | $0 | $0 |
| | | -------------------------- | |
| (=) Market Value: | = | $542,394 | |
| (–) Productivity Loss: | – | $0 | |
| | | -------------------------- | |
| (=) Subtotal: | = | $542,394 | |
| (+) Senior Appraised Value: | + | $0 | |
| (+) Non-Senior Appraised Value: | + | $542,394 | |
| | | -------------------------- | |
| (=) Total Appraised Value: | = | $542,394 | |
| (–) Senior Exemption Loss: | – | $0 | |
| (–) Exemption Loss: | – | $0 | |
| | | -------------------------- | |
| (=) Taxable Value: | = | $542,394 | |
Taxing Jurisdiction
| Owner: | NAGEL JTWROS, CHRISTOPHER W | | |
| % Ownership: | 100.0000000000% | | |
| Total Value: | $542,394 | | |
| Tax Area: | 110 - APPRAISER-OH Schl Dist, outside OH, improved & 1 acre or less |
| CF | Conservation Futures | 0.0316035091 | $542,394 | $542,394 | $17.14 | | |
| CEM1 | Cemetery #1 | 0.0040320932 | $542,394 | $542,394 | $2.19 | | |
| FIRE2 | Fire & Rescue Dist #2 N Whidbey GEN | 0.5475949600 | $542,394 | $542,394 | $297.01 | | |
| HOBOND | Hospital BOND | 0.1910887512 | $542,394 | $542,394 | $103.65 | | |
| HOGEN | Hospital GEN | 0.3902502903 | $542,394 | $542,394 | $211.67 | | |
| CE | County Current Expense | 0.3708482477 | $542,394 | $542,394 | $201.15 | | |
| CR | County Roads | 0.4584763726 | $542,394 | $542,394 | $248.67 | | |
| ISLANDEMS | Hospital GEN (EMS) | 0.5000000000 | $542,394 | $542,394 | $271.20 | | |
| LIB | Library Sno-Isle GEN | 0.3153421757 | $542,394 | $542,394 | $171.04 | | |
| NWHIDPRMT | P & R N Whidbey GEN | 0.2004466701 | $542,394 | $542,394 | $108.72 | | |
| SCH201MO | School 201 Enrichment | 1.8559231640 | $542,394 | $542,394 | $1,006.64 | | |
| ST | State School | 1.3035497053 | $542,394 | $542,394 | $707.04 | | |
| ST2 | State School Part 2 | 0.8169543533 | $542,394 | $542,394 | $443.11 | | |
| | Total Tax Rate: | 6.9861102925 | | | | | |
| | | | | Taxes w/Current Exemptions: | $3,789.23 | | |
| | | | | Taxes w/o Exemptions: | $3,789.23 | | |
Improvement / Building
| Improvement #1: | RESIDENTIAL | State Code: | Y | 2078.0 sqft | Value: | $342,394 |
| Bathrooms: | 2.5 | Bedrooms: | 4 | | Ceiling: | DRYWALL PAINTED | Exterior Wall/Cover: | WOOD SIDING | | Floor Covering: | CARPET/VINYL 80-20 | Floor Structure: | WOOD W/SUBFLOOR | | Foundation: | CONCRETE | Heating: | FHA GAS | | Interior Finish: | DRYWALL PAINT | Plumbing Fixture Cnt: | 11 | | Roof Slope: | 4" IN 12" | Roof Structure/Cover: | CJ ASPHALT |
|
| | Type | Description | Class CD | Sub Class CD | Year Built | Area |
| | BAS | BASE/MAIN FLOOR | 3 | 0 | 1981 | 1022.0 |
| | OP4 | OPEN PORCH W/CEILING-ROOF | 3 | 0 | 1981 | 121.0 |
| | AGR | ATTACHED GARAGE | 3 | 0 | 1981 | 496.0 |
| | UPS | UPPER STORY | 3 | 0 | 1981 | 1056.0 |
| | DGR | DETACHED GARAGE | 3 | 0 | 1981 | 768.0 |
| | OWP | OPEN WOOD PORCH W/STEPS | 3 | 0 | 1981 | 420.0 |
Sketch
Property Image
Land
| 1 | 14 | SQ (08001-12000) | 0.0000 | 0.00 | 0.00 | 0.00 | 1.00 | $200,000 | $0 |
Roll Value History
| 2026 | N/A | N/A | N/A | N/A | N/A |
| 2025 | $342,394 | $200,000 | $0 | $542,394 | $542,394 |
| 2024 | $346,828 | $190,000 | $0 | $536,828 | $536,828 |
| 2023 | $342,394 | $180,000 | $0 | $522,394 | $522,394 |
| 2022 | $314,068 | $160,000 | $0 | $474,068 | $474,068 |
| 2021 | $276,588 | $130,000 | $0 | $406,588 | $406,588 |
| 2020 | $269,883 | $100,000 | $0 | $369,883 | $369,883 |
| 2019 | $206,291 | $150,000 | $0 | $356,291 | $356,291 |
| 2018 | $206,926 | $130,000 | $0 | $336,926 | $336,926 |
| 2017 | $195,887 | $120,000 | $0 | $315,887 | $315,887 |
| 2016 | $198,107 | $90,000 | $0 | $288,107 | $288,107 |
| 2015 | $200,326 | $70,000 | $0 | $270,326 | $270,326 |
| 2014 | $202,545 | $65,000 | $0 | $267,545 | $267,545 |
| 2013 | $204,764 | $65,000 | $0 | $269,764 | $269,764 |
| 2012 | $206,983 | $65,000 | $0 | $271,983 | $271,983 |
| 2011 | $181,105 | $45,000 | $0 | $226,105 | $226,105 |
| 2010 | $191,149 | $45,000 | $0 | $236,149 | $236,149 |
| 2009 | $196,451 | $75,000 | $0 | $271,451 | $271,451 |
| 2008 | $198,898 | $95,000 | $0 | $293,898 | $293,898 |
| 2007 | $201,335 | $95,000 | $0 | $296,335 | $296,335 |
Deed and Sales History
| 1 | 08/06/2021 | QCD | Quit Claim Deed | NAGEL, CHRISTOPHER W | NAGEL JTWROS, CHRISTOPHER W | | | $0.00 | 49714 | 4527293 |
| 2 | 09/17/2020 | QCD | Quit Claim Deed | NAGEL, CHRISTOPHER W | NAGEL, CHRISTOPHER W | | | $0.00 | 44855 | 4497196 |
| 3 | 05/15/2020 | QCD | Quit Claim Deed | NAGEL, CHRISTA MARIE | NAGEL, CHRISTOPHER W | | | $0.00 | 43072 | 4486910 |
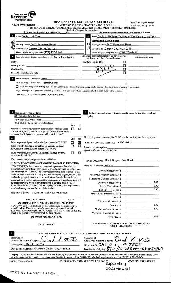
| 4 | 05/10/2018 | QCD | Quit Claim Deed | NAGEL, CHRISTOPHER W | NAGEL, CHRISTOPHER W | | | $0.00 | 34022 | 4444057 |
| 5 | 10/25/2001 | WD | Warranty Deed | MACLAREN-MEUER, SALLY JOY | NAGEL, CHRISTOPHER W | | | $181,000.00 | 14324 | 4002524 |
| 6 | 11/20/1998 | DECREE | Divorce Decree/Legal Separation | MEUER, CASEY C | MACLAREN-MEUER, SALLY JOY | | | $0.00 | 84632 | 98025374 |
| 7 | 04/01/1992 | WD | Warranty Deed | LEMEN, JON F | MEUER, CASEY C | | | $156,000.00 | 21548 | 92007462 |
| 8 | 09/01/1981 | WD | Warranty Deed | KOETJE, GORDON H | LEMEN, JON F | | | $86,000.00 | 12966 | 388225 |
| 9 | 06/01/1981 | WD | Warranty Deed | REICON, INC | KOETJE, GORDON H | | | $15,500.00 | 11711 | 383836 |
| 10 | 10/01/1978 | OTHER | Other - Misc. Documents | Unknown | REICON, INC | | | $45,000.00 | 85334 | 342162 |
Payout Agreement
| No payout information available.. |