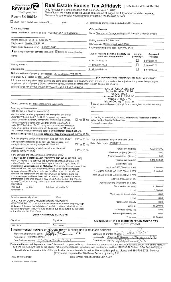
Property
Account |
| Property ID: | 527692 | Abbreviated Legal Description: | O-ZI-YA #2 LOT 23 |
| Geographic ID: | S7630-02-00023-0 | Agent Code: | |
| Type: | Real | | |
| Tax Area: | 540 - APPRAISER-Stan/Cam Schl Dist, Special Dist, improved & less than 1 acre | Land Use Code | 11 |
| Open Space: | N | DFL | N |
| Historic Property: | N | Remodel Property: | N |
| Multi-Family Redevelopment: | N | | |
| Township: | | Section: | |
| Range: | |
Location |
| Address: | 2521 WELLS WAY CAMANO ISLAND, WA 98282 | Mapsco: | |
| Neighborhood: | Cycle 5 | Map ID: | 857 |
| Neighborhood CD: | 5 |
Owner |
| Name: | VARGAS, JAVIER T | Owner ID: | 280763 |
| Mailing Address: | MARLENY S VARGAS 2521 WELLS WAY CAMANO ISLAND, WA 98282 | % Ownership: | 100.0000000000% |
| | | Exemptions: | |
Taxes and Assessment Details
Values
| (+) Improvement Homesite Value: | + | $0 | |
| (+) Improvement Non-Homesite Value: | + | $100,491 | |
| (+) Land Homesite Value: | + | $0 | |
| (+) Land Non-Homesite Value: | + | $240,000 | |
| (+) Curr Use (HS): | + | $0 | $0 |
| (+) Curr Use (NHS): | + | $0 | $0 |
| | | -------------------------- | |
| (=) Market Value: | = | $340,491 | |
| (–) Productivity Loss: | – | $0 | |
| | | -------------------------- | |
| (=) Subtotal: | = | $340,491 | |
| (+) Senior Appraised Value: | + | $0 | |
| (+) Non-Senior Appraised Value: | + | $340,491 | |
| | | -------------------------- | |
| (=) Total Appraised Value: | = | $340,491 | |
| (–) Senior Exemption Loss: | – | $0 | |
| (–) Exemption Loss: | – | $0 | |
| | | -------------------------- | |
| (=) Taxable Value: | = | $340,491 | |
Taxing Jurisdiction
| Owner: | VARGAS, JAVIER T | | |
| % Ownership: | 100.0000000000% | | |
| Total Value: | $340,491 | | |
| Tax Area: | 540 - APPRAISER-Stan/Cam Schl Dist, Special Dist, improved & less than 1 acre |
| CF | Conservation Futures | 0.0316035091 | $340,491 | $340,491 | $10.76 | | |
| EMS1 | Fire & Rescue Dist #1 Camano GEN (EMS) | 0.3677864386 | $340,491 | $340,491 | $125.23 | | |
| FIRE1 | Fire & Rescue Dist #1 Camano GEN | 1.2502910536 | $340,491 | $340,491 | $425.71 | | |
| FIRE1BOND | Fire & Rescue Dist #1 Camano BOND | 0.1570001679 | $340,491 | $340,491 | $53.46 | | |
| CE | County Current Expense | 0.3708482477 | $340,491 | $340,491 | $126.27 | | |
| CR | County Roads | 0.4584763726 | $340,491 | $340,491 | $156.11 | | |
| LCIB | Library Sno-Isle BOND (Camano Island) | 0.0396325772 | $340,491 | $340,491 | $13.49 | | |
| LIB | Library Sno-Isle GEN | 0.3153421757 | $340,491 | $340,491 | $107.37 | | |
| SCH205_401 | School 205-401 Enrichment | 1.2698420524 | $340,491 | $340,491 | $432.37 | | |
| SCH205BOND | School 205-401 BOND | 0.9396497583 | $340,491 | $340,491 | $319.94 | | |
| ST | State School | 1.3035497053 | $340,491 | $340,491 | $443.85 | | |
| ST2 | State School Part 2 | 0.8169543533 | $340,491 | $340,491 | $278.17 | | |
| | Total Tax Rate: | 7.3209764117 | | | | | |
| | | | | Taxes w/Current Exemptions: | $2,492.73 | | |
| | | | | Taxes w/o Exemptions: | $2,492.73 | | |
Improvement / Building
| Improvement #1: | MANUFACTURED HOME | State Code: | Y | 1296.0 sqft | Value: | $100,491 |
| Bathrooms: | 0 | Bedrooms: | 0 | | Ceiling: | PLASTER PAINTED | Cooling: | EVAP NO DUCT | | Exterior Wall/Cover: | VINYL | Floor Covering: | CARPET 100% | | Floor Structure: | SLAB ON GRADE | Foundation: | SLAB | | Heating: | FHA ELECTRIC | Interior Finish: | PLASTER | | Plumbing Fixture Cnt: | 1 | Roof Slope: | FLAT | | Roof Structure/Cover: | CJ ALUMINIUM HEAVY |   |   |
|
Sketch
Property Image
Land
| 1 | 15 | SQ (12001-21780) | 0.0000 | 0.00 | 0.00 | 0.00 | 1.00 | $240,000 | $0 |
Roll Value History
| 2026 | N/A | N/A | N/A | N/A | N/A |
| 2025 | $100,491 | $240,000 | $0 | $340,491 | $340,491 |
| 2024 | $103,362 | $235,000 | $0 | $338,362 | $338,362 |
| 2023 | $91,127 | $225,000 | $0 | $316,127 | $316,127 |
| 2022 | $84,778 | $180,000 | $0 | $264,778 | $264,778 |
| 2021 | $66,222 | $150,000 | $0 | $216,222 | $216,222 |
| 2020 | $65,966 | $120,000 | $0 | $185,966 | $185,966 |
| 2019 | $53,275 | $160,000 | $0 | $213,275 | $213,275 |
| 2018 | $54,591 | $120,000 | $0 | $174,591 | $174,591 |
| 2017 | $51,960 | $75,000 | $0 | $126,960 | $126,960 |
| 2016 | $53,275 | $50,000 | $0 | $103,275 | $103,275 |
| 2015 | $55,398 | $50,000 | $0 | $105,398 | $105,398 |
| 2014 | $56,634 | $50,000 | $0 | $106,634 | $106,634 |
| 2013 | $57,871 | $50,000 | $0 | $107,871 | $107,871 |
| 2012 | $58,489 | $66,400 | $0 | $124,889 | $124,889 |
| 2011 | $59,726 | $83,000 | $0 | $142,726 | $142,726 |
| 2010 | $59,923 | $83,000 | $0 | $142,923 | $142,923 |
| 2009 | $59,836 | $90,000 | $0 | $149,836 | $149,836 |
| 2008 | $61,820 | $95,000 | $0 | $156,820 | $156,820 |
| 2007 | $57,173 | $101,642 | $0 | $158,815 | $158,815 |
Deed and Sales History
| 1 | 07/05/2017 | WD | Warranty Deed | GARZA, JENNIFER MARIA | VARGAS, JAVIER T | | | $191,000.00 | 30096 | 4425762 |
| 2 | 05/01/2017 | TOD | Transfer On Death Deed | MIGAS, TINA MARIE | GARZA, JENNIFER MARIA | | | $0.00 | 30094 | |
| 3 | 04/19/2012 | 5 | DNU - Marriage License/Name Change | MIGAS, TINA MARIE | MIGAS, TINA MARIE | | | $0.00 | 7509 | 4314412 |
| 4 | 04/13/2012 | NAMECHG | DNU - Name Change Order | MIGAS-EGGERS, TINA | MIGAS, TINA MARIE | | | | 82328 | |
| 5 | 12/28/2011 | DECREE | Divorce Decree/Legal Separation | EGGERS, DANIEL | MIGAS-EGGERS, TINA | | | $0.00 | 6655 | 4308429 |
| 6 | 07/22/2005 | WD | Warranty Deed | WEHR, ERIC B | EGGERS, DANIEL | | | $145,000.00 | 53845 | 4143399 |
| 7 | 12/01/1994 | OTHER | Other - Misc. Documents | WEHR, ERIC B | WEHR, ERIC B | | | $34,767.00 | 45067 | 0 |
| 8 | 11/01/1994 | WD | Warranty Deed | WELLS, JUNIOR R | WEHR, ERIC B | | | $53,733.00 | 44757 | 94024346 |
| 9 | 01/01/1900 | OTHER | Other - Misc. Documents | Unknown | WELLS, JUNIOR R | | | $0.00 | 0 | 0 |
Payout Agreement
| No payout information available.. |