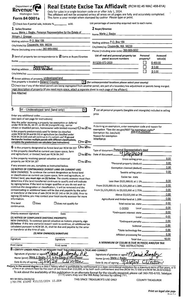
Property
Account |
| Property ID: | 527816 | Abbreviated Legal Description: | BRUTUS LOT 10 |
| Geographic ID: | S6192-00-00010-0 | Agent Code: | |
| Type: | Real | | |
| Tax Area: | 540 - APPRAISER-Stan/Cam Schl Dist, Special Dist, improved & less than 1 acre | Land Use Code | 11 |
| Open Space: | N | DFL | N |
| Historic Property: | N | Remodel Property: | N |
| Multi-Family Redevelopment: | N | | |
| Township: | | Section: | |
| Range: | |
Location |
| Address: | 3486 TIMOTHY WAY CAMANO ISLAND, WA 98282 | Mapsco: | |
| Neighborhood: | 58RscamWV-South Cam | Map ID: | 869 |
| Neighborhood CD: | 58RscamWV |
Owner |
| Name: | ZHOU, YAMING | Owner ID: | 315301 |
| Mailing Address: | STEELE NEWMAN 10720 58TH AVE W MUKILTEO, WA 98275 | % Ownership: | 100.0000000000% |
| | | Exemptions: | |
Taxes and Assessment Details
Values
| (+) Improvement Homesite Value: | + | $0 | |
| (+) Improvement Non-Homesite Value: | + | $558,840 | |
| (+) Land Homesite Value: | + | $0 | |
| (+) Land Non-Homesite Value: | + | $500,000 | |
| (+) Curr Use (HS): | + | $0 | $0 |
| (+) Curr Use (NHS): | + | $0 | $0 |
| | | -------------------------- | |
| (=) Market Value: | = | $1,058,840 | |
| (–) Productivity Loss: | – | $0 | |
| | | -------------------------- | |
| (=) Subtotal: | = | $1,058,840 | |
| (+) Senior Appraised Value: | + | $0 | |
| (+) Non-Senior Appraised Value: | + | $1,058,840 | |
| | | -------------------------- | |
| (=) Total Appraised Value: | = | $1,058,840 | |
| (–) Senior Exemption Loss: | – | $0 | |
| (–) Exemption Loss: | – | $0 | |
| | | -------------------------- | |
| (=) Taxable Value: | = | $1,058,840 | |
Taxing Jurisdiction
| Owner: | ZHOU, YAMING | | |
| % Ownership: | 100.0000000000% | | |
| Total Value: | $1,058,840 | | |
| Tax Area: | 540 - APPRAISER-Stan/Cam Schl Dist, Special Dist, improved & less than 1 acre |
| CF | Conservation Futures | 0.0316035091 | $1,058,840 | $1,058,840 | $33.46 | | |
| EMS1 | Fire & Rescue Dist #1 Camano GEN (EMS) | 0.3677864386 | $1,058,840 | $1,058,840 | $389.43 | | |
| FIRE1 | Fire & Rescue Dist #1 Camano GEN | 1.2502910536 | $1,058,840 | $1,058,840 | $1,323.86 | | |
| FIRE1BOND | Fire & Rescue Dist #1 Camano BOND | 0.1570001679 | $1,058,840 | $1,058,840 | $166.24 | | |
| CE | County Current Expense | 0.3708482477 | $1,058,840 | $1,058,840 | $392.67 | | |
| CR | County Roads | 0.4584763726 | $1,058,840 | $1,058,840 | $485.45 | | |
| LCIB | Library Sno-Isle BOND (Camano Island) | 0.0396325772 | $1,058,840 | $1,058,840 | $41.96 | | |
| LIB | Library Sno-Isle GEN | 0.3153421757 | $1,058,840 | $1,058,840 | $333.90 | | |
| SCH205_401 | School 205-401 Enrichment | 1.2698420524 | $1,058,840 | $1,058,840 | $1,344.56 | | |
| SCH205BOND | School 205-401 BOND | 0.9396497583 | $1,058,840 | $1,058,840 | $994.94 | | |
| ST | State School | 1.3035497053 | $1,058,840 | $1,058,840 | $1,380.25 | | |
| ST2 | State School Part 2 | 0.8169543533 | $1,058,840 | $1,058,840 | $865.02 | | |
| | Total Tax Rate: | 7.3209764117 | | | | | |
| | | | | Taxes w/Current Exemptions: | $7,751.74 | | |
| | | | | Taxes w/o Exemptions: | $7,751.74 | | |
Improvement / Building
| Improvement #1: | RESIDENTIAL | State Code: | Y | 2199.1 sqft | Value: | $558,840 |
| Bathrooms: | 3.5 | Bedrooms: | 3 | | Ceiling: | DRYWALL PAINTED | Exterior Wall/Cover: | WOOD SIDING | | Floor Covering: | HARDWOOD/CARP 80-20 | Floor Structure: | WOOD W/SUBFLOOR | | Foundation: | CONCRETE | Heating: | FHA GAS | | Interior Finish: | DRYWALL PAINT | Plumbing Fixture Cnt: | 17 | | Roof Slope: | 8" IN 12" | Roof Structure/Cover: | CJ ASPHALT |
|
| | Type | Description | Class CD | Sub Class CD | Year Built | Area |
| | BAS | BASE/MAIN FLOOR | 4 | 0 | 1987 | 1874.1 |
| | oTNC | TEN CT STD | 4 | 0 | 1987 | 1650.2 |
| | OP1 | OPEN PORCH SLAB | 4 | 0 | 1987 | 72.0 |
| | AGR | ATTACHED GARAGE | 4 | 0 | 1987 | 794.9 |
| | OWP | OPEN WOOD PORCH W/STEPS | 4 | 0 | 1987 | 1343.1 |
| | DWN | DOWNSTAIRS LIVING AREA | 4 | 0 | 1987 | 325.0 |
Sketch
| No sketches available for this property. |
Property Image
Land
| 1 | HB | HIGH BLUFF | 0.5000 | 21780.00 | 100.00 | 0.00 | 1.00 | $500,000 | $0 |
Roll Value History
| 2026 | N/A | N/A | N/A | N/A | N/A |
| 2025 | $558,840 | $500,000 | $0 | $1,058,840 | $1,058,840 |
| 2024 | $570,828 | $525,000 | $0 | $1,095,828 | $1,095,828 |
| 2023 | $577,941 | $525,000 | $0 | $1,102,941 | $1,102,941 |
| 2022 | $529,775 | $425,000 | $0 | $954,775 | $954,775 |
| 2021 | $441,021 | $375,000 | $0 | $816,021 | $816,021 |
| 2020 | $430,028 | $300,000 | $0 | $730,028 | $730,028 |
| 2019 | $322,623 | $350,000 | $0 | $672,623 | $672,623 |
| 2018 | $323,614 | $275,000 | $0 | $598,614 | $598,614 |
| 2017 | $325,601 | $250,000 | $0 | $575,601 | $575,601 |
| 2016 | $329,571 | $200,000 | $0 | $529,571 | $529,571 |
| 2015 | $327,797 | $200,000 | $0 | $527,797 | $527,797 |
| 2014 | $332,228 | $200,000 | $0 | $532,228 | $532,228 |
| 2013 | $337,838 | $210,917 | $0 | $548,755 | $548,755 |
| 2012 | $342,267 | $237,727 | $0 | $579,994 | $579,994 |
| 2011 | $346,694 | $297,159 | $0 | $643,853 | $643,853 |
| 2010 | $360,520 | $330,177 | $0 | $690,697 | $690,697 |
| 2009 | $388,152 | $362,268 | $0 | $750,420 | $750,420 |
| 2008 | $392,926 | $345,535 | $0 | $738,461 | $738,461 |
| 2007 | $397,769 | $345,535 | $0 | $743,304 | $743,304 |
Deed and Sales History
| 1 | 01/22/2025 | WD | Warranty Deed | THOMAS, PAULA RODDEN | ZHOU, YAMING | | | $1,050,000.00 | 62457 | 4581807 |
| 2 | 08/09/2021 | QCD | Quit Claim Deed | PARAVECCHIO, PAULA R | THOMAS, PAULA RODDEN | | | $0.00 | 49972 | 4528776 |
| 3 | 08/07/1998 | ESTSEPPROP | Establish Separate Property | PARAVECCHIO, PAULA R | PARAVECCHIO, PAULA R | | | $0.00 | 83165 | 98016531 |
| 4 | 08/05/1998 | WD | Warranty Deed | PARAVECCHIO, PAULA R | PARAVECCHIO, PAULA R | | | $350,000.00 | 83166 | 98016532 |
| 5 | 05/01/1987 | QCD | Quit Claim Deed | DRAGLAND, DONALD O | DRAGLAND, DONALD O | | | $0.00 | 71310 | 87006446 |
| 6 | 09/01/1981 | TRUSTEED | Trustee's Deed | HOVIK, ELMER C | DRAGLAND, DONALD O | | | $45,950.00 | 13164 | 388827 |
| 7 | 09/01/1978 | OTHER | Other - Misc. Documents | Unknown | HOVIK, ELMER C | | | $170,000.00 | 84528 | 339775 |
| 8 | 01/01/1900 | OTHER | Other - Misc. Documents | DRAGLAND, DONALD O | PARAVECCHIO, PAULA R | | | $0.00 | 83165 | 98016531 |
| 9 | 01/01/1900 | OTHER | Other - Misc. Documents | PARAVECCHIO, PAULA R | PARAVECCHIO, PAULA R | | | $0.00 | 83166 | 98016532 |
Payout Agreement
| No payout information available.. |