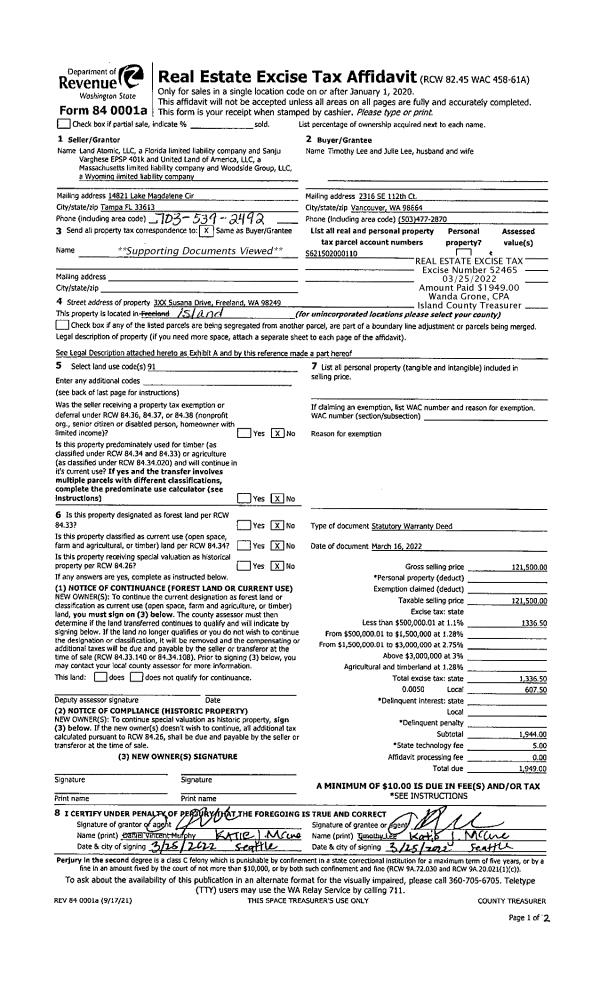
Property
Account |
| Property ID: | 527889 | Abbreviated Legal Description: | BRUTUS LOT 16 |
| Geographic ID: | S6192-00-00016-0 | Agent Code: | |
| Type: | Real | | |
| Tax Area: | 540 - APPRAISER-Stan/Cam Schl Dist, Special Dist, improved & less than 1 acre | Land Use Code | 11 |
| Open Space: | N | DFL | N |
| Historic Property: | N | Remodel Property: | N |
| Multi-Family Redevelopment: | N | | |
| Township: | | Section: | |
| Range: | |
Location |
| Address: | 3462 TIMOTHY WAY CAMANO ISLAND, WA 98282 | Mapsco: | |
| Neighborhood: | 58RscamS-South Cam | Map ID: | 873 |
| Neighborhood CD: | 58RscamS |
Owner |
| Name: | PARADA JTWROS, JOE P | Owner ID: | 309930 |
| Mailing Address: | RENEE PARADA JTWROS 3462 TIMOTHY WAY CAMANO ISLAND, WA 98282 | % Ownership: | 100.0000000000% |
| | | Exemptions: | |
Taxes and Assessment Details
Values
| (+) Improvement Homesite Value: | + | $0 | |
| (+) Improvement Non-Homesite Value: | + | $588,615 | |
| (+) Land Homesite Value: | + | $0 | |
| (+) Land Non-Homesite Value: | + | $575,000 | |
| (+) Curr Use (HS): | + | $0 | $0 |
| (+) Curr Use (NHS): | + | $0 | $0 |
| | | -------------------------- | |
| (=) Market Value: | = | $1,163,615 | |
| (–) Productivity Loss: | – | $0 | |
| | | -------------------------- | |
| (=) Subtotal: | = | $1,163,615 | |
| (+) Senior Appraised Value: | + | $0 | |
| (+) Non-Senior Appraised Value: | + | $1,163,615 | |
| | | -------------------------- | |
| (=) Total Appraised Value: | = | $1,163,615 | |
| (–) Senior Exemption Loss: | – | $0 | |
| (–) Exemption Loss: | – | $0 | |
| | | -------------------------- | |
| (=) Taxable Value: | = | $1,163,615 | |
Taxing Jurisdiction
| Owner: | PARADA JTWROS, JOE P | | |
| % Ownership: | 100.0000000000% | | |
| Total Value: | $1,163,615 | | |
| Tax Area: | 540 - APPRAISER-Stan/Cam Schl Dist, Special Dist, improved & less than 1 acre |
| CF | Conservation Futures | 0.0316035091 | $1,163,615 | $1,163,615 | $36.77 | | |
| EMS1 | Fire & Rescue Dist #1 Camano GEN (EMS) | 0.3677864386 | $1,163,615 | $1,163,615 | $427.96 | | |
| FIRE1 | Fire & Rescue Dist #1 Camano GEN | 1.2502910536 | $1,163,615 | $1,163,615 | $1,454.86 | | |
| FIRE1BOND | Fire & Rescue Dist #1 Camano BOND | 0.1570001679 | $1,163,615 | $1,163,615 | $182.69 | | |
| CE | County Current Expense | 0.3708482477 | $1,163,615 | $1,163,615 | $431.52 | | |
| CR | County Roads | 0.4584763726 | $1,163,615 | $1,163,615 | $533.49 | | |
| LCIB | Library Sno-Isle BOND (Camano Island) | 0.0396325772 | $1,163,615 | $1,163,615 | $46.12 | | |
| LIB | Library Sno-Isle GEN | 0.3153421757 | $1,163,615 | $1,163,615 | $366.94 | | |
| SCH205_401 | School 205-401 Enrichment | 1.2698420524 | $1,163,615 | $1,163,615 | $1,477.61 | | |
| SCH205BOND | School 205-401 BOND | 0.9396497583 | $1,163,615 | $1,163,615 | $1,093.39 | | |
| ST | State School | 1.3035497053 | $1,163,615 | $1,163,615 | $1,516.83 | | |
| ST2 | State School Part 2 | 0.8169543533 | $1,163,615 | $1,163,615 | $950.62 | | |
| | Total Tax Rate: | 7.3209764117 | | | | | |
| | | | | Taxes w/Current Exemptions: | $8,518.80 | | |
| | | | | Taxes w/o Exemptions: | $8,518.80 | | |
Improvement / Building
| Improvement #1: | RESIDENTIAL | State Code: | Y | 1281.0 sqft | Value: | $588,615 |
| Bathrooms: | 3 | Bedrooms: | 2 | | Ceiling: | TONGUE & GROOVE | Exterior Wall/Cover: | SHINGLE | | Floor Covering: | SOFTWOOD 100% | Floor Structure: | WOOD W/SUBFLOOR | | Foundation: | CONCRETE | Heating: | WALL HEAT ELECTRIC | | Interior Finish: | DRYWALL PAINT | Plumbing Fixture Cnt: | 13 | | Roof Slope: | 4" IN 12" | Roof Structure/Cover: | BEAM ASPHALT |
|
| | Type | Description | Class CD | Sub Class CD | Year Built | Area |
| | BAS | BASE/MAIN FLOOR | 4 | 0 | 1919 | 1281.0 |
| | UTY | STORAGE/UTILITY | 4 | 0 | 1919 | 120.0 |
| | OWP | OPEN WOOD PORCH W/STEPS | 4 | 0 | 1919 | 120.0 |
| | OWC | OPEN WOOD PORCH W/STEPS/ROOF/C | 4 | 0 | 1919 | 128.0 |
| | AGR | ATTACHED GARAGE | 4 | 0 | 1919 | 502.3 |
| | ENP | ENCLOSED PORCH | 4 | 0 | 1919 | 980.2 |
| | OWP | OPEN WOOD PORCH W/STEPS | 4 | 0 | 1919 | 744.0 |
| | UTY | STORAGE/UTILITY | 4 | 0 | 1919 | 146.9 |
Sketch
Property Image
Land
| 1 | HB | HIGH BLUFF | 0.7400 | 32234.40 | 100.00 | 0.00 | 1.00 | $575,000 | $0 |
Roll Value History
| 2026 | N/A | N/A | N/A | N/A | N/A |
| 2025 | $588,615 | $575,000 | $0 | $1,163,615 | $1,163,615 |
| 2024 | $595,520 | $575,000 | $0 | $1,170,520 | $1,170,520 |
| 2023 | $602,426 | $575,000 | $0 | $1,177,426 | $1,177,426 |
| 2022 | $358,708 | $425,000 | $0 | $783,708 | $783,708 |
| 2021 | $275,753 | $375,000 | $0 | $650,753 | $650,753 |
| 2020 | $268,740 | $300,000 | $0 | $568,740 | $568,740 |
| 2019 | $193,384 | $350,000 | $0 | $543,384 | $543,384 |
| 2018 | $193,978 | $275,000 | $0 | $468,978 | $468,978 |
| 2017 | $202,706 | $250,000 | $0 | $452,706 | $452,706 |
| 2016 | $205,177 | $120,000 | $0 | $325,177 | $325,177 |
| 2015 | $177,080 | $120,000 | $0 | $297,080 | $297,080 |
| 2014 | $178,691 | $120,000 | $0 | $298,691 | $298,691 |
| 2013 | $180,300 | $119,381 | $0 | $299,681 | $299,681 |
| 2012 | $183,961 | $119,381 | $0 | $303,342 | $303,342 |
| 2011 | $184,130 | $149,226 | $0 | $333,356 | $333,356 |
| 2010 | $189,534 | $165,807 | $0 | $355,341 | $355,341 |
| 2009 | $189,687 | $270,125 | $0 | $459,812 | $459,812 |
| 2008 | $162,703 | $246,457 | $0 | $409,160 | $409,160 |
| 2007 | $150,414 | $246,457 | $0 | $396,871 | $396,871 |
Deed and Sales History
| 1 | 06/15/2023 | QCD | Quit Claim Deed | PARADA, JOE | PARADA JTWROS, JOE P | | | $0.00 | 57362 | 4562518 |
| 2 | 05/17/2022 | WD | Warranty Deed | OLIVER-ALLIE, KAREN J | PARADA, JOE | | | $1,570,090.00 | 53194 | 4545525 |
| 3 | 01/03/2022 | PRD | Personal Representatives Deed | ALLIE, FRED | OLIVER-ALLIE, KAREN J | | | $0.00 | 51833 | 4538903 |
| 4 | 01/13/1999 | WD | Warranty Deed | MARAJA, INC | ALLIE, FRED | | | $169,500.00 | 90205 | 99001269 |
| 5 | 12/01/1984 | WD | Warranty Deed | HOME, SAVINGS & | MARAJA, INC | | | $53,000.00 | 52170 | 85008504 |
| 6 | 06/01/1983 | TRUSTEED | Trustee's Deed | HOVIK, ELMER C | HOME, SAVINGS & | | | $0.00 | 31682 | 0 |
| 7 | 09/01/1978 | OTHER | Other - Misc. Documents | Unknown | HOVIK, ELMER C | | | $170,000.00 | 84528 | 339775 |
Payout Agreement
| No payout information available.. |