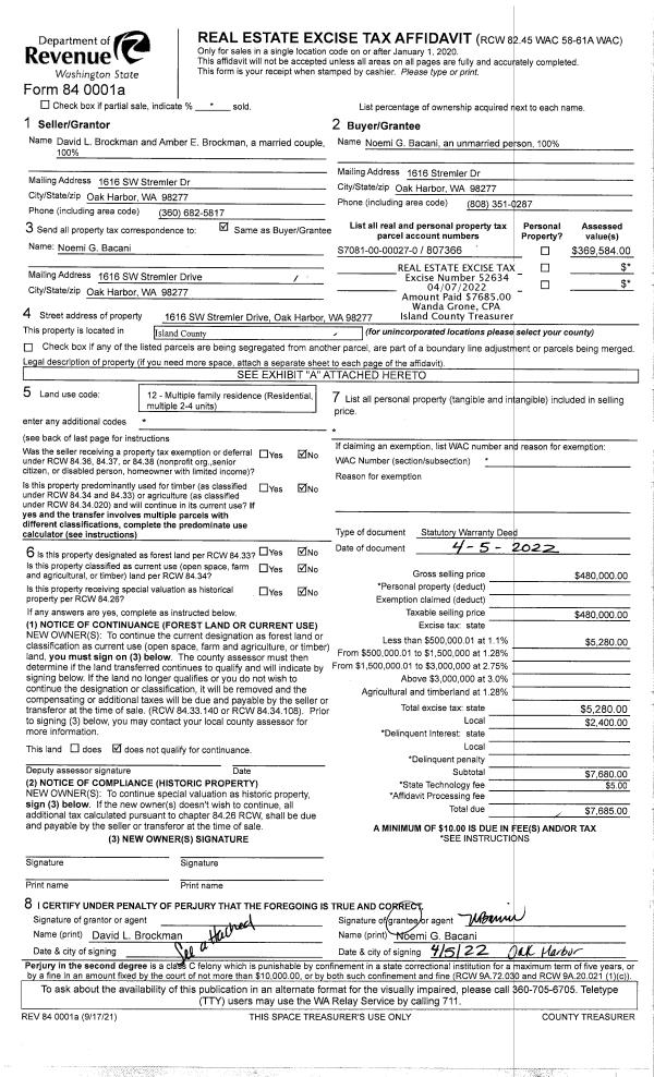
Property
Account |
| Property ID: | 527987 | Abbreviated Legal Description: | UTSALADY COVE CONDO #2 APT 25 12.2% INT |
| Geographic ID: | S8352-02-00025-0 | Agent Code: | |
| Type: | Real | | |
| Tax Area: | 590 - APPRAISER-Stan/Cam Schl Dist, Special Dist, improved & less than 1 acre | Land Use Code | 14 |
| Open Space: | N | DFL | N |
| Historic Property: | N | Remodel Property: | N |
| Multi-Family Redevelopment: | N | | |
| Township: | | Section: | |
| Range: | |
Location |
| Address: | 130 E NORTH CAMANO DR UNIT 25 CAMANO ISLAND, WA 98282 | Mapsco: | |
| Neighborhood: | 52*RR-utsalady co | Map ID: | 962 |
| Neighborhood CD: | 52*RRutsco |
Owner |
| Name: | PALMER JR, JOHN F | Owner ID: | 255841 |
| Mailing Address: | PAMELA S PALMER 509 N SUNSET DR CAMANO ISLAND, WA 98282 | % Ownership: | 100.0000000000% |
| | | Exemptions: | |
Taxes and Assessment Details
Values
| (+) Improvement Homesite Value: | + | $0 | |
| (+) Improvement Non-Homesite Value: | + | $205,270 | |
| (+) Land Homesite Value: | + | $0 | |
| (+) Land Non-Homesite Value: | + | $130,000 | |
| (+) Curr Use (HS): | + | $0 | $0 |
| (+) Curr Use (NHS): | + | $0 | $0 |
| | | -------------------------- | |
| (=) Market Value: | = | $335,270 | |
| (–) Productivity Loss: | – | $0 | |
| | | -------------------------- | |
| (=) Subtotal: | = | $335,270 | |
| (+) Senior Appraised Value: | + | $0 | |
| (+) Non-Senior Appraised Value: | + | $335,270 | |
| | | -------------------------- | |
| (=) Total Appraised Value: | = | $335,270 | |
| (–) Senior Exemption Loss: | – | $0 | |
| (–) Exemption Loss: | – | $0 | |
| | | -------------------------- | |
| (=) Taxable Value: | = | $335,270 | |
Taxing Jurisdiction
| Owner: | PALMER JR, JOHN F | | |
| % Ownership: | 100.0000000000% | | |
| Total Value: | $335,270 | | |
| Tax Area: | 590 - APPRAISER-Stan/Cam Schl Dist, Special Dist, improved & less than 1 acre |
| CF | Conservation Futures | 0.0316035091 | $335,270 | $335,270 | $10.60 | | |
| EMS1 | Fire & Rescue Dist #1 Camano GEN (EMS) | 0.3677864386 | $335,270 | $335,270 | $123.31 | | |
| FIRE1 | Fire & Rescue Dist #1 Camano GEN | 1.2502910536 | $335,270 | $335,270 | $419.19 | | |
| FIRE1BOND | Fire & Rescue Dist #1 Camano BOND | 0.1570001679 | $335,270 | $335,270 | $52.64 | | |
| CE | County Current Expense | 0.3708482477 | $335,270 | $335,270 | $124.33 | | |
| CR | County Roads | 0.4584763726 | $335,270 | $335,270 | $153.71 | | |
| LCIB | Library Sno-Isle BOND (Camano Island) | 0.0396325772 | $335,270 | $335,270 | $13.29 | | |
| LIB | Library Sno-Isle GEN | 0.3153421757 | $335,270 | $335,270 | $105.72 | | |
| SCH205_401 | School 205-401 Enrichment | 1.2698420524 | $335,270 | $335,270 | $425.74 | | |
| SCH205BOND | School 205-401 BOND | 0.9396497583 | $335,270 | $335,270 | $315.04 | | |
| ST | State School | 1.3035497053 | $335,270 | $335,270 | $437.04 | | |
| ST2 | State School Part 2 | 0.8169543533 | $335,270 | $335,270 | $273.90 | | |
| | Total Tax Rate: | 7.3209764117 | | | | | |
| | | | | Taxes w/Current Exemptions: | $2,454.51 | | |
| | | | | Taxes w/o Exemptions: | $2,454.51 | | |
Improvement / Building
| Improvement #1: | RESIDENTIAL | State Code: | A1 | 1134.2 sqft | Value: | $205,270 |
| Bathrooms: | 1.5 | Bedrooms: | 2 | | Ceiling: | DRYWALL PAINTED | Exterior Wall/Cover: | SHINGLE | | Floor Covering: | CARPET/VINYL 80-20 | Floor Structure: | WOOD W/SUBFLOOR | | Foundation: | CONCRETE | Heating: | BASEBOARD ELECTRIC | | Interior Finish: | DRYWALL PAINT | Plumbing Fixture Cnt: | 8 | | Roof Slope: | 4" IN 12" | Roof Structure/Cover: | CJ CONCRETE TILE |
|
| | Type | Description | Class CD | Sub Class CD | Year Built | Area |
| | BAS | BASE/MAIN FLOOR | 3 | 0 | 1979 | 1134.2 |
| | UTY | STORAGE/UTILITY | 3 | 0 | 1979 | 160.0 |
| | OWP | OPEN WOOD PORCH W/STEPS | 3 | 0 | 1979 | 112.0 |
| | COMA | Common Area Improvement | 3 | 0 | 1979 | 0.0 |
Sketch
Property Image
Land
| 1 | 61 | MULTIPLE RESIDENCES | 0.0000 | 6490.00 | 0.00 | 0.00 | 1.00 | $130,000 | $0 |
Roll Value History
| 2026 | N/A | N/A | N/A | N/A | N/A |
| 2025 | $205,270 | $130,000 | $0 | $335,270 | $335,270 |
| 2024 | $211,561 | $130,000 | $0 | $341,561 | $341,561 |
| 2023 | $214,169 | $130,000 | $0 | $344,169 | $344,169 |
| 2022 | $197,986 | $130,000 | $0 | $327,986 | $327,986 |
| 2021 | $114,664 | $130,000 | $0 | $244,664 | $244,664 |
| 2020 | $112,114 | $70,000 | $0 | $182,114 | $182,114 |
| 2019 | $80,323 | $80,000 | $0 | $160,323 | $160,323 |
| 2018 | $108,872 | $60,000 | $0 | $168,872 | $168,872 |
| 2017 | $109,744 | $17,199 | $0 | $126,943 | $126,943 |
| 2016 | $111,486 | $17,199 | $0 | $128,685 | $128,685 |
| 2015 | $83,872 | $17,199 | $0 | $101,071 | $101,071 |
| 2014 | $85,162 | $17,199 | $0 | $102,361 | $102,361 |
| 2013 | $86,452 | $17,199 | $0 | $103,651 | $103,651 |
| 2012 | $86,441 | $17,199 | $0 | $103,640 | $103,640 |
| 2011 | $86,441 | $17,199 | $0 | $103,640 | $103,640 |
| 2010 | $92,014 | $17,199 | $0 | $109,213 | $109,213 |
| 2009 | $109,985 | $47,247 | $0 | $157,232 | $157,232 |
| 2008 | $111,443 | $49,713 | $0 | $161,156 | $161,156 |
| 2007 | $112,901 | $49,713 | $0 | $162,614 | $162,614 |
Deed and Sales History
| 1 | 10/18/2011 | QCD | Quit Claim Deed | PALMER, JOHN F JR & PAMELA S | PALMER, JOHN F JR & PAMELA S | | | $0.00 | 5924 | 4303345 |
| 2 | 11/01/2011 | QCD | Quit Claim Deed | | PALMER JR, JOHN F | | | | 5913 | 4303210 |
| 3 | 10/31/2001 | WD | Warranty Deed | HOWELL, ALBERT G | PALMER, JOHN F & PAMELA S | | | $80,000.00 | 14201 | 4001594 |
| 4 | 11/01/1994 | WD | Warranty Deed | ISLAND, TRUST | HOWELL, ALBERT G | | | $75,000.00 | 44651 | 94023795 |
| 5 | 02/01/1993 | QCD | Quit Claim Deed | FAMILY, INVESTMENT C | ISLAND, TRUST | | | $0.00 | 31602 | 93008249 |
| 6 | 05/01/1982 | REC | Real Estate Contract | QUEEN, CITY S | FAMILY, INVESTMENT C | | | $64,490.00 | 21355 | 397124 |
| 7 | 11/01/1981 | TRUSTEED | Trustee's Deed | PRESTON, MELVIN E | QUEEN, CITY S | | | $1.00 | 20024 | 391784 |
| 8 | 07/01/1979 | TRUSTEED | Trustee's Deed | Unknown | PRESTON, MELVIN E | | | $12,000.00 | 94036 | 357415 |
Payout Agreement
| No payout information available.. |