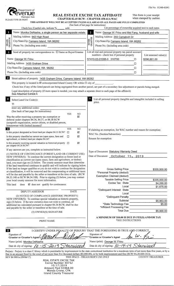
Property
Account |
| Property ID: | 529146 | Abbreviated Legal Description: | ISLAND PLAZA ISLAND VENTURES LLC SAFEWAY STORE |
| Geographic ID: | R13203-249-4560 | Agent Code: | |
| Type: | Real | | |
| Tax Area: | 100 - APPRAISER-OH Schl Dist, in OH | Land Use Code | 54 |
| Open Space: | N | DFL | N |
| Historic Property: | N | Remodel Property: | N |
| Multi-Family Redevelopment: | N | | |
| Township: | 32 | Section: | 03 |
| Range: | R1 |
Location |
| Address: | 31565 SR20 OAK HARBOR, WA 98277 | Mapsco: | |
| Neighborhood: | 3AcOH-highway 20 | Map ID: | 91 |
| Neighborhood CD: | 3AcOHhwy20 |
Owner |
| Name: | FREUND TRUSTEE, CARL | Owner ID: | 257401 |
| Mailing Address: | SAFEWAY INC #3518 C/O CPTS 3518 14205 SE 36TH ST STE 215 BELLEVUE, WA 98006 | % Ownership: | 100.0000000000% |
| | | Exemptions: | |
Taxes and Assessment Details
Values
| (+) Improvement Homesite Value: | + | $0 | |
| (+) Improvement Non-Homesite Value: | + | $2,281,080 | |
| (+) Land Homesite Value: | + | $0 | |
| (+) Land Non-Homesite Value: | + | $1,327,195 | |
| (+) Curr Use (HS): | + | $0 | $0 |
| (+) Curr Use (NHS): | + | $0 | $0 |
| | | -------------------------- | |
| (=) Market Value: | = | $3,608,275 | |
| (–) Productivity Loss: | – | $0 | |
| | | -------------------------- | |
| (=) Subtotal: | = | $3,608,275 | |
| (+) Senior Appraised Value: | + | $0 | |
| (+) Non-Senior Appraised Value: | + | $3,608,275 | |
| | | -------------------------- | |
| (=) Total Appraised Value: | = | $3,608,275 | |
| (–) Senior Exemption Loss: | – | $0 | |
| (–) Exemption Loss: | – | $0 | |
| | | -------------------------- | |
| (=) Taxable Value: | = | $3,608,275 | |
Taxing Jurisdiction
| Owner: | FREUND TRUSTEE, CARL | | |
| % Ownership: | 100.0000000000% | | |
| Total Value: | $3,608,275 | | |
| Tax Area: | 100 - APPRAISER-OH Schl Dist, in OH |
| CF | Conservation Futures | 0.0316035091 | $3,608,275 | $3,608,275 | $114.03 | | |
| CEM1 | Cemetery #1 | 0.0040320932 | $3,608,275 | $3,608,275 | $14.55 | | |
| COH | City of Oak Harbor | 2.3001546061 | $3,608,275 | $3,608,275 | $8,299.59 | | |
| OAKBOND | City of Oak Harbor BOND | 0.1926904192 | $3,608,275 | $3,608,275 | $695.28 | | |
| HOBOND | Hospital BOND | 0.1910887512 | $3,608,275 | $3,608,275 | $689.50 | | |
| HOGEN | Hospital GEN | 0.3902502903 | $3,608,275 | $3,608,275 | $1,408.13 | | |
| CE | County Current Expense | 0.3708482477 | $3,608,275 | $3,608,275 | $1,338.12 | | |
| ISLANDEMS | Hospital GEN (EMS) | 0.5000000000 | $3,608,275 | $3,608,275 | $1,804.14 | | |
| LIB | Library Sno-Isle GEN | 0.3153421757 | $3,608,275 | $3,608,275 | $1,137.84 | | |
| NWHIDPRMT | P & R N Whidbey GEN | 0.2004466701 | $3,608,275 | $3,608,275 | $723.27 | | |
| SCH201MO | School 201 Enrichment | 1.8559231640 | $3,608,275 | $3,608,275 | $6,696.68 | | |
| ST | State School | 1.3035497053 | $3,608,275 | $3,608,275 | $4,703.57 | | |
| ST2 | State School Part 2 | 0.8169543533 | $3,608,275 | $3,608,275 | $2,947.80 | | |
| | Total Tax Rate: | 8.4728839852 | | | | | |
| | | | | Taxes w/Current Exemptions: | $30,572.50 | | |
| | | | | Taxes w/o Exemptions: | $30,572.50 | | |
Improvement / Building
| Improvement #1: | COMMERCIAL | State Code: | Y | 42423.5 sqft | Value: | $2,281,080 |
| Bathrooms: | 2 | Ceiling: | SUSPENDED | | Cooling: | PACKAGE HEAT & COOL | Exterior Wall/Cover: | 8" CON BLK/STEEL FRM | | Floor Covering: | VINYL 100% | Floor Structure: | CONCRETE ON GROUND | | Foundation: | SLAB | Interior Finish: | MARKET | | Plumbing Fixture Cnt: | 12 | Roof Structure/Cover: | BEAM BUILT-UP ROCK |
|
| | Type | Description | Class CD | Sub Class CD | Year Built | Area |
| | BAS | BASE/MAIN FLOOR | 3 | 0 | 1981 | 40984.5 |
| | OP4 | OPEN PORCH W/CEILING-ROOF | 3 | 0 | 1981 | 1312.0 |
| | OP4 | OPEN PORCH W/CEILING-ROOF | 3 | 0 | 1981 | 960.0 |
| | MZO | MEZZ OFFICE | 3 | 0 | 1981 | 1439.0 |
| | OP2 | OPEN PORCH W/STEPS | 3 | 0 | 1981 | 1792.0 |
| | oLIT | LITE POLE | 3 | 0 | 1981 | 10.0 |
| | oPV2 | PV/ASPH 3" | 3 | 0 | 1981 | 110206.0 |
Sketch
Property Image
Land
| 1 | 68 | COMMERCIAL RETAIL | 4.3526 | 189599.26 | 0.00 | 0.00 | 1.00 | $1,327,195 | $0 |
Roll Value History
| 2026 | N/A | N/A | N/A | N/A | N/A |
| 2025 | $2,281,080 | $1,327,195 | $0 | $3,608,275 | $3,608,275 |
| 2024 | $2,443,707 | $1,327,195 | $0 | $3,770,902 | $3,770,902 |
| 2023 | $2,606,332 | $947,996 | $0 | $3,554,328 | $3,554,328 |
| 2022 | $2,326,715 | $947,996 | $0 | $3,274,711 | $3,274,711 |
| 2021 | $2,317,364 | $947,996 | $0 | $3,265,360 | $3,265,360 |
| 2020 | $2,301,433 | $947,996 | $0 | $3,249,429 | $3,249,429 |
| 2019 | $1,641,795 | $947,996 | $0 | $2,589,791 | $2,589,791 |
| 2018 | $1,641,901 | $758,397 | $0 | $2,400,298 | $2,400,298 |
| 2017 | $1,634,230 | $1,042,796 | $0 | $2,677,026 | $2,677,026 |
| 2016 | $1,633,144 | $1,042,796 | $0 | $2,675,940 | $2,675,940 |
| 2015 | $1,736,261 | $1,042,796 | $0 | $2,779,057 | $2,779,057 |
| 2014 | $1,833,164 | $1,042,796 | $0 | $2,875,960 | $2,875,960 |
| 2013 | $1,850,153 | $1,042,800 | $0 | $2,892,953 | $2,892,953 |
| 2012 | $2,563,025 | $2,051,472 | $0 | $4,614,497 | $4,614,497 |
| 2011 | $2,563,025 | $2,051,472 | $0 | $4,614,497 | $4,614,497 |
| 2010 | $2,646,801 | $2,051,472 | $0 | $4,698,273 | $4,698,273 |
| 2009 | $2,679,862 | $3,126,504 | $0 | $5,806,366 | $5,806,366 |
| 2008 | $2,745,986 | $3,126,504 | $0 | $5,872,490 | $5,872,490 |
| 2007 | $2,781,959 | $3,126,504 | $0 | $5,908,463 | $5,908,463 |
Deed and Sales History
| 1 | 10/12/2011 | QCD | Quit Claim Deed | FREUND, ARNOLD | FREUND, ARNOLD | | | $0.00 | 5891 | 4303122 |
| 2 | 10/12/2011 | PRD | Personal Representatives Deed | FREUND, ARNOLD | FREUND, ARNOLD | | | $0.00 | 5890 | 4303121 |
| 3 | 03/01/1997 | WD | Warranty Deed | FREUND, ARNOLD | FREUND, ARNOLD | | | $1,891,130.00 | 70913 | 97004245 |
| 4 | 09/01/1990 | WD | Warranty Deed | FREUND, ARNOLD | FREUND, ARNOLD | | | $1,896,707.00 | 5542 | 90018504 |
| 5 | 03/01/1980 | SHERIFFD | Sheriff Deed | Unknown | FREUND, ARNOLD | | | $0.00 | 59107 | 367036 |
Payout Agreement
| No payout information available.. |