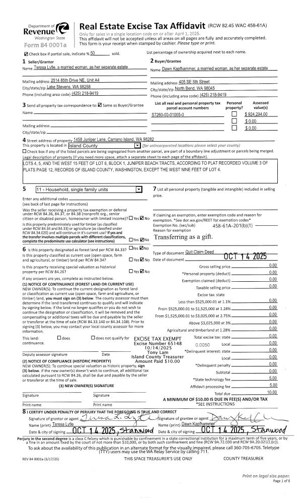
Property
Account |
| Property ID: | 529306 | Abbreviated Legal Description: | ALDERBROOK CONDO #1 APT F-1 3.571% INT IN LAND 50% INT IN BLDG |
| Geographic ID: | S6023-00-0000F-1 | Agent Code: | |
| Type: | Real | | |
| Tax Area: | 100 - APPRAISER-OH Schl Dist, in OH | Land Use Code | 14 |
| Open Space: | N | DFL | N |
| Historic Property: | N | Remodel Property: | N |
| Multi-Family Redevelopment: | N | | |
| Township: | | Section: | |
| Range: | |
Location |
| Address: | 1242 NW LANYARD LOOP APT 1 OAK HARBOR, WA 98277 | Mapsco: | |
| Neighborhood: | 3B*OH-alderbrooke | Map ID: | 252 |
| Neighborhood CD: | 3B*OHaldbr |
Owner |
| Name: | SWAIN, CAROLYN | Owner ID: | 43181 |
| Mailing Address: | 1242 NW LANYARD LOOP #1 OAK HARBOR, WA 98277-4486 | % Ownership: | 100.0000000000% |
| | | Exemptions: | SNR/DSBL |
Taxes and Assessment Details
Values
| (+) Improvement Homesite Value: | + | $207,239 | |
| (+) Improvement Non-Homesite Value: | + | $0 | |
| (+) Land Homesite Value: | + | $160,000 | |
| (+) Land Non-Homesite Value: | + | $0 | |
| (+) Curr Use (HS): | + | $0 | $0 |
| (+) Curr Use (NHS): | + | $0 | $0 |
| | | -------------------------- | |
| (=) Market Value: | = | $367,239 | |
| (–) Productivity Loss: | – | $0 | |
| | | -------------------------- | |
| (=) Subtotal: | = | $367,239 | |
| (+) Senior Appraised Value: | + | $364,290 | |
| (+) Non-Senior Appraised Value: | + | $0 | |
| | | -------------------------- | |
| (=) Total Appraised Value: | = | $364,290 | |
| (–) Senior Exemption Loss: | – | $70,000 | |
| (–) Exemption Loss: | – | $0 | |
| | | -------------------------- | |
| (=) Taxable Value: | = | $294,290 | |
Taxing Jurisdiction
| Owner: | SWAIN, CAROLYN | | |
| % Ownership: | 100.0000000000% | | |
| Total Value: | $367,239 | | |
| Tax Area: | 100 - APPRAISER-OH Schl Dist, in OH |
| CF | Conservation Futures | 0.0316035091 | $367,239 | $294,290 | $9.30 | | |
| CEM1 | Cemetery #1 | 0.0040320932 | $367,239 | $294,290 | $1.19 | | |
| COH | City of Oak Harbor | 2.3001546061 | $367,239 | $294,290 | $676.91 | | |
| OAKBOND | City of Oak Harbor BOND | 0.1926904192 | $367,239 | $294,290 | $56.71 | | |
| HOBOND | Hospital BOND | 0.0000000000 | $367,239 | $0 | $0.00 | | |
| HOGEN | Hospital GEN | 0.3902502903 | $367,239 | $294,290 | $114.85 | | |
| CE | County Current Expense | 0.3708482477 | $367,239 | $294,290 | $109.14 | | |
| ISLANDEMS | Hospital GEN (EMS) | 0.5000000000 | $367,239 | $294,290 | $147.15 | | |
| LIB | Library Sno-Isle GEN | 0.3153421757 | $367,239 | $294,290 | $92.80 | | |
| NWHIDPRMT | P & R N Whidbey GEN | 0.2004466701 | $367,239 | $294,290 | $58.99 | | |
| SCH201MO | School 201 Enrichment | 0.0000000000 | $367,239 | $0 | $0.00 | | |
| ST | State School | 1.3035497053 | $367,239 | $294,290 | $383.62 | | |
| ST2 | State School Part 2 | 0.0000000000 | $367,239 | $0 | $0.00 | | |
| | Total Tax Rate: | 5.6089177167 | | | | | |
| | | | | Taxes w/Current Exemptions: | $1,650.66 | | |
| | | | | Taxes w/o Exemptions: | $3,111.59 | | |
Improvement / Building
| Improvement #1: | RESIDENTIAL | State Code: | F1 | 1386.0 sqft | Value: | $207,239 |
| Bathrooms: | 2.5 | Bedrooms: | 3 | | Ceiling: | DRY WALL SPRAYED | Exterior Wall/Cover: | WOOD SIDING | | Floor Covering: | CARPET/VINYL 80-20 | Floor Structure: | WOOD W/SUBFLOOR | | Foundation: | CONCRETE | Heating: | BASEBOARD ELECTRIC | | Interior Finish: | DRYWALL PAINT | Plumbing Fixture Cnt: | 11 | | Roof Slope: | 4" IN 12" | Roof Structure/Cover: | CJ ASPHALT |
|
| | Type | Description | Class CD | Sub Class CD | Year Built | Area |
| | BAS | BASE/MAIN FLOOR | 3 | 0 | 1983 | 626.0 |
| | OP4 | OPEN PORCH W/CEILING-ROOF | 3 | 0 | 1983 | 28.0 |
| | BIG | BUILT IN GARAGE | 3 | 0 | 1983 | 312.0 |
| | UPS | UPPER STORY | 3 | 0 | 1983 | 760.0 |
| | OWP | OPEN WOOD PORCH W/STEPS | 3 | 0 | 1983 | 100.0 |
| | COMA | Common Area Improvement | 3 | 0 | 1983 | 100.0 |
Sketch
Property Image
Land
| 1 | 61 | MULTIPLE RESIDENCES | 0.2839 | 12366.68 | 0.00 | 0.00 | 1.00 | $160,000 | $0 |
Roll Value History
| 2026 | N/A | N/A | N/A | N/A | N/A |
| 2025 | $207,239 | $160,000 | $0 | $367,239 | $294,290 |
| 2024 | $214,290 | $150,000 | $0 | $364,290 | $294,290 |
| 2023 | $217,161 | $140,000 | $0 | $357,161 | $357,161 |
| 2022 | $199,346 | $130,000 | $0 | $329,346 | $329,346 |
| 2021 | $175,750 | $90,000 | $0 | $265,750 | $265,750 |
| 2020 | $171,024 | $90,000 | $0 | $261,024 | $261,024 |
| 2019 | $132,546 | $110,000 | $0 | $242,546 | $242,546 |
| 2018 | $133,015 | $65,000 | $0 | $198,015 | $198,015 |
| 2017 | $133,954 | $9,000 | $0 | $142,954 | $142,954 |
| 2016 | $135,834 | $9,000 | $0 | $144,834 | $144,834 |
| 2015 | $110,172 | $9,000 | $0 | $119,172 | $119,172 |
| 2014 | $111,675 | $9,000 | $0 | $120,675 | $120,675 |
| 2013 | $113,180 | $55,524 | $0 | $168,704 | $168,704 |
| 2012 | $116,453 | $55,524 | $0 | $171,977 | $171,977 |
| 2011 | $116,453 | $55,524 | $0 | $171,977 | $171,977 |
| 2010 | $123,486 | $31,728 | $0 | $155,214 | $155,214 |
| 2009 | $128,766 | $59,807 | $0 | $188,573 | $188,573 |
| 2008 | $130,335 | $66,153 | $0 | $196,488 | $196,488 |
| 2007 | $138,497 | $66,153 | $0 | $204,650 | $204,650 |
Deed and Sales History
| 1 | 07/29/2003 | WD | Warranty Deed | LA, NOUE, B | SWAIN, CAROLYN | | | $129,000.00 | 33364 | 4069524 |
| 2 | 01/01/1987 | WD | Warranty Deed | SMITH, HARVE L | LA, NOUE, B | | | $67,000.00 | 70204 | 87001420 |
| 3 | 08/01/1983 | WD | Warranty Deed | WALDEN, STEPHEN M | SMITH, HARVE L | | | $64,900.00 | 32307 | 413625 |
| 4 | 01/01/1900 | OTHER | Other - Misc. Documents | Unknown | WALDEN, STEPHEN M | | | $0.00 | 0 | 0 |
Payout Agreement
| No payout information available.. |