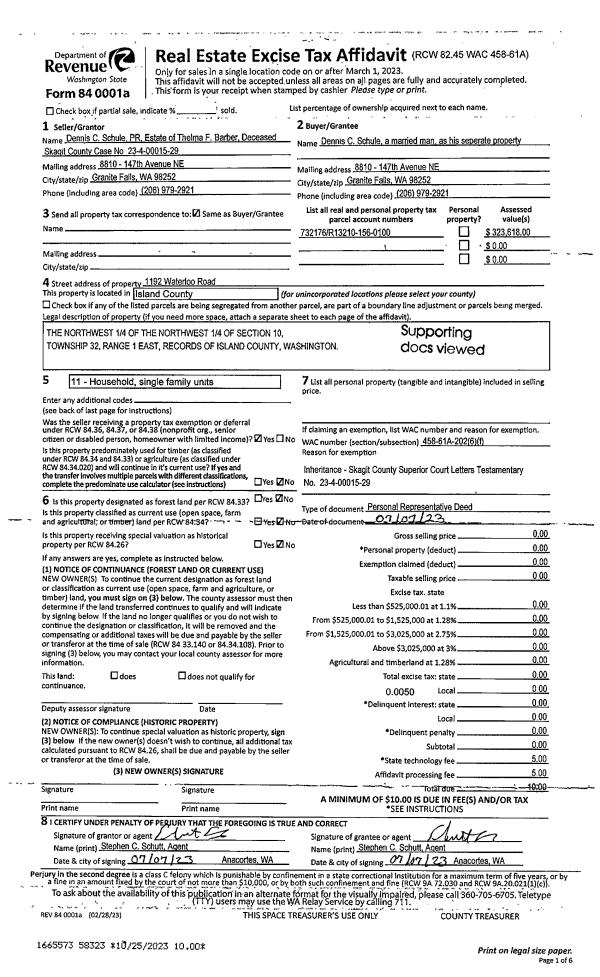
Property
Account |
| Property ID: | 530786 | Abbreviated Legal Description: | LOT K - SP 79-307 BG NW CR HUTCHINS ALG CLN S2*W999.37' N84*W1476.57' N86*W582.35' TPB N2*E300' N86*W379.13' S1*E52.05' ALG CUR/L 252.22' S86*E337' EX RD ALG S30' EX RD ALG W45' TGW SUB EZ FR 470 1850 |
| Geographic ID: | R13336-435-1860 | Agent Code: | |
| Type: | Real | | |
| Tax Area: | 112 - APPRAISER-OH Schl Dist, outside OH, improved, greater than 1 acre | Land Use Code | 11 |
| Open Space: | N | DFL | N |
| Historic Property: | N | Remodel Property: | N |
| Multi-Family Redevelopment: | N | | |
| Township: | 33 | Section: | 36 |
| Range: | R1 |
Location |
| Address: | 250 W CRESCENT HARBOR RD OAK HARBOR, WA 98277 | Mapsco: | |
| Neighborhood: | Cycle 1 | Map ID: | 262 |
| Neighborhood CD: | 1 |
Owner |
| Name: | RINGLEIN, JAYSON T | Owner ID: | 297184 |
| Mailing Address: | AMANDA R CLARKE, ET AL 250 W CRESCENT HARBOR RD OAK HARBOR, WA 98277 | % Ownership: | 100.0000000000% |
| | | Exemptions: | |
Taxes and Assessment Details
Values
| (+) Improvement Homesite Value: | + | $0 | |
| (+) Improvement Non-Homesite Value: | + | $283,816 | |
| (+) Land Homesite Value: | + | $0 | |
| (+) Land Non-Homesite Value: | + | $240,000 | |
| (+) Curr Use (HS): | + | $0 | $0 |
| (+) Curr Use (NHS): | + | $0 | $0 |
| | | -------------------------- | |
| (=) Market Value: | = | $523,816 | |
| (–) Productivity Loss: | – | $0 | |
| | | -------------------------- | |
| (=) Subtotal: | = | $523,816 | |
| (+) Senior Appraised Value: | + | $0 | |
| (+) Non-Senior Appraised Value: | + | $523,816 | |
| | | -------------------------- | |
| (=) Total Appraised Value: | = | $523,816 | |
| (–) Senior Exemption Loss: | – | $0 | |
| (–) Exemption Loss: | – | $0 | |
| | | -------------------------- | |
| (=) Taxable Value: | = | $523,816 | |
Taxing Jurisdiction
| Owner: | RINGLEIN, JAYSON T | | |
| % Ownership: | 100.0000000000% | | |
| Total Value: | $523,816 | | |
| Tax Area: | 112 - APPRAISER-OH Schl Dist, outside OH, improved, greater than 1 acre |
| CF | Conservation Futures | 0.0316035091 | $523,816 | $523,816 | $16.55 | | |
| CEM1 | Cemetery #1 | 0.0040320932 | $523,816 | $523,816 | $2.11 | | |
| FIRE2 | Fire & Rescue Dist #2 N Whidbey GEN | 0.5475949600 | $523,816 | $523,816 | $286.84 | | |
| HOBOND | Hospital BOND | 0.1910887512 | $523,816 | $523,816 | $100.10 | | |
| HOGEN | Hospital GEN | 0.3902502903 | $523,816 | $523,816 | $204.42 | | |
| CE | County Current Expense | 0.3708482477 | $523,816 | $523,816 | $194.26 | | |
| CR | County Roads | 0.4584763726 | $523,816 | $523,816 | $240.16 | | |
| ISLANDEMS | Hospital GEN (EMS) | 0.5000000000 | $523,816 | $523,816 | $261.91 | | |
| LIB | Library Sno-Isle GEN | 0.3153421757 | $523,816 | $523,816 | $165.18 | | |
| NWHIDPRMT | P & R N Whidbey GEN | 0.2004466701 | $523,816 | $523,816 | $105.00 | | |
| SCH201MO | School 201 Enrichment | 1.8559231640 | $523,816 | $523,816 | $972.16 | | |
| ST | State School | 1.3035497053 | $523,816 | $523,816 | $682.82 | | |
| ST2 | State School Part 2 | 0.8169543533 | $523,816 | $523,816 | $427.93 | | |
| | Total Tax Rate: | 6.9861102925 | | | | | |
| | | | | Taxes w/Current Exemptions: | $3,659.44 | | |
| | | | | Taxes w/o Exemptions: | $3,659.44 | | |
Improvement / Building
| Improvement #1: | RESIDENTIAL | State Code: | Y | 1960.0 sqft | Value: | $283,816 |
| Bathrooms: | 2 | Bedrooms: | 3 | | Ceiling: | DRYWALL PAINTED | Exterior Wall/Cover: | PLY/HARDBOARD T-111 | | Floor Covering: | VINYL TILE | Floor Structure: | SLAB ON GRADE | | Foundation: | SLAB | Heating: | BASEBOARD ELECTRIC | | Interior Finish: | DRYWALL PAINT | Plumbing Fixture Cnt: | 12 | | Roof Slope: | 6" IN 12" | Roof Structure/Cover: | CJ ASPHALT |
|
| | Type | Description | Class CD | Sub Class CD | Year Built | Area |
| | BAS | BASE/MAIN FLOOR | 3 | 0 | 1976 | 1960.0 |
| | AGR | ATTACHED GARAGE | 3 | 0 | 1976 | 2800.0 |
| | OWP | OPEN WOOD PORCH W/STEPS | 3 | 0 | 1976 | 216.0 |
Sketch
Property Image
Land
| 1 | 17 | AC (01.01-02.00) | 1.9400 | 84506.40 | 0.00 | 0.00 | 1.00 | $240,000 | $0 |
Roll Value History
| 2026 | N/A | N/A | N/A | N/A | N/A |
| 2025 | $283,816 | $240,000 | $0 | $523,816 | $523,816 |
| 2024 | $294,571 | $220,000 | $0 | $514,571 | $514,571 |
| 2023 | $274,197 | $220,000 | $0 | $494,197 | $494,197 |
| 2022 | $252,098 | $200,000 | $0 | $452,098 | $452,098 |
| 2021 | $222,535 | $170,000 | $0 | $392,535 | $392,535 |
| 2020 | $212,471 | $130,000 | $0 | $342,471 | $342,471 |
| 2019 | $154,853 | $200,000 | $0 | $354,853 | $354,853 |
| 2018 | $155,412 | $135,000 | $0 | $290,412 | $290,412 |
| 2017 | $124,839 | $120,000 | $0 | $244,839 | $244,839 |
| 2016 | $126,759 | $90,000 | $0 | $216,759 | $216,759 |
| 2015 | $128,681 | $80,000 | $0 | $208,681 | $208,681 |
| 2014 | $130,601 | $80,000 | $0 | $210,601 | $210,601 |
| 2013 | $132,522 | $80,000 | $0 | $212,522 | $212,522 |
| 2012 | $134,442 | $85,000 | $0 | $219,442 | $219,442 |
| 2011 | $112,072 | $100,000 | $0 | $212,072 | $212,072 |
| 2010 | $121,564 | $100,000 | $0 | $221,564 | $221,564 |
| 2009 | $127,011 | $132,000 | $0 | $259,011 | $259,011 |
| 2008 | $128,806 | $132,000 | $0 | $260,806 | $260,806 |
| 2007 | $130,632 | $132,000 | $0 | $262,632 | $262,632 |
Deed and Sales History
| 1 | 10/09/2020 | WD | Warranty Deed | HARTLEY, RUSSELL H | RINGLEIN, JAYSON T | | | $384,000.00 | 45369 | 4500286 |
| 2 | 03/20/2009 | QCD | Quit Claim Deed | HARTLEY, RUSSELL H | HARTLEY, RUSSELL H | | | $0.00 | 90615 | 4247048 |
| 3 | 09/01/1981 | WD | Warranty Deed | TORREY, GRANT | HARTLEY, RUSSELL H | | | $58,000.00 | 12887 | 387942 |
| 4 | 04/01/1981 | REC | Real Estate Contract | WARDENAAR, JOHN | TORREY, GRANT | | | $15,000.00 | 11271 | 382326 |
| 5 | 04/01/1981 | QCD | Quit Claim Deed | TORREY, GRANT | TORREY, GRANT | | | $0.00 | 11420 | 382862 |
| 6 | 01/01/1900 | OTHER | Other - Misc. Documents | Unknown | WARDENAAR, JOHN | | | $0.00 | 0 | 0 |
Payout Agreement
| No payout information available.. |