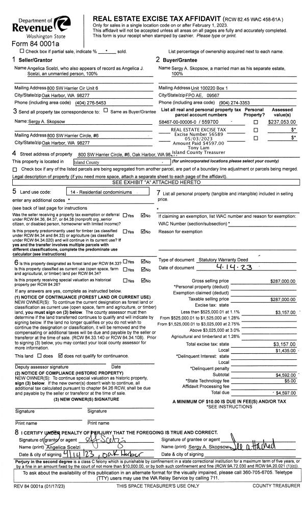
Property
Account |
| Property ID: | 532061 | Abbreviated Legal Description: | LOT 2 SP 80-54.23307.239-1610 |
| Geographic ID: | R23307-247-1650 | Agent Code: | |
| Type: | Real | | |
| Tax Area: | 110 - APPRAISER-OH Schl Dist, outside OH, improved & 1 acre or less | Land Use Code | 13 |
| Open Space: | N | DFL | N |
| Historic Property: | N | Remodel Property: | N |
| Multi-Family Redevelopment: | N | | |
| Township: | 33 | Section: | 07 |
| Range: | R2 |
Location |
| Address: | 4176 CABRINI CT OAK HARBOR, WA 98277 | Mapsco: | |
| Neighborhood: | 61cRR-jones road | Map ID: | 591 |
| Neighborhood CD: | 61cRRjones |
Owner |
| Name: | WOOLEY, JARED | Owner ID: | 267842 |
| Mailing Address: | MELODY WOOLEY 4176 CABRINI COURT #A OAK HARBOR, WA 98277 | % Ownership: | 100.0000000000% |
| | | Exemptions: | |
Taxes and Assessment Details
Values
| (+) Improvement Homesite Value: | + | $0 | |
| (+) Improvement Non-Homesite Value: | + | $289,945 | |
| (+) Land Homesite Value: | + | $0 | |
| (+) Land Non-Homesite Value: | + | $190,000 | |
| (+) Curr Use (HS): | + | $0 | $0 |
| (+) Curr Use (NHS): | + | $0 | $0 |
| | | -------------------------- | |
| (=) Market Value: | = | $479,945 | |
| (–) Productivity Loss: | – | $0 | |
| | | -------------------------- | |
| (=) Subtotal: | = | $479,945 | |
| (+) Senior Appraised Value: | + | $0 | |
| (+) Non-Senior Appraised Value: | + | $479,945 | |
| | | -------------------------- | |
| (=) Total Appraised Value: | = | $479,945 | |
| (–) Senior Exemption Loss: | – | $0 | |
| (–) Exemption Loss: | – | $0 | |
| | | -------------------------- | |
| (=) Taxable Value: | = | $479,945 | |
Taxing Jurisdiction
| Owner: | WOOLEY, JARED | | |
| % Ownership: | 100.0000000000% | | |
| Total Value: | $479,945 | | |
| Tax Area: | 110 - APPRAISER-OH Schl Dist, outside OH, improved & 1 acre or less |
| CF | Conservation Futures | 0.0316035091 | $479,945 | $479,945 | $15.17 | | |
| CEM1 | Cemetery #1 | 0.0040320932 | $479,945 | $479,945 | $1.94 | | |
| FIRE2 | Fire & Rescue Dist #2 N Whidbey GEN | 0.5475949600 | $479,945 | $479,945 | $262.82 | | |
| HOBOND | Hospital BOND | 0.1910887512 | $479,945 | $479,945 | $91.71 | | |
| HOGEN | Hospital GEN | 0.3902502903 | $479,945 | $479,945 | $187.30 | | |
| CE | County Current Expense | 0.3708482477 | $479,945 | $479,945 | $177.99 | | |
| CR | County Roads | 0.4584763726 | $479,945 | $479,945 | $220.04 | | |
| ISLANDEMS | Hospital GEN (EMS) | 0.5000000000 | $479,945 | $479,945 | $239.97 | | |
| LIB | Library Sno-Isle GEN | 0.3153421757 | $479,945 | $479,945 | $151.35 | | |
| NWHIDPRMT | P & R N Whidbey GEN | 0.2004466701 | $479,945 | $479,945 | $96.20 | | |
| SCH201MO | School 201 Enrichment | 1.8559231640 | $479,945 | $479,945 | $890.74 | | |
| ST | State School | 1.3035497053 | $479,945 | $479,945 | $625.63 | | |
| ST2 | State School Part 2 | 0.8169543533 | $479,945 | $479,945 | $392.09 | | |
| | Total Tax Rate: | 6.9861102925 | | | | | |
| | | | | Taxes w/Current Exemptions: | $3,352.95 | | |
| | | | | Taxes w/o Exemptions: | $3,352.95 | | |
Improvement / Building
| Improvement #1: | MISC | State Code: | A1 | 2376.0 sqft | Value: | $289,945 |
| Bathrooms: | 3 | Bedrooms: | 6 | | Ceiling: | DRY WALL SPRAYED | Exterior Wall/Cover: | PLY/HARDBOARD T-111 | | Floor Covering: | CARPET/VINYL 60-40 | Floor Structure: | WOOD W/SUBFLOOR | | Foundation: | CONCRETE | Heating: | BASEBOARD ELECTRIC | | Interior Finish: | DRYWALL PAINT | Plumbing Fixture Cnt: | 18 | | Roof Slope: | 4" IN 12" | Roof Structure/Cover: | CJ ASPHALT |
|
| | Type | Description | Class CD | Sub Class CD | Year Built | Area |
| | BAS | BASE/MAIN FLOOR | 3 | 0 | 1984 | 2376.0 |
| | UTY | STORAGE/UTILITY | 3 | 0 | 1984 | 32.0 |
| | UTY | STORAGE/UTILITY | 3 | 0 | 1984 | 32.0 |
| | UTY | STORAGE/UTILITY | 3 | 0 | 1984 | 32.0 |
| | OWP | OPEN WOOD PORCH W/STEPS | 3 | 0 | 1984 | 180.0 |
| | OWP | OPEN WOOD PORCH W/STEPS | 3 | 0 | 1984 | 360.0 |
Sketch
Property Image
Land
| 1 | 61 | MULTIPLE RESIDENCES | 0.5200 | 22651.20 | 0.00 | 0.00 | 1.00 | $190,000 | $0 |
Roll Value History
| 2026 | N/A | N/A | N/A | N/A | N/A |
| 2025 | $289,945 | $190,000 | $0 | $479,945 | $479,945 |
| 2024 | $299,887 | $190,000 | $0 | $489,887 | $489,887 |
| 2023 | $304,157 | $190,000 | $0 | $494,157 | $494,157 |
| 2022 | $256,240 | $160,000 | $0 | $416,240 | $416,240 |
| 2021 | $226,095 | $160,000 | $0 | $386,095 | $386,095 |
| 2020 | $220,480 | $160,000 | $0 | $380,480 | $380,480 |
| 2019 | $165,369 | $160,000 | $0 | $325,369 | $325,369 |
| 2018 | $165,948 | $150,000 | $0 | $315,948 | $315,948 |
| 2017 | $167,108 | $90,605 | $0 | $257,713 | $257,713 |
| 2016 | $157,091 | $93,549 | $0 | $250,640 | $250,640 |
| 2015 | $157,091 | $93,549 | $0 | $250,640 | $250,640 |
| 2014 | $157,091 | $93,549 | $0 | $250,640 | $250,640 |
| 2013 | $157,091 | $93,549 | $0 | $250,640 | $250,640 |
| 2012 | $157,091 | $93,549 | $0 | $250,640 | $250,640 |
| 2011 | $157,091 | $93,549 | $0 | $250,640 | $250,640 |
| 2010 | $168,215 | $93,549 | $0 | $261,764 | $261,764 |
| 2009 | $170,354 | $102,156 | $0 | $272,510 | $272,510 |
| 2008 | $172,492 | $107,592 | $0 | $280,084 | $280,084 |
| 2007 | $174,631 | $107,592 | $0 | $282,223 | $282,223 |
Deed and Sales History
| 1 | 09/24/2014 | WD | Warranty Deed | MARSHALL, DAVID R | WOOLEY, JARED | | | $247,500.00 | 16949 | 4366111 |
| 2 | 11/01/1997 | WD | Warranty Deed | BENDER, GLENN S | MARSHALL, DAVID R | | | $153,500.00 | 74074 | 97019571 |
| 3 | 02/01/1984 | WD | Warranty Deed | ISLAND, PACIFIC C | BENDER, GLENN S | | | $88,900.00 | 40413 | 421120 |
| 4 | 10/01/1983 | WD | Warranty Deed | ENRIDGE, NORMAN | ISLAND, PACIFIC C | | | $14,666.00 | 33054 | 416293 |
| 5 | 01/01/1900 | OTHER | Other - Misc. Documents | Unknown | ENRIDGE, NORMAN | | | $0.00 | 0 | 0 |
Payout Agreement
| No payout information available.. |