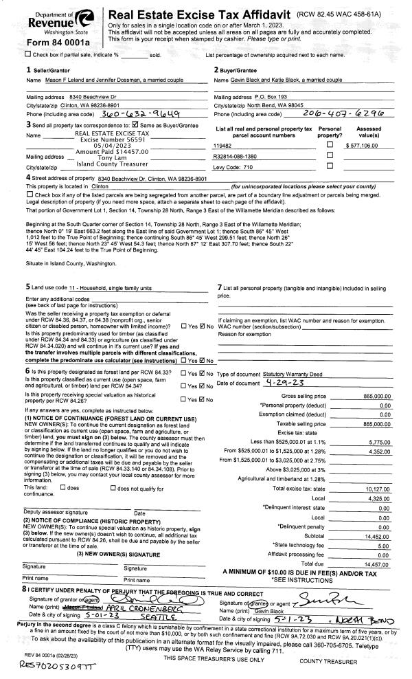
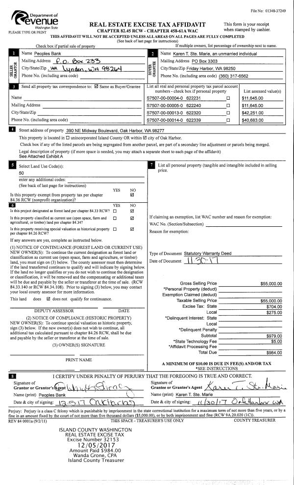
Property
Account |
| Property ID: | 532070 | Abbreviated Legal Description: | LOT 3 SP 80-54.23307.239-1610 V1 SP P88 AF#382898 |
| Geographic ID: | R23307-235-1650 | Agent Code: | |
| Type: | Real | | |
| Tax Area: | 110 - APPRAISER-OH Schl Dist, outside OH, improved & 1 acre or less | Land Use Code | 12 |
| Open Space: | N | DFL | N |
| Historic Property: | N | Remodel Property: | N |
| Multi-Family Redevelopment: | N | | |
| Township: | 33 | Section: | 07 |
| Range: | R2 |
Location |
| Address: | 4168 CABRINI CT OAK HARBOR, WA 98277 | Mapsco: | |
| Neighborhood: | 61cRR-jones road | Map ID: | 591 |
| Neighborhood CD: | 61cRRjones |
Owner |
| Name: | STONE, CHANDLER L | Owner ID: | 282150 |
| Mailing Address: | CHRISTINE M STONE 3619 1/2 FIELDING AVE BELLINGHAM, WA 98229 | % Ownership: | 100.0000000000% |
| | | Exemptions: | |
Taxes and Assessment Details
Values
| (+) Improvement Homesite Value: | + | $0 | |
| (+) Improvement Non-Homesite Value: | + | $283,431 | |
| (+) Land Homesite Value: | + | $0 | |
| (+) Land Non-Homesite Value: | + | $190,000 | |
| (+) Curr Use (HS): | + | $0 | $0 |
| (+) Curr Use (NHS): | + | $0 | $0 |
| | | -------------------------- | |
| (=) Market Value: | = | $473,431 | |
| (–) Productivity Loss: | – | $0 | |
| | | -------------------------- | |
| (=) Subtotal: | = | $473,431 | |
| (+) Senior Appraised Value: | + | $0 | |
| (+) Non-Senior Appraised Value: | + | $473,431 | |
| | | -------------------------- | |
| (=) Total Appraised Value: | = | $473,431 | |
| (–) Senior Exemption Loss: | – | $0 | |
| (–) Exemption Loss: | – | $0 | |
| | | -------------------------- | |
| (=) Taxable Value: | = | $473,431 | |
Taxing Jurisdiction
| Owner: | STONE, CHANDLER L | | |
| % Ownership: | 100.0000000000% | | |
| Total Value: | $473,431 | | |
| Tax Area: | 110 - APPRAISER-OH Schl Dist, outside OH, improved & 1 acre or less |
| CF | Conservation Futures | 0.0316035091 | $473,431 | $473,431 | $14.96 | | |
| CEM1 | Cemetery #1 | 0.0040320932 | $473,431 | $473,431 | $1.91 | | |
| FIRE2 | Fire & Rescue Dist #2 N Whidbey GEN | 0.5475949600 | $473,431 | $473,431 | $259.25 | | |
| HOBOND | Hospital BOND | 0.1910887512 | $473,431 | $473,431 | $90.47 | | |
| HOGEN | Hospital GEN | 0.3902502903 | $473,431 | $473,431 | $184.76 | | |
| CE | County Current Expense | 0.3708482477 | $473,431 | $473,431 | $175.57 | | |
| CR | County Roads | 0.4584763726 | $473,431 | $473,431 | $217.06 | | |
| ISLANDEMS | Hospital GEN (EMS) | 0.5000000000 | $473,431 | $473,431 | $236.72 | | |
| LIB | Library Sno-Isle GEN | 0.3153421757 | $473,431 | $473,431 | $149.29 | | |
| NWHIDPRMT | P & R N Whidbey GEN | 0.2004466701 | $473,431 | $473,431 | $94.90 | | |
| SCH201MO | School 201 Enrichment | 1.8559231640 | $473,431 | $473,431 | $878.65 | | |
| ST | State School | 1.3035497053 | $473,431 | $473,431 | $617.14 | | |
| ST2 | State School Part 2 | 0.8169543533 | $473,431 | $473,431 | $386.77 | | |
| | Total Tax Rate: | 6.9861102925 | | | | | |
| | | | | Taxes w/Current Exemptions: | $3,307.45 | | |
| | | | | Taxes w/o Exemptions: | $3,307.45 | | |
Improvement / Building
| Improvement #1: | MISC | State Code: | A1 | 2376.0 sqft | Value: | $283,431 |
| Bathrooms: | 3 | Bedrooms: | 6 | | Ceiling: | DRY WALL SPRAYED | Exterior Wall/Cover: | PLY/HARDBOARD T-111 | | Floor Covering: | CARPET/VINYL 60-40 | Floor Structure: | WOOD W/SUBFLOOR | | Foundation: | CONCRETE | Heating: | BASEBOARD ELECTRIC | | Interior Finish: | DRYWALL PAINT | Plumbing Fixture Cnt: | 18 | | Roof Slope: | 4" IN 12" | Roof Structure/Cover: | CJ ASPHALT |
|
| | Type | Description | Class CD | Sub Class CD | Year Built | Area |
| | BAS | BASE/MAIN FLOOR | 3 | 0 | 1984 | 2376.0 |
| | UTY | STORAGE/UTILITY | 3 | 0 | 1984 | 32.0 |
| | UTY | STORAGE/UTILITY | 3 | 0 | 1984 | 32.0 |
| | UTY | STORAGE/UTILITY | 3 | 0 | 1984 | 32.0 |
| | OWP | OPEN WOOD PORCH W/STEPS | 3 | 0 | 1984 | 56.0 |
| | OWP | OPEN WOOD PORCH W/STEPS | 3 | 0 | 1984 | 56.0 |
| | OWP | OPEN WOOD PORCH W/STEPS | 3 | 0 | 1984 | 56.0 |
Sketch
Property Image
Land
| 1 | 61 | MULTIPLE RESIDENCES | 0.5200 | 22651.20 | 0.00 | 0.00 | 1.00 | $190,000 | $0 |
Roll Value History
| 2026 | N/A | N/A | N/A | N/A | N/A |
| 2025 | $283,431 | $190,000 | $0 | $473,431 | $473,431 |
| 2024 | $293,146 | $190,000 | $0 | $483,146 | $483,146 |
| 2023 | $297,322 | $190,000 | $0 | $487,322 | $487,322 |
| 2022 | $257,887 | $160,000 | $0 | $417,887 | $417,887 |
| 2021 | $227,543 | $160,000 | $0 | $387,543 | $387,543 |
| 2020 | $221,896 | $160,000 | $0 | $381,896 | $381,896 |
| 2019 | $166,429 | $160,000 | $0 | $326,429 | $326,429 |
| 2018 | $167,012 | $150,000 | $0 | $317,012 | $317,012 |
| 2017 | $168,180 | $90,605 | $0 | $258,785 | $258,785 |
| 2016 | $162,491 | $93,549 | $0 | $256,040 | $256,040 |
| 2015 | $162,491 | $93,549 | $0 | $256,040 | $256,040 |
| 2014 | $162,491 | $93,549 | $0 | $256,040 | $256,040 |
| 2013 | $162,491 | $93,549 | $0 | $256,040 | $256,040 |
| 2012 | $162,491 | $93,549 | $0 | $256,040 | $256,040 |
| 2011 | $162,491 | $93,549 | $0 | $256,040 | $256,040 |
| 2010 | $164,467 | $93,549 | $0 | $258,016 | $258,016 |
| 2009 | $166,558 | $102,156 | $0 | $268,714 | $268,714 |
| 2008 | $168,648 | $107,592 | $0 | $276,240 | $276,240 |
| 2007 | $170,739 | $107,592 | $0 | $278,331 | $278,331 |
Deed and Sales History
| 1 | 09/25/2017 | WD | Warranty Deed | MAXUM INVESTMENTS, LLC | STONE, CHANDLER L | | | $391,000.00 | 31260 | 4430966 |
| 2 | 10/08/2015 | SPWARDEED | Special Warranty Deed | SECRETARY OF VETERANS AFFAIRS | MAXUM INVESTMENTS, LLC | | | $0.00 | 21812 | 4387969 |
| 3 | 03/11/2015 | WD | Warranty Deed | LAKEVIEW LOAN SERVICING LLC | SECRETARY OF VETERANS AFFAIRS | | | $0.00 | 18859 | 4375184 |
| 4 | 03/03/2015 | TRUSTEED | Trustee's Deed | NWANKWO, UGOCHUKWU C | LAKEVIEW LOAN SERVICING LLC | | | $0.00 | 18690 | 4374411 |
| 5 | 06/16/2005 | ESTSEPPROP | Establish Separate Property | NWANKWO, UGOCHUKWE | NWANKWO, UGOCHUKWU C | | | $0.00 | 52958 | 4138619 |
| 6 | 06/16/2005 | WD | Warranty Deed | CONALLEN, MICHAEL J | NWANKWO, UGOCHUKWE | | | $265,000.00 | 52957 | 4238618 |
| 7 | 04/01/1984 | WD | Warranty Deed | ISLAND, PACIFIC C | CONALLEN, MICHAEL J | | | $94,900.00 | 40901 | 423025 |
| 8 | 10/01/1983 | WD | Warranty Deed | ENRIDGE, NORMAN | ISLAND, PACIFIC C | | | $14,667.00 | 33054 | 416293 |
| 9 | 01/01/1900 | OTHER | Other - Misc. Documents | Unknown | ENRIDGE, NORMAN | | | $0.00 | 0 | 0 |
Payout Agreement
| No payout information available.. |