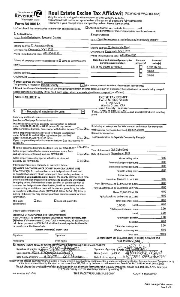
Property
Account |
| Property ID: | 532365 | Abbreviated Legal Description: | TRACT B - SUR V4P90 IN GL 4 BG MC SEC 7 & 18 ALG ML N4* W576.2' N6*E1750.4' N38*E 865.9' N44*E436.26' N45*W 346.99'TO HAGER TR AF# 117935 S44*W600'TO SLY CR DRIFTWOOD SH #1 N44*E700' TPB N44*E405.14' N78*W893 .24'TO ELN LEHMAN RD S0*E 230' S67*E633.22'TPB |
| Geographic ID: | R33107-390-1850 | Agent Code: | |
| Type: | Real | | |
| Tax Area: | 512 - APPRAISER-Stan/Cam Schl Dist, improved, greater than 1 acre | Land Use Code | 11 |
| Open Space: | N | DFL | N |
| Historic Property: | N | Remodel Property: | N |
| Multi-Family Redevelopment: | N | | |
| Township: | 31 | Section: | 07 |
| Range: | R3 |
Location |
| Address: | 493 LEHMAN DR CAMANO ISLAND, WA 98282 | Mapsco: | |
| Neighborhood: | Cycle 5 | Map ID: | 923 |
| Neighborhood CD: | 5 |
Owner |
| Name: | MCCLUSKEY, PATRICK A | Owner ID: | 298808 |
| Mailing Address: | 493 LEHMAN DR CAMANO ISLAND, WA 98282 | % Ownership: | 100.0000000000% |
| | | Exemptions: | |
Taxes and Assessment Details
Values
| (+) Improvement Homesite Value: | + | $0 | |
| (+) Improvement Non-Homesite Value: | + | $642,529 | |
| (+) Land Homesite Value: | + | $0 | |
| (+) Land Non-Homesite Value: | + | $410,000 | |
| (+) Curr Use (HS): | + | $0 | $0 |
| (+) Curr Use (NHS): | + | $0 | $0 |
| | | -------------------------- | |
| (=) Market Value: | = | $1,052,529 | |
| (–) Productivity Loss: | – | $0 | |
| | | -------------------------- | |
| (=) Subtotal: | = | $1,052,529 | |
| (+) Senior Appraised Value: | + | $0 | |
| (+) Non-Senior Appraised Value: | + | $1,052,529 | |
| | | -------------------------- | |
| (=) Total Appraised Value: | = | $1,052,529 | |
| (–) Senior Exemption Loss: | – | $0 | |
| (–) Exemption Loss: | – | $0 | |
| | | -------------------------- | |
| (=) Taxable Value: | = | $1,052,529 | |
Taxing Jurisdiction
| Owner: | MCCLUSKEY, PATRICK A | | |
| % Ownership: | 100.0000000000% | | |
| Total Value: | $1,052,529 | | |
| Tax Area: | 512 - APPRAISER-Stan/Cam Schl Dist, improved, greater than 1 acre |
| CF | Conservation Futures | 0.0316035091 | $1,052,529 | $1,052,529 | $33.26 | | |
| EMS1 | Fire & Rescue Dist #1 Camano GEN (EMS) | 0.3677864386 | $1,052,529 | $1,052,529 | $387.11 | | |
| FIRE1 | Fire & Rescue Dist #1 Camano GEN | 1.2502910536 | $1,052,529 | $1,052,529 | $1,315.97 | | |
| FIRE1BOND | Fire & Rescue Dist #1 Camano BOND | 0.1570001679 | $1,052,529 | $1,052,529 | $165.25 | | |
| CE | County Current Expense | 0.3708482477 | $1,052,529 | $1,052,529 | $390.33 | | |
| CR | County Roads | 0.4584763726 | $1,052,529 | $1,052,529 | $482.56 | | |
| LCIB | Library Sno-Isle BOND (Camano Island) | 0.0396325772 | $1,052,529 | $1,052,529 | $41.71 | | |
| LIB | Library Sno-Isle GEN | 0.3153421757 | $1,052,529 | $1,052,529 | $331.91 | | |
| SCH205_401 | School 205-401 Enrichment | 1.2698420524 | $1,052,529 | $1,052,529 | $1,336.55 | | |
| SCH205BOND | School 205-401 BOND | 0.9396497583 | $1,052,529 | $1,052,529 | $989.01 | | |
| ST | State School | 1.3035497053 | $1,052,529 | $1,052,529 | $1,372.02 | | |
| ST2 | State School Part 2 | 0.8169543533 | $1,052,529 | $1,052,529 | $859.87 | | |
| | Total Tax Rate: | 7.3209764117 | | | | | |
| | | | | Taxes w/Current Exemptions: | $7,705.55 | | |
| | | | | Taxes w/o Exemptions: | $7,705.55 | | |
Improvement / Building
| Improvement #1: | RESIDENTIAL | State Code: | Y | 3224.0 sqft | Value: | $642,529 |
| Bathrooms: | 3.5 | Bedrooms: | 3 | | Ceiling: | DRYWALL PAINTED | Exterior Wall/Cover: | CEMENT FIBER | | Floor Covering: | HARDWOOD/CARP 60-40 | Floor Structure: | WOOD W/SUBFLOOR | | Foundation: | CONCRETE | Heating: | FHA GAS | | Interior Finish: | DRYWALL PAINT | Plumbing Fixture Cnt: | 19 | | Roof Slope: | 10" IN 12" | Roof Structure/Cover: | CJ ASPHALT |
|
| | Type | Description | Class CD | Sub Class CD | Year Built | Area |
| | BAS | BASE/MAIN FLOOR | 4 | 0 | 2020 | 1073.0 |
| | UPS | UPPER STORY | 4 | 0 | 2020 | 1078.0 |
| | BIG | BUILT IN GARAGE | 4 | 0 | 2020 | 492.1 |
| | OWP | OPEN WOOD PORCH W/STEPS | 4 | 0 | 2020 | 240.0 |
| | DWN | DOWNSTAIRS LIVING AREA | 4 | 0 | 2020 | 1073.0 |
Sketch
Property Image
Land
| 1 | 32 | AC (03.01-09.99) | 5.0200 | 218671.20 | 0.00 | 0.00 | 1.00 | $410,000 | $0 |
Roll Value History
| 2026 | N/A | N/A | N/A | N/A | N/A |
| 2025 | $642,529 | $410,000 | $0 | $1,052,529 | $1,052,529 |
| 2024 | $589,897 | $390,000 | $0 | $979,897 | $979,897 |
| 2023 | $596,089 | $380,000 | $0 | $976,089 | $976,089 |
| 2022 | $549,582 | $350,000 | $0 | $899,582 | $899,582 |
| 2021 | $489,753 | $240,000 | $0 | $729,753 | $729,753 |
| 2020 | $8,000 | $110,000 | $0 | $118,000 | $118,000 |
| 2019 | $0 | $5,020 | $0 | $5,020 | $5,020 |
| 2018 | $0 | $5,020 | $0 | $5,020 | $5,020 |
| 2017 | $0 | $5,120 | $0 | $5,120 | $5,120 |
| 2016 | $0 | $5,120 | $0 | $5,120 | $5,120 |
| 2015 | $0 | $5,120 | $0 | $5,120 | $5,120 |
| 2014 | $0 | $5,120 | $0 | $5,120 | $5,120 |
| 2013 | $0 | $5,120 | $0 | $5,120 | $5,120 |
| 2012 | $0 | $5,120 | $0 | $5,120 | $5,120 |
| 2011 | $0 | $5,120 | $0 | $5,120 | $5,120 |
| 2010 | $0 | $5,120 | $0 | $5,120 | $5,120 |
| 2009 | $0 | $5,120 | $0 | $5,120 | $5,120 |
| 2008 | $0 | $5,120 | $0 | $5,120 | $5,120 |
| 2007 | $0 | $5,120 | $0 | $5,120 | $5,120 |
Deed and Sales History
| 1 | 04/02/2021 | WD | Warranty Deed | RELIABLE HOLDINGS, INC | MCCLUSKEY, PATRICK A | | | $965,000.00 | 47678 | 4515828 |
| 2 | 08/05/2019 | WD | Warranty Deed | REID, KAREN M | RELIABLE HOLDINGS, INC | | | $330,000.00 | 39869 | 4469420 |
|   | |
| 3 | 06/20/2019 | QCD | Quit Claim Deed | WRIGHT, KATHARINE J | REID, KAREN M | | | $0.00 | 39692 | 4468557 |
| 4 | 11/30/2017 | QCD | Quit Claim Deed | LEGGEE, KAREN M | WRIGHT, KATHARINE J | | | $0.00 | 32177 | 4435289 |
| 5 | 11/05/2013 | CPADC | Comm Prop Agmnt & Death Cert | LEGGEE, MICHAEL D | LEGGEE, KAREN M | | | | 82765 | 4302939 |
| 6 | 11/16/2006 | WD | Warranty Deed | GREENWAY, JEROME E | LEGGEE, MICHAEL D | | | $15,910.00 | 64941 | 4187520 |
| 7 | 05/01/1981 | REC | Real Estate Contract | SCHUFREIDER, STUART E | GREENWAY, JEROME E | | | $8,454.00 | 11674 | 383708 |
| 8 | 01/01/1900 | OTHER | Other - Misc. Documents | Unknown | SCHUFREIDER, STUART E | | | $0.00 | 0 | 0 |
Payout Agreement
| No payout information available.. |