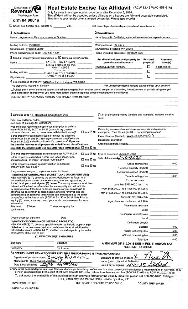
Property
Account |
| Property ID: | 532757 | Abbreviated Legal Description: | IN NE NE:BG NE CR NE NE S2* W521.43' TO N R/W HWY W440' TPB W207' N210.42' E207' S210.42' TPB FR 486 4740 |
| Geographic ID: | R13103-482-4920 | Agent Code: | |
| Type: | Real | | |
| Tax Area: | 310 - APPRAISER-Cpvl Schl Dist, outside Cpvl, improved & 1 acre or less | Land Use Code | 11 |
| Open Space: | N | DFL | N |
| Historic Property: | N | Remodel Property: | N |
| Multi-Family Redevelopment: | N | | |
| Township: | 31 | Section: | 03 |
| Range: | R1 |
Location |
| Address: | 20626 SR20 COUPEVILLE, WA 98239 | Mapsco: | |
| Neighborhood: | Cycle 2 | Map ID: | 28 |
| Neighborhood CD: | 2 |
Owner |
| Name: | LINDE, DENNIS A & CAROLYN J | Owner ID: | 81691 |
| Mailing Address: | 20626 STATE ROUTE 20 COUPEVILLE, WA 98239-4043 | % Ownership: | 100.0000000000% |
| | | Exemptions: | |
Taxes and Assessment Details
Values
| (+) Improvement Homesite Value: | + | $0 | |
| (+) Improvement Non-Homesite Value: | + | $390,867 | |
| (+) Land Homesite Value: | + | $0 | |
| (+) Land Non-Homesite Value: | + | $220,000 | |
| (+) Curr Use (HS): | + | $0 | $0 |
| (+) Curr Use (NHS): | + | $0 | $0 |
| | | -------------------------- | |
| (=) Market Value: | = | $610,867 | |
| (–) Productivity Loss: | – | $0 | |
| | | -------------------------- | |
| (=) Subtotal: | = | $610,867 | |
| (+) Senior Appraised Value: | + | $0 | |
| (+) Non-Senior Appraised Value: | + | $610,867 | |
| | | -------------------------- | |
| (=) Total Appraised Value: | = | $610,867 | |
| (–) Senior Exemption Loss: | – | $0 | |
| (–) Exemption Loss: | – | $0 | |
| | | -------------------------- | |
| (=) Taxable Value: | = | $610,867 | |
Taxing Jurisdiction
| Owner: | LINDE, DENNIS A & CAROLYN J | | |
| % Ownership: | 100.0000000000% | | |
| Total Value: | $610,867 | | |
| Tax Area: | 310 - APPRAISER-Cpvl Schl Dist, outside Cpvl, improved & 1 acre or less |
| CF | Conservation Futures | 0.0316035091 | $610,867 | $610,867 | $19.31 | | |
| CEM2 | Cemetery #2 | 0.0095056933 | $610,867 | $610,867 | $5.81 | | |
| FIRE5 | Fire & Rescue Dist #5 C Whidbey GEN | 1.2008080668 | $610,867 | $610,867 | $733.53 | | |
| FIRE5BOND | Fire & Rescue Dist #5 C Whidbey BOND | 0.1400090713 | $610,867 | $610,867 | $85.53 | | |
| HOBOND | Hospital BOND | 0.1910887512 | $610,867 | $610,867 | $116.73 | | |
| HOGEN | Hospital GEN | 0.3902502903 | $610,867 | $610,867 | $238.39 | | |
| CE | County Current Expense | 0.3708482477 | $610,867 | $610,867 | $226.54 | | |
| CR | County Roads | 0.4584763726 | $610,867 | $610,867 | $280.07 | | |
| ISLANDEMS | Hospital GEN (EMS) | 0.5000000000 | $610,867 | $610,867 | $305.43 | | |
| LIB | Library Sno-Isle GEN | 0.3153421757 | $610,867 | $610,867 | $192.63 | | |
| LIBCAP | Library Sno-Isle BOND (Cap Fac Imp Area) | 0.0543427938 | $610,867 | $610,867 | $33.20 | | |
| POCOUP | Port of Coupeville GEN | 0.1093371703 | $610,867 | $610,867 | $66.79 | | |
| POCOUPIDD | Port of Coupeville IDD | 0.3409740022 | $610,867 | $610,867 | $208.29 | | |
| COUPSDTECH | School 204 CP (TECH) | 0.7545480007 | $610,867 | $610,867 | $460.93 | | |
| SCH204MO | School 204 Enrichment | 0.6716186034 | $610,867 | $610,867 | $410.27 | | |
| ST | State School | 1.3035497053 | $610,867 | $610,867 | $796.30 | | |
| ST2 | State School Part 2 | 0.8169543533 | $610,867 | $610,867 | $499.05 | | |
| | Total Tax Rate: | 7.6592568070 | | | | | |
| | | | | Taxes w/Current Exemptions: | $4,678.80 | | |
| | | | | Taxes w/o Exemptions: | $4,678.80 | | |
Improvement / Building
| Improvement #1: | RESIDENTIAL | State Code: | Y | 2574.3 sqft | Value: | $390,867 |
| Bathrooms: | 2.5 | Bedrooms: | 2 | | Ceiling: | ACOUSTIC FURRED | Cooling: | HEAT PUMP/CONV/V | | Exterior Wall/Cover: | PLY/HARDBOARD T-111 | Floor Covering: | VINYL 100% | | Floor Structure: | WOOD W/SUBFLOOR | Foundation: | CONCRETE | | Interior Finish: | DRYWALL PAINT | Plumbing Fixture Cnt: | 12 | | Roof Slope: | 3" IN 12" | Roof Structure/Cover: | CJ ALUMINIUM HEAVY |
|
| | Type | Description | Class CD | Sub Class CD | Year Built | Area |
| | BAS | BASE/MAIN FLOOR | 3 | 0 | 1970 | 2574.3 |
| | AGR | ATTACHED GARAGE | 3 | 0 | 1970 | 520.0 |
| | OWP | OPEN WOOD PORCH W/STEPS | 3 | 0 | 1970 | 80.0 |
| | OWP | OPEN WOOD PORCH W/STEPS | 3 | 0 | 1970 | 785.5 |
| | OWC | OPEN WOOD PORCH W/STEPS/ROOF/C | 3 | 0 | 1970 | 240.0 |
| | ENP | ENCLOSED PORCH | 3 | 0 | 1970 | 231.0 |
| | OWP | OPEN WOOD PORCH W/STEPS | 3 | 0 | 1970 | 56.2 |
Sketch
Property Image
Land
| 1 | HS | HOMESITE | 0.9941 | 43302.00 | 0.00 | 0.00 | 1.00 | $220,000 | $0 |
Roll Value History
| 2026 | N/A | N/A | N/A | N/A | N/A |
| 2025 | $390,867 | $220,000 | $0 | $610,867 | $610,867 |
| 2024 | $385,532 | $210,000 | $0 | $595,532 | $595,532 |
| 2023 | $390,867 | $210,000 | $0 | $600,867 | $600,867 |
| 2022 | $358,768 | $200,000 | $0 | $558,768 | $558,768 |
| 2021 | $316,162 | $150,000 | $0 | $466,162 | $466,162 |
| 2020 | $309,056 | $140,000 | $0 | $449,056 | $449,056 |
| 2019 | $241,901 | $170,000 | $0 | $411,901 | $411,901 |
| 2018 | $218,044 | $160,000 | $0 | $378,044 | $378,044 |
| 2017 | $219,569 | $130,000 | $0 | $349,569 | $349,569 |
| 2016 | $222,618 | $115,000 | $0 | $337,618 | $337,618 |
| 2015 | $225,669 | $90,000 | $0 | $315,669 | $315,669 |
| 2014 | $228,719 | $85,000 | $0 | $313,719 | $313,719 |
| 2013 | $231,766 | $85,000 | $0 | $316,766 | $316,766 |
| 2012 | $235,896 | $63,750 | $0 | $299,646 | $299,646 |
| 2011 | $238,946 | $75,000 | $0 | $313,946 | $313,946 |
| 2010 | $233,800 | $75,000 | $0 | $308,800 | $308,800 |
| 2009 | $253,807 | $109,000 | $0 | $362,807 | $362,807 |
| 2008 | $257,130 | $109,000 | $0 | $366,130 | $366,130 |
| 2007 | $260,489 | $109,000 | $0 | $369,489 | $369,489 |
Deed and Sales History
| 1 | 10/01/1986 | QCD | Quit Claim Deed | LINDE, DENNIS A | LINDE, DENNIS A | | | $0.00 | 62856 | 86012940 |
| 2 | 10/01/1986 | QCD | Quit Claim Deed | LINDE, DENNIS A | LINDE, DENNIS A | | | $0.00 | 62857 | 86012941 |
| 3 | 06/01/1981 | CD | DNU - Correction Deed | LINDE, DENNIS A | LINDE, DENNIS A | | | $1.00 | 11829 | 384305 |
| 4 | 01/01/1900 | OTHER | Other - Misc. Documents | Unknown | LINDE, DENNIS A | | | $0.00 | 0 | 0 |
Payout Agreement
| No payout information available.. |