Property
Account |
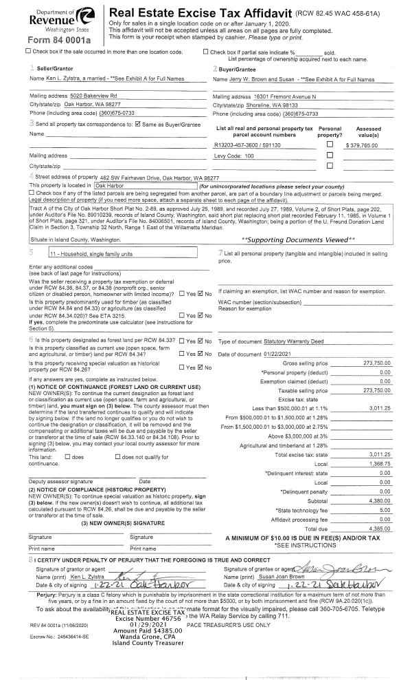
| Property ID: | 532935 | Abbreviated Legal Description: | 79 - IN GL 2: BG FRAC CR COM TO SEC 24 & 19 S ON ML 42*E275.8' S47*W164' S42*E 25' W47*S TO HINMAN RD (CO RD #32)FOLL RD SWLY TO 4/ SEC LN SEC 24 N TO 4/SEC CR BET SECS 24 & 13 E ON SLN TPB EX CO RDS ALSO EX: BG MC FRAC SEC 24 & FRAC SEC 19 N42*W ALG ML |
| Geographic ID: | R32924-479-2860 | Agent Code: | |
| Type: | Real | | |
| Tax Area: | 729 - APPRAISER-S Whid Schl Dist, Special District, vacant & 50 acres or less | Land Use Code | 99 |
| Open Space: | N | DFL | N |
| Historic Property: | N | Remodel Property: | N |
| Multi-Family Redevelopment: | N | | |
| Township: | 29 | Section: | 24 |
| Range: | R3 |
Location |
| Address: | CLINTON, WA 98236 | Mapsco: | |
| Neighborhood: | Cycle 4 | Map ID: | 810 |
| Neighborhood CD: | 4 |
Owner |
| Name: | WESTERFIELD, DUANE | Owner ID: | 182263 |
| Mailing Address: | CAROL WESTERFIELD 1720 EDGEMOOR LN EVERETT, WA 98203-1663 | % Ownership: | 100.0000000000% |
| | | Exemptions: | |
Taxes and Assessment Details
Values
| (+) Improvement Homesite Value: | + | $0 | |
| (+) Improvement Non-Homesite Value: | + | $0 | |
| (+) Land Homesite Value: | + | $0 | |
| (+) Land Non-Homesite Value: | + | $17,000 | |
| (+) Curr Use (HS): | + | $0 | $0 |
| (+) Curr Use (NHS): | + | $0 | $0 |
| | | -------------------------- | |
| (=) Market Value: | = | $17,000 | |
| (–) Productivity Loss: | – | $0 | |
| | | -------------------------- | |
| (=) Subtotal: | = | $17,000 | |
| (+) Senior Appraised Value: | + | $0 | |
| (+) Non-Senior Appraised Value: | + | $17,000 | |
| | | -------------------------- | |
| (=) Total Appraised Value: | = | $17,000 | |
| (–) Senior Exemption Loss: | – | $0 | |
| (–) Exemption Loss: | – | $0 | |
| | | -------------------------- | |
| (=) Taxable Value: | = | $17,000 | |
Taxing Jurisdiction
| Owner: | WESTERFIELD, DUANE | | |
| % Ownership: | 100.0000000000% | | |
| Total Value: | $17,000 | | |
| Tax Area: | 729 - APPRAISER-S Whid Schl Dist, Special District, vacant & 50 acres or less |
| CF | Conservation Futures | 0.0316035091 | $17,000 | $17,000 | $0.54 | | |
| HOBOND | Hospital BOND | 0.1910887512 | $17,000 | $17,000 | $3.25 | | |
| HOGEN | Hospital GEN | 0.3902502903 | $17,000 | $17,000 | $6.63 | | |
| CE | County Current Expense | 0.3708482477 | $17,000 | $17,000 | $6.30 | | |
| CR | County Roads | 0.4584763726 | $17,000 | $17,000 | $7.79 | | |
| ISLANDEMS | Hospital GEN (EMS) | 0.5000000000 | $17,000 | $17,000 | $8.50 | | |
| LIB | Library Sno-Isle GEN | 0.3153421757 | $17,000 | $17,000 | $5.36 | | |
| PORTWHID | Port of S Whidbey GEN | 0.1094540357 | $17,000 | $17,000 | $1.86 | | |
| SCH206BOND | School 206 BOND | 0.3161759235 | $17,000 | $17,000 | $5.37 | | |
| SCH206MO | School 206 Enrichment | 0.4547169547 | $17,000 | $17,000 | $7.73 | | |
| ST | State School | 1.3035497053 | $17,000 | $17,000 | $22.16 | | |
| ST2 | State School Part 2 | 0.8169543533 | $17,000 | $17,000 | $13.89 | | |
| SWHIDPRBD | P & R S Whidbey BOND | 0.0152817568 | $17,000 | $17,000 | $0.26 | | |
| SWHIDPRBD2 | P & R S Whidbey BOND2 | 0.0138911264 | $17,000 | $17,000 | $0.24 | | |
| SWHIDPRMT | P & R S Whidbey GEN | 0.2053334452 | $17,000 | $17,000 | $3.49 | | |
| | Total Tax Rate: | 5.4929666475 | | | | | |
| | | | | Taxes w/Current Exemptions: | $93.37 | | |
| | | | | Taxes w/o Exemptions: | $93.37 | | |
Improvement / Building
Sketch
| No sketches available for this property. |
Property Image
Land
| 1 | 32 | AC (03.01-09.99) | 3.2400 | 315374.40 | 0.00 | 0.00 | 1.00 | $17,000 | $0 |
Roll Value History
| 2026 | N/A | N/A | N/A | N/A | N/A |
| 2025 | $0 | $17,000 | $0 | $17,000 | $17,000 |
| 2024 | $0 | $17,000 | $0 | $17,000 | $17,000 |
| 2023 | $0 | $15,000 | $0 | $15,000 | $15,000 |
| 2022 | $0 | $15,000 | $0 | $15,000 | $15,000 |
| 2021 | $0 | $15,000 | $0 | $15,000 | $15,000 |
| 2020 | $0 | $15,000 | $0 | $15,000 | $15,000 |
| 2019 | $0 | $15,000 | $0 | $15,000 | $15,000 |
| 2018 | $0 | $100,000 | $0 | $100,000 | $100,000 |
| 2017 | $4,000 | $165,040 | $0 | $169,040 | $169,040 |
| 2016 | $4,000 | $100,040 | $0 | $104,040 | $104,040 |
| 2015 | $4,000 | $100,040 | $0 | $104,040 | $104,040 |
| 2014 | $4,000 | $100,040 | $0 | $104,040 | $104,040 |
| 2013 | $4,000 | $100,040 | $0 | $104,040 | $104,040 |
| 2012 | $4,000 | $110,200 | $0 | $114,200 | $114,200 |
| 2011 | $4,000 | $110,200 | $0 | $114,200 | $114,200 |
| 2010 | $4,000 | $110,200 | $0 | $114,200 | $114,200 |
| 2009 | $4,000 | $132,042 | $0 | $136,042 | $136,042 |
| 2008 | $4,000 | $150,042 | $0 | $154,042 | $154,042 |
| 2007 | $4,000 | $128,400 | $0 | $132,400 | $132,400 |
Deed and Sales History
| 1 | 09/26/2018 | WD | Warranty Deed | CHAMBERS, COLIN | WESTERFIELD, DUANE | | | $75,000.00 | 36113 | 4452610 |
| 2 | 03/17/2007 | QCD | Quit Claim Deed | CHAMBERS, COLIN | CHAMBERS, COLIN | | | $0.00 | 71196 | 4199260 |
| 3 | 03/22/2006 | 5 | DNU - Marriage License/Name Change | CHAMBERS, COLIN | CHAMBERS, COLIN | | | $0.00 | 61515 | 4166927 |
| 4 | 07/24/1998 | EZ | Easement | CHAMBERS, COLIN | CHAMBERS, COLIN | | | $0.00 | 82875 | 98015018 |
| 5 | 07/15/1998 | WD | Warranty Deed | CHAMBERS, COLIN & | CHAMBERS, COLIN | | | $24,000.00 | 82876 | 98015016 |
| 6 | 01/01/1989 | OTHER | Other - Misc. Documents | HASTINGS, R H | CHAMBERS, COLIN | | | $0.00 | 90346 | 89001209 |
| 7 | 01/01/1900 | OTHER | Other - Misc. Documents | Unknown | HASTINGS, R H | | | $0.00 | 0 | 0 |
| 8 | 01/01/1900 | OTHER | Other - Misc. Documents | CHAMBERS, COLIN | CHAMBERS, COLIN & | | | $0.00 | 82876 | 98015016 |
Payout Agreement
| No payout information available.. |