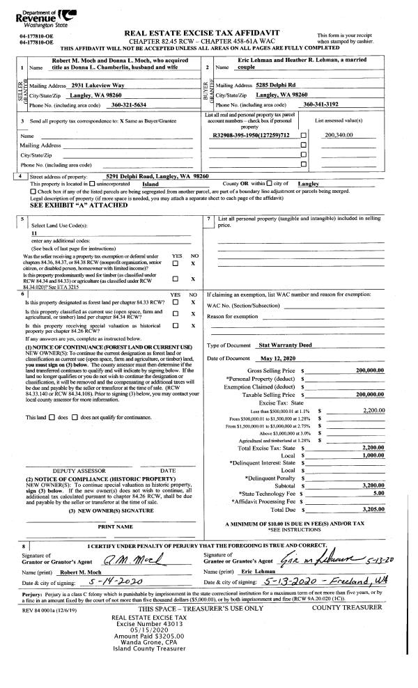
Property
Account |
| Property ID: | 533033 | Abbreviated Legal Description: | BG NECR OF S660' OF W660' OF N1002.84' OF NE SW S01*W 330' ALG ELN S88*E414.01' N01*E340.68' TO BDRY LN CC#2588 N88*W255.79' S01*W 10.67' N88*W158.22' TPB TGW & SUB EZ SEPTIC & DRAIN EZ I LOC TR 4 (222-2530) SUB WELL, TANK & WATER SYSTEM AF#84000960 FR |
| Geographic ID: | R22909-227-2110 | Agent Code: | |
| Type: | Real | | |
| Tax Area: | 712 - APPRAISER-S Whid Schl Dist, outside Langley, improved, greater than 1 acre | Land Use Code | 11 |
| Open Space: | N | DFL | N |
| Historic Property: | N | Remodel Property: | N |
| Multi-Family Redevelopment: | N | | |
| Township: | 29 | Section: | 09 |
| Range: | R2 |
Location |
| Address: | 985 SUMMER RD FREELAND, WA 98249 | Mapsco: | |
| Neighborhood: | Cycle 3 | Map ID: | 305 |
| Neighborhood CD: | 3 |
Owner |
| Name: | ROBERTS, CARY M | Owner ID: | 293701 |
| Mailing Address: | HOLLY LISA ROBERTS 985 SUMMER RD FREELAND, WA 98249 | % Ownership: | 100.0000000000% |
| | | Exemptions: | |
Taxes and Assessment Details
Values
| (+) Improvement Homesite Value: | + | $0 | |
| (+) Improvement Non-Homesite Value: | + | $472,681 | |
| (+) Land Homesite Value: | + | $0 | |
| (+) Land Non-Homesite Value: | + | $380,000 | |
| (+) Curr Use (HS): | + | $0 | $0 |
| (+) Curr Use (NHS): | + | $0 | $0 |
| | | -------------------------- | |
| (=) Market Value: | = | $852,681 | |
| (–) Productivity Loss: | – | $0 | |
| | | -------------------------- | |
| (=) Subtotal: | = | $852,681 | |
| (+) Senior Appraised Value: | + | $0 | |
| (+) Non-Senior Appraised Value: | + | $852,681 | |
| | | -------------------------- | |
| (=) Total Appraised Value: | = | $852,681 | |
| (–) Senior Exemption Loss: | – | $0 | |
| (–) Exemption Loss: | – | $0 | |
| | | -------------------------- | |
| (=) Taxable Value: | = | $852,681 | |
Taxing Jurisdiction
| Owner: | ROBERTS, CARY M | | |
| % Ownership: | 100.0000000000% | | |
| Total Value: | $852,681 | | |
| Tax Area: | 712 - APPRAISER-S Whid Schl Dist, outside Langley, improved, greater than 1 acre |
| CF | Conservation Futures | 0.0316035091 | $852,681 | $852,681 | $26.95 | | |
| FIRE3 | Fire & Rescue Dist #3 S Whidbey GEN | 1.2004855531 | $852,681 | $852,681 | $1,023.63 | | |
| HOBOND | Hospital BOND | 0.1910887512 | $852,681 | $852,681 | $162.94 | | |
| HOGEN | Hospital GEN | 0.3902502903 | $852,681 | $852,681 | $332.76 | | |
| CE | County Current Expense | 0.3708482477 | $852,681 | $852,681 | $316.22 | | |
| CR | County Roads | 0.4584763726 | $852,681 | $852,681 | $390.93 | | |
| ISLANDEMS | Hospital GEN (EMS) | 0.5000000000 | $852,681 | $852,681 | $426.34 | | |
| LIB | Library Sno-Isle GEN | 0.3153421757 | $852,681 | $852,681 | $268.89 | | |
| PORTWHID | Port of S Whidbey GEN | 0.1094540357 | $852,681 | $852,681 | $93.33 | | |
| SCH206BOND | School 206 BOND | 0.3161759235 | $852,681 | $852,681 | $269.60 | | |
| SCH206MO | School 206 Enrichment | 0.4547169547 | $852,681 | $852,681 | $387.73 | | |
| ST | State School | 1.3035497053 | $852,681 | $852,681 | $1,111.51 | | |
| ST2 | State School Part 2 | 0.8169543533 | $852,681 | $852,681 | $696.60 | | |
| SWHIDPRBD | P & R S Whidbey BOND | 0.0152817568 | $852,681 | $852,681 | $13.03 | | |
| SWHIDPRBD2 | P & R S Whidbey BOND2 | 0.0138911264 | $852,681 | $852,681 | $11.84 | | |
| SWHIDPRMT | P & R S Whidbey GEN | 0.2053334452 | $852,681 | $852,681 | $175.08 | | |
| | Total Tax Rate: | 6.6934522006 | | | | | |
| | | | | Taxes w/Current Exemptions: | $5,707.38 | | |
| | | | | Taxes w/o Exemptions: | $5,707.38 | | |
Improvement / Building
| Improvement #1: | RESIDENTIAL | State Code: | Y | 2542.6 sqft | Value: | $472,681 |
| Bathrooms: | 2.5 | Bedrooms: | 3 | | Ceiling: | DRYWALL PAINTED | Cooling: | HEAT PUMP/CONV/V | | Exterior Wall/Cover: | WOOD SIDING | Floor Covering: | HARDWOOD/CARP 80-20 | | Floor Structure: | WOOD W/SUBFLOOR | Foundation: | CONCRETE | | Interior Finish: | DRYWALL PAINT | Plumbing Fixture Cnt: | 12 | | Roof Slope: | 12" IN 12" | Roof Structure/Cover: | CJ ASPHALT |
|
| | Type | Description | Class CD | Sub Class CD | Year Built | Area |
| | BAS | BASE/MAIN FLOOR | 3 | 0 | 1986 | 1981.9 |
| | OP2 | OPEN PORCH W/STEPS | 3 | 0 | 1986 | 214.4 |
| | AGR | ATTACHED GARAGE | 3 | 0 | 1986 | 529.0 |
| | UPS | UPPER STORY | 3 | 0 | 1986 | 560.7 |
| | OWP | OPEN WOOD PORCH W/STEPS | 3 | 0 | 1986 | 202.2 |
| | OWP | OPEN WOOD PORCH W/STEPS | 3 | 0 | 1986 | 187.7 |
| | OWP | OPEN WOOD PORCH W/STEPS | 3 | 0 | 1986 | 198.6 |
| | OWP | OPEN WOOD PORCH W/STEPS | 3 | 0 | 1986 | 40.0 |
| | UTY | STORAGE/UTILITY | 3 | 0 | 1986 | 720.0 |
| | ENP | ENCLOSED PORCH | 3 | 0 | 1986 | 720.0 |
Sketch
Property Image
Land
| 1 | 18 | AC (02.01-03.00) | 0.0000 | 0.00 | 0.00 | 0.00 | 1.00 | $380,000 | $0 |
Roll Value History
| 2026 | N/A | N/A | N/A | N/A | N/A |
| 2025 | $472,681 | $380,000 | $0 | $852,681 | $852,681 |
| 2024 | $478,801 | $360,000 | $0 | $838,801 | $838,801 |
| 2023 | $484,920 | $330,000 | $0 | $814,920 | $814,920 |
| 2022 | $444,650 | $280,000 | $0 | $724,650 | $724,650 |
| 2021 | $391,462 | $250,000 | $0 | $641,462 | $641,462 |
| 2020 | $382,377 | $200,000 | $0 | $582,377 | $582,377 |
| 2019 | $272,797 | $260,000 | $0 | $532,797 | $532,797 |
| 2018 | $273,543 | $250,000 | $0 | $523,543 | $523,543 |
| 2017 | $274,928 | $250,000 | $0 | $524,928 | $524,928 |
| 2016 | $277,916 | $250,000 | $0 | $527,916 | $527,916 |
| 2015 | $280,903 | $200,000 | $0 | $480,903 | $480,903 |
| 2014 | $283,889 | $200,000 | $0 | $483,889 | $483,889 |
| 2013 | $274,092 | $150,000 | $0 | $424,092 | $424,092 |
| 2012 | $277,148 | $161,500 | $0 | $438,648 | $438,648 |
| 2011 | $280,202 | $190,000 | $0 | $470,202 | $470,202 |
| 2010 | $288,797 | $190,000 | $0 | $478,797 | $478,797 |
| 2009 | $301,213 | $225,000 | $0 | $526,213 | $526,213 |
| 2008 | $302,059 | $280,000 | $0 | $582,059 | $582,059 |
| 2007 | $303,903 | $255,000 | $0 | $558,903 | $558,903 |
Deed and Sales History
| 1 | 03/09/2020 | QCD | Quit Claim Deed | ROBERTS, HOLLY LISA | ROBERTS, CARY M | | | $0.00 | 42329 | 4482669 |
| 2 | 03/09/2020 | PRD | Personal Representatives Deed | CONGDON, WALTER R | ROBERTS, HOLLY LISA | | | $0.00 | 42328 | 4482668 |
| 3 | 08/27/2014 | TRUSTEED | Trustee's Deed | CONGDON, WALTER R | CONGDON, WALTER R | | | $0.00 | 16634 | 4364804 |
| 4 | 04/01/1995 | QCD | Quit Claim Deed | CONGDON, WALTER R | CONGDON, WALTER R | | | $0.00 | 51203 | 95005661 |
| 5 | 10/01/1984 | OTHER | Other - Misc. Documents | SUMMER, CHARLES E | SUMMER, CHARLES E | | | $0.00 | 60878 | 84000798 |
| 6 | 10/01/1984 | WD | Warranty Deed | SUMMER, CHARLES E | CONGDON, WALTER R | | | $43,000.00 | 43212 | 84005173 |
| 7 | 07/01/1984 | EZ | Easement | CONGDON, WALTER R | CONGDON, WALTER R | | | $0.00 | 60964 | 84000960 |
| 8 | 01/01/1900 | OTHER | Other - Misc. Documents | Unknown | SUMMER, CHARLES E | | | $0.00 | 0 | 0 |
Payout Agreement
| No payout information available.. |