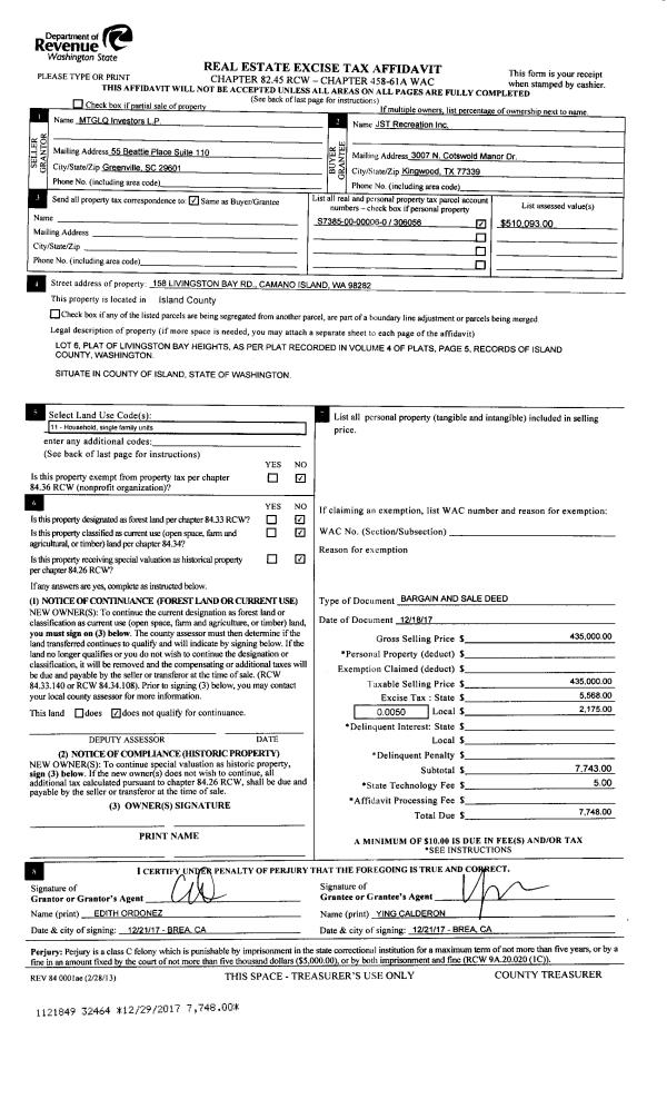
Property
Account |
| Property ID: | 533792 | Abbreviated Legal Description: | IN W/2 SE/4: BG SW CR SW SE S89*E280'TPB N330'S89*E155' N1154.01'TO SLN WATERLOO AC #2 SELY ALG SD PLAT TO ELN SWSE S TO SECR W TO TPB TGW S30' SESW & S30'OF W130' SW SE TGW & SUB EZ FR 066 330 |
| Geographic ID: | R13209-061-3520 | Agent Code: | |
| Type: | Real | | |
| Tax Area: | 112 - APPRAISER-OH Schl Dist, outside OH, improved, greater than 1 acre | Land Use Code | 83 |
| Open Space: | Y | DFL | N |
| Historic Property: | N | Remodel Property: | N |
| Multi-Family Redevelopment: | N | | |
| Township: | 32 | Section: | 09 |
| Range: | R1 |
Location |
| Address: | 1376 MISTY LN OAK HARBOR, WA 98277 | Mapsco: | |
| Neighborhood: | Cycle 1 | Map ID: | 113 |
| Neighborhood CD: | 1 |
Owner |
| Name: | DUGIN, ERWIN A | Owner ID: | 41954 |
| Mailing Address: | 1376 MISTY LN OAK HARBOR, WA 98277-8102 | % Ownership: | 100.0000000000% |
| | | Exemptions: | |
Taxes and Assessment Details
Values
| (+) Improvement Homesite Value: | + | $0 | |
| (+) Improvement Non-Homesite Value: | + | $18,179 | |
| (+) Land Homesite Value: | + | $0 | |
| (+) Land Non-Homesite Value: | + | $220,000 | |
| (+) Curr Use (HS): | + | $0 | $0 |
| (+) Curr Use (NHS): | + | $170,000 | $7,045 |
| | | -------------------------- | |
| (=) Market Value: | = | $408,179 | |
| (–) Productivity Loss: | – | $162,955 | |
| | | -------------------------- | |
| (=) Subtotal: | = | $245,224 | |
| (+) Senior Appraised Value: | + | $0 | |
| (+) Non-Senior Appraised Value: | + | $245,224 | |
| | | -------------------------- | |
| (=) Total Appraised Value: | = | $245,224 | |
| (–) Senior Exemption Loss: | – | $0 | |
| (–) Exemption Loss: | – | $0 | |
| | | -------------------------- | |
| (=) Taxable Value: | = | $245,224 | |
Taxing Jurisdiction
| Owner: | DUGIN, ERWIN A | | |
| % Ownership: | 100.0000000000% | | |
| Total Value: | $408,179 | | |
| Tax Area: | 112 - APPRAISER-OH Schl Dist, outside OH, improved, greater than 1 acre |
| CF | Conservation Futures | 0.0316035091 | $245,224 | $245,224 | $7.75 | | |
| CEM1 | Cemetery #1 | 0.0040320932 | $245,224 | $245,224 | $0.99 | | |
| FIRE2 | Fire & Rescue Dist #2 N Whidbey GEN | 0.5475949600 | $245,224 | $245,224 | $134.28 | | |
| HOBOND | Hospital BOND | 0.1910887512 | $245,224 | $245,224 | $46.86 | | |
| HOGEN | Hospital GEN | 0.3902502903 | $245,224 | $245,224 | $95.70 | | |
| CE | County Current Expense | 0.3708482477 | $245,224 | $245,224 | $90.94 | | |
| CR | County Roads | 0.4584763726 | $245,224 | $245,224 | $112.43 | | |
| ISLANDEMS | Hospital GEN (EMS) | 0.5000000000 | $245,224 | $245,224 | $122.61 | | |
| LIB | Library Sno-Isle GEN | 0.3153421757 | $245,224 | $245,224 | $77.33 | | |
| NWHIDPRMT | P & R N Whidbey GEN | 0.2004466701 | $245,224 | $245,224 | $49.15 | | |
| SCH201MO | School 201 Enrichment | 1.8559231640 | $245,224 | $245,224 | $455.12 | | |
| ST | State School | 1.3035497053 | $245,224 | $245,224 | $319.66 | | |
| ST2 | State School Part 2 | 0.8169543533 | $245,224 | $245,224 | $200.34 | | |
| | Total Tax Rate: | 6.9861102925 | | | | | |
| | | | | Taxes w/Current Exemptions: | $1,713.16 | | |
| | | | | Taxes w/o Exemptions: | $1,713.16 | | |
Improvement / Building
| Improvement #1: | MANUFACTURED HOME | State Code: | Y | 1152.0 sqft | Value: | $18,179 |
| Bathrooms: | 0 | Bedrooms: | 0 | | Ceiling: | PLASTER PAINTED | Cooling: | EVAP NO DUCT | | Exterior Wall/Cover: | VINYL | Floor Covering: | CARPET 100% | | Floor Structure: | SLAB ON GRADE | Foundation: | SLAB | | Heating: | FHA ELECTRIC | Interior Finish: | PLASTER | | Plumbing Fixture Cnt: | 1 | Roof Slope: | FLAT | | Roof Structure/Cover: | CJ ALUMINIUM HEAVY |   |   |
|
| | Type | Description | Class CD | Sub Class CD | Year Built | Area |
| | BAS | BASE/MAIN FLOOR | 3 | 0 | 1978 | 1152.0 |
| | UTY | STORAGE/UTILITY | 3 | 0 | 1978 | 2400.0 |
Sketch
Property Image
Land
| 1 | 83 | OPEN AGRICULTURE | 26.8900 | 1171328.40 | 0.00 | 0.00 | 1.00 | $170,000 | $7,045 |
| 2 | HS | HOMESITE | 1.0000 | 43560.00 | 0.00 | 0.00 | 1.00 | $220,000 | $0 |
Roll Value History
| 2026 | N/A | N/A | N/A | N/A | N/A |
| 2025 | $18,179 | $390,000 | $7,045 | $245,224 | $245,224 |
| 2024 | $18,179 | $350,000 | $7,045 | $225,224 | $225,224 |
| 2023 | $18,179 | $330,000 | $7,045 | $37,056 | $37,056 |
| 2022 | $18,119 | $310,000 | $7,045 | $35,853 | $35,853 |
| 2021 | $17,394 | $255,000 | $7,045 | $33,266 | $33,266 |
| 2020 | $17,549 | $210,000 | $7,045 | $31,863 | $31,863 |
| 2019 | $15,521 | $280,000 | $7,045 | $32,258 | $32,258 |
| 2018 | $15,948 | $220,000 | $7,045 | $30,881 | $30,881 |
| 2017 | $72,293 | $250,000 | $7,045 | $88,302 | $88,302 |
| 2016 | $72,902 | $250,000 | $7,315 | $80,217 | $80,217 |
| 2015 | $74,122 | $250,000 | $7,315 | $81,437 | $81,437 |
| 2014 | $75,341 | $240,000 | $7,315 | $82,656 | $82,656 |
| 2013 | $77,171 | $218,100 | $7,315 | $84,486 | $84,486 |
| 2012 | $78,390 | $218,100 | $7,315 | $85,705 | $85,705 |
| 2011 | $88,304 | $256,588 | $7,682 | $95,986 | $95,986 |
| 2010 | $89,267 | $256,588 | $7,682 | $96,949 | $96,949 |
| 2009 | $27,717 | $95,451 | $7,682 | $115,486 | $115,486 |
| 2008 | $32,011 | $94,232 | $7,682 | $118,561 | $118,561 |
| 2007 | $32,808 | $96,384 | $7,682 | $121,510 | $121,510 |
Deed and Sales History
| 1 | 01/10/2014 | EZ | Easement | DUGIN, ERWIN A | DUGIN, ERWIN A | | | $0.00 | 23127 | 4393977 |
| 2 | 01/14/2014 | EZ | Easement | DUGIN, ERWIN A | DUGIN, ERWIN A | | | $0.00 | 14840 | 4357646 |
| 3 | 11/01/1983 | OTHER | Other - Misc. Documents | DUGIN, ERWIN A | DUGIN, ERWIN A | | | $0.00 | 33442 | 0 |
| 4 | 08/01/1983 | OTHER | Other - Misc. Documents | DE, VRIES, P | DUGIN, ARWIN A | | | $15,000.00 | 32364 | 0 |
| 5 | 08/01/1983 | WD | Warranty Deed | DUGIN, ARWIN A | DUGIN, ERWIN A | | | $0.00 | 32365 | 413865 |
| 6 | 01/01/1900 | OTHER | Other - Misc. Documents | Unknown | DUGIN, ARWIN A | | | $25,347.00 | 0 | 0 |
| 7 | 01/01/1900 | OTHER | Other - Misc. Documents | DUGIN, ARWIN A | DE, VRIES, P | | | $0.00 | 0 | 0 |
Payout Agreement
| No payout information available.. |