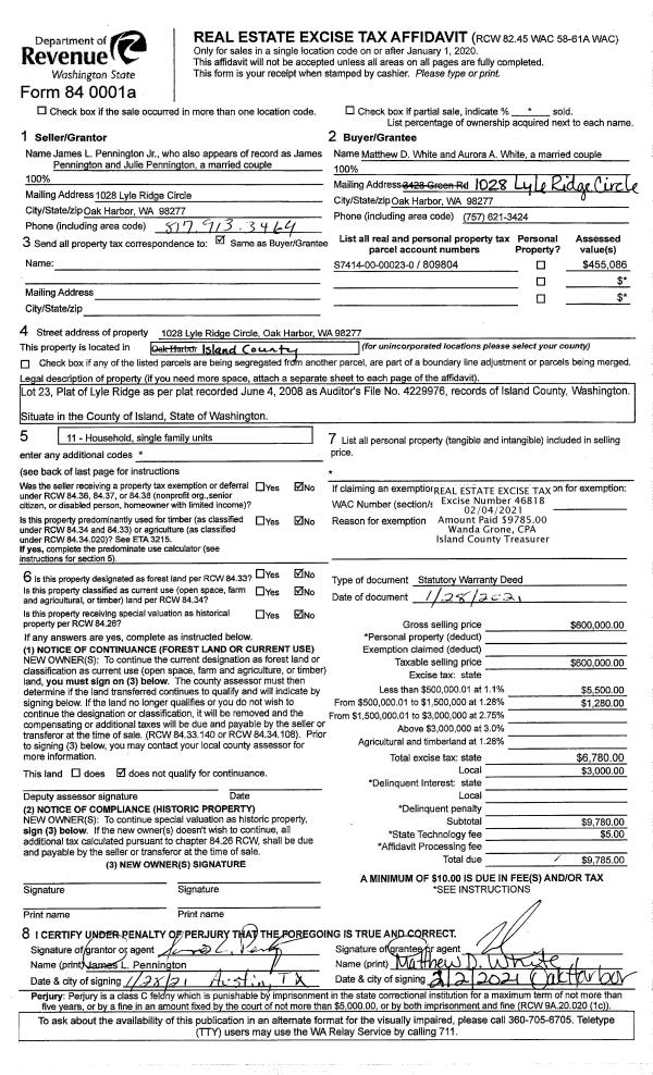
Property
Account |
| Property ID: | 535503 | Abbreviated Legal Description: | SE NE SE FR 200-4580 |
| Geographic ID: | R22904-167-4900 | Agent Code: | |
| Type: | Real | | |
| Tax Area: | 719 - APPRAISER-S Whid Schl Dist, outside Langley, vacant & 50 acres or less | Land Use Code | 91 |
| Open Space: | N | DFL | N |
| Historic Property: | N | Remodel Property: | N |
| Multi-Family Redevelopment: | N | | |
| Township: | 29 | Section: | 04 |
| Range: | R2 |
Location |
| Address: | 1184 RED FOX LN FREELAND, WA 98249 | Mapsco: | |
| Neighborhood: | Cycle 3 | Map ID: | 292 |
| Neighborhood CD: | 3 |
Owner |
| Name: | MILHOLLAND II, DANIEL ASA | Owner ID: | 317028 |
| Mailing Address: | 1184 REDFOX LN FREELAND, WA 98249 | % Ownership: | 100.0000000000% |
| | | Exemptions: | |
Taxes and Assessment Details
Values
| (+) Improvement Homesite Value: | + | $0 | |
| (+) Improvement Non-Homesite Value: | + | $0 | |
| (+) Land Homesite Value: | + | $0 | |
| (+) Land Non-Homesite Value: | + | $300,000 | |
| (+) Curr Use (HS): | + | $0 | $0 |
| (+) Curr Use (NHS): | + | $0 | $0 |
| | | -------------------------- | |
| (=) Market Value: | = | $300,000 | |
| (–) Productivity Loss: | – | $0 | |
| | | -------------------------- | |
| (=) Subtotal: | = | $300,000 | |
| (+) Senior Appraised Value: | + | $0 | |
| (+) Non-Senior Appraised Value: | + | $300,000 | |
| | | -------------------------- | |
| (=) Total Appraised Value: | = | $300,000 | |
| (–) Senior Exemption Loss: | – | $0 | |
| (–) Exemption Loss: | – | $0 | |
| | | -------------------------- | |
| (=) Taxable Value: | = | $300,000 | |
Taxing Jurisdiction
| Owner: | MILHOLLAND II, DANIEL ASA | | |
| % Ownership: | 100.0000000000% | | |
| Total Value: | $300,000 | | |
| Tax Area: | 719 - APPRAISER-S Whid Schl Dist, outside Langley, vacant & 50 acres or less |
| CF | Conservation Futures | 0.0316035091 | $300,000 | $300,000 | $9.48 | | |
| HOBOND | Hospital BOND | 0.1910887512 | $300,000 | $300,000 | $57.33 | | |
| HOGEN | Hospital GEN | 0.3902502903 | $300,000 | $300,000 | $117.08 | | |
| CE | County Current Expense | 0.3708482477 | $300,000 | $300,000 | $111.25 | | |
| CR | County Roads | 0.4584763726 | $300,000 | $300,000 | $137.54 | | |
| ISLANDEMS | Hospital GEN (EMS) | 0.5000000000 | $300,000 | $300,000 | $150.00 | | |
| LIB | Library Sno-Isle GEN | 0.3153421757 | $300,000 | $300,000 | $94.60 | | |
| PORTWHID | Port of S Whidbey GEN | 0.1094540357 | $300,000 | $300,000 | $32.84 | | |
| SCH206BOND | School 206 BOND | 0.3161759235 | $300,000 | $300,000 | $94.85 | | |
| SCH206MO | School 206 Enrichment | 0.4547169547 | $300,000 | $300,000 | $136.42 | | |
| ST | State School | 1.3035497053 | $300,000 | $300,000 | $391.06 | | |
| ST2 | State School Part 2 | 0.8169543533 | $300,000 | $300,000 | $245.09 | | |
| SWHIDPRBD | P & R S Whidbey BOND | 0.0152817568 | $300,000 | $300,000 | $4.58 | | |
| SWHIDPRBD2 | P & R S Whidbey BOND2 | 0.0138911264 | $300,000 | $300,000 | $4.17 | | |
| SWHIDPRMT | P & R S Whidbey GEN | 0.2053334452 | $300,000 | $300,000 | $61.60 | | |
| | Total Tax Rate: | 5.4929666475 | | | | | |
| | | | | Taxes w/Current Exemptions: | $1,647.89 | | |
| | | | | Taxes w/o Exemptions: | $1,647.89 | | |
Improvement / Building
Sketch
| No sketches available for this property. |
Property Image
Land
| 1 | 35 | AC (10.00-30.99) | 0.0000 | 0.00 | 0.00 | 0.00 | 1.00 | $300,000 | $0 |
Roll Value History
| 2026 | N/A | N/A | N/A | N/A | N/A |
| 2025 | $0 | $300,000 | $0 | $300,000 | $300,000 |
| 2024 | $0 | $290,000 | $0 | $290,000 | $290,000 |
| 2023 | $0 | $250,000 | $0 | $250,000 | $250,000 |
| 2022 | $0 | $190,000 | $0 | $190,000 | $190,000 |
| 2021 | $0 | $190,000 | $0 | $190,000 | $190,000 |
| 2020 | $0 | $160,000 | $0 | $160,000 | $160,000 |
| 2019 | $0 | $160,000 | $0 | $160,000 | $160,000 |
| 2018 | $0 | $140,000 | $0 | $140,000 | $140,000 |
| 2017 | $0 | $140,000 | $0 | $140,000 | $140,000 |
| 2016 | $0 | $140,000 | $0 | $140,000 | $140,000 |
| 2015 | $0 | $150,000 | $0 | $150,000 | $150,000 |
| 2014 | $0 | $150,000 | $0 | $150,000 | $150,000 |
| 2013 | $0 | $150,000 | $0 | $150,000 | $150,000 |
| 2012 | $0 | $150,000 | $0 | $150,000 | $150,000 |
| 2011 | $0 | $150,000 | $0 | $150,000 | $150,000 |
| 2010 | $0 | $150,000 | $0 | $150,000 | $150,000 |
| 2009 | $0 | $100,000 | $0 | $100,000 | $100,000 |
| 2008 | $0 | $100,000 | $0 | $100,000 | $100,000 |
| 2007 | $0 | $100,000 | $0 | $100,000 | $100,000 |
Deed and Sales History
| 1 | 03/31/2025 | QCD | Quit Claim Deed | SCHON, ELISE | MILHOLLAND II, DANIEL ASA | | | $0.00 | 63849 | 4587180 |
| 2 | 10/17/2020 | WD | Warranty Deed | SIKMA, JACK | SCHON, ELISE | | | $109,500.00 | 45424 | 4500662 |
| 3 | 04/12/2007 | QCD | Quit Claim Deed | WHIDBEY, ENTERPRISE L | SIKMA, JACK | | | $0.00 | 71254 | 4199752 |
| 4 | 12/01/1995 | WD | Warranty Deed | SIKMA, ENTERPRISES I | SIKMA, ENTERPRISES I | | | $21,034.00 | 54313 | 95019935 |
| 5 | 12/01/1995 | WD | Warranty Deed | SIKMA, ENTERPRISES I | WHIDBEY, ENTERPRISE L | | | $0.00 | 54315 | 95019936 |
| 6 | 12/01/1995 | WD | Warranty Deed | WHIDBEY, ENTERPRISE L | WHIDBEY, ENTERPRISE L | | | $0.00 | 54316 | 95019937 |
| 7 | 12/01/1993 | QCD | Quit Claim Deed | GOLF, NORTHWEST I | SIKMA, ENTERPRISES I | | | $34,800.00 | 34909 | 93025646 |
| 8 | 03/01/1990 | WD | Warranty Deed | WARE, TED | GOLF, NORTHWEST I | | | $35,000.00 | 1468 | 90004760 |
| 9 | 11/01/1982 | QCD | Quit Claim Deed | WARE, G P | WARE, TED | | | $0.00 | 22629 | 402311 |
| 10 | 10/01/1982 | WD | Warranty Deed | DUFF, KARL M | WARE, G P | | | $0.00 | 22504 | 401816 |
| 11 | 06/01/1982 | QCD | Quit Claim Deed | DUFF, KARL M | DUFF, KARL M | | | $0.00 | 21387 | 397268 |
| 12 | 02/01/1982 | QCD | Quit Claim Deed | WARE, TED & | DUFF, KARL M | | | $0.00 | 21108 | 396169 |
| 13 | 06/01/1981 | QCD | Quit Claim Deed | WARE, TED & | WARE, TED & | | | $0.00 | 12632 | 387154 |
| 14 | 05/01/1981 | PACD | Purchaser's Assignment | Unknown | WARE, TED & | | | $0.00 | 11705 | 383827 |
Payout Agreement
| No payout information available.. |