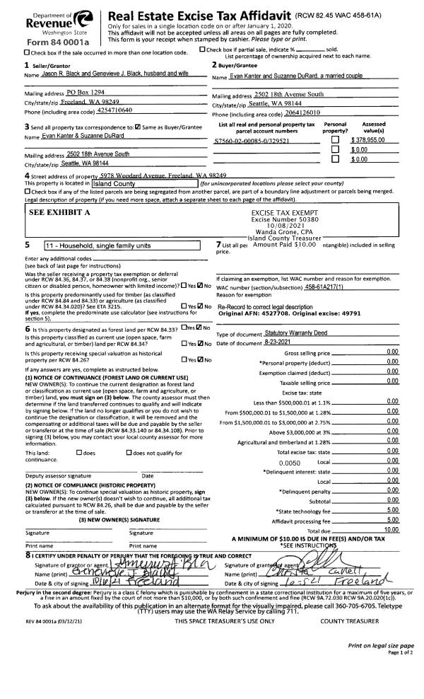
Property
Account |
| Property ID: | 536209 | Abbreviated Legal Description: | SE SE EX RD & EX FOLL DESC: BG SECR SESE N250' S87*W551.78' N201.49'TPB N822.90' S86*W423.35' S41*W 96.86' S18*W548.83' S71*E5' S18*W238.42' N87*E714.12' TPB FR 066 2000 EX PT LY W OF SMUGGLERS COVE RD |
| Geographic ID: | R23007-050-2360 | Agent Code: | |
| Type: | Real | | |
| Tax Area: | 319 - APPRAISER-Cpvl Schl Dist, outside Cpvl, vacant & 50 acres or less | Land Use Code | 91 |
| Open Space: | N | DFL | N |
| Historic Property: | N | Remodel Property: | N |
| Multi-Family Redevelopment: | N | | |
| Township: | 30 | Section: | 07 |
| Range: | R2 |
Location |
| Address: | 3173 SMUGGLERS COVE RD GREENBANK, WA 98253 | Mapsco: | |
| Neighborhood: | Cycle 3 | Map ID: | 361 |
| Neighborhood CD: | 3 |
Owner |
| Name: | LEONARD, MARK | Owner ID: | 298668 |
| Mailing Address: | PO BOX 1133 FREELAND, WA 98249 | % Ownership: | 100.0000000000% |
| | | Exemptions: | |
Taxes and Assessment Details
Values
| (+) Improvement Homesite Value: | + | $0 | |
| (+) Improvement Non-Homesite Value: | + | $0 | |
| (+) Land Homesite Value: | + | $0 | |
| (+) Land Non-Homesite Value: | + | $370,000 | |
| (+) Curr Use (HS): | + | $0 | $0 |
| (+) Curr Use (NHS): | + | $0 | $0 |
| | | -------------------------- | |
| (=) Market Value: | = | $370,000 | |
| (–) Productivity Loss: | – | $0 | |
| | | -------------------------- | |
| (=) Subtotal: | = | $370,000 | |
| (+) Senior Appraised Value: | + | $0 | |
| (+) Non-Senior Appraised Value: | + | $370,000 | |
| | | -------------------------- | |
| (=) Total Appraised Value: | = | $370,000 | |
| (–) Senior Exemption Loss: | – | $0 | |
| (–) Exemption Loss: | – | $0 | |
| | | -------------------------- | |
| (=) Taxable Value: | = | $370,000 | |
Taxing Jurisdiction
| Owner: | LEONARD, MARK | | |
| % Ownership: | 100.0000000000% | | |
| Total Value: | $370,000 | | |
| Tax Area: | 319 - APPRAISER-Cpvl Schl Dist, outside Cpvl, vacant & 50 acres or less |
| CF | Conservation Futures | 0.0316035091 | $370,000 | $370,000 | $11.69 | | |
| CEM2 | Cemetery #2 | 0.0095056933 | $370,000 | $370,000 | $3.52 | | |
| HOBOND | Hospital BOND | 0.1910887512 | $370,000 | $370,000 | $70.70 | | |
| HOGEN | Hospital GEN | 0.3902502903 | $370,000 | $370,000 | $144.39 | | |
| CE | County Current Expense | 0.3708482477 | $370,000 | $370,000 | $137.21 | | |
| CR | County Roads | 0.4584763726 | $370,000 | $370,000 | $169.64 | | |
| ISLANDEMS | Hospital GEN (EMS) | 0.5000000000 | $370,000 | $370,000 | $185.00 | | |
| LIB | Library Sno-Isle GEN | 0.3153421757 | $370,000 | $370,000 | $116.68 | | |
| LIBCAP | Library Sno-Isle BOND (Cap Fac Imp Area) | 0.0543427938 | $370,000 | $370,000 | $20.11 | | |
| POCOUP | Port of Coupeville GEN | 0.1093371703 | $370,000 | $370,000 | $40.45 | | |
| POCOUPIDD | Port of Coupeville IDD | 0.3409740022 | $370,000 | $370,000 | $126.16 | | |
| COUPSDTECH | School 204 CP (TECH) | 0.7545480007 | $370,000 | $370,000 | $279.18 | | |
| SCH204MO | School 204 Enrichment | 0.6716186034 | $370,000 | $370,000 | $248.50 | | |
| ST | State School | 1.3035497053 | $370,000 | $370,000 | $482.31 | | |
| ST2 | State School Part 2 | 0.8169543533 | $370,000 | $370,000 | $302.27 | | |
| | Total Tax Rate: | 6.3184396689 | | | | | |
| | | | | Taxes w/Current Exemptions: | $2,337.81 | | |
| | | | | Taxes w/o Exemptions: | $2,337.81 | | |
Improvement / Building
Sketch
| No sketches available for this property. |
Property Image
Land
| 1 | 35 | AC (10.00-30.99) | 24.1300 | 1051102.80 | 0.00 | 0.00 | 1.00 | $370,000 | $0 |
Roll Value History
| 2026 | N/A | N/A | N/A | N/A | N/A |
| 2025 | $0 | $370,000 | $0 | $370,000 | $370,000 |
| 2024 | $0 | $340,000 | $0 | $340,000 | $340,000 |
| 2023 | $0 | $300,000 | $0 | $300,000 | $300,000 |
| 2022 | $0 | $250,000 | $0 | $250,000 | $250,000 |
| 2021 | $0 | $250,000 | $0 | $250,000 | $250,000 |
| 2020 | $0 | $210,000 | $0 | $210,000 | $210,000 |
| 2019 | $0 | $210,000 | $0 | $210,000 | $210,000 |
| 2018 | $0 | $200,000 | $0 | $200,000 | $200,000 |
| 2017 | $0 | $200,000 | $0 | $200,000 | $200,000 |
| 2016 | $0 | $235,000 | $0 | $235,000 | $235,000 |
| 2015 | $0 | $235,000 | $0 | $235,000 | $235,000 |
| 2014 | $0 | $266,637 | $0 | $266,637 | $266,637 |
| 2013 | $0 | $266,637 | $0 | $266,637 | $266,637 |
| 2012 | $0 | $266,637 | $0 | $266,637 | $266,637 |
| 2011 | $0 | $313,690 | $2,437 | $2,437 | $2,437 |
| 2010 | $0 | $313,690 | $2,437 | $2,437 | $2,437 |
| 2009 | $0 | $482,600 | $2,437 | $2,437 | $2,437 |
| 2008 | $0 | $324,990 | $2,437 | $2,437 | $2,437 |
| 2007 | $0 | $265,430 | $2,437 | $2,437 | $2,437 |
Deed and Sales History
| 1 | 03/17/2021 | WD | Warranty Deed | SPECTOR, MICHELE | LEONARD, MARK | | | $400,000.00 | 47513 | 4514833 |
| 2 | 03/29/2021 | QCD | Quit Claim Deed | GERRITSON, STEPHEN | SPECTOR, MICHELE | | | $0.00 | 47512 | 4514832 |
| 3 | 05/04/2006 | WD | Warranty Deed | ZIMMERMANN, WOLFGANG G | GERRITSON, STEPHEN L | | | $304,805.00 | 62077 | 4170164 |
| 4 | 04/01/1984 | WD | Warranty Deed | SHOEMAKER, ROBERT R | ZIMMERMANN, WOLFGANG G | | | $43,000.00 | 40997 | 423295 |
| 5 | 01/01/1900 | OTHER | Other - Misc. Documents | Unknown | SHOEMAKER, ROBERT R | | | $0.00 | 0 | 0 |
Payout Agreement
| No payout information available.. |