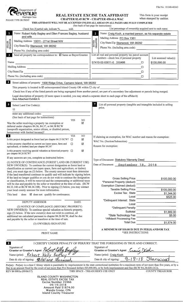
Property
Account |
| Property ID: | 536423 | Abbreviated Legal Description: | NW NW SE EX N435' OF E330' EX N30' FOR RD SUB EZ FR 178-2960 (TR A SP 79-326 AF#387951) |
| Geographic ID: | R03225-227-2790 | Agent Code: | |
| Type: | Real | | |
| Tax Area: | 332 - APPRAISER-Cpvl Schl Dist, Special Dist, improved, greater than 1 acre | Land Use Code | 11 |
| Open Space: | N | DFL | N |
| Historic Property: | N | Remodel Property: | N |
| Multi-Family Redevelopment: | N | | |
| Township: | 32 | Section: | 25 |
| Range: | R0 |
Location |
| Address: | 2587 LUCKY DOG LN COUPEVILLE, WA 98239 | Mapsco: | |
| Neighborhood: | Cycle 2 | Map ID: | 8 |
| Neighborhood CD: | 2 |
Owner |
| Name: | RODRIGUEZ JTWROS, MELINDA S | Owner ID: | 295465 |
| Mailing Address: | GEORGE KERRY HALGRIMS, JTWROS 9905 SIERRA HIGHWAY AQUA DULCE, CA 91390 | % Ownership: | 100.0000000000% |
| | | Exemptions: | |
Taxes and Assessment Details
Values
| (+) Improvement Homesite Value: | + | $0 | |
| (+) Improvement Non-Homesite Value: | + | $570,518 | |
| (+) Land Homesite Value: | + | $0 | |
| (+) Land Non-Homesite Value: | + | $342,079 | |
| (+) Curr Use (HS): | + | $0 | $0 |
| (+) Curr Use (NHS): | + | $0 | $0 |
| | | -------------------------- | |
| (=) Market Value: | = | $912,597 | |
| (–) Productivity Loss: | – | $0 | |
| | | -------------------------- | |
| (=) Subtotal: | = | $912,597 | |
| (+) Senior Appraised Value: | + | $0 | |
| (+) Non-Senior Appraised Value: | + | $912,597 | |
| | | -------------------------- | |
| (=) Total Appraised Value: | = | $912,597 | |
| (–) Senior Exemption Loss: | – | $0 | |
| (–) Exemption Loss: | – | $0 | |
| | | -------------------------- | |
| (=) Taxable Value: | = | $912,597 | |
Taxing Jurisdiction
| Owner: | RODRIGUEZ JTWROS, MELINDA S | | |
| % Ownership: | 100.0000000000% | | |
| Total Value: | $912,597 | | |
| Tax Area: | 332 - APPRAISER-Cpvl Schl Dist, Special Dist, improved, greater than 1 acre |
| CF | Conservation Futures | 0.0316035091 | $912,597 | $912,597 | $28.84 | | |
| CEM2 | Cemetery #2 | 0.0095056933 | $912,597 | $912,597 | $8.67 | | |
| FIRE2 | Fire & Rescue Dist #2 N Whidbey GEN | 0.5475949600 | $912,597 | $912,597 | $499.73 | | |
| HOBOND | Hospital BOND | 0.1910887512 | $912,597 | $912,597 | $174.39 | | |
| HOGEN | Hospital GEN | 0.3902502903 | $912,597 | $912,597 | $356.14 | | |
| CE | County Current Expense | 0.3708482477 | $912,597 | $912,597 | $338.43 | | |
| CR | County Roads | 0.4584763726 | $912,597 | $912,597 | $418.40 | | |
| ISLANDEMS | Hospital GEN (EMS) | 0.5000000000 | $912,597 | $912,597 | $456.30 | | |
| LIB | Library Sno-Isle GEN | 0.3153421757 | $912,597 | $912,597 | $287.78 | | |
| LIBCAP | Library Sno-Isle BOND (Cap Fac Imp Area) | 0.0543427938 | $912,597 | $912,597 | $49.59 | | |
| POCOUP | Port of Coupeville GEN | 0.1093371703 | $912,597 | $912,597 | $99.78 | | |
| POCOUPIDD | Port of Coupeville IDD | 0.3409740022 | $912,597 | $912,597 | $311.17 | | |
| COUPSDTECH | School 204 CP (TECH) | 0.7545480007 | $912,597 | $912,597 | $688.60 | | |
| SCH204MO | School 204 Enrichment | 0.6716186034 | $912,597 | $912,597 | $612.92 | | |
| ST | State School | 1.3035497053 | $912,597 | $912,597 | $1,189.62 | | |
| ST2 | State School Part 2 | 0.8169543533 | $912,597 | $912,597 | $745.55 | | |
| | Total Tax Rate: | 6.8660346289 | | | | | |
| | | | | Taxes w/Current Exemptions: | $6,265.91 | | |
| | | | | Taxes w/o Exemptions: | $6,265.91 | | |
Improvement / Building
| Improvement #1: | RESIDENTIAL | State Code: | Y | 2598.0 sqft | Value: | $570,518 |
| Bathrooms: | 1.5 | Bedrooms: | 2 | | Ceiling: | DRYWALL PAINTED | Exterior Wall/Cover: | CEMENT FIBER | | Floor Covering: | CERAMIC TILE/CPT 40-60 | Floor Structure: | WOOD W/SUBFLOOR | | Foundation: | CONCRETE | Heating: | FHA GAS | | Interior Finish: | DRYWALL PAINT | Plumbing Fixture Cnt: | 8 | | Roof Slope: | 4" IN 12" | Roof Structure/Cover: | STEEL TERNE |
|
| | Type | Description | Class CD | Sub Class CD | Year Built | Area |
| | BAS | BASE/MAIN FLOOR | 3 | 0 | 1998 | 2118.0 |
| | AGR | ATTACHED GARAGE | 3 | 0 | 1998 | 496.7 |
| | UPS | UPPER STORY | 3 | 0 | 1998 | 480.0 |
| | OWP | OPEN WOOD PORCH W/STEPS | 3 | 0 | 1998 | 592.0 |
| | OWR | OPEN WOOD PORCH W/STEPS/ROOF | 3 | 0 | 1998 | 256.0 |
| | oPOL | POLE BARN | 3 | 0 | 1998 | 1728.0 |
| | oGAR | GARAGE | 3 | 0 | 1998 | 792.0 |
Sketch
Property Image
Land
| 1 | HS | HOMESITE | 1.0000 | 43560.00 | 0.00 | 0.00 | 1.00 | $220,000 | $0 |
| 2 | 91 | UNDEVELOPED LAND-METES AND BOUNDS | 5.0200 | 218671.20 | 0.00 | 0.00 | 1.00 | $122,079 | $0 |
Roll Value History
| 2026 | N/A | N/A | N/A | N/A | N/A |
| 2025 | $570,518 | $342,079 | $0 | $912,597 | $912,597 |
| 2024 | $566,989 | $300,000 | $0 | $866,989 | $866,989 |
| 2023 | $573,883 | $280,000 | $0 | $853,883 | $853,883 |
| 2022 | $525,890 | $260,000 | $0 | $785,890 | $785,890 |
| 2021 | $462,702 | $170,000 | $0 | $632,702 | $632,702 |
| 2020 | $452,627 | $160,000 | $0 | $612,627 | $612,627 |
| 2019 | $359,371 | $210,000 | $0 | $569,371 | $569,371 |
| 2018 | $337,114 | $180,000 | $0 | $517,114 | $517,114 |
| 2017 | $338,759 | $170,000 | $0 | $508,759 | $508,759 |
| 2016 | $341,979 | $170,000 | $0 | $511,979 | $511,979 |
| 2015 | $345,200 | $170,000 | $0 | $515,200 | $515,200 |
| 2014 | $348,419 | $146,286 | $0 | $494,705 | $494,705 |
| 2013 | $351,640 | $146,286 | $0 | $497,926 | $497,926 |
| 2012 | $355,383 | $146,286 | $0 | $501,669 | $501,669 |
| 2011 | $358,615 | $162,540 | $0 | $521,155 | $521,155 |
| 2010 | $375,829 | $162,540 | $0 | $538,369 | $538,369 |
| 2009 | $359,538 | $165,550 | $0 | $525,088 | $525,088 |
| 2008 | $343,056 | $155,000 | $0 | $498,056 | $498,056 |
| 2007 | $268,948 | $150,500 | $0 | $419,448 | $419,448 |
Deed and Sales History
| 1 | 07/31/2020 | WD | Warranty Deed | THORNE, HUNTER G | RODRIGUEZ JTWROS, MELINDA S | | | $595,000.00 | 44085 | 4492996 |
| 2 | 12/12/2001 | WD | Warranty Deed | KAUL, STEVE R | THORNE, HUNTER G | | | $250,000.00 | 14736 | 4005933 |
| 3 | 07/01/1997 | QCD | Quit Claim Deed | KAUL, STEVE R | KAUL, STEVE R | | | $0.00 | 72522 | 97011947 |
| 4 | 01/01/1993 | WD | Warranty Deed | GRANT, JAMES B | KAUL, STEVE R | | | $55,000.00 | 30459 | 93002555 |
| 5 | 09/01/1989 | WD | Warranty Deed | DAMSTROM, GAYLE | GRANT, JAMES B | | | $35,000.00 | 94240 | 89013938 |
| 6 | 04/01/1984 | REC | Real Estate Contract | BALLIF, E J | DAMSTROM, GAYLE | | | $34,000.00 | 41165 | 423836 |
| 7 | 06/01/1979 | EXECUTORD | Executor Deed | Unknown | BALLIF, E J | | | $60,000.00 | 93155 | 354802 |
Payout Agreement
| No payout information available.. |