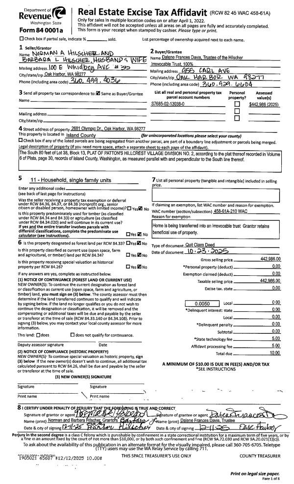
Property
Account |
| Property ID: | 536432 | Abbreviated Legal Description: | W/2 SW NW SE TGW & SUB EZ FR 178 2960 (PAR B SP 79-326 AF#387951) |
| Geographic ID: | R03225-169-2790 | Agent Code: | |
| Type: | Real | | |
| Tax Area: | 332 - APPRAISER-Cpvl Schl Dist, Special Dist, improved, greater than 1 acre | Land Use Code | 11 |
| Open Space: | N | DFL | N |
| Historic Property: | N | Remodel Property: | N |
| Multi-Family Redevelopment: | N | | |
| Township: | 32 | Section: | 25 |
| Range: | R0 |
Location |
| Address: | 530 LUCKY DOG LN COUPEVILLE, WA 98239 | Mapsco: | |
| Neighborhood: | Cycle 2 | Map ID: | 8 |
| Neighborhood CD: | 2 |
Owner |
| Name: | QUARRIER TTEE, MARIAN P | Owner ID: | 306849 |
| Mailing Address: | BETSY A. BRACE TTEE 530 LUCKY DOG LANE COUPEVILLE, WA 98239 | % Ownership: | 100.0000000000% |
| | | Exemptions: | |
Taxes and Assessment Details
Values
| (+) Improvement Homesite Value: | + | $0 | |
| (+) Improvement Non-Homesite Value: | + | $549,770 | |
| (+) Land Homesite Value: | + | $0 | |
| (+) Land Non-Homesite Value: | + | $340,000 | |
| (+) Curr Use (HS): | + | $0 | $0 |
| (+) Curr Use (NHS): | + | $0 | $0 |
| | | -------------------------- | |
| (=) Market Value: | = | $889,770 | |
| (–) Productivity Loss: | – | $0 | |
| | | -------------------------- | |
| (=) Subtotal: | = | $889,770 | |
| (+) Senior Appraised Value: | + | $0 | |
| (+) Non-Senior Appraised Value: | + | $889,770 | |
| | | -------------------------- | |
| (=) Total Appraised Value: | = | $889,770 | |
| (–) Senior Exemption Loss: | – | $0 | |
| (–) Exemption Loss: | – | $0 | |
| | | -------------------------- | |
| (=) Taxable Value: | = | $889,770 | |
Taxing Jurisdiction
| Owner: | QUARRIER TTEE, MARIAN P | | |
| % Ownership: | 100.0000000000% | | |
| Total Value: | $889,770 | | |
| Tax Area: | 332 - APPRAISER-Cpvl Schl Dist, Special Dist, improved, greater than 1 acre |
| CF | Conservation Futures | 0.0316035091 | $889,770 | $889,770 | $28.12 | | |
| CEM2 | Cemetery #2 | 0.0095056933 | $889,770 | $889,770 | $8.46 | | |
| FIRE2 | Fire & Rescue Dist #2 N Whidbey GEN | 0.5475949600 | $889,770 | $889,770 | $487.23 | | |
| HOBOND | Hospital BOND | 0.1910887512 | $889,770 | $889,770 | $170.03 | | |
| HOGEN | Hospital GEN | 0.3902502903 | $889,770 | $889,770 | $347.23 | | |
| CE | County Current Expense | 0.3708482477 | $889,770 | $889,770 | $329.97 | | |
| CR | County Roads | 0.4584763726 | $889,770 | $889,770 | $407.94 | | |
| ISLANDEMS | Hospital GEN (EMS) | 0.5000000000 | $889,770 | $889,770 | $444.89 | | |
| LIB | Library Sno-Isle GEN | 0.3153421757 | $889,770 | $889,770 | $280.58 | | |
| LIBCAP | Library Sno-Isle BOND (Cap Fac Imp Area) | 0.0543427938 | $889,770 | $889,770 | $48.35 | | |
| POCOUP | Port of Coupeville GEN | 0.1093371703 | $889,770 | $889,770 | $97.28 | | |
| POCOUPIDD | Port of Coupeville IDD | 0.3409740022 | $889,770 | $889,770 | $303.39 | | |
| COUPSDTECH | School 204 CP (TECH) | 0.7545480007 | $889,770 | $889,770 | $671.37 | | |
| SCH204MO | School 204 Enrichment | 0.6716186034 | $889,770 | $889,770 | $597.59 | | |
| ST | State School | 1.3035497053 | $889,770 | $889,770 | $1,159.86 | | |
| ST2 | State School Part 2 | 0.8169543533 | $889,770 | $889,770 | $726.90 | | |
| | Total Tax Rate: | 6.8660346289 | | | | | |
| | | | | Taxes w/Current Exemptions: | $6,109.19 | | |
| | | | | Taxes w/o Exemptions: | $6,109.19 | | |
Improvement / Building
| Improvement #1: | RESIDENTIAL | State Code: | Y | 2293.0 sqft | Value: | $549,770 |
| Bathrooms: | 1.75 | Bedrooms: | 2 | | Ceiling: | TONGUE & GROOVE | Exterior Wall/Cover: | WOOD SIDING | | Floor Covering: | COLORED CONCRETE | Floor Structure: | WOOD W/SUBFLOOR | | Foundation: | PEIRS | Heating: | RADIANT FLOOR | | Interior Finish: | DRYWALL PAINT | Plumbing Fixture Cnt: | 12 | | Roof Slope: | 3" IN 12" | Roof Structure/Cover: | BEAM ASPHALT |
|
| | Type | Description | Class CD | Sub Class CD | Year Built | Area |
| | BAS | BASE/MAIN FLOOR | 4 | 0 | 2004 | 2171.0 |
| | OWP | OPEN WOOD PORCH W/STEPS | 4 | 0 | 2004 | 330.3 |
| | OWC | OPEN WOOD PORCH W/STEPS/ROOF/C | 4 | 0 | 2004 | 108.0 |
| | OP1 | OPEN PORCH SLAB | 4 | 0 | 2004 | 293.5 |
| | DGR | DETACHED GARAGE | 4 | 0 | 2004 | 604.5 |
| | OP3 | OPEN PORCH W/ROOF | 4 | 0 | 2004 | 145.0 |
| | LOF | LOFT | 4 | 0 | 2004 | 122.0 |
| | DGR | DETACHED GARAGE | 3 | 0 | 2004 | 544.0 |
| | UTY | STORAGE/UTILITY | 3 | 0 | 2004 | 96.0 |
Sketch
Property Image
Land
| 1 | HS | HOMESITE | 1.0000 | 43560.00 | 0.00 | 0.00 | 1.00 | $220,000 | $0 |
| 2 | 91 | UNDEVELOPED LAND-METES AND BOUNDS | 4.0000 | 174240.00 | 0.00 | 0.00 | 1.00 | $120,000 | $0 |
Roll Value History
| 2026 | N/A | N/A | N/A | N/A | N/A |
| 2025 | $549,770 | $340,000 | $0 | $889,770 | $889,770 |
| 2024 | $503,327 | $300,000 | $0 | $803,327 | $803,327 |
| 2023 | $509,163 | $280,000 | $0 | $789,163 | $789,163 |
| 2022 | $466,347 | $260,000 | $0 | $726,347 | $726,347 |
| 2021 | $410,102 | $170,000 | $0 | $580,102 | $580,102 |
| 2020 | $398,100 | $160,000 | $0 | $558,100 | $558,100 |
| 2019 | $298,650 | $210,000 | $0 | $508,650 | $508,650 |
| 2018 | $257,652 | $180,000 | $0 | $437,652 | $437,652 |
| 2017 | $259,123 | $160,000 | $0 | $419,123 | $419,123 |
| 2016 | $262,068 | $160,000 | $0 | $422,068 | $422,068 |
| 2015 | $265,015 | $130,000 | $0 | $395,015 | $395,015 |
| 2014 | $267,958 | $121,500 | $0 | $389,458 | $389,458 |
| 2013 | $270,903 | $121,500 | $0 | $392,403 | $392,403 |
| 2012 | $229,181 | $121,500 | $0 | $350,681 | $350,681 |
| 2011 | $221,184 | $135,000 | $0 | $356,184 | $356,184 |
| 2010 | $150,936 | $100,000 | $0 | $250,936 | $250,936 |
| 2009 | $153,978 | $155,000 | $0 | $308,978 | $308,978 |
| 2008 | $154,150 | $155,000 | $0 | $309,150 | $309,150 |
| 2007 | $155,857 | $125,000 | $0 | $280,857 | $280,857 |
Deed and Sales History
| 1 | 12/07/2022 | 2 | DNU - Superior Court Case | QUARRIER, MARIAN P | QUARRIER TTEE, MARIAN P | | | $0.00 | 55336 | 4554678 |
| 2 | 03/26/2004 | WD | Warranty Deed | KAUL, STEVEN R | QUARRIER, MARIAN P | | | $87,000.00 | 41198 | 4095541 |
| 3 | 07/01/1989 | WD | Warranty Deed | WALKER, DOUGLAS G | KAUL, STEVEN R | | | $22,500.00 | 92943 | 89009891 |
| 4 | 05/01/1988 | PRD | Personal Representatives Deed | BALLIF, E J | WALKER, DOUGLAS G | | | $0.00 | 81500 | 88005690 |
| 5 | 06/01/1979 | EXECUTORD | Executor Deed | Unknown | BALLIF, E J | | | $60,000.00 | 93155 | 354802 |
Payout Agreement
| No payout information available.. |