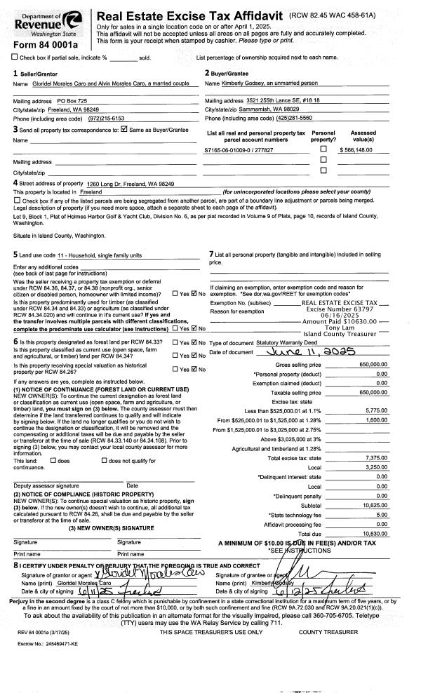
Property
Account |
| Property ID: | 536548 | Abbreviated Legal Description: | LOT 4 SP 81-13.23018.370-2850 V1 SP P97 |
| Geographic ID: | R23018-369-3150 | Agent Code: | |
| Type: | Real | | |
| Tax Area: | 312 - APPRAISER-Cpvl Schl Dist, outside Cpvl, improved, greater than 1 acre | Land Use Code | 11 |
| Open Space: | N | DFL | N |
| Historic Property: | N | Remodel Property: | N |
| Multi-Family Redevelopment: | N | | |
| Township: | 30 | Section: | 18 |
| Range: | R2 |
Location |
| Address: | | Mapsco: | |
| Neighborhood: | Cycle 3 | Map ID: | 390 |
| Neighborhood CD: | 3 |
Owner |
| Name: | POLL WHIDBEY PROPERTY, LLC | Owner ID: | 314890 |
| Mailing Address: | 4707 48TH AVE NE SEATTLE, WA 98105 | % Ownership: | 100.0000000000% |
| | | Exemptions: | |
Taxes and Assessment Details
Values
| (+) Improvement Homesite Value: | + | $0 | |
| (+) Improvement Non-Homesite Value: | + | $270,534 | |
| (+) Land Homesite Value: | + | $0 | |
| (+) Land Non-Homesite Value: | + | $310,000 | |
| (+) Curr Use (HS): | + | $0 | $0 |
| (+) Curr Use (NHS): | + | $0 | $0 |
| | | -------------------------- | |
| (=) Market Value: | = | $580,534 | |
| (–) Productivity Loss: | – | $0 | |
| | | -------------------------- | |
| (=) Subtotal: | = | $580,534 | |
| (+) Senior Appraised Value: | + | $0 | |
| (+) Non-Senior Appraised Value: | + | $580,534 | |
| | | -------------------------- | |
| (=) Total Appraised Value: | = | $580,534 | |
| (–) Senior Exemption Loss: | – | $0 | |
| (–) Exemption Loss: | – | $0 | |
| | | -------------------------- | |
| (=) Taxable Value: | = | $580,534 | |
Taxing Jurisdiction
| Owner: | POLL WHIDBEY PROPERTY, LLC | | |
| % Ownership: | 100.0000000000% | | |
| Total Value: | $580,534 | | |
| Tax Area: | 312 - APPRAISER-Cpvl Schl Dist, outside Cpvl, improved, greater than 1 acre |
| CF | Conservation Futures | 0.0316035091 | $580,534 | $580,534 | $18.35 | | |
| CEM2 | Cemetery #2 | 0.0095056933 | $580,534 | $580,534 | $5.52 | | |
| FIRE5 | Fire & Rescue Dist #5 C Whidbey GEN | 1.2008080668 | $580,534 | $580,534 | $697.11 | | |
| FIRE5BOND | Fire & Rescue Dist #5 C Whidbey BOND | 0.1400090713 | $580,534 | $580,534 | $81.28 | | |
| HOBOND | Hospital BOND | 0.1910887512 | $580,534 | $580,534 | $110.93 | | |
| HOGEN | Hospital GEN | 0.3902502903 | $580,534 | $580,534 | $226.55 | | |
| CE | County Current Expense | 0.3708482477 | $580,534 | $580,534 | $215.29 | | |
| CR | County Roads | 0.4584763726 | $580,534 | $580,534 | $266.16 | | |
| ISLANDEMS | Hospital GEN (EMS) | 0.5000000000 | $580,534 | $580,534 | $290.27 | | |
| LIB | Library Sno-Isle GEN | 0.3153421757 | $580,534 | $580,534 | $183.07 | | |
| LIBCAP | Library Sno-Isle BOND (Cap Fac Imp Area) | 0.0543427938 | $580,534 | $580,534 | $31.55 | | |
| POCOUP | Port of Coupeville GEN | 0.1093371703 | $580,534 | $580,534 | $63.47 | | |
| POCOUPIDD | Port of Coupeville IDD | 0.3409740022 | $580,534 | $580,534 | $197.95 | | |
| COUPSDTECH | School 204 CP (TECH) | 0.7545480007 | $580,534 | $580,534 | $438.04 | | |
| SCH204MO | School 204 Enrichment | 0.6716186034 | $580,534 | $580,534 | $389.90 | | |
| ST | State School | 1.3035497053 | $580,534 | $580,534 | $756.75 | | |
| ST2 | State School Part 2 | 0.8169543533 | $580,534 | $580,534 | $474.27 | | |
| | Total Tax Rate: | 7.6592568070 | | | | | |
| | | | | Taxes w/Current Exemptions: | $4,446.46 | | |
| | | | | Taxes w/o Exemptions: | $4,446.46 | | |
Improvement / Building
| Improvement #1: | RESIDENTIAL | State Code: | Y | 1484.1 sqft | Value: | $270,534 |
| Bathrooms: | 2 | Bedrooms: | 3 | | Ceiling: | DRYWALL PAINTED | Exterior Wall/Cover: | WOOD SIDING | | Floor Covering: | VINYL TILE | Floor Structure: | WOOD W/SUBFLOOR | | Foundation: | CONCRETE | Heating: | FHA ELECTRIC | | Interior Finish: | DRYWALL PAINT | Plumbing Fixture Cnt: | 9 | | Roof Slope: | 6" IN 12" | Roof Structure/Cover: | CJ WOOD SHINGLE |
|
| | Type | Description | Class CD | Sub Class CD | Year Built | Area |
| | BAS | BASE/MAIN FLOOR | 4 | 0 | 1982 | 925.6 |
| | UPS | UPPER STORY | 4 | 0 | 1982 | 558.5 |
| | OWP | OPEN WOOD PORCH W/STEPS | 4 | 0 | 1982 | 934.4 |
Sketch
Property Image
Land
| 1 | 18 | AC (02.01-03.00) | 0.0000 | 0.00 | 0.00 | 0.00 | 1.00 | $310,000 | $0 |
Roll Value History
| 2026 | N/A | N/A | N/A | N/A | N/A |
| 2025 | $270,534 | $310,000 | $0 | $580,534 | $580,534 |
| 2024 | $274,332 | $290,000 | $0 | $564,332 | $564,332 |
| 2023 | $278,128 | $290,000 | $0 | $568,128 | $568,128 |
| 2022 | $255,276 | $270,000 | $0 | $525,276 | $525,276 |
| 2021 | $224,968 | $190,000 | $0 | $414,968 | $414,968 |
| 2020 | $219,374 | $165,000 | $0 | $384,374 | $384,374 |
| 2019 | $0 | $110,000 | $0 | $110,000 | $110,000 |
| 2018 | $0 | $100,000 | $0 | $100,000 | $100,000 |
| 2017 | $0 | $100,000 | $0 | $100,000 | $100,000 |
| 2016 | $0 | $100,000 | $0 | $100,000 | $100,000 |
| 2015 | $0 | $100,000 | $0 | $100,000 | $100,000 |
| 2014 | $0 | $71,400 | $0 | $71,400 | $71,400 |
| 2013 | $0 | $30,000 | $0 | $30,000 | $30,000 |
| 2012 | $0 | $30,000 | $0 | $30,000 | $30,000 |
| 2011 | $0 | $30,000 | $0 | $30,000 | $30,000 |
| 2010 | $0 | $30,000 | $0 | $30,000 | $30,000 |
| 2009 | $0 | $45,790 | $0 | $45,790 | $45,790 |
| 2008 | $0 | $45,790 | $0 | $45,790 | $45,790 |
| 2007 | $0 | $45,790 | $0 | $45,790 | $45,790 |
Deed and Sales History
| 1 | 11/18/2024 | QCD | Quit Claim Deed | POLL FAMILY PROPERTIES LLC | POLL WHIDBEY PROPERTY, LLC | | | $0.00 | 62093 | 4580457 |
| 2 | 09/09/2011 | QCD | Quit Claim Deed | POLL, HARRY | POLL FAMILY PROPERTIES LLC | | | $0.00 | 6101 | 4305044 |
| 3 | 09/09/2011 | QCD | Quit Claim Deed | | POLL FAMILY PROPERTIES LLC | | | $0.00 | 6100 | 4305043 |
| 4 | 07/01/1996 | QCD | Quit Claim Deed | POLL, HARRY | POLL, HARRY & | | | $0.00 | 62600 | 96012866 |
| 5 | 07/01/1996 | QCD | Quit Claim Deed | POLL, HARRY & | POLL, HARRY E | | | $0.00 | 62602 | 96012867 |
| 6 | 05/01/1989 | WD | Warranty Deed | FOX, VIRGIL R | POLL, HARRY | | | $26,000.00 | 92036 | 89006947 |
| 7 | 07/01/1978 | OTHER | Other - Misc. Documents | Unknown | FOX, VIRGIL R | | | $50,000.00 | 84285 | 339083 |
Payout Agreement
| No payout information available.. |