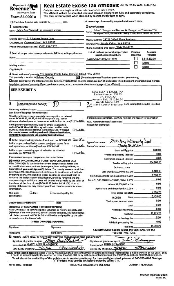
Property
Account |
| Property ID: | 536744 | Abbreviated Legal Description: | LOT 18-A SP 79-31R.23112.252-4450 V1 SP P100 AF#386051 |
| Geographic ID: | R23112-251-4200 | Agent Code: | |
| Type: | Real | | |
| Tax Area: | 512 - APPRAISER-Stan/Cam Schl Dist, improved, greater than 1 acre | Land Use Code | 11 |
| Open Space: | N | DFL | N |
| Historic Property: | N | Remodel Property: | N |
| Multi-Family Redevelopment: | N | | |
| Township: | 31 | Section: | 12 |
| Range: | R2 |
Location |
| Address: | 615 MICHAEL WAY CAMANO ISLAND, WA 98282 | Mapsco: | |
| Neighborhood: | Cycle 5 | Map ID: | 474 |
| Neighborhood CD: | 5 |
Owner |
| Name: | MALLAND, STEVEN M | Owner ID: | 280909 |
| Mailing Address: | 615 MICHAEL WAY CAMANO ISLAND, WA 98282 | % Ownership: | 100.0000000000% |
| | | Exemptions: | |
Taxes and Assessment Details
Values
| (+) Improvement Homesite Value: | + | $0 | |
| (+) Improvement Non-Homesite Value: | + | $1,093,083 | |
| (+) Land Homesite Value: | + | $0 | |
| (+) Land Non-Homesite Value: | + | $410,000 | |
| (+) Curr Use (HS): | + | $0 | $0 |
| (+) Curr Use (NHS): | + | $0 | $0 |
| | | -------------------------- | |
| (=) Market Value: | = | $1,503,083 | |
| (–) Productivity Loss: | – | $0 | |
| | | -------------------------- | |
| (=) Subtotal: | = | $1,503,083 | |
| (+) Senior Appraised Value: | + | $0 | |
| (+) Non-Senior Appraised Value: | + | $1,503,083 | |
| | | -------------------------- | |
| (=) Total Appraised Value: | = | $1,503,083 | |
| (–) Senior Exemption Loss: | – | $0 | |
| (–) Exemption Loss: | – | $0 | |
| | | -------------------------- | |
| (=) Taxable Value: | = | $1,503,083 | |
Taxing Jurisdiction
| Owner: | MALLAND, STEVEN M | | |
| % Ownership: | 100.0000000000% | | |
| Total Value: | $1,503,083 | | |
| Tax Area: | 512 - APPRAISER-Stan/Cam Schl Dist, improved, greater than 1 acre |
| CF | Conservation Futures | 0.0316035091 | $1,503,083 | $1,503,083 | $47.50 | | |
| EMS1 | Fire & Rescue Dist #1 Camano GEN (EMS) | 0.3677864386 | $1,503,083 | $1,503,083 | $552.81 | | |
| FIRE1 | Fire & Rescue Dist #1 Camano GEN | 1.2502910536 | $1,503,083 | $1,503,083 | $1,879.29 | | |
| FIRE1BOND | Fire & Rescue Dist #1 Camano BOND | 0.1570001679 | $1,503,083 | $1,503,083 | $235.98 | | |
| CE | County Current Expense | 0.3708482477 | $1,503,083 | $1,503,083 | $557.42 | | |
| CR | County Roads | 0.4584763726 | $1,503,083 | $1,503,083 | $689.13 | | |
| LCIB | Library Sno-Isle BOND (Camano Island) | 0.0396325772 | $1,503,083 | $1,503,083 | $59.57 | | |
| LIB | Library Sno-Isle GEN | 0.3153421757 | $1,503,083 | $1,503,083 | $473.99 | | |
| SCH205_401 | School 205-401 Enrichment | 1.2698420524 | $1,503,083 | $1,503,083 | $1,908.68 | | |
| SCH205BOND | School 205-401 BOND | 0.9396497583 | $1,503,083 | $1,503,083 | $1,412.37 | | |
| ST | State School | 1.3035497053 | $1,503,083 | $1,503,083 | $1,959.34 | | |
| ST2 | State School Part 2 | 0.8169543533 | $1,503,083 | $1,503,083 | $1,227.95 | | |
| | Total Tax Rate: | 7.3209764117 | | | | | |
| | | | | Taxes w/Current Exemptions: | $11,004.03 | | |
| | | | | Taxes w/o Exemptions: | $11,004.03 | | |
Improvement / Building
| Improvement #1: | RESIDENTIAL | State Code: | Y | 4088.8 sqft | Value: | $1,093,083 |
| Bathrooms: | 4 | Bedrooms: | 3 | | Ceiling: | DRYWALL PAINTED | Cooling: | HEAT PUMP/CONV/V | | Exterior Wall/Cover: | WOOD SIDING | Floor Covering: | HARDWOOD/CARP 20-80 | | Floor Structure: | WOOD W/SUBFLOOR | Foundation: | CONCRETE | | Interior Finish: | DRYWALL PAINT | Plumbing Fixture Cnt: | 20 | | Roof Slope: | 6" IN 12" | Roof Structure/Cover: | CJ ALUMINIUM HEAVY |
|
| | Type | Description | Class CD | Sub Class CD | Year Built | Area |
| | BAS | BASE/MAIN FLOOR | 5 | 0 | 1995 | 2280.1 |
| | UTY | STORAGE/UTILITY | 5 | 0 | 1995 | 363.9 |
| | OP4 | OPEN PORCH W/CEILING-ROOF | 5 | 0 | 1995 | 189.5 |
| | OP4 | OPEN PORCH W/CEILING-ROOF | 5 | 0 | 1995 | 126.5 |
| | DGR | DETACHED GARAGE | 5 | 0 | 1995 | 628.7 |
| | BIG | BUILT IN GARAGE | 5 | 0 | 1995 | 701.3 |
| | UPS | UPPER STORY | 5 | 0 | 1995 | 224.0 |
| | OWP | OPEN WOOD PORCH W/STEPS | 5 | 0 | 1995 | 128.0 |
| | OWP | OPEN WOOD PORCH W/STEPS | 5 | 0 | 1995 | 196.7 |
| | OWP | OPEN WOOD PORCH W/STEPS | 5 | 0 | 1995 | 437.6 |
| | DWN | DOWNSTAIRS LIVING AREA | 5 | 0 | 1995 | 1584.7 |
| | ENP | ENCLOSED PORCH | 5 | 0 | 1995 | 352.0 |
| | OWP | OPEN WOOD PORCH W/STEPS | 5 | 0 | 1995 | 72.0 |
| | DGR | DETACHED GARAGE | 5 | 0 | 1995 | 2360.0 |
Sketch
Property Image
Land
| 1 | 18 | AC (02.01-03.00) | 0.0000 | 0.00 | 0.00 | 0.00 | 1.00 | $410,000 | $0 |
Roll Value History
| 2026 | N/A | N/A | N/A | N/A | N/A |
| 2025 | $1,093,083 | $410,000 | $0 | $1,503,083 | $1,503,083 |
| 2024 | $1,105,906 | $390,000 | $0 | $1,495,906 | $1,495,906 |
| 2023 | $1,118,726 | $370,000 | $0 | $1,488,726 | $1,488,726 |
| 2022 | $1,024,634 | $350,000 | $0 | $1,374,634 | $1,374,634 |
| 2021 | $805,095 | $260,000 | $0 | $1,065,095 | $1,065,095 |
| 2020 | $784,244 | $220,000 | $0 | $1,004,244 | $1,004,244 |
| 2019 | $686,474 | $260,000 | $0 | $946,474 | $946,474 |
| 2018 | $569,558 | $220,000 | $0 | $789,558 | $789,558 |
| 2017 | $511,652 | $180,000 | $0 | $691,652 | $691,652 |
| 2016 | $517,743 | $150,000 | $0 | $667,743 | $667,743 |
| 2015 | $537,283 | $140,000 | $0 | $677,283 | $677,283 |
| 2014 | $543,929 | $140,000 | $0 | $683,929 | $683,929 |
| 2013 | $550,580 | $140,000 | $0 | $690,580 | $690,580 |
| 2012 | $557,225 | $140,000 | $0 | $697,225 | $697,225 |
| 2011 | $563,875 | $175,000 | $0 | $738,875 | $738,875 |
| 2010 | $590,110 | $175,000 | $0 | $765,110 | $765,110 |
| 2009 | $615,654 | $215,000 | $0 | $830,654 | $830,654 |
| 2008 | $623,653 | $215,000 | $0 | $838,653 | $838,653 |
| 2007 | $631,633 | $184,000 | $0 | $815,633 | $815,633 |
Deed and Sales History
| 1 | 07/06/2017 | WD | Warranty Deed | WRIGHT, BRUCE C & NANCY A | MALLAND, STEVEN M | | | $834,500.00 | 30161 | 4426120 |
| 2 | 06/01/1994 | WD | Warranty Deed | BRASHEAR, RALPH S | WRIGHT, BRUCE C | | | $120,000.00 | 42283 | 94013016 |
| 3 | 06/01/1991 | WD | Warranty Deed | BRUNAT, VLADIMIR | BRASHEAR, RALPH S | | | $118,000.00 | 12234 | 91009540 |
| 4 | 09/01/1989 | WD | Warranty Deed | MANNING, ROBERT S | BRUNAT, VLADIMIR | | | $45,000.00 | 93979 | 89013203 |
| 5 | 01/01/1985 | WD | Warranty Deed | EVICH, JOHN & | MANNING, ROBERT S | | | $40,000.00 | 50153 | 85000735 |
| 6 | 12/01/1978 | OTHER | Other - Misc. Documents | Unknown | EVICH, JOHN & | | | $26,500.00 | 85985 | 344257 |
Payout Agreement
| No payout information available.. |