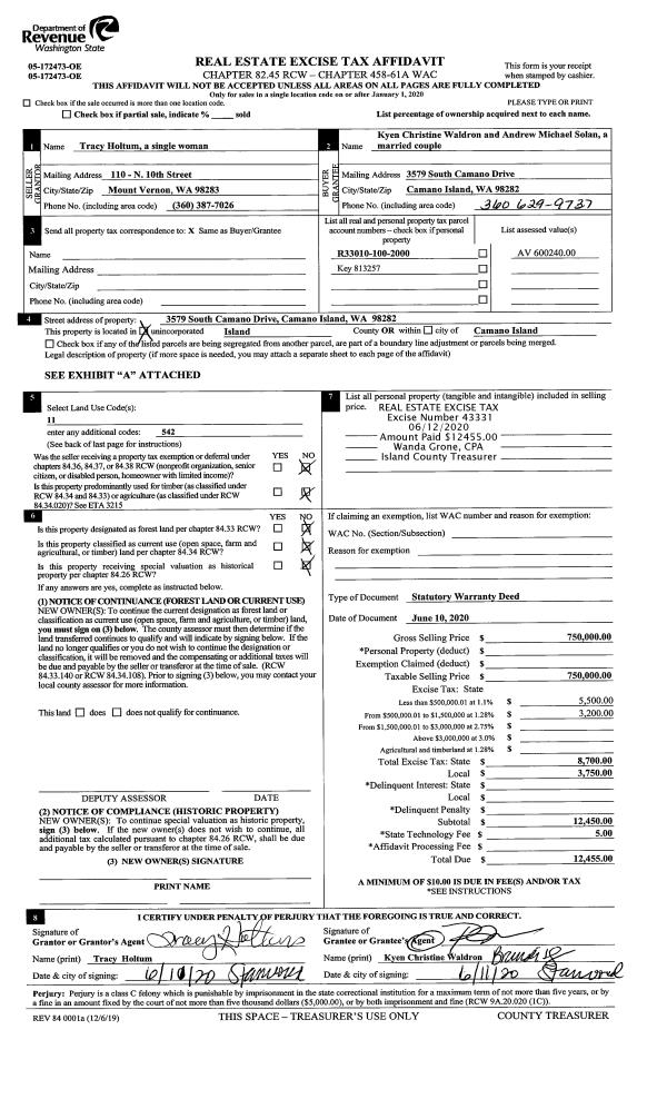
Property
Account |
| Property ID: | 538270 | Abbreviated Legal Description: | IN NE: BG 593.03'N OF SECR NW NE S919.35' S89*E98.60' TO CLN RD N919.33' N89*W91 .68' TPB EX RD FR 413-3990 |
| Geographic ID: | R23335-406-3990 | Agent Code: | |
| Type: | Real | | |
| Tax Area: | 119 - APPRAISER-OH Schl Dist, outside OH, vacant & 50 acres or less | Land Use Code | 91 |
| Open Space: | N | DFL | N |
| Historic Property: | N | Remodel Property: | N |
| Multi-Family Redevelopment: | N | | |
| Township: | 33 | Section: | 35 |
| Range: | R2 |
Location |
| Address: | | Mapsco: | |
| Neighborhood: | Cycle 6 | Map ID: | 663 |
| Neighborhood CD: | 6 |
Owner |
| Name: | DUFEK, RENEE | Owner ID: | 293191 |
| Mailing Address: | 2715 STRAWBERRY POINT RD OAK HARBOR, WA 98277 | % Ownership: | 100.0000000000% |
| | | Exemptions: | |
Taxes and Assessment Details
Values
| (+) Improvement Homesite Value: | + | $0 | |
| (+) Improvement Non-Homesite Value: | + | $0 | |
| (+) Land Homesite Value: | + | $0 | |
| (+) Land Non-Homesite Value: | + | $15,000 | |
| (+) Curr Use (HS): | + | $0 | $0 |
| (+) Curr Use (NHS): | + | $0 | $0 |
| | | -------------------------- | |
| (=) Market Value: | = | $15,000 | |
| (–) Productivity Loss: | – | $0 | |
| | | -------------------------- | |
| (=) Subtotal: | = | $15,000 | |
| (+) Senior Appraised Value: | + | $0 | |
| (+) Non-Senior Appraised Value: | + | $15,000 | |
| | | -------------------------- | |
| (=) Total Appraised Value: | = | $15,000 | |
| (–) Senior Exemption Loss: | – | $0 | |
| (–) Exemption Loss: | – | $0 | |
| | | -------------------------- | |
| (=) Taxable Value: | = | $15,000 | |
Taxing Jurisdiction
| Owner: | DUFEK, RENEE | | |
| % Ownership: | 100.0000000000% | | |
| Total Value: | $15,000 | | |
| Tax Area: | 119 - APPRAISER-OH Schl Dist, outside OH, vacant & 50 acres or less |
| CF | Conservation Futures | 0.0316035091 | $15,000 | $15,000 | $0.47 | | |
| CEM1 | Cemetery #1 | 0.0040320932 | $15,000 | $15,000 | $0.06 | | |
| HOBOND | Hospital BOND | 0.1910887512 | $15,000 | $15,000 | $2.87 | | |
| HOGEN | Hospital GEN | 0.3902502903 | $15,000 | $15,000 | $5.85 | | |
| CE | County Current Expense | 0.3708482477 | $15,000 | $15,000 | $5.56 | | |
| CR | County Roads | 0.4584763726 | $15,000 | $15,000 | $6.88 | | |
| ISLANDEMS | Hospital GEN (EMS) | 0.5000000000 | $15,000 | $15,000 | $7.50 | | |
| LIB | Library Sno-Isle GEN | 0.3153421757 | $15,000 | $15,000 | $4.73 | | |
| NWHIDPRMT | P & R N Whidbey GEN | 0.2004466701 | $15,000 | $15,000 | $3.01 | | |
| SCH201MO | School 201 Enrichment | 1.8559231640 | $15,000 | $15,000 | $27.84 | | |
| ST | State School | 1.3035497053 | $15,000 | $15,000 | $19.55 | | |
| ST2 | State School Part 2 | 0.8169543533 | $15,000 | $15,000 | $12.25 | | |
| | Total Tax Rate: | 6.4385153325 | | | | | |
| | | | | Taxes w/Current Exemptions: | $96.57 | | |
| | | | | Taxes w/o Exemptions: | $96.57 | | |
Improvement / Building
Sketch
| No sketches available for this property. |
Property Image
Land
| 1 | 17 | AC (01.01-02.00) | 1.3700 | 59677.20 | 0.00 | 0.00 | 1.00 | $15,000 | $0 |
Roll Value History
| 2026 | N/A | N/A | N/A | N/A | N/A |
| 2025 | $0 | $15,000 | $0 | $15,000 | $15,000 |
| 2024 | $0 | $15,000 | $0 | $15,000 | $15,000 |
| 2023 | $0 | $15,000 | $0 | $15,000 | $15,000 |
| 2022 | $0 | $10,000 | $0 | $10,000 | $10,000 |
| 2021 | $0 | $10,000 | $0 | $10,000 | $10,000 |
| 2020 | $0 | $10,000 | $0 | $10,000 | $10,000 |
| 2019 | $0 | $10,000 | $0 | $10,000 | $10,000 |
| 2018 | $0 | $10,000 | $0 | $10,000 | $10,000 |
| 2017 | $0 | $10,000 | $0 | $10,000 | $10,000 |
| 2016 | $0 | $10,000 | $0 | $10,000 | $10,000 |
| 2015 | $0 | $12,600 | $0 | $12,600 | $12,600 |
| 2014 | $0 | $12,600 | $0 | $12,600 | $12,600 |
| 2013 | $0 | $12,600 | $0 | $12,600 | $12,600 |
| 2012 | $0 | $12,600 | $0 | $12,600 | $12,600 |
| 2011 | $0 | $12,600 | $0 | $12,600 | $12,600 |
| 2010 | $0 | $12,600 | $0 | $12,600 | $12,600 |
| 2009 | $0 | $14,400 | $0 | $14,400 | $14,400 |
| 2008 | $0 | $14,400 | $0 | $14,400 | $14,400 |
| 2007 | $0 | $16,533 | $0 | $16,533 | $16,533 |
Deed and Sales History
| 1 | 01/10/2020 | SPWARDEED | Special Warranty Deed | THE DUFEK FAMILY REVOCABLE LIVING TRUST | DUFEK, RENEE | | | $0.00 | 41779 | 4479110 |
| 2 | 06/14/2010 | QCD | Quit Claim Deed | DUFEK, MICHAEL L | DUFEK SR TRUSTEE, MICHAEL L | | | $0.00 | 1434 | 4275391 |
| 3 | 04/01/1991 | WD | Warranty Deed | BAKER, JOHN A | DUFEK, MICHAEL L | | | $6,700.00 | 11414 | 91006034 |
| 4 | 10/01/1981 | WD | Warranty Deed | STUURMANS, CECIL E | BAKER, JOHN A | | | $8,500.00 | 13155 | 388789 |
| 5 | 06/01/1981 | WD | Warranty Deed | Unknown | STUURMANS, CECIL E | | | $15,000.00 | 11826 | 384478 |
Payout Agreement
| No payout information available.. |