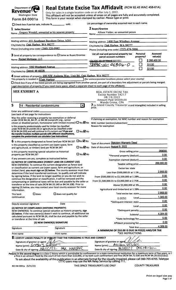
Property
Account |
| Property ID: | 538519 | Abbreviated Legal Description: | 52 - IN GL2 & 3: BG 30'W & 1256.9'S OF NE CR GL2 W370' TPB W200' S254.2' E TP S OF TPB N254.2'TPB EX BG:30'W & 1256.9'S OF NE CR GL2 W570' TPB S1*E254.06' N89*E64.01' N59*W27.58' N29*W31.59' N10 *W43.35' N1*W34.75' N1*E92. .56' S89*W15.02' N1*W42.4' S89*W |
| Geographic ID: | R33023-251-2160 | Agent Code: | |
| Type: | Real | | |
| Tax Area: | 542 - APPRAISER-Stan/Cam Schl Dist, Special Dist, improved, greater than 1 acre | Land Use Code | 11 |
| Open Space: | N | DFL | N |
| Historic Property: | N | Remodel Property: | N |
| Multi-Family Redevelopment: | N | | |
| Township: | 30 | Section: | 23 |
| Range: | R3 |
Location |
| Address: | 1763 PACIFIC DR CAMANO ISLAND, WA 98282 | Mapsco: | |
| Neighborhood: | 58RscamS-South Cam | Map ID: | 882 |
| Neighborhood CD: | 58RscamS |
Owner |
| Name: | KNUTSON TRUSTEE, JENNIFER | Owner ID: | 262491 |
| Mailing Address: | 1763 PACIFIC DR CAMANO ISLAND, WA 98282-7004 | % Ownership: | 100.0000000000% |
| | | Exemptions: | |
Taxes and Assessment Details
Values
| (+) Improvement Homesite Value: | + | $0 | |
| (+) Improvement Non-Homesite Value: | + | $411,849 | |
| (+) Land Homesite Value: | + | $0 | |
| (+) Land Non-Homesite Value: | + | $300,000 | |
| (+) Curr Use (HS): | + | $0 | $0 |
| (+) Curr Use (NHS): | + | $0 | $0 |
| | | -------------------------- | |
| (=) Market Value: | = | $711,849 | |
| (–) Productivity Loss: | – | $0 | |
| | | -------------------------- | |
| (=) Subtotal: | = | $711,849 | |
| (+) Senior Appraised Value: | + | $0 | |
| (+) Non-Senior Appraised Value: | + | $711,849 | |
| | | -------------------------- | |
| (=) Total Appraised Value: | = | $711,849 | |
| (–) Senior Exemption Loss: | – | $0 | |
| (–) Exemption Loss: | – | $0 | |
| | | -------------------------- | |
| (=) Taxable Value: | = | $711,849 | |
Taxing Jurisdiction
| Owner: | KNUTSON TRUSTEE, JENNIFER | | |
| % Ownership: | 100.0000000000% | | |
| Total Value: | $711,849 | | |
| Tax Area: | 542 - APPRAISER-Stan/Cam Schl Dist, Special Dist, improved, greater than 1 acre |
| CF | Conservation Futures | 0.0316035091 | $711,849 | $711,849 | $22.50 | | |
| EMS1 | Fire & Rescue Dist #1 Camano GEN (EMS) | 0.3677864386 | $711,849 | $711,849 | $261.81 | | |
| FIRE1 | Fire & Rescue Dist #1 Camano GEN | 1.2502910536 | $711,849 | $711,849 | $890.02 | | |
| FIRE1BOND | Fire & Rescue Dist #1 Camano BOND | 0.1570001679 | $711,849 | $711,849 | $111.76 | | |
| CE | County Current Expense | 0.3708482477 | $711,849 | $711,849 | $263.99 | | |
| CR | County Roads | 0.4584763726 | $711,849 | $711,849 | $326.37 | | |
| LCIB | Library Sno-Isle BOND (Camano Island) | 0.0396325772 | $711,849 | $711,849 | $28.21 | | |
| LIB | Library Sno-Isle GEN | 0.3153421757 | $711,849 | $711,849 | $224.48 | | |
| SCH205_401 | School 205-401 Enrichment | 1.2698420524 | $711,849 | $711,849 | $903.94 | | |
| SCH205BOND | School 205-401 BOND | 0.9396497583 | $711,849 | $711,849 | $668.89 | | |
| ST | State School | 1.3035497053 | $711,849 | $711,849 | $927.93 | | |
| ST2 | State School Part 2 | 0.8169543533 | $711,849 | $711,849 | $581.55 | | |
| | Total Tax Rate: | 7.3209764117 | | | | | |
| | | | | Taxes w/Current Exemptions: | $5,211.45 | | |
| | | | | Taxes w/o Exemptions: | $5,211.45 | | |
Improvement / Building
| Improvement #1: | RESIDENTIAL | State Code: | Y | 2756.0 sqft | Value: | $411,849 |
| Bathrooms: | 2 | Bedrooms: | 2 | | Ceiling: | DRYWALL PAINTED | Exterior Wall/Cover: | PLY/HARDBOARD T-111 | | Floor Covering: | HARDWOOD 100% | Floor Structure: | WOOD W/SUBFLOOR | | Foundation: | CONCRETE | Heating: | FHA GAS | | Interior Finish: | DRYWALL PAINT | Plumbing Fixture Cnt: | 9 | | Roof Slope: | 8" IN 12" | Roof Structure/Cover: | CJ ASPHALT |
|
| | Type | Description | Class CD | Sub Class CD | Year Built | Area |
| | BAS | BASE/MAIN FLOOR | 3 | 0 | 1948 | 1620.0 |
| | OWR | OPEN WOOD PORCH W/STEPS/ROOF | 3 | 0 | 1948 | 230.0 |
| | OWC | OPEN WOOD PORCH W/STEPS/ROOF/C | 3 | 0 | 1948 | 38.5 |
| | OWC | OPEN WOOD PORCH W/STEPS/ROOF/C | 3 | 0 | 1948 | 469.8 |
| | UPH | HALF STORY | 3 | 0 | 1948 | 1136.0 |
| | BIG | BUILT IN GARAGE | 3 | 0 | 1948 | 1099.0 |
| | ENP | ENCLOSED PORCH | 3 | 0 | 1948 | 120.0 |
| | UTY | STORAGE/UTILITY | 3 | 0 | 1948 | 90.0 |
| | UTY | STORAGE/UTILITY | 3 | 0 | 1948 | 1015.0 |
| | CPD | OPEN CARPORT DIRT FLOOR | 3 | 0 | 1948 | 480.0 |
| | BAW | BALCONY WOOD RAIL | 3 | 0 | 1948 | 84.0 |
Sketch
Property Image
Land
| 1 | 17 | AC (01.01-02.00) | 1.0300 | 44866.80 | 0.00 | 0.00 | 1.00 | $300,000 | $0 |
Roll Value History
| 2026 | N/A | N/A | N/A | N/A | N/A |
| 2025 | $411,849 | $300,000 | $0 | $711,849 | $711,849 |
| 2024 | $417,472 | $290,000 | $0 | $707,472 | $707,472 |
| 2023 | $423,095 | $280,000 | $0 | $703,095 | $703,095 |
| 2022 | $388,228 | $240,000 | $0 | $628,228 | $628,228 |
| 2021 | $320,479 | $160,000 | $0 | $480,479 | $480,479 |
| 2020 | $313,971 | $150,000 | $0 | $463,971 | $463,971 |
| 2019 | $251,008 | $200,000 | $0 | $451,008 | $451,008 |
| 2018 | $251,841 | $175,000 | $0 | $426,841 | $426,841 |
| 2017 | $251,429 | $100,000 | $0 | $351,429 | $351,429 |
| 2016 | $243,185 | $100,000 | $0 | $343,185 | $343,185 |
| 2015 | $180,392 | $50,000 | $0 | $230,392 | $230,392 |
| 2014 | $182,833 | $50,000 | $0 | $232,833 | $232,833 |
| 2013 | $185,274 | $50,000 | $0 | $235,274 | $235,274 |
| 2012 | $187,713 | $66,400 | $0 | $254,113 | $254,113 |
| 2011 | $190,155 | $83,000 | $0 | $273,155 | $273,155 |
| 2010 | $198,757 | $83,000 | $0 | $281,757 | $281,757 |
| 2009 | $100,604 | $120,000 | $0 | $220,604 | $220,604 |
| 2008 | $101,431 | $99,000 | $0 | $200,431 | $200,431 |
| 2007 | $102,266 | $86,000 | $0 | $188,266 | $188,266 |
Deed and Sales History
| 1 | 06/10/2013 | WD | Warranty Deed | POPP, BERNARD R | KNUTSON TRUSTEE, JENNIFER | | | $255,000.00 | 11601 | 4341699 |
| 2 | 09/01/1987 | WD | Warranty Deed | WATSON, KAREN E | POPP, BERNARD R | | | $45,000.00 | 73023 | 87013423 |
| 3 | 10/01/1981 | CD | DNU - Correction Deed | Unknown | WATSON, KAREN E | | | $1.00 | 13255 | 389153 |
Payout Agreement
| No payout information available.. |