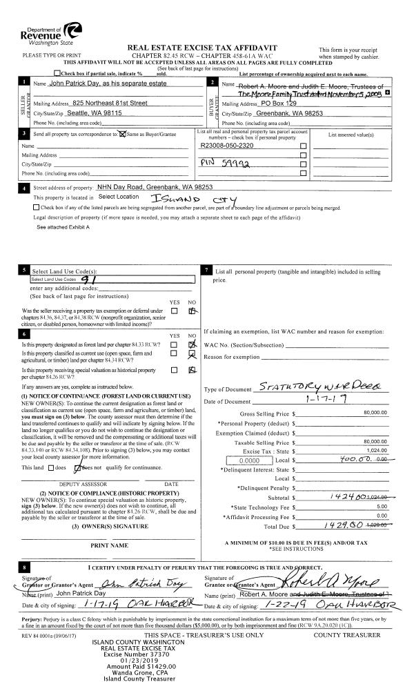
Property
Account |
| Property ID: | 53863 | Abbreviated Legal Description: | 71 - IN & ADJ TO GL3: BG MC COM TO SEC 15 & SEC 22 N9*E ALG ML 223.39' N89*E36.39' N10*W369.89' TPB N10*W50' TO SLN BEACH ACCESS S74*W ALG SD SLN TO WLN TIDES SLY ALG SD WLN TP S74*W FR TPB N74*E TPB |
| Geographic ID: | R22915-057-2210 | Agent Code: | |
| Type: | Real | | |
| Tax Area: | 710 - APPRAISER-S Whid Schl Dist, outside Langley, improved & 1 acre or less | Land Use Code | 11 |
| Open Space: | N | DFL | N |
| Historic Property: | N | Remodel Property: | N |
| Multi-Family Redevelopment: | N | | |
| Township: | 29 | Section: | 15 |
| Range: | R2 |
Location |
| Address: | 5954 CEDAR ST FREELAND, WA 98249 | Mapsco: | |
| Neighborhood: | Cycle 3 | Map ID: | 329 |
| Neighborhood CD: | 3 |
Owner |
| Name: | WHIDBEY CEDAR STREET HOUSE LLC | Owner ID: | 301501 |
| Mailing Address: | 4520 49TH AVE NE SEATTLE, WA 98105 | % Ownership: | 100.0000000000% |
| | | Exemptions: | |
Taxes and Assessment Details
Values
| (+) Improvement Homesite Value: | + | $0 | |
| (+) Improvement Non-Homesite Value: | + | $598,070 | |
| (+) Land Homesite Value: | + | $0 | |
| (+) Land Non-Homesite Value: | + | $2,250,500 | |
| (+) Curr Use (HS): | + | $0 | $0 |
| (+) Curr Use (NHS): | + | $0 | $0 |
| | | -------------------------- | |
| (=) Market Value: | = | $2,848,570 | |
| (–) Productivity Loss: | – | $0 | |
| | | -------------------------- | |
| (=) Subtotal: | = | $2,848,570 | |
| (+) Senior Appraised Value: | + | $0 | |
| (+) Non-Senior Appraised Value: | + | $2,848,570 | |
| | | -------------------------- | |
| (=) Total Appraised Value: | = | $2,848,570 | |
| (–) Senior Exemption Loss: | – | $0 | |
| (–) Exemption Loss: | – | $0 | |
| | | -------------------------- | |
| (=) Taxable Value: | = | $2,848,570 | |
Taxing Jurisdiction
| Owner: | WHIDBEY CEDAR STREET HOUSE LLC | | |
| % Ownership: | 100.0000000000% | | |
| Total Value: | $2,848,570 | | |
| Tax Area: | 710 - APPRAISER-S Whid Schl Dist, outside Langley, improved & 1 acre or less |
| CF | Conservation Futures | 0.0316035091 | $2,848,570 | $2,848,570 | $90.02 | | |
| FIRE3 | Fire & Rescue Dist #3 S Whidbey GEN | 1.2004855531 | $2,848,570 | $2,848,570 | $3,419.67 | | |
| HOBOND | Hospital BOND | 0.1910887512 | $2,848,570 | $2,848,570 | $544.33 | | |
| HOGEN | Hospital GEN | 0.3902502903 | $2,848,570 | $2,848,570 | $1,111.66 | | |
| CE | County Current Expense | 0.3708482477 | $2,848,570 | $2,848,570 | $1,056.39 | | |
| CR | County Roads | 0.4584763726 | $2,848,570 | $2,848,570 | $1,306.00 | | |
| ISLANDEMS | Hospital GEN (EMS) | 0.5000000000 | $2,848,570 | $2,848,570 | $1,424.29 | | |
| LIB | Library Sno-Isle GEN | 0.3153421757 | $2,848,570 | $2,848,570 | $898.27 | | |
| PORTWHID | Port of S Whidbey GEN | 0.1094540357 | $2,848,570 | $2,848,570 | $311.79 | | |
| SCH206BOND | School 206 BOND | 0.3161759235 | $2,848,570 | $2,848,570 | $900.65 | | |
| SCH206MO | School 206 Enrichment | 0.4547169547 | $2,848,570 | $2,848,570 | $1,295.29 | | |
| ST | State School | 1.3035497053 | $2,848,570 | $2,848,570 | $3,713.25 | | |
| ST2 | State School Part 2 | 0.8169543533 | $2,848,570 | $2,848,570 | $2,327.15 | | |
| SWHIDPRBD | P & R S Whidbey BOND | 0.0152817568 | $2,848,570 | $2,848,570 | $43.53 | | |
| SWHIDPRBD2 | P & R S Whidbey BOND2 | 0.0138911264 | $2,848,570 | $2,848,570 | $39.57 | | |
| SWHIDPRMT | P & R S Whidbey GEN | 0.2053334452 | $2,848,570 | $2,848,570 | $584.91 | | |
| | Total Tax Rate: | 6.6934522006 | | | | | |
| | | | | Taxes w/Current Exemptions: | $19,066.77 | | |
| | | | | Taxes w/o Exemptions: | $19,066.77 | | |
Improvement / Building
| Improvement #1: | RESIDENTIAL | State Code: | Y | 3160.0 sqft | Value: | $598,070 |
| Bathrooms: | 2.5 | Bedrooms: | 2 | | Ceiling: | BEAM PAINTED | Exterior Wall/Cover: | WOOD SIDING | | Floor Covering: | CARPET/VINYL 80-20 | Floor Structure: | WOOD W/SUBFLOOR | | Foundation: | CONCRETE | Heating: | FHA GAS | | Interior Finish: | DRYWALL PAINT | Plumbing Fixture Cnt: | 12 | | Roof Slope: | 8" IN 12" | Roof Structure/Cover: | BEAM ALUMINUM HEAVY |
|
| | Type | Description | Class CD | Sub Class CD | Year Built | Area |
| | BAS | BASE/MAIN FLOOR | 4 | 0 | 1962 | 1686.0 |
| | AGR | ATTACHED GARAGE | 4 | 0 | 1962 | 600.0 |
| | OCP | OPEN CARPORT | 4 | 0 | 1962 | 416.0 |
| | OWP | OPEN WOOD PORCH W/STEPS | 4 | 0 | 1962 | 479.9 |
| | OWC | OPEN WOOD PORCH W/STEPS/ROOF/C | 4 | 0 | 1962 | 691.0 |
| | UPS | UPPER STORY | 4 | 0 | 1962 | 1474.0 |
| | OWP | OPEN WOOD PORCH W/STEPS | 4 | 0 | 1962 | 91.0 |
Sketch
Property Image
Land
| 1 | LB | LOW BANK | 0.1500 | 6534.00 | 50.00 | 0.00 | 1.00 | $2,250,000 | $0 |
| 2 | 55 | TIDES | 0.0000 | 0.00 | 50.00 | 0.00 | 1.00 | $500 | $0 |
Roll Value History
| 2026 | N/A | N/A | N/A | N/A | N/A |
| 2025 | $598,070 | $2,250,500 | $0 | $2,848,570 | $2,848,570 |
| 2024 | $595,687 | $2,250,500 | $0 | $2,846,187 | $2,846,187 |
| 2023 | $602,929 | $2,300,500 | $0 | $2,903,429 | $2,903,429 |
| 2022 | $552,504 | $2,000,500 | $0 | $2,553,004 | $2,553,004 |
| 2021 | $230,598 | $1,300,500 | $0 | $1,531,098 | $1,531,098 |
| 2020 | $428,482 | $1,050,500 | $0 | $1,478,982 | $1,478,982 |
| 2019 | $267,506 | $1,100,500 | $0 | $1,368,006 | $1,368,006 |
| 2018 | $268,362 | $950,500 | $0 | $1,218,862 | $246,453 |
| 2017 | $270,062 | $700,500 | $0 | $970,562 | $246,453 |
| 2016 | $273,478 | $700,500 | $0 | $973,978 | $246,453 |
| 2015 | $276,896 | $700,500 | $0 | $977,396 | $246,453 |
| 2014 | $251,920 | $700,500 | $0 | $952,420 | $236,462 |
| 2013 | $256,320 | $773,896 | $0 | $1,030,216 | $236,462 |
| 2012 | $259,899 | $773,896 | $0 | $1,033,795 | $236,462 |
| 2011 | $263,477 | $773,896 | $0 | $1,037,373 | $236,462 |
| 2010 | $278,245 | $773,896 | $0 | $1,052,141 | $236,462 |
| 2009 | $286,829 | $925,075 | $0 | $1,211,904 | $236,462 |
| 2008 | $265,326 | $1,061,302 | $0 | $1,326,628 | $521,156 |
| 2007 | $273,644 | $739,854 | $0 | $1,013,498 | $591,156 |
Deed and Sales History
| 1 | 09/24/2021 | BARGSLD | Bargain And Sale Deed | PLEAS, RYAN W | WHIDBEY CEDAR STREET HOUSE LLC | | | $0.00 | 50413 | 4531087 |
| 2 | 07/10/2019 | BARGSLD | Bargain And Sale Deed | STALLBAUM, RICHARD J | PLEAS, RYAN W | | | $1,570,000.00 | 39398 | 4467187 |
| 3 | 12/15/2018 | QCD | Quit Claim Deed | STALLBAUM, RICHARD J | STALLBAUM, RICHARD J | | | $0.00 | 37274 | 4457765 |
| 4 | 09/01/1990 | QCD | Quit Claim Deed | STALLBAUM, RICHARD J | STALLBAUM, RICHARD J | | | $0.00 | 6494 | 90022537 |
| 5 | 01/01/1900 | OTHER | Other - Misc. Documents | Unknown | STALLBAUM, RICHARD J | | | $0.00 | 0 | 0 |
Payout Agreement
| No payout information available.. |